Príbeh Cassovaru dorozprávajú ludia
„Každá stavba má svoj príbeh a má ho aj Cassovar,“ začal rozprávanie Ing. arch. Ľubomír Závodný a nalistoval súťažnú skicu spred šiestich rokov. „Túto som odovzdal architektovi Mirovi Marynčákovi a on ju vybral pre svoj developerský projekt. Je to neuveriteľné, ale od realizačného projektu sa odlišuje len v detailoch.“ Výsledkom je najväčší multifunkčný komplex na východnom Slovensku.
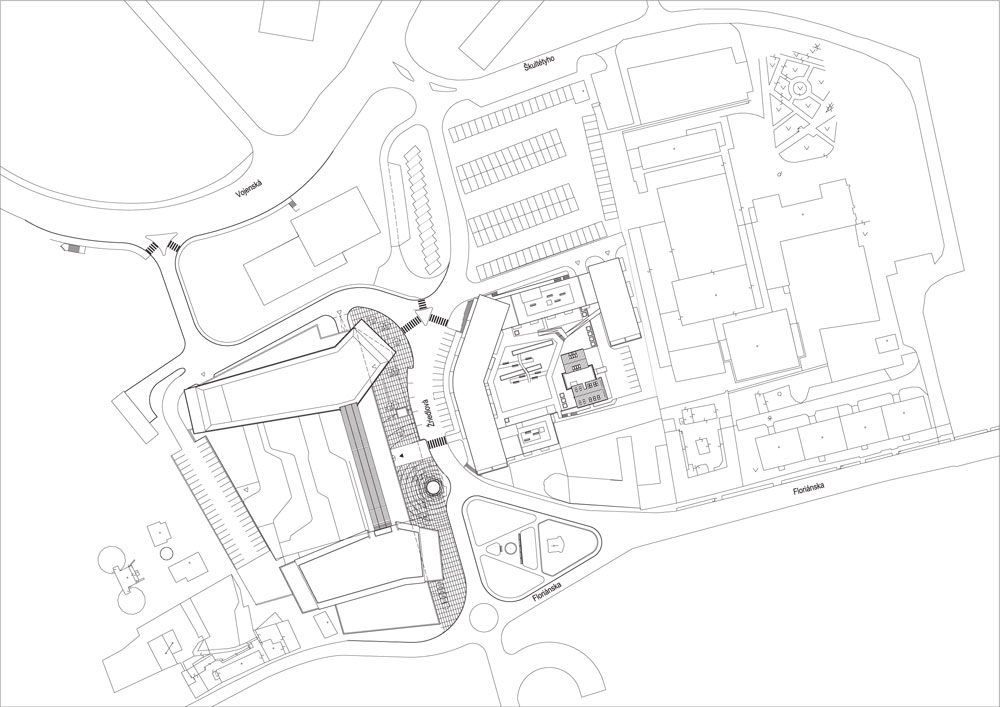
Dokončený komplex Cassovar vstúpil na jeseň minulého roka na trhovú pôdu Košíc. Je umiestnený na jednom z ramien takzvaného zlatého kríža centra (v strede Dóm sv. Alžbety), čím sa zaradil medzi dominanty geometrického stredu Košíc. Na troskách slávneho pivovaru tak vznikol projekt, ktorý hneď na začiatku zaznamenal plnú obsadenosť – sen všetkých developerov. V prípade Cassovaru to znamenalo 2 500 zamestnancov.
„V čase realizácie prvej etapy sme podpísali zmluvu so spoločnosťou T-Systems Slovakia, ktorá sa tu rozhodla umiestniť svoju slovenskú centrálu,“ hovorí zástupca investora Ing. arch. Peter Murko. „Týmto rozhodnutím bola obsadená aj druhá administratívna budova, ktorá bola vtedy ešte len v štádiu príprav. Tento fakt umožňuje do budúcnosti zabezpečiť plnokrvný život aj retailu a prevádzkam relaxačného charakteru, ktoré dopĺňajú administratívu.“
Prítomnosť spoločnosti zaoberajúcej sa informačnými a komunikačnými technológiami postupne vplývala aj na urbanistický a architektonický koncept, hoci na začiatku bolo všetko inak. „Keď som dostal od investora zadanie, nevedel som, kto tam bude sedieť,“ hovorí autor kancelárskych komplexov CBC I a II Ľubomír Závodný. „Vedel som len, kde to bude – preto som budovy koncipoval ako dynamickú kompozíciu s otvorenou náručou smerom k historickému centru. Keď som spoznal hlavného užívateľa, nechal som sa pri navrhovaní inšpirovať aj jeho činnosťou.“
| KOMPLEX CASSOVAR Miesto: Žriedlová ulica, Košice-Staré Mesto Architektonický návrh: Celkový koncept a projekty rezidencia Cassovar a Bauerneblov dom – PeeMDe Global a. s., Košice, Ing. arch. Miroslav Marynčák a kolektív CBC I: architektonická kancelária Ing. arch. Ľubomíra Závodného, Bratislava CBC II: architektonická kancelária Ing. arch. Ľubomíra Závodného, Bratislava Developer: Global Group a. s., Bratislava Manažér projektu: PeeMDe Global a. s., Košice |
Motív jachty
Symbolika v architektúre je občas nejednoznačná a často sa vznáša na neistej vlne asociácií. Rezervovaný postoj k nej má aj architekt Ľubomír Závodný, no pripúšťa, že niektoré tvary a kompozície hmôt môžu symbolizovať konkrétne veci. „Jednou z nich bol motív plachiet,“ hovorí architekt. „Dozvedel som sa, že spoločnosť T-Systems Slovakia využíva vo svojich marketingových materiáloch aj motív jachty, ku ktorým som mal kedysi blízky vzťah – pravda, k oveľa menším verziám ako v prípade tejto firmy. Tým nastalo citovejšie spojenie s projektom a k dynamike kompozície pribudla efektivita a elegantné tvary týchto plavidiel. Z inšpirácie sa stala filozofia.“
Obe budovy vzájomne komunikujú – jedna je dlhšia a nižšia, druhá vyššia a kratšia – a vo svojej kompozícii asociujú otvorenú náruč, ktorá vťahuje návštevníkov do svojho vnútra. V duchu Závodného poetiky prevláda abstrakcia formy, ktorá vylučuje prezdobenosť tvarov. Sledovala sa striedma architektúra, ktorá by vyjadrovala funkciu jednotlivých stavieb. Platí to aj pri interiéroch, ktoré sú vytvorené jednotným architektonickým rukopisom.
–>–>
Generálni dodávatelia
Rezidencia: Chemkostav, a. s.
CBC I: Stamart Martin s. r. o., člen skupiny Skanska SK
CBC II: Skanska SK a.s.
Dodávatelia – CBC II
Špeciálne zakladanie: Skanska SK a. s.
Skelet: SkyBau, s. r. o., člen skupiny Skanska SK
Fasáda, okenné systémy: INGSTEEL, spol. s r.o.,
ALUSTEEL, spol. s r. o.
Tieniaca technika: K-system, spol. s r. o.
Dodávka a montáž vzduchotechnických
a klimatizačných zariadení: Klimavex, a. s., Skanska SK a.s.
Obklady, dlažby, sanita: Elkem, s. r. o. Košice, Ingema s.r.o.
Silnoprúdy: Montin s. r. o.
Slaboprúdy: DELTA ONLINE spol. s r.o.
Požiarne systémy: PYRONOVA s. r. o.
Požiarne uzávery: PYROBATY SK, s.r.o.
Zdvojené podlahy: LINDNER Slovakia, s. r. o.
Interiérové priečky a predeľovacie systémy:
LIKO – S, spol. s r.o., Techo, s.r.o.
Strešné systémy: ŠPORTSTAV, s.r.o.
Výťahy a eskalátory: Schindler výťahy a eskalátory a.s.
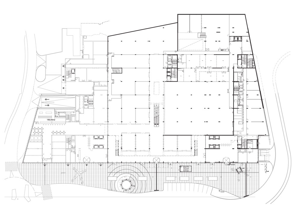
Pôdorys retailu, 1. nadzemné podlažie
Celková situácia: Komplex Cassovar
Celková plocha územia: 24 000 m2
Využiteľná podlažná plocha: 88 000 m2
Celkové investičné náklady: 100 miliónov €
Časti komplexu
Rezidenčná časť: 24 500 m2
91 apartmánov (48 – 220 m2)
192 parkovacích miest
Kancelárie CBC I: 15 000 m2
Kancelárie CBC II: 16 500 m2
Bauerneblov dom: 1 450 m2 – apartmánový dom,
art-hotel, exkluzívne kancelárie
Retailová časť CBC I a CBC II, rezidencia (nebytová časť) – obchodná galéria: 13 200 m2 – reštaurácie, menza (2 500 jedál denne), kaviarne, služby, supermarket, relax centrum, rehabilitácia, zdravotné služby
Parkovací dom CBC I a II – 550 podzemných parkovacích miest
Energetická efektivita
Motívy inšpirácie jachtami sa čiastočne objavili aj v interiéri, pričom rozprestierateľné trojcípové plachty pod svetlíkom v reštauračnej časti patria k tým najvýraznejším. Za inšpiráciami však treba hľadať množstvo práce, pričom pri spomenutých svetlíkoch sa robili analýzy svetla a ich optimálnych natočení.
„Hľadali sme, čo s týmto priestorom v lete urobí slnko a ako negatívne oteplí vnútorný priestor, ktorý budeme musieť vychladiť, aby teplo neškodilo ľuďom,“ pokračuje architekt Závodný, ktorého prirodzenou ambíciou bolo urobiť z Cassovaru efektívnu nízkoenergetickú budovu. „Samozrejme, pri tomto cieli sme posudzovali aj natočenie budovy na vhodné svetové strany a jej ochranu vonkajším tienením, ktoré súčasne vytvára patričnú kompozíciu fasády. Takisto sme sa snažili optimalizovať všetky ďalšie potrebné parametre.“
Súčasťou zelenej orientácie je aj masívne využitie prírodného dreva v podhľadoch retailovej časti, ktoré má aj výrazné estetické pôsobenie, v exteriéri zase vytvorenie medzizáhrady medzi dvomi budovami či zapojenie historického komína do architektonického konceptu. Komín prešiel mohutnou sanáciou a dnes možno sklenenými dverami zísť podeň a pozrieť sa hore. Na jeho obvode z tehál je nainštalovaná plastika lezúceho človiečika od kontroverzného českého umelca Davida Černého.
Príbeh komplexu Cassovar teda autori dopovedali, zostáva na divákoch (užívateľoch), čo si z jeho odkazu zoberú a využijú…
Pohľad na CBC I a II z Rezidencie Cassovar, v pozadí sídlisko Terasa
Samonavíjacie tieniace plachty nad jedálňou
Rekonštruovaný Bauerneblov dom v átriu Rezidencie
Rez retailovou časťou

Komplex Cassovar na pozemkoch s rozlohou 2,4 ha ponúka v Košiciach najväčšiu plochu na administratívne priestory (31 500 m2), rezidenčné bývanie (24 500 m2) a obchodno-relaxačné priestory (13 200 m2) spojené s podzemnými parkovaním (550 miest).
K pozostatkom z predchádzajúceho pivovaru, ktorý vznikol v roku 1857 a pivo sa tu prestalo variť v roku 1993, patrí komín vysoký 60 metrov a zrekonštruovaný Bauerneblov dom z prelomu 19. a 20. storočia, ktorý má slúžiť ako apartmánový objekt a exkluzívna administratívna časť.
Vertikálne je objekt CBC delený na dve stavebné etapy – CBC I a CBC II – a horizontálne je členený na tri funkčné časti: dve podzemné technické a parkovacie podlažia s plochou 15 500 m2, dve podlažia s maloobchodnými prevádzkami na ploche 13 500 m2 a 7- a 9-podlažnú administratívna časť s rozlohou 31 000 m2.
Fasáda
Až do výšky viac ako 10 metrov je objekt opláštený hliníkovým fasádnym zasklením zo systému Schüco, plocha zasklenej časti predstavuje takmer 1 300 m2. Použité izolačné dvojsklo zelenomodrej farby prepúšťa až 80 % svetla, pričom zabráni prieniku takmer 50 % tepla vznikajúceho vplyvom slnečného žiarenia.
Opláštenie esteticky dopĺňa hliníkový lamelový obklad Luxalon s lamelami vo dvoch šírkach a efektná vstupná celozasklená markíza.
Administratívna budova je opláštená odvetraným hliníkovým obkladom v nehorľavom vyhotovení. Obklad Alucobond s plochou takmer 3 000 m2 je v súčasnosti najväčšou realizáciou tohto druhu obkladu v metropole východného Slovenska.
Hliníkové okná v pásoch na 11. poschodiach sú tienené lamelovými žalúziami s elektrickým ovládaním. Hliník sa nachádza aj na chodbách, kde je nainštalovaných vyše 2 800 m2 dekoračných podhľadových kaziet.
Rezidencia Cassovar získala v súťaži Stavba roka 2011 cenu Bytový dom rok 2011 a objekt CBC I získal v súťaži Stavba roka 2010 Cenu za optimálne použitie progresívnych stavebných materiálov, výrobkov alebo systémov v stavbe.
TEXT: ĽUDOVÍT PETRÁNSKY
FOTO: DANO VESELSKÝ
Ing. Marián Kaššák stavebný a technický dozorCASSOVAR OČAMI ODBORNÍKA Multifunkčný komplex Cassovar v Košiciach sa nachádza na mieste bývalého pivovaru. Developer stavby sa rozhodol zachovať spomienku na túto históriu nielen dobovými fotografiami v propagačných materiáloch, ale aj niektorými pôvodnými artefaktmi. Do svojho projektu včlenil továrenský komín a dom niekdajšieho majiteľa pivovaru, hoci náklady na ich zachovanie vysoko prevýšili náklady na likvidáciu. Toto je u nás nevídaný prístup, väčšinou sú investori k historickým pozostatkom minulosti nemilosrdní. Stavba sa nachádza na Žriedlovej ulici. Toto pomenovanie má ulica vraj preto, že sa tu nachádzali výdatné žriedla podzemnej vody. Že to neboli len reči, sa ukázalo pri realizácii podzemných podlaží. Odčerpávanie vody sa stalo nevyhnutnou súčasťou technologického vybavenia počas výstavby a ostalo v prevádzke aj po dokončení stavby. Bytový dom je z väčšej časti obsadený, preto sme sa pri obhliadke sústredili na exteriér. Treba oceniť snahu investora používať kvalitné systémové materiály s minimálnymi nárokmi na údržbu – hliníkové zábradlia balkónov a terás, sklenené výplne zábradlí, hliníkové slnolamy, dažďové zvody z hrubostenných oceľových pozinkovaných rúr a podobne. Dobrý dojem z celkovej panorámy domu ale miestami rušia špinavé škvrny na fasáde po vode stekajúcej z parapetov a rôznych výstupkov. Objektová dilatácia prechádzajúca zvislo fasádou od strechy po terén by už potrebovala zásah správcu. Expanzné schopnosti tesniaceho tmelu zjavne nestačia na dilatačné pohyby stavby a hrozí prenikanie atmosférickej vlhkosti do konštrukcie (obr. 1). Dažďové zvody z balkónov ústia do terénu, čo je v zásade prijateľné riešenie okrem jedného miesta, kde voda vyteká priamo na chodník a priľahlé schody. V zimných mesiacoch môže byť takéto riešenie pre chodcov nebezpečné (obr. 2). Na vedľajšom administratívnom komplexe vidieť snahu pripraviť stavbu pre náročného zákazníka. Zaujímavé architektonicko-technické nápady sú doplnené kvalitným vyhotovením detailov. Netradičný podhľad v komunikačných priestoroch z drevených roštov alebo tienenie zasklenej strechy jedálne interiérovými rolovacími plachtami patria k vydareným riešeniam rovnako ako napríklad ukončenie dlažby na okraji podlahového konvektora (obr. 3). Niektoré maloobchodné prevádzky, ktoré čakajú ešte na svojich nájomcov a na definitívne dokončenie, však odkrývajú aj menej vydarené kúsky. Medzi ne patrí napríklad plastové vodovodné potrubie so zbytočnými lomami a s nedostatočným pripevnením k stene (obr. 4). |
Článok bol uverejnený v časopise ASB.















Ing. Marián Kaššák stavebný a technický dozor






