Premenlivá a tichá
Administratívna budova Gamma je ďalší, už deviaty prírastok BB Centra v Prahe 4 – Michli, ktoré buduje developerská skupina Passerinvest. Je situovaná do južného nárožia BB Centra v bezprostrednej blízkosti magistrály a vďaka svojej unikátnej architektonickej koncepcii sa stala jeho novou dominantou.
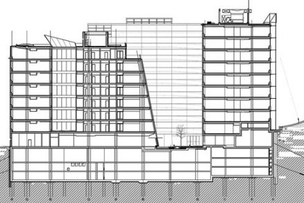
Budova má nepravidelný pôdorys, z jednej strany kopíruje krivku magistrály a zároveň má na strane privrátenej k diaľnici veľmi členitú fasádu, ktorá pôsobí ako zaujímavý dekoratívny prvok. Jej prvotným účelom je však zabrániť odrazu hluku z magistrály, aby ruch neobťažoval obyvateľov neďalekej obytnej zóny. Autorom budovy Gamma je Ing. arch. Jan Aulík, ktorý projektoval aj väčšinu ostatných budov v BB Centre. Jeho architektonická kancelária spolupracuje so spoločnosťou Passerinvest Group už od roku 1993, keď Studio A zvíťazilo v prvej urbanistickej súťaži na projekt BB Centrum.
Očami architekta

Veľkosti Gammy zodpovedá aj určitá zložitosť v tvare a priestoroch, aby mierka objektu bola príjemná v kontexte okolia aj pre jeho užívateľa. To umožnilo navrhnúť viac ako šestnásť druhov fasád. Členitý tvar budovy tak vytvára z každej strany neopakovateľný dojem. „V prípade administratívnej budovy tohto štandardu nie je problém zabezpečiť modernými plášťami absolútnu ochranu vnútorných priestorov kancelárií.
Gamma však zároveň berie ohľad na svoje okolie a rieši možný odraz hluku od obvodových plášťov,“ hovorí Jan Aulík zo Studia A. „Zadaním pre fasády priliehajúce k ulici 5. května bolo eliminovanie odrazu hluku na protiľahlé bytové domy, ktoré sa nachádzajú za touto komunikáciou. Výsledkom riešenia bolo v spolupráci s expertmi na akustiku vytvorenie zvukovo pohltivej fasády, pôdorysne zakrivenej, členenej do jednotlivých šupín, a súčasne veľmi individuálnej a zaujímavej architektonickej formy,“ dodáva architekt Jan Aulík.
Situovanie Gammy priamo pri ulici 5. května ovplyvnilo aj základný dispozičný koncept domu pri vytváraní systému rôznych chránených vonkajších aj vnútorných priestorov. Rozľahlá vnútorná dvorana ponúka parkové plochy s posedením a vodnou plochou odhlučnené od ruchu z ulice. Dôležitou úlohou v koncepte celého objektu hrá zeleň. Okrem zelene vo dvorane sú ďalšie zelené plochy určené na relaxáciu zamestnancov navrhnuté aj na strešnej terase nižšieho z oboch objektov. Strešná záhrada ponúka prekrásny výhľad na Prahu.

Atypické zasadačky

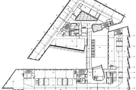
Funkcia objektu Gamma je prevažne administratívna, v prízemí je okrem vstupných partií objektu francúzska reštaurácia, kaviareň a drobné obchodné plochy.
Architektovi Janovi Aulíkovi sme položili niekoľko doplňujúcich otázok.
Budova má unikátnu protihlukovú fasádu. Bol to pri jej projektovaní najväčší technický oriešok?
Koncepčne a projekčne je to asi najzložitejšia časť stavby. Takáto záležitosť je vždy spojená s určitým rizikom – či sa podarí v praxi docieliť naprojektované parametre odrazu hluku, či sa merania potvrdia. To sa nikdy dopredu nedá povedať. Hluk nie je až taká celkom jednoduchá záležitosť ako napríklad teplo alebo svetlo. Hluk má zložitejšie parametre, má zložitejšie správanie. Pritom bolo treba, aby tie parametre, ktoré sa vyprojektovali a deklarovali, boli namerané aj v skutočnosti. Takže panovala nervozita do poslednej chvíle.
Merania už prebehli? Potvrdila sa funkčnosť fasády?
Áno, to bola podmienka kolaudácie stavby.
Je to v Česku unikát? Mali ste nejaký predobraz podobnej fasády v zahraničí?
Vzor v zahraničí sme nehľadali, nevylučujem však, že niečo podobné v cudzine byť môže, no ja takú fasádu nepoznám. Samozrejme, nejaké princípy na zabránenie odrazu zvuku pri budovách sa vyskytujú aj inde. Pravda, v takej miere a s takou požiadavkou, aby sa ten odraz nedal merať cez cestu, čiže nie minimalizovaný alebo redukovaný, ale nemerateľný, tak o tom neviem, nepoznám to ani zo zahraničia, ani z Česka.
Materiály na fasádu ste vyberali vy alebo odborníci na fyziku, s ktorými ste spolupracovali?
Materiály sme vyberali my na základe podkladov a dialógu s pánom Janečkom – akustikom, ktorý s nami na tomto projekte spolupracoval.
Ako konkrétne prebiehala spolupráca s fakultou?
Zadaním bolo, že sa nesmie odraziť hluk. Na to nám odborníci na akustiku ponúkali rôzne modely a varianty, ale nie všetky sa dajú využiť pri administratívnej budove. Fakt, že dom musí mať v pohltivej fasáde určité percento okien, to totiž nesmierne komplikuje. Čisto exaktnú pohltivú fasádu bez okien nemožno urobiť. Išlo teda skôr o dialóg, pri ktorom sme si osvojovali ich spôsob myslenia. Museli sme pochopiť princípy, čiže čo sa s hlukom deje.
Čo je na budove najvydarenejšie, s čím ste najspokojnejší?
Ja by som povedal, že práve s akustickou fasádou. Jednak ma baví, že má funkciu, akú má, a jednak sa mi naozaj veľmi páči. Je to pre mňa skutočne favorit tohto domu. Obklady fasád sú z rôznych materiálov, čo všetko ste použili? Pieskovec, dosky s drevenou dyhou, čiže s imitáciou dreva. Základnými materiálmi sú kameň, sklo, pohltivé akustické obklady, sklenené rastre.
Lidmila Ziková
Foto: Passerinvest Group












