Polyfunkčný objekt Retro chce byť návratom k ideálom i funkciám
„...spraviť budovu so všetkými funkciami, ktoré človek potrebuje ku každodennému životu...“ – znie motto stavby polyfunkčného objektu Retro v bratislavskom Ružinove, ktoré evokuje návrat k ideálom Le Corbusiera. Retro však nemá byť len spomienkou na niečo staré, ale má ambíciu vrátiť architektonické prvky vytvárajúce centrum mestskej časti. Hlavný atribút Retra – bývanie – je doplnené rôznymi službami, nákupnou zónou, administratívnymi priestormi, ale aj poliklinikou, športoviskami a priestormi na zábavu.
Koncepcia riešenia„Základná filozofia koncepcie rozvoja riešenej lokality spočíva v prehĺbení priestorového usporiadania a funkčného využitia dopravnej a technickej obsluhy a v zintenzívnení funkčných a priestorových väzieb,“ hovorí autor architektonického konceptu Ing. arch. René Baranyai. „Cieľom bol návrh takej urbanizácie prostredia, aby sa územie stalo integrálnou súčasťou celomestskej štruktúry.“

Parter objektu Retro tvorí trojpodlažné obchodné stredisko, z neho vyrastajú bytové domy s dominantnou vežou. Objekty A a B majú 7 podlaží, C má 14 podlaží, pričom nižšia časť objektu D má 7 a vyššia 25 podlaží.
Hra objektov
Svojím výrazom rozohráva Retro tvaroslovnú kompozíciu architektonických objemov s rôznymi veľkosťami pri zachovaní modulu kocky 500/500/500. Vďaka konštrukcii skeletového systému zo železobetónu sa dokáže prispôsobovať meniacim sa požiadavkám užívateľov. Jej základ tvorí inšpirujúca dynamická hmota prechádzajúca z 2. na 3. NP., pričom na tejto podnoži sa postupne vynárajú priestory na bývanie.
„Gradácia hmôt prebieha v smere hodinových ručičiek, začína sa pri severovýchodnom nároží a vrcholí v dominantnej veži na severozápade,“ približuje René Baranyai kompozíciu objemov. „Túto gradáciu podporuje aj stupňovanie fasádneho prvku vo forme štylizovanej špirály na samotnej veži, kde „lem“ stúpa ako línia po jednotlivých fasádach. Pokračuje po obvode budovy, ale aj priestorovo vertikálnym smerom a končí sa akoby v nekonečne. Ostatné stavebné objekty majú výtvarný prvok v jemnejšom „leme“. Ten im pridáva horizontálny akcent, čím sa podporuje dominantnosť výškovej 25-poschodovej budovy.“
Na budove sú použité aj ďalšie výrazové prostriedky, ktorými Retro komponuje svoju vizuálnu hru. Pre vyľahčenie vonkajšieho dojmu sa použili sklenené zábradlia ukotvené na pozinkovaných oceľových rámoch a z vnútornej strany – smerom do átria – sú oceľové zábradlia tvorené líniami so štylizáciou tráv a kvetov odkazujúce na názvy okolitých ulíc.
–>–>
| Polyfunkčný objekt RETRO Miesto: Nevädzova ul., Bratislava Investor: Centaurea, a. s., Bratislava Autor: Ing. arch. René Baranyai – NEW ART Spolupráca: Ing. Ján Franz, Ing. arch. Peter Novotný, Ing. arch. Miroslav Prokopič Hlavný inžinier projektu: Ing. Ivan Bučko – Orpis, Ing. Marián Krajči – PRO-SCK, spol. s r. o., Ing. Vojtech Rybár – STEM Hlavný statik projektu: PH – Projekt Hoerman & Polívka Investičné náklady: 55 mil. € Začiatok výstavby: 06/2007 Zmena stavby pred dokončením: 09/2009 Ukončenie výstavby: 05/2011 Úžitková plocha podlaží: 77 736 m2 Celková plocha nákupného strediska: 18 525 m2 Prenajímateľná plocha: 14 613 m2 Zastavaná plocha objektu: 11 911 m2 Generálny dodávateľ: Matep, s. r. o. |
Farby a materiály
Ústredné plochy fasád sú v neutrálnych farbách – bielej až tmavosivej. Ich jednoliatosť narúšajú menšie plochy farebných sklenených zábradlí a skiel. Dominujú ružová a fialová, ktoré sú typické pre retrotematiku i naznačenie farieb kvetov. V nepravidelnom rastri sa použili v exteriéri pri niektorých zábradliach i deliacich sklenených stenách, ako aj v interiéri na vybraných sklách a stenách.
Na fasádach sú použité kvalitné materiály – v parteri je titánzinkový plech a kompozitné dosky, pričom obidve sú na odvetrávanom rošte. Parter má hliníkové okná, na bytoch sú plastové okná s hliníkovými klipmi. Konštrukčne zaujímavé sú prefabrikované konzolové balkónové dosky kotvené na tzv. izokorby. „Na doplnenie hmoty línií boli na fasádach prvýkrát na Slovensku použité STO decoprofily,“ upozorňuje René Baranyai. „Sú zo špeciálne vyľahčeného kompozitného materiálu a majú nahrádzať plastické prvky fasády tam, kde to iné materiály neumožňujú. Fasády bytových blokov sú zateplené kontaktným zatepľovacím systémom so samočistiacou omietkou.“
Samotné centrum na 1. až 3. NP je v interiéri výtvarne dotvorené dynamickými podhľadmi a stĺpmi, ktoré predstavujú všetky vlastnosti polyfunkčného centra: dynamiku, rôznorodosť, nerovnomernosť, sviežosť a flexibilnosť. Interiérové fasády nadväzujú svojou mierkou, modulom a farebnosťou na exteriérové fasády. Snažia sa o prepojenie interiéru s exteriérom, čo podporujú aj svetlíky v centre.
![]() |
![]() |
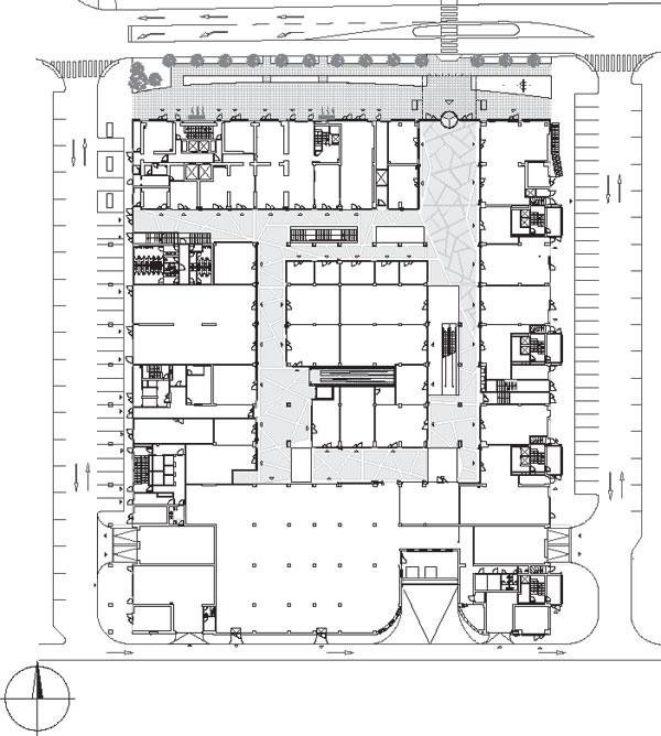
| Pôdorys 1. NP | Situácia |
Stavebno-technické riešenie
Objekt mal zložité základové pomery, a preto je založený na kombinovaných plošných a hĺbkových základoch. Stojí na 700 pilótach rôznych priemerov. Z konštrukčného hľadiska má Retro železobetónový kombinovaný nosný systém. Vertikálny nosný systém objektu pozostáva zo železobetónového skeletu a tvoria ho obdĺžnikové stĺpy, obvodové a vnútorné steny kombinované so stužujúcimi komunikačnými jadrami vo vnútri objektu. Jadrá sú priebežné od základovej dosky po najvrchnejšiu stropnú dosku objektu. Vodorovné účinky zaťaženia preberajú okrem jadier aj stužujúce steny. Usporiadanie nosných stien objektov je v priečnom aj pozdĺžnom smere. Vertikálne nosné konštrukcie – železobetónové steny – zabezpečujú zároveň horizontálne stuženie objektov a prenos vodorovných síl od pôsobenia vetra prípadne od seizmického zaťaženia do základových konštrukcií.
Horizontálne nosné konštrukcie podzemnej časti objektu sú tvorené železobetónovými monolitickými bezprievlakovými obojsmerne nosnými doskami s hrúbkou 250 mm. Stropná doska nad 1. NP je hrubá mm. Vodorovné nosné konštrukcie nadzemnej bytovej časti objektu sú tvorené železobetónovými monolitickými bezprievlakovými obojsmerne nosnými doskami s hrúbkou 200 mm.
Nosná konštrukcia tenisovej haly je oceľová. Tvoria ju oceľové plnostenné väzníky H-prierezu, doplnené priečnymi plnostennými väznicami H-prierezu. Podstatná časť oceľovej konštrukcie tenisovej haly sa nachádza pod rovinou jej strešného plášťa, ktorý je zapustený do primárnej nosnej konštrukcie. Tento koncept minimalizuje problém so zatienením bytových podlaží objektov. Objekt má ploché strešné konštrukcie jednoplášťové, neodvetrané, nepochôdzne, pochôdzne, ale aj vegetačné.
Dispozícia
V podzemí samotného objektu sú veľkokapacitné garáže slúžiace pre návštevníkov centra na 1. NP, ako aj pre obyvateľov Retra aj rezidentov centra – 2. a 3. NP. Ponúkajú vyše 630 parkovacích miest, pričom na úrovni terénu je umiestnených ďalších 120 parkovacích miest.
Nákupné centrum, ktoré sa orientuje na služby obyvateľom v samotnom objekte a blízkom okolí – je na prízemí a 1. poschodí. Nachádza sa tu napr. supermarket, pošta, banky, lekáreň, služby, reštaurácie, stánky rýchleho občerstvenia atď. Tretie nadzemné podlažie je zamerané na šport a wellness. Jeho väčšiu časť tvoria tenisové kurty, squash, fitnes a wellness, menšia časť je vyhradená na detské centrum.
Ďalšími doplnkovými funkciami je malá poliklinika a administratívne priestory. Majú samostatné vertikálne jadro s výhľadmi do parku. Prázdne miesta v átriu vypĺňajú ostrovy zelene na spestrenie výhľadov z bytov orientovaných do átria. Prechody medzi polyfunkčným centrom, bytmi a parkom tvoria terasy a bezbariérové komunikácie – rampy. K podstatným prvkom patrí doplnenie parteru o mestský mobiliár, zeleň a revitalizácia parku s detským a petangovým ihriskom, lavičkami, letnou šachovnicou, odpadovými košmi, výtvarnou plastikou, či stenou pre grafity.
Byty a obsadenosť
Prístup k bytom zabezpečujú výťahové jadrá umiestnené po obvode budovy. Pri bytoch bola zvolená široká škála bytov od malometrážneho „štúdia“ až po 4-izbové byty, ako aj veľkoryso riešené mezonety s terasami na najvyšších podlažiach. Súčasťou bytu je aj pivničný sklad a parkovacie miesta v suteréne. Výšková budova má vlastnú recepciu so strážnou službou. Prístup do obchodného centra je okrem hlavných vstupov z oboch úrovní v exteriéri aj priamo zo suterénu vertikálnym jadrom s výťahom a pohyblivým chodníkom.
Podľa zástupcu investora Michala Lukačoviča je v súčasnosti obsadených približne 85 % prenajímateľnej plochy obchodného strediska a počet predaných bytov sa pohybuje okolo 70 %. „Pri predaji bytov sme nerobili kompromisy, a to ani počas krízy,“ hovorí Michal Lukačovič. „Mali sme ceny konkurenčne optimálne nastavené. Samozrejme, ich predaj bol rôzny. Počas výstavby objekt Retra – približne do septembra 2008 – ich predaj len rástol. V roku 2009 sme nepredali žiadny byt, ale ľudia ich ani vtedy nepredávali. Aj preto sme presvedčení, že ľudia si u nás kupovali byty na bývanie, a nie na špekulatívne účely. Minulý rok sa predaj bytov už opäť rozbehol a dnes je už k dispozícii len necelá tretina bytov.“
Developer predával byty na troch úrovniach štandardu: základný štandard, ktorý je v cene bytu, a dva príplatkové štandardy. Tým sa eliminovalo niekoľkomesačné stavenisko, pričom výsledok bol efektívny. Cena bytov sa pohybuje okolo 1 800 eur za meter štvorcový.
Uplynulý mesiac Retro slávnostne sprístupnili pre verejnosť. Dnes je pripravené na návrat k pôvodnému centru Trávnikov a naplnenie ambície spoľahlivej prevádzky budovy so všetkými funkciami.
(pet)
Ľudo Petránsky
Foto: Dano Veselský
Opýtali sme sa Michala Lukačoviča, zástupcu investora

Pri Retre sme, podobne ako pri iných našich už zrealizovaných projektoch, chceli do prostredia, v ktorom sa nachádza, priniesť pridanú hodnotu rozšírenou funkciou objektu ako aj zaujímavou architektúrou. Či už v podobe tvarového riešenia a použitím stavebných materiálov, alebo aj výrazových prostriedkov. Miesto, ktoré bolo už pôvodne urbanistickým návrhom sídliska pomenované ako centrum Trávnikov, sme okrem pôvodného obchodu a služieb rozšírili o nové funkcie, akými sú bývanie, šport a voľnočasové aktivity, všetko navyše v oveľa vyššej kvalite ako predtým.
Bude sa prevádzka či vizuálna tvár polyfunkčného objektu Retro v priebehu najbližšieho obdobia ešte dokončovať, resp. vylepšovať?
Určite áno, sme týždeň po slávnostnom otvorení, niektoré nájomné prevádzky sa ešte dokončujú, obchodné priestory a plochy okolo objektu budú doplnené mobiliárom a ďalšou zeleňou, dokončuje sa značenie okolo objektu a navigácia k RETRU z rôznych smerov, športoviská v parku na Rumančekovej a pod. Celkovo sa všetky priestory musia ešte „zabývať“ či už návštevníkmi strediska, alebo aj majiteľmi bytov, ktorí si ich postupne preberajú a sťahujú sa do nich, a tým prinášajú život do celej budovy.
Čo vás viedlo k vytvoreniu množstva svetlíkov v stredisku? Uvažovali ste aj o negatívnych účinkoch, ako je preslnenie, prípadne poškodenie spôsobené pádom predmetu zvonku?
Množstvo svetlíkov má priniesť čo najviac denného svetla do vnútorných priestorov, okrem samotného pozitívneho psychologického efektu na ľudí zdržujúcich sa vo vnútri to má oporu aj v legislatívnych nárokoch na osvetlenie vnútorných priestorov. Pred a aj počas projekčných prác sme absolvovali množstvo návštev úspešne fungujúcich obchodných stredísk u nás a v zahraničí a všetkým dominovalo množstvo denného svetla v interiéri. Umiestenie svetlíkov, ich tvarové riešenie bolo navrhnuté tak, aby k negatívnym účinkom preslnenia a prehriatia vnútorných priestorov nedochádzalo, navyše v celom objekte je zrealizované efektívne chladenie, na ktoré sa používa voda z podzemných vrtov. Z hľadiska bezpečnosti pri páde predmetu zvonku sú zasklenia riešené ako bezpečnostné sklá, pri ktorých by nemalo prísť k ich deštrukcii.
Ako plánujete upraviť rozsiahle roviny plochých striech?
Na strechách obchodného strediska sa realizujú parkové úpravy s intenzívnou zeleňou.
Čím je podľa Vás Retro zaujímavé?
Určite tým, že sa v ňom nachádza množstvo funkcií od bývania cez nakupovanie, služby, kvalitné gastronomické zariadenia až po priestory aktívneho oddychu v športovom centre s posilňovňou, wellnessom, tenisom, bedmintonom a squashom v Retro sport & wellness. Najmenších má prilákať najväčšie interiérové detské ihrisko v Bratislave Retro kids.
Aký štandard vybavenia ste použili v obchodnom stredisku?
Štandardom v obchodnom stredisku sme určite na rovnakej úrovni ako prémiové obchodné strediská, napriek tomu, že Retro sami považujeme za lokálne stredisko určené na denné nákupy najmä obyvateľom Ružinova a jeho okolia. Svedčia o tom použité kvalitné materiály, ako je žulová dlažba, sklenené zábradlia, svietidlá a rôzne ďalšie dizajnové prvky a povrchové úpravy na stenách, stĺpoch a podhľadoch. Zvonku určite zaujme zvýraznený hlavný vstup z Nevädzovej ulice svietiacou markízou, odbornejšia verejnosť ocení použitý titánzinkový obklad fasády, prefabrikované prvky STO a kvalitné hliníkové výplne otvorov.
K diskutovaným otázkam patrí orientácia bytov. Aké výhody, resp. nevýhody majú byty v Retro?
Zloženie bytov v Retre zodpovedá lokalite, v ktorej sa nachádza. Náš predchádzajúci projekt Octopus je takisto v Ružinove a na ňom sa nám osvedčila kombinácia prevažne menších bytov. Vo výškovom objekte Retra sa nachádzajú byty vo vyššom štandarde vyhotovenia ako aj s recepciou vo vstupe, ostatné objekty ponúkajú kvalitné byty v strednom štandarde, vo vyšších podlažiach navyše s pekným výhľadom. Byty sú jednostranne orientované aj preplávajúce, všetky byty majú balkón alebo lodžiu, väčšina šatník, súčasťou bytu je pivničná kobka. Z pohľadu bezpečnosti, všetky priestory objektu sú monitorované kamerovým systémom.
Ako ste sa vyrovnali s nárazovými vetrom na vyšších poschodiach?
Je pravda, že s výškou narastá aj prúdenie vzduchu, my zatiaľ neregistrujeme výrazný rozdiel v súvislosti s vetrom pri bytoch na nižších a vyšších podlažiach.
(pet)
DETAIL: Rez šikmej fasády na polyfunkčnom objekte Retro v Bratislave
Zdroj: Ivan Bučko – Orpis
Článok bol uverejnený v časopise ASB.

















