Organický oblúk a vôňa lesa
Keď vkročíte do drevospracujúceho závodu v Čáslavi, ako prvá vám „padne“ do nosa nádherná vôňa živice, vinúca sa zo skladovaných kmeňov a hromady kôry. Hneď na druhý pohľad zaujme administratívna budova firmy Less & Timber. Dokazuje, čo všetko sa dá urobiť s drevom a ako elegantne to môže vyzerať. Autormi architektonického a urbanistického riešenia sú architekti K4.
Úlohou architektov bolo rozmiestniť niekoľko hál na spracovanie dreva na parcelu v katastri mesta s mnohými obmedzujúcimi podmienkami. Cez pozemok vedie napríklad ropovod, vysokotlakový plynovod a koľajisko železničnej vlečky, ktorých polohu a ochranné pásma bolo nevyhnutné pri rozvrhnutí stavieb rešpektovať. Pre architektov bolo zložité vtesnať na takýto limitovaný pozemok široký výrobný program, rozmiestniť haly výrobnej prevádzky tak, aby brali do úvahy tok materiálu a výrobných procesov. Všetko sa muselo stihnúť v presne danom termíne, na ktorý boli zo zahraničia objednané stroje pre pílnicu.
Najnepríjemnejšie obmedzenia nakoniec vydali orgány požiarnej ochrany. „Náš koncept spočíval v obalení výrobnej haly drevom symbolicky tak, aby bol naznačený výrobný proces: fasáda prvej haly by bola zo surového dreva, ďalšia z čiastočne opracovaného dreva a posledná z kvalitnej preglejky. Bohužiaľ, požiarne predpisy to neumožnili. Tu sme dostali zásah a investor tiež – bol prekvapený, že to, čo sa dá na západe bežne stavať, je u nás nemožné,“ hovorí architektka Zdena Němcová, vedúca projektu z kancelárie K4.
„Vo Fínsku nedávno postavili z dreva šesťposchodový obytný dom a v susednom Rakúsku vznikne ročne 18 až 22 percent drevostavieb,“ hovorí riaditeľ čáslavského závodu Marek Brandejs. V Nemecku je bilancia nižšia, napriek tomu aj tu možno stavať domy z dreva, vrátane viacposchodových a v rámci mesta. Opláštenie výrobných prevádzkok je nakoniec z vodorovne ukladaného trapézového plechu, prevažujúcu bielu farbu fasád oživujú zelené vodorovné pruhy. Drevo sa uplatnilo aspoň v nosnej konštrukcii strechy hál v podobe lepených nosníkov a utilitárnych vstavieb. Vnútorný priestor pílnice, ktorá je srdcom drevospracujúceho závodu, je jednopodlažný s dvojposchodovou vstavbou v severnej časti hlavného krídla. Objekt je navrhnutý ako štvorloďová halová konštrukcia v tvare písmena L so železobetónovými stĺpmi a drevenými plnostennými lepenými väzníkmi alebo priamopásovými strešnými väzníkmi. Rozpätie haly je 24 metrov. Ako uvádza dodávateľ väzníkov, závod Tesko: „Všetky väzníky a prievlaky staticky pôsobia ako jednoduché nosníky, sú vyhotovené z lepeného lamelového dreva triedy GL 24h a vyrobené s nadvýšením. Konštrukcia je v strešnej rovine priestorovo stužená lepenými pozdĺžnymi stužovadlami a lepenými zavetrovacími diagonálami.“
| Drevospracujúci závod firmy Less & Timber Miesto: Chrudimská 1882, Čáslav Investor: Less & Timber, s. r. o. Architekt: K4, a. s. – Ing. arch. Zdena Němcová, Ing. arch. Jan Lacina Hlavný inžinier projektu: K4, a. s. – Ing. Alice Kostíková Začiatok realizácie: jún 2008 Koniec realizácie: 2009 |
–>–>
V rannom lese
Proporcie a dispozície výrobných hál boli dané rozmermi drevospracujúcich strojov, preto tu nebol priestor na architektonické kreácie. O to viac bolo možné uplatniť architektonický jazyk na administratívnej budove – vedenie spoločnosti totiž počas príprav projektu postupne dospelo k názoru, že píla v Čáslavi má slúžiť ako modelový príklad modernej prevádzky v Českej republike a pôvodne jednoduchá správna budova bude vizitkou pre návštevy.
Organický lomený oblúk z lepených väzníkov vyplnených hranolmi je najatraktívnejšou konštrukciou budovy. „Majiteľ firmy, riaditeľ aj manažér projektu prichádzali s nápadmi na rozličné inovácie a súčasné moderné prvky. Pôvodne sme navrhovali tienenie, ktoré sa bude rozširovať smerom k výrobnej časti aj vo vertikálnom smere s použitím viacerých expresívnych tvarov. Po dlhšej diskusii s majiteľom Jánom Mičánkom sme dospeli k organickému vzhľadu, ktorý mäkšie prepisuje prírodnú podstatu materiálu,“ hovorí Zdena Němcová.
„Tienenie má v návštevníkoch vyvolať pocity, ako keď sa ráno prechádzate lesom a medzi stromami presvitá slnko,“ dodáva Jan Lacina, kolega z autorského tímu. Tomuto dojmu napomáha aj rozložitý strom v tesnej blízkosti budovy, ktorý sa vetvami medzi hranolmi prepletá a prerastá k fasáde. Oblúk lepených väzníkov skrýva predsadené balkóny pri kanceláriách na prvom podlaží.
Nosnú konštrukciu tvorí železobetónový monolitický skelet so stĺpmi v trojtrakte. Opláštenie budovy je zasklené v hliníkových rámoch fasádneho systému Schüco, farbu skla predurčili firemné farby – zvolená zelená je v optimistickom odtieni, ktorý pripomína listy stromov na jar. Na zasklenie sa použil sieťotlačový vzor.
Dispozícia budovy je jednoduchá – na prízemí sa nachádza vrátnica, ktorá je od hlavnej hmoty oddelená z dôvodu prehľadu o pohybe kamiónov či osôb. V hlavnej hmote budovy je vstupná hala, sociálne zariadenia a jedáleň. Vstupná hala je prepojená s prvým poschodím otvorenou galériou. Stena na prízemí sa využila ako oporná stena pre niekoľko popínavých rastlín, ktoré dosahujú úroveň prvého poschodia – dekorácia na prianie investora. Prepojenie prízemia s prvým poschodím sa tak čiastočne zakrýva. Na prvom poschodí sú kancelárie so zázemím a salón pre významných hostí. Časť galérie prechádza na terasu krytú pred vetrom, ktorá je prepojená s reprezentačným salónikom aj foyer a možno ju využiť na firemné spoločenské akcie.

Orientáciu salónika na prvom poschodí zvolili architekti tak, aby poskytoval výhľad na areál. Prípadného hosťa pri pohľade zo salónika hneď zaujmú majestátne kmene poskladané na seba a z ich stredu vyrastajúci komín, ktorý tu zostal po pôvodnej prevádzke. „Pán Mičánek má silný vzťah k histórii a komín symbolizuje historickú kontinuitu miesta, pretože píla tu stála už v 19. storočí,“ hovorí Marek Brandejs.
Návrh interiéru reprezentatívneho salónika investor zadal firme AMOS Design. Interiéru salónika dominuje veľký guľatý stôl zo zebrana, z materiálov prevláda drevo, lesklý kov a koža. Deliace steny medzi salónikom a foyer, obložené dubovou latovkou, pretepľujú interiér a v kombinácii s nábytkom pôsobí celok elegantne. Za pozornosť stojí aj barový stôl vo foyer zložený z rozlične posunutých kvádrov masívu, takže vyzerá ako drevená stavebnica.
Úsilie zľudštiť areál ďalšou zeleňou viedla v neskoršej fáze k osloveniu ďalšieho architektonického štúdia, tentoraz Luďka Rýznera a jeho OK Plan. Štúdio navrhlo v spolupráci so záhradným architektom Zdeňkom Sendlerom popínavú zeleň vo vstupnej časti areálu. Vstup tvorí hranatá brána z oceľového pletiva a pozdĺž oplotenia sú šikmé stĺpiky s popínavými rastlinami. OK Plan navrhol aj mobilnú zeleň – stromy, ktoré bude možné sťahovať tak, aby neprekážali výrobnej prevádzke.
Technologickou zaujímavosťou drevospracujúceho závodu v Čáslavi je vlastná kogeneračná jednotka, v ktorej sa spaľuje kôra – teda obnoviteľný zdroj. Vyrobené teplo z tejto elektrárne (10 MWp) využívajú sušiarne dreva, elektrina (5 MWp) sa predáva do siete ako zelená energia, teda za dotovanú cenu. Piliny a štiepka sa využívajú na výrobu drevotrieskových dosiek a ďalších materiálov na báze dreva. Závod tak neprodukuje nijaký odpad.
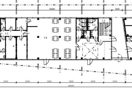
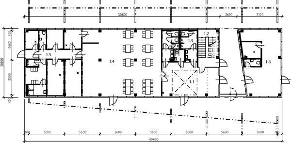
Pôdorys 1. NP administratívnej budovy
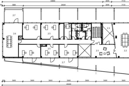
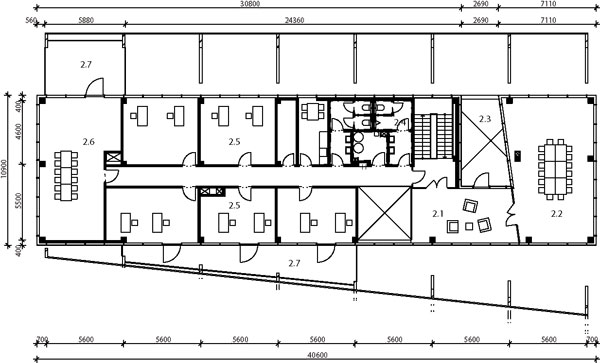
Pôdorys 2. NP administratívnej budovy
Pozdĺžny rez administratívnou budovou
Situácia – administratívna budova s parkoviskom a vjazd do areálu pre kamióny
Iva Nachtmannová
Foto: Dano Veselský
Výkresy: K4, a. s.
Článok bol uverejnený v časopise ASB.


















