OC Jarošova: V správnej lokalite
Hoci je situácia na realitnom trhu nepriaznivá, investori stále hľadajú svoje miesto na trhu. Zdá sa, že v prípade prázdnej budovy na Jarošovej ulici v Bratislave našli svoj recept na úspech.
Administratívnu budovu postavil v roku 1974 Spojprojekt, ktorý potom v budove aj sídlil. Neskôr patrila Slovenským telekomunikáciám. Autori rekonštrukcie architekti Adrian Mórocz a Michal Tačovský v súvislosti s bývalými majiteľmi a užívateľmi poznamenali: „Budova bola kvalitne postavená a dobre udržiavaná. Navyše, ako spojári mysleli pragmaticky, takže sme pred modernizáciou našli naozaj veľkorysé šachty na vedenie rozvodov.“
Pri rekonštrukcii objektu išli až po obnaženie nosných konštrukcií. Oceľový skelet s plechovými stropmi dostal protipožiarny nástrek, na betónovú vrstvu nad vlnitými plechmi stropov vyliali nové anhydridové podlahy a nosné stĺpy obalili sadrokartónom. Výťahové šachty aj kabíny ostali pôvodné, ale prešli zásadnou renováciou a úpravou podľa platných noriem a štandardov. Pôvodná ostala aj zavesená fasáda z ľahkých murív. Dokonca aj kvalitné travertínové obloženie na bočných fasádach a v interiéroch stačilo iba vyčistiť vodou pod vysokým tlakom a architekti len vymenili poškodené kusy. Zreparovanú kostru budovy doplnili úplne nové rozvody vody, kanalizácie a vykurovania, elektroinštalácie a systém vetrania na únikových schodiskách a v hygienických priestoroch. Tie sú tiež kompletne vynovené, dokonca ani nebolo potrebné rozšíriť ich kapacitu.
Sivá a zelená
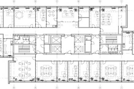
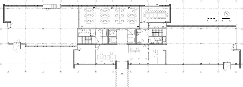
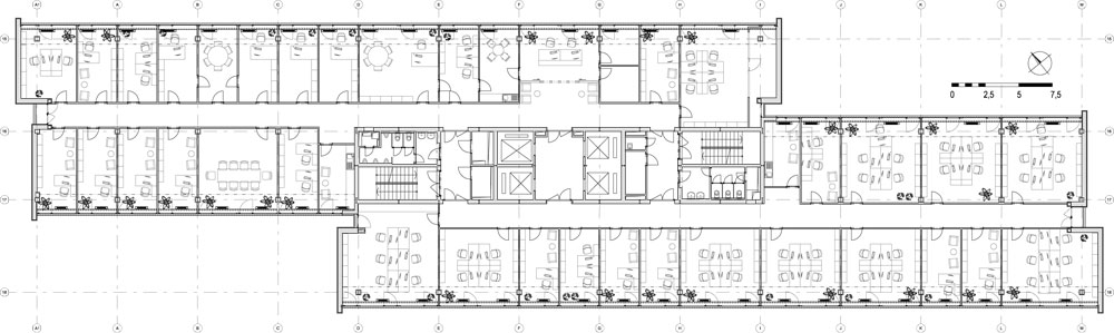
Uličná a dvorová fasáda dostali nový vzhľad. Keďže je stavba po dĺžke mierne posunutá smerom od ulice, vytvára dva bloky. Veľkú plochu hlavných fasád sa tak podarilo rozdeliť na menšie úseky. Nosný systém predurčil veľkosť okien, otváravý kus má šírku 1 meter a neotváravé kusy 2 metre. Okná na vstupnom podlaží sú hliníkové, na ostatných podlažiach plastové s vonkajším hliníkovým klip rámom v kontrastnej antracitovej farbe. Vždy po troch metroch je vložený medzikus, ktorý umožní vnútorné členenie kancelárskych priestorov na rôzne veľkosti s násobkom 3 metre. Okenný raster v horizontálnych pásoch strieda buď kontaktný zatepľovací systém s omietkou na povrchu, alebo plechový obklad v sivej farbe. Striedmu farebnosť budovy oživujú dva odtiene vložených zelených pásikov.

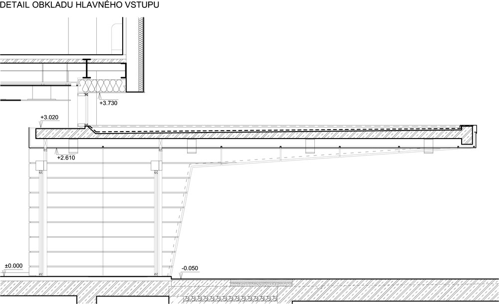
Výraznou zmenou prešli vstupné priestory a recepcia. Budova mala pôvodne tri rovnocenné vstupy s výraznou markízou zo železobetónu. Aby architekti zvýraznili stredný hlavný vstup, dali markízy nad bočnými skrátiť, vďaka čomu sa vytvorila jasná hierarchia. Markízy sú obložené hliníkovým plechom, hlavná v zaujímavom detaile prechádza cez sklenenú stenu až do interiéru. Priestranný foyer vypĺňa recepcia a sedenie pre návštevy. Originálny podhľad z kaziet typu Armstrong v tvare kruhu odkazuje na logo investora.
Administratívna budova je zrekonštruovaná na štandard B+. Aby ašpirovala na vyšší štandard, museli by architekti do projektu zapracovať systém klimatizácie a riadeného vetrania. Túto požiadavku nebolo možné splniť práve pre existujúcu konštrukčnú výšku podlaží. Inštalácia klimatizačných potrubí by znížila svetlú výšku kancelárskych priestorov, čo by zase ovplyvnilo ich celkový komfort. Rovnako sa nedali vyriešiť dvojité podlahy na rozvody, najmä dátové. Tie sú vedené v parapetoch a sadrokartónových priečkach.
Parkovací dom
Na druhej strane má objekt dobrú polohu hneď vedľa hlavných dopravných ťahov a svojim nájomníkom ponúka dostatok parkovacích miest. Ako pripomenuli autori, mysleli aj na možné zvýšené požiadavky na statickú dopravu a stavebne je už predpripravená prístavba jedného podlažia parkovacieho domu s ďalšími tridsiatimi státiami. Parkovací dom sa podarilo umiestniť pred samotnú administratívnu budovu bez toho, aby pôsobil rušivo či robustne. Dve podlažia garáže sú zapustené tak, že jej strecha vytvorila nový bezbariérový vstup do objektu.
–>–>
Známa lokalita
Nové kancelárske priestory si veľmi rýchlo našli aj klienti. Zaujímavé je, že tí najväčší z nich sa presťahovali do OC Jarošova z neďalekých objektov. Pre nájomníkov bolo podstatné ostať v známej lokalite. Ukázalo sa, že je to výhoda aj pre zamestnancov, ktorí nemuseli meniť svoju dopravnú logistiku. Keďže bol záujem, pre klientov zriadil developer v rámci parkovacieho domu aj miestnosť na bicykle s príslušenstvom.
Pragmatických nájomníkov oslovuje najmä pomer ceny a štandardu vynovených priestorov bez nadbytočného luxusu.
| OC Jarošova Miesto: Jarošova ulica, Bratislava Investor: GTC Autori: MOROCZ_TACOVSKY, s. r. o. Ing. arch. Diana Astrabová,Ing. arch. Adrian Mórocz, Ing. arch. Juraj Mihálik, Ing. arch. Michal Tačovský, Ing. arch. Branislav Draškovec, Ing. arch. Dagmar Jurovatá Začiatok rekonštrukcie: 2009 Ukončenie rekonštrukcie: 2010 Plocha kancelárskych priestorov: 11 000 m2 Plocha obchodných priestorov: 1 000 m2 Počet parkovacích miest: 186 Inžiniering a manažment rekonštrukcie: ENG 2 Fasáda: Dektrade Okná: Uniteam Koberce: Koratex Vnútorné konštrukcie: MPL Slaboprúdové inštalácie: Nectel Kúrenie, vetranie, klimatizácia a čerpadlá: MF Team Parkovací dom: Konti Repasovanie výťahov: ThyssenKrup |
Pôdorys prízemia
Pôdorys typického podlažia
Priečny rez
Situácia
TEXT: Mária Nováková
FOTO: Dano Veselský
DOKUMENTÁCIA: MOROCZ_TACOVSKY
Článok bol uverejnený v časopise ASB.



















