Nové technicko-prevádzkové centrum na Záhorí
Začiatkom roka sme vám priniesli článok o novom sídle Divízií obchodu a služieb SPP v Bratislave. Netrvalo dlho a na svete je ďalší plynárenský objekt – tentoraz bola investorom Nafta, a. s., dcérska spoločnosť Slovenského plynárenského priemyslu. Nová technicko-prevádzková budova slúži potrebám centrálneho riadenia technologických zariadení spoločnosti. Jej súčasťou je centrálny dispečing na riadenie celého areálu zásobníkov plynu na Záhorí.
Budova sa nachádza v severnej časti intravilánu obce Plavecký Štvrtok, blízko existujúceho areálu technologických zariadení spoločnosti. Zo severu ohraničuje pozemok potok, z východu sa napája na verejnú komunikáciu. Stavba susedí s obytnou lokalitou, kde v budúcnosti obec plánuje výstavbu rodinných domov a obytného súboru. Aj preto sa autor snažil budovu veľmi citlivo včleniť do prostredia.Stavebný objekt je navrhnutý ako 3-podlažná samostatná budova s 2-podlažným koncovým traktom, v ktorom sa nachádza riadiace centrum. Sedlová strecha, ako aj fasáda obložená z lícových tehál v kombinácii so šedou silikátovou omietkou korešpondujú s rázom okolitej vidieckej zástavby. Tradičnú oranžovú tehlu dotvárajú jednoduché zasklené línie, situované v nárožiach budovy. Na zasklených stenách je zavesená hliníková fasáda so slnolamami.

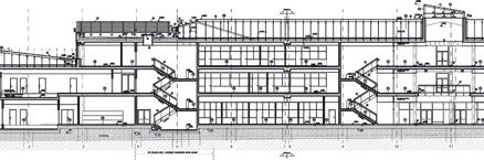
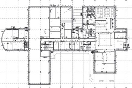
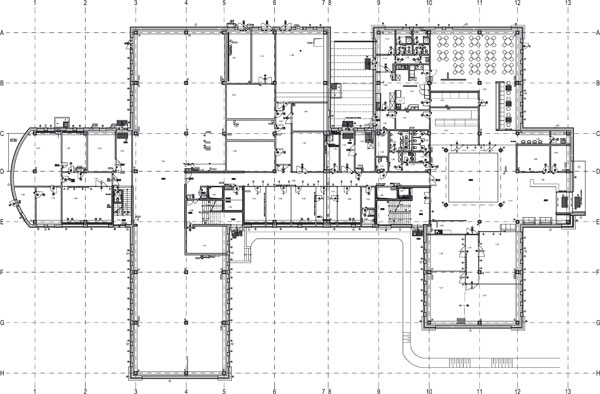
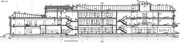
Členenie budovy vychádza z jej funkčno-prevádzkových vzťahov. Hlavný objekt má pavilónový charakter. Základná dispozičná os nadväzuje kolmo na prístupovú komunikáciu s hlavným vstupom a na bočné trakty. Tie sa na každom podlaží napájajú na hlavnú horizontálnu komunikáciu s dvomi schodiskami. Vstupné foyer má otvorený charakter, priestor vertikálne prechádza cez dve podlažia. „Súčasťou prízemia sú rokovacie priestory, jedáleň s ohrevom a výdajom stravy či bufetom. Ďalej technologické priestory na vykurovanie, vzduchotechniku, rozvodňu NN, servery a priestor registratúry na archivovanie dokladov,“ hovorí Ivan Šurina zo spoločnosti TDI-Kompleting, ktorá vykonávala stavebno-technický dozor počas realizácie stavby.
„Druhé a tretie podlažie slúžia ako administratívne pracoviská, majú bunkové kancelárie predelené montovanými, z väčšej časti zasklenými deliacimi konštrukciami,“ dodáva. Každé podlažie má sociálne zariadenia a oddychové priestory s čajovými kuchynkami. „Samostatnú časť tvorí dvojpodlažný koncový trakt, kde je umiestnený centrálny dispečing na riadenie celého areálu zásobníkov plynu. Aj keď centrum tvorí vizuálnu súčasť budovy, ide o samostatný trakt s vlastným vstupom a vertikálnym komunikačným prepojením,“ podotýka Ivan Šurina.

Vzhľadom na terén – piesčité podložie, vysoká úroveň spodnej vody a blízkosť potoka – sa stavba zakladala na pilótach a objekt sa umiestnil na násype. Konštrukcia budovy je navrhnutá z monolitického betónu, obvodový plášť z tehlového muriva. Strecha pozostáva z drevených klincovaných väzníkov, na ktorých je drevený záklop a plechová krytina.
„V krížení striech vo východnej časti objektu sa nachádza strešný svetlík s rozmermi 5 × 5 m z oceľovej konštrukcie, opláštený zaveseným fasádnym systémom s bezpečnostným sklom. Osvetľuje priestrannú chodbu na treťom podlaží,“ hovorí Ivan Šurina. V mieste kríženia striech v západnej časti architekt navrhol plochú strechu, na ktorej uložili zariadenia vzduchotechniky. Strecha je prístupná obsluhe strešným otvorom zo schodiska. Z tohto miesta je tiež možný prístup servisnými dvierkami do medzistrešného priestoru sedlových striech.

Okenné výplne sú z hliníka a plastu. Otváravé okná v zavesenej fasáde sa nachádzajú len v schodiskách. V nadpraží je navrhnutý predĺžený okenný profil, na ktorý nadväzuje z vnútornej strany podhľad a zo strany exteriéru vonkajšia hliníková žalúzia. Lamely žalúzií vedú bočnými vodiacimi lištami a ovládajú sa mechanicky.
Okolie objektu je dotvorené terénnymi úpravami, areálovými komunikáciami a spevnenými plochami, ako aj výsadbami novej zelene.

Stavba je vykurovaná zemným plynom. Chodby a haly majú podlahové vykurovanie, kancelárie radiátory a v miestach schodísk, pri zasklených častiach, sa osadili vykurovacie konvektory. Z hľadiska energetickej certifikácie možno budovu zaradiť do skupiny B. „Svoj podiel na tom určite nesie aj zateplenie budovy. Na fasádu budovy sa použila vrstva polystyrénu hrubá 10 centimetrov, strop je zateplený tromi vrstvami minerálnej vlny s celkovou hrúbkou 30 cm. Tá sa uložila priamo na stropnú železobetónovú dosku,“ hovorí Ivan Šurina.
„Náklady na spotrebu energie znižuje tiež systém vzduchotechniky, ktorý využíva rekuperáciu vzduchu,“ dodáva. Všetky priestory sú vybavené systémom chladenia a vzduchotechnikou na hygienickú výmenu vzduchu bez potreby vetrať. Serverovne využívajú vlastný chladiaci systém. Priestory archívu a serverovní sú vybavené stabilným, plynovým hasiacim zariadením (SHZ).
Pôdorys stavby
Rez
Predný pohľad

Miesto: Plavecký Štvrtok
Investor: Nafta, a. s., Naftárska 965, 908 45 Gbely
Generálny zhotoviteľ: ZIPP Bratislava, spol. s r. o.
Architekti:Ing. arch. Ľuboslav Mlynarčík
Generálny projektant: Proma, s. r. o.
Hlavný inžinier projektu: Ing. arch. Ľuboslav Mlynarčík
Architektúra: Ing. arch. Ľuboslav Mlynarčík
Stavebné konštrukcie: Ing. arch. Ján Šoltés
Statika: Ing. Miroslav Kováčik, Ing. Jánsky, Ing. Bobačic
Územné rozhodnutie: SÚ-61/2008
Stavebné povolenie:SÚ-398/2008
Začatie výstavby: 06/2008
Ukončenie výstavby: 07/2009
Počet podzemných podlaží: 0
Počet nadzemných podlaží: 3
Kapacita budovy: 135 osôb
Parkovacie miesta: 96
Zastavaná plocha: 2 360,70 m2
Celkový obostavaný priestor: 31 135,00 m3
Celková úžitková plocha: 4 934,48 m2
Celková podlažná plocha: 5 061,46 m2
Kancelárska plocha: 4 520,38 m2

Zemné práce, železobetónové konštrukcie: Techservis, s. r. o., Karovič, Ehrstav, s. r. o., STAS stavby a sanácie, s. r. o., SVP, a. s., závod Dunaj, Terratest, s. r. o.
Vykurovanie, chladenie, vzduchotechnika: Sakmont, s. r. o., Klimatech, s. r. o.
Prvky suchej výstavby: Orco, s. r. o.
Zateplenie: Fabrick SK, s. r. o., Promontal, s. r. o.
Strecha: Drevo IN, s. r. o., Finnforest, s. r. o.
Sanita: Sakmont, s. r. o.
Hydroizolácie: Wandex, s. r. o.
Výťahy: Thyssen Group, s. r. o.
Rozvody vysokého napätia: Enermont, s. r. o.
Dvere: Lamelland, s. r. o.
Priečky: LIKOS, s. r. o.
Osvetlenie: PS Elmont, s. r. o.
Riadiaci systém budovy:Elimer, s. r. o.
Podlahy a vyrovnávacie potery: Eko Bau, s. r. o., Fasádne štúdio, s. r. o., Krošlák
Fasády: RI Okna, a. s., Fabrick SK, s. r. o.
Miriam Turancová
Foto: Dano Veselský
Grafická časť: Proma
Článok bol uverejnený v časopise ASB.














