Nová budova vydavateľstva JAGA slúži otvorenej spoločnosti
Sedemnásťročný príbeh vydavateľstva JAGA napísal svoju novú kapitolu. Realizáciou vlastnej budovy v Lamači vydavateľstvo zhmotnilo svoje predstavy o dobrej architektúre a do života zároveň uviedlo ústrednú náplň svojej vydavateľskej činnosti: stavebnú prax. Pod novostavbu administratívnej budovy vydavateľstva JAGA sa podpísal bratislavský architektonický atelier 3M, ktorý svoju základnú ideu vpísal už do pôdorysu naznačujúceho otvorenú knihu. Obsah vnútra budovy sa prejavil aj na fasáde v podobe prelínania dvoch hmôt – bielej, grafickej – vyjadrujúcej vydavateľskú činnosť a tmavosivej, technicistickej – obloženej pásovými oknami, ktorá zasa charakterizuje administratívu a jej racionálnou prevádzku.
Príbeh pokračuje
Kopať sa začalo 1. júla 2008, čo je dnes dátum pripomínajúci adrenalínovú jazdu. Leto spred dvoch rokov už bolo vlastne súmrakom hviezdnych chvíľ slovenského stavebníctva. Pätnásteho septembra padla štvrtá najväčšia investičná banka v Spojených štátoch Lehman Brothers, ktorá postavila do pozoru aj Európsku centrálnu banku a spôsobila celosvetové finančné tsunami.
Hrubá stavba budovy JAGA sa ocitla v situácii, keď sa utlmili alebo úplne odložili mnohé ďalšie projekty na Slovensku. Dokončovanie budovy sa zase uskutočňovalo v období, keď slovenské stavebníctvo spadlo o niekoľko poschodí dolu a kríza sa stala najskloňovanejším slovom roka. Otvorená kniha pôdorysu sa však už nezavrela, kapitola bola odsúdená na dokončenie. Jej posledné riadky sa písali koncom novembra uplynulého roka, keď sa pracovníci vo vydavateľstve JAGA presťahovali do nových priestorov. Posledná veta bola napísaná 22. marca 2010, keď bolo slávnostné otvorenie administratívnej budovy JAGA. Príbeh však pokračuje…

Lokalita sľubovala priaznivú polohu pre viditeľnú propagáciu budovy. Avšak samotný pozemok, pozdĺžne vsunutý medzi dvoch susedov a z tretej strany ohradený oporným múrom oddeľujúcim parcelu od neďalekej diaľnice, bol už náročnejšou výzvou. Cieľ investora – vyťažiť z pozemku maximum – bol jednoznačný. Z tejto definície sa odvíjala úloha architektov – vymyslieť dizajn budovy.
„Aj ten sa však výrazne vyvíjal počas nespočetných debát a úvah,“ hovorí Ing. arch. Marián Pokrivčák, jeden z konateľov Atelieru 3M, ktorý si investor vybral po výberovom konaní. „Filozofiou výsledného návrhu je prelínanie dvoch hmôt, bielej a tmavosivej. Biela má vyjadrovať hravosť časopisov, sivá zase prísnosť administratívy, ktorá sleduje fungovanie prevádzky.“

Aj z diaľky pôsobí budova ako homogénny celok, ktorého sebavedomie však nechce potlačiť kontext územia a potenciálne stavby susedov. Výrazovú energiu berie zo svojho vnútra, ktoré sa v pravdivom pomere odráža aj na fasáde. Snahou bolo vytvoriť dobrú architektúru, ktorá nadobúda presvedčivosť v prevádzke. Slovami investora – išlo o fungujúci organizmus, ktorý bude mať svoju charakteristickú corporate identity. A to bol aj jeho ďalší cieľ – aby nehnuteľná referencia vyjadrovala kvalitu úrovne vydavateľských produktov zaoberajúcich sa architektúrou a stavebníctvom.

Investora a architekta dopĺňal v tradičnom trojuholníku generálny zhotoviteľ, ktorého hlavná úloha spočívala vo výstavbe hrubej stavby. Jej súčasťou bola aj koordinácia všetkých profesií, pričom podľa zmluvy si mohol investor nominovať aj ďalších dodávateľov.
„Z hľadiska mojej skúsenosti je príprava alfou a omegou úspechu,“ tvrdí Oto Bortlík, konateľ spoločnosti ise – generálneho zhotovovateľa stavby. „A tá obsahuje aj precíznu projektovú dokumentáciu. V nej sú zachytené predstavy investora, ale aj autorské zámery, výtvarné inšpirácie, zakomponovanie noriem – jednoducho všetko, čo napomáha fungujúcej budove. V prípade administratívnej budovy JAGA tieto predpoklady fungovali.“
Výsledkom je dielo, za ktorým je niekoľkomesačná práca tímu ľudí. Dielo, zložené z neživotných vecí, ktoré vytvárajú špecifickú atmosféru. Poskladanie prvkov však nie je len architektonickou kompozíciou, ale aj koncentrovanou logistikou nadväznosti konštrukčných prvkov. Ich supervízorom bola v tomto prípade spoločnosť TDI-Kompleting, s. r. o., ktorá dozerala tak na kvalitu vyhotovenia, ako aj na investorove peniaze s uplatnením dlhoročných skúseností jej konateľov Ing. Ivana Šurinu, Ing. Miroslava Síberta a technického dozoru Ing. Mariána Kaššáka v investičnej výstavbe.

Úspora finančných prostriedkov sa generovala najmä cez možnosť vstupu do zmluvy, kde bolo zapracované právo nominovať celú dodávku aj materiál. Vznikol tak priestor na výberové konanie dodávateľov a cenové rozpracovanie ešte počas výstavby.
Konštrukcia a unikátny systém vykurovania
Pri konštrukcii začnime statikou budovy. Stavebná jama je od diaľnice ako aj od susedných pozemkov zabezpečená veľkopriemerovými 300 mm betónovými pilótami v rastri so vzdialenosťou 100 cm. Suterén sa riešil ako železobetónová vaňa s vodonepriepustnou konštrukciou. „Aj preto sme už nemuseli pridávať ďalšie hydroizolačné vrstvy, stačilo utesniť pracovné spoje medzi doskou, stenami a jednotlivými zábermi betonáže,“ upresňuje M. Kaššák.

K unikátom technického vybavenia budovy patrí systém vykurovania založený na tepelnom čerpadle, ktoré pracuje systémom vzduch – vzduch. Energiu, ktorú tepelné čerpadlo zoberie z vonkajšieho vzduchu, odovzdá prostredníctvom freónového rozvodu a interiérových parapetných fancoilov do vzduchu v kanceláriách. Tým sa podarilo efektívne zväčšiť možnosti použitia tepelného čerpadla na vykurovanie až do vonkajšej teploty mínus 20 stupňov bez iného alternatívneho zdroja vykurovania (elektrokotolňa). Systém ide v lete na opačný chod, pričom z budovy odoberá teplo a odovzdáva ho do vzduchu, čiže ho klimatizuje. Ide o renomovaný systém VRV Daikin, ktorý by mal oproti vykurovaniu elektrickou energiou priniesť až polovičnú úsporu elektrickej energie.
K zaujímavostiam patrí aj odvod vody, ktorá vzniká na stavbe – či už dažďovej alebo splaškovej. V blízkosti objektu nebola možnosť napojiť sa na kanalizačný systém. Projekt preto riešil odvádzanie dažďovej vody do vsakovacieho systému a splaškovej do veľkokapacitnej žumpy. V priebehu výstavby sa z iniciatívy investora a v spolupráci s hydrogeológom navrhlo riešenie pomocou čističky odpadových vôd a následne vypúšťanie do vsakovacieho systému. Náročnosť skladby podložia nakoniec viedla hydrogeológa k návrhu sústavy vsakovacích studní navzájom prepojených drenážnym potrubím tak, aby celý systém mal dostatočnú kapacitu na retenciu vody, ktorá v priaznivejšom období odteká do podložia.
Otvorená spoločnosť

„Nešlo o vytvorenie dojmu kontroly, ale atmosféry dôvery, či otvorenej spoločnosti,“ zdôrazňuje zástupca investora Ing. arch. Marek Pavlásek, ktorý spájal predstavy architektov a priestorové nároky jednotlivých oddelení. Stál aj za procesom vzniku konečného vizuálu interiérových prvkov, ich farebného zladenia, ale aj akcentovania symbolických detailov. „V tejto súvislosti by som chcel vyzdvihnúť spoluprácu so spoločnosťou TDI-Kompleting,“ dodáva Marek Pavlásek. „Je dobré mať dôveryhodný technický dozor, ktorý dohliadne na výber dodávateľov. Ušetrí to veľa peňazí a zabezpečí kvalitu diela.“
„Náročnosť spravovania budovy bola vykompenzovaná možnosťou ’ušiť si’ priestory na mieru,“ uzatvára filozofiu prístupu výkonný riaditeľ vydavateľstva JAGA Marián Haršány. „Za veľké plus považujem aj priestorovú rezervu a možnosť ostať na jednej adrese aj v prípade ďalšej expanzie. No a v neposlednom rade sme cítili potrebu vyvrátiť pravidlo, že obuvníkove deti chodia bosé. Pre vydavateľstvo, ktoré píše o architektúre, kvalite bývania a inšpiruje svojich čitateľov, je budova v ktorej sídli, jasným zrkadlom. A rovnaký, možno kritickejší pohľad majú naši partneri. Teší ma preto, že doterajšie pozitívne ohlasy na budovu a jej priestory potvrdili správnosť nášho uvažovania.“
Rez
Administratívna budova JAGA je teda uvedená do života a za sebou má takmer štyri mesiace prevádzky. Tá býva pravdivým odrazom správnosti konceptu a pozitívne informácie to potvrdzujú. Reprezentačné poslanie a administratívna funkcia sa spájajú do organického celku – otvorená spoločnosť je pripravená na impulzy stavebného trhu…
Administratívna budova JAGA
Miesto: Mestská časť Bratislava – Lamač
Investor: JAGA GROUP, s. r. o.
Generálny projektant: Atelier 3M, s. r. o.
Autori:
Ing. arch. Marián Pokrivčák
Ing. arch. Monika Štekláčová
Spolupráca: Ing. arch. Ľubica Ornthová
Začiatok výstavby: júl 2008
Koniec výstavby: november 2009
Náklady na stavbu: 2,2 mil. eur
Plocha pozemku: 1 183 m2
Zastavaná plocha: 406 m2
Obstavaný priestor: 7 050 m3
Úžitková plocha:
1. PP – 495 m2
1. NP – 393 m2
2. NP – 397 m2
3. NP – 395 m2
4. NP – 320 m2
Dodávatelia stavby
Hrubá stavba: ise, s. r. o.
Zatepľovací systém, vnútorné omietky: Cemix, s. r. o.
Strešné izolácie proti vode a vlhkosti: IZOFINAL, s. r. o. / Icopal
Tepelné izolácie (strecha, fasáda, podlahy, strop suterénu): ise, s. r. o. / Isover
Vnútorné priečky: ise, s. r. o. / Rigips / Ytong
Interiérové zasklené steny a svetlíky: LIKO – S, spol. s r. o.
Interiérové zasklené steny, garážová brána: Arcus International, a. s.
Výplne otvorov s požiarnou ochranou: PYROBATYS, a. s.
Záchodové deliace steny: P.M.H. Invest & Trade, spol. s r. o.
Kazetové podhľady: MONT-STAVING, s. r. o.
Fasádne výplne otvorov: NOVES okná, s. r. o.
Exteriérový obklad: TOR, spol. s r.o. / Dekmetal, s. r. o.
Klampiarske konštrukcie: IZOFINAL, s. r. o.
Zámočnícke výrobky: ELKONET, spol. s r. o.
Vonkajšie a vnútorné parapety: UNITEAM, a. s. / REHAU, s. r. o.
Interiérové maľby: ise, s. r. o. / JUB, a. s.
Interiérové dlažby a obklady: W.A.W., s. r. o.
Terazzové obklady schodiskových stupňov: KONZULTA Trenčín, s. r. o.
Plastové podlahy Twinson (vonkajšie terasy): Deceuninck, spol. s r. o.
Koberce: KORATEX, a. s.
Čistiace rohože: Ing. Miroslav Bellay – MBM mat
Interiérové dvere: EKOMA design, s. r. o.
Interiérové dvere: MPL TRADING, s. r. o.
Interiérové dvere: Wolseley Slovakia, s. r. o.
Exteriérové a interiérové žalúzie: MARKOB, spol. s r. o.
VRV systém, centrálny riadiaci systém: KLIMA KONZULT, spol. s r. o. / DAIKIN
Vzduchotechnika: KLIMA KONZULT, spol. s r. o.
Silnoprúd, núdzové svietidlá, rozvádzače, poplachový systém narušenia, kamerový systém, štruktúrovaná kabeláž, dochádzkový systém: ABB, s. r. o.
Svietidlá, svetelné reklamy: JORVIK, s. r. o. / info systems, s. r. o.
Výťah: Schindler, a. s.
Centrálny vysávač: CEVYS, spol. s r. o.
Projekt zdravotnotechnických inštalácií: GMW, s. r. o.
Zdravotná technika, montáž zdravotnotechnických zariaďovacích predmetov: Ing. BENCKO Štefan
Zdravotnotechnické zariaďovacie predmety: DEA, s. r. o.
Sprchovacie WC: Geberit Slovensko, s. r. o.
Vodovodné batérie: Hansgrohe CS, s. r. o.
Vykurovanie rampy: DEVI, s. r. o.
Projekt vsakovacieho systému: HYDRANT, s. r. o.
Odlučovač ropných látok, vsakovacie studne: KLARTEC, spol. s r. o.
Čistička odpadových vôd: PRENAK, s. r. o.
Drenážny systém, areálová kanalizácia: REHAU, s. r. o.
Zemné práce, terénne uprávy / Ground works and landscaping TERRAKOL, s. r. o.
Kamenivá, štrky: ALAS SLOVAKIA, s. r. o.
Vonkajšie spevnené plochy: Rehak Paving, s. r. o. / Premac, s. r. o.
Oplotenie: GT STAV Slovakia, s. r. o. / Premac, s. r. o.
Oplotenie: BC TORSION, spol. s r. o.
Vonkajšia brána: JOLLY JOKER, a. s.
Sadové úpravy: Minarovičová / Kolenčíková
Požiarna ochrana: PYROS – ING, s. r. o.
Hasiace prístroje a protipožiarna technika: SE Slovakia Fire Protection, s. r. o.
Nábytkové zariadenia: BN OFFICE SOLUTION, s. r. o.
Nábytkové zariadenia: EKOMA design, s. r. o.
Nábytkové zariadenia: Kinnarps, spol. s r. o.
Nábytkové zariadenia (kuchynky): T STUDIO KUCHYNE, s. r. o.
Kúpeľňové doplnky: ViVa – Vágai Marek
Biela technika: Fast plus, spol. s r. o.
Návrh a realizácia akvária: Martinovský / Koubek
Energetický certifikát: ENECO, s. r. o.
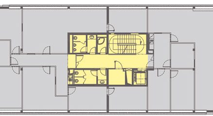
Pôdorys typického podlažia
| Inteligentný systém elektroinštalácie Spoločnosť ABB, s. r. o., ponúkla komplexnú realizáciu v oblasti elektroinštalácie, ktorá zahŕňala vypracovanie realizačných výkresových dokumentácií na každú sekciu systému, dodávku systému, finalizáciu zákazky až po úroveň vypracovania projektu skutočného vyhotovenia a revíznych správ na každý systém. Projektová dokumentácia nízkonapäťovej prípojky sa vypracovala na základe zmluvy o pripojení odberného zariadenia do sústavy ZSE. Nízkonapäťová prípojka sa vybudovala od skrine PRIS1 až po univerzálnu skriňu merania, ktorá je umiestnená na verejne prístupnom mieste pred administratívnou budovou pri vstupe do podzemných garážových priestorov. V elektromerovom rozvádzači je osadený hlavný istič pred elektromerom s požadovanými parametrami In = 3 × 315 A, taktiež istič pre napäťové cievky a HDO signál. Z hlavného rozvádzača sú napojené všetky podružné rozvádzače a tiež hlavné technologické prvky objektu ako čistička odpadových vôd, vykurovacie jednotky VRV umiestnené na streche, výťah, podružný rozvádzač EIB pre prezentačnú miestnosť a riadiaci procesor pre vnútorné parapetné jednotky. V hlavnom rozvádzači sa zabezpečilo aj meranie spotreby elektrickej energie pre vybraté podružné rozvádzače. Účelom je fakturačné meranie podružných rozvádzačov slúžiace na exaktné rozrátavanie nákladov v závislosti od spotreby elektrickej energie VRV vykurovacích jednotiek medzi jednotlivými nájomcami kancelárskych priestorov. Fasádne osvetlenie sa riešilo v závislosti od intenzity vonkajšieho jasu, v komunikačných priestoroch, ako sú podzemné garážové priestory, prepojovacie priestory v suteréne a chodby, sa ovládanie osvetlenia riešilo s pohybovými snímačmi s nastaveným oneskoreným časom vypnutia. Medzi ďalšími technológiami zabudovanými do administratívnej budovy JAGA je kamerový systém, dochádzkový systém a audiovrátnik. Kamerový systém obsahuje päť vonkajších kamier, štyri z nich namontované na rohoch objektu slúžia na sledovanie okolia objektu a piata kamera slúži na sledovanie vonkajšieho parkoviska za budovou. V podzemných parkovacích priestoroch sú namontované ďalšie tri kamery zvyšujúce bezpečnosť majetku. Súčasťou kamerového systému je aj digitálny videozáznamník so 4-týždňovým záznamovým časom prepojený so zabezpečovacím systémom na ochranu objektu. Ďalšou technológiou bola implementácia elektronického dochádzkového systému s možnosťou manažovania a vytvárania rôznych reportov zo systému evidencie zamestnancov. Konferenčná miestnosť je vyhotovená na úrovni inteligentnej elektroinštalácie. Samozrejmosťou administratívnej budovy na takejto úrovni je štruktúrovaná kábeláž kategórie 5e. Koncové prípojné body – komunikačné PC zásuvky sú inštalované v podomietkovom vyhotovení alebo po vnútornom obvode budovy v parapetných žľaboch. Ďalším systémom chrániacim objekt pred vniknutím cudzích ľudí je poplachový systém narušenia (PSN) – jednoducho povedané zabezpečovací systém, ktorý je pomocou ID profilu pripojený na pult centrálnej ochrany. |
Generálny dodávateľ: ise, s. r. o.
Technický dozor, inžiniering, supervízor: TDI-Kompleting, s. r. o.
Ľudo Petránsky
Foto: Dano Veselský
Článok bol uverejnený v časopise ASB.













