Netradičná hra tvarov s novým zážitkom z priestoru
Galéria(6)

Netradičná hra tvarov s novým zážitkom z priestoru

Zdá sa, že bývalá budova spoločnosti IKEA v Bratislave má svoje dni spočítané. Súčasné developerské aktivity posunuli zónu novostavieb okolo jazera Kuchajda až po Rožňavskú ulicu. Investičná spoločnosť VIENNA INVEST, spol. s r. o., ktorá je dcérskou firmou rakúsko-slovenskej developerskej spoločnosti BZ Group, pripravuje v druhej polovici tohto roka výstavbu polyfunkčného komplexu s výškovou budovou štvorhviezdičkového hotela. Stavba by mala vyrásť na nároží ulíc Tomášikova a Rožňavská neďaleko bytového komplexu Koloseo, ktorý BZ Group takisto developuje. Ešte v tesnejšom susedstve bude stáť nové sídlo Slovenskej sporiteľne, ktorého výstavba sa nedávno začala.

Pôsobivé kompozície

„Filozofiou tvorby objektu bolo vytvoriť príjemne presvetlené a prevzdušnené riešenie výškovej hmoty objektu so zámerom dosiahnuť maximálne možné výhľady na okolité územie a na celú Bratislavu,“ hovorí pre ASB spoluator projektu Ing. arch. Marián Pokrivčák. „Vychádzali sme z riešenia uzavretých mestských blokov a štruktúr. Pri takomto riešení sú však vždy dve fasády obmedzované pohľadom samy do seba.“

Aj preto architekti jeden blok tejto uzavretej štruktúry zdvihli nad druhé krídlo a vytvorili otvorenú štruktúru s výhľadom na okolité územie a zelené strechy, ktoré sú navrhnuté na týchto blokoch. Objekt je koncipovaný ako prechodné ubytovanie, a preto bude časť fasády z juhu tieniť mostová časť domu. Tá však zároveň tvorí akýsi slnolam a chráni fasádu pred priamym juhozápadným slnkom. Výsledkom je netradičná kompozícia hmôt vytvárajúca pôsobivú hru tvarov, ale aj výrazovú dominantu celého územia.

„Týmto riešením sme hmotu rozdelili na dve časti v tvare dvoch písmen L, ktoré do seba zapadajú a prelínajú sa,“ vysvetľuje architekt Pokrivčák. Tieto dve písmená L sú potom čitateľné aj vo fasáde objektu, aj vo výraze. Každé z nich má iný architektonický výraz a členenie. Zatiaľ čo jedno L sa pohráva s pásovými oknami osadenými v akýchsi vlnách rieky, druhá hmota tvorí grafiku pravidelných tvarov okien rôznych rozmerov, ktoré vytvárajú akúsi detskú skladačku. To celé je posadené na zasklenej podnoži obchodného móla.

Dispozícia pre polyfunkciu

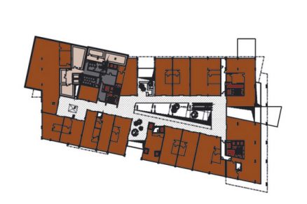
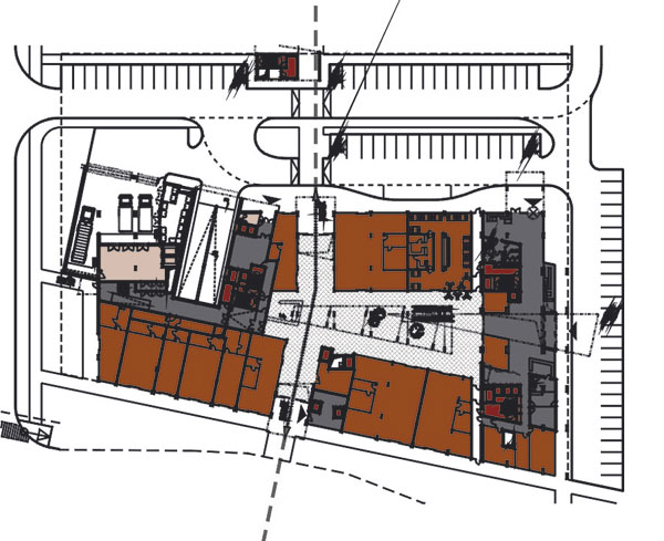
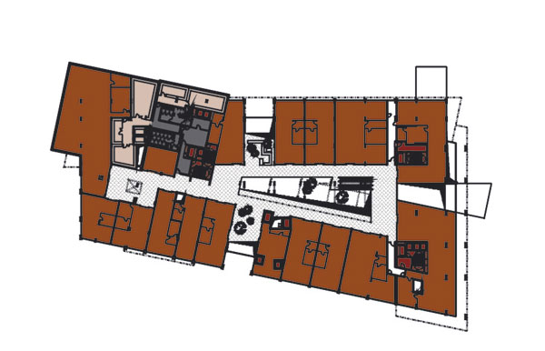
Novostavba polyfunkčného komplexu s hotelom s celkovou rozlohou 80-tisíc m2 bude tvoriť zasklené trojposchodové obchodné mólo, kde budú okrem obchodov na ploche 5 400 m2 a reštaurácií s plochou takmer 2-tisíc m2 aj vchody do apartmánovej časti 18-poschodovej polyfunkčnej budovy a 23-poschodovej budovy hotela.

Na prízemí sú umiestnené všetky komunikačné vstupy do objektu a zároveň únikové trasy z objektu. Hlavný vstup do hotela je orientovaný z Rožňavskej ulice a vchádza sa ním do hotelovej haly, ktorá má aj bočný vstup pre príchod autami. Krížom cez objekt vedie pasáž, ktorá prepája územie perspektívne budované za týmto hotelom so zastávkou MHD. Pri vstupe do pasáže je ďalší vchod do apartmánovej časti, kde sa návštevníci dostanú dvojicou výťahov do mostovej časti objektu. Na severovýchodnej fasáde objektu je umiestnený hlavný vstup do garáže. Na prvých troch podlažiach sa bude nachádzať obchodný sektor, nad ktorým bude zo severovýchodnej strany apartmánovo-administratívna časť. Tá je z juhozápadu zdvihnutá v tvare mosta. Slúži na dlhodobé ubytovanie nájomcov, ktorí chcú mať pohodlie domácnosti, ale nechcú byť ubytovaní v hoteloch. Obyvatelia budú mať prenajaté jednotlivé apartmány a takisto si môžu prenajať administratívne priestory na rokovania. Táto časť v pôdorysnom tvare dvoch L, ktoré sú do seba obrátené, má jedno centrálne jadro s výťahmi. Má aj samostatné výťahy do mostovej časti, čo umožňuje separovať vstupy do objektov.

Hotelovú časť tvorí samostatný objekt obdĺžnikového tvaru s 23 poschodiami. Súčasťou komplexu bude trojpodlažná podzemná garáž s rozlohou zhruba  17-tisíc m2 so 726 parkovacími miestami. Ďalších 78 miest spoločnosť vybuduje v okolí budov.


Názov:
Polyfunkčný objekt
Miesto: Rožnavská – Tomášikova ul., ­Bratislava
Investor: VIENNA INVEST, spol. s r. o., ­Bratislava
Autori:
ATELIER 3M, s. r. o.
Ing. arch. Marián Pokrivčák
Ing. arch. Monika Štekláčová
Spoluautori:
Ing. arch. Ľubica Ornthová Ing. arch. Peter Sedláček
Začiatok realizácie: jeseň 2007
Koniec realizácie: jeseň 2009
Náklady: približne 1,5 miliardy Sk
Generálny dodávateľ: ešte nie je určený
Kapacitné údaje:
Hotel 12 746 m2
Apartmány 11 991 m2
Administratívne priestory 4 046 m2
Obchod 5 400 m2
Reštaurácie 1 972 m2
Komunikácie 12 214 m2
Technika 2 786 m2
Parkovanie 17 327 m2
Počet parkovacích státí v garáži: 726
Počet parkovacích státí na teréne: 78

Ľudo Petránsky
Vizualizácie: ATELIER 3M