Mimoriadne ocenenie BREEAM udelené budove pri Temži
Spoločný projekt budovy 7 More London Riverside, na ktorom spolu s architektonickým tímom Foster + Partners spolupracovala jedna z vedúcich poradenských firiem pre trvalo udržateľnú výstavbu Roger Preston & Partners, dosiahol mimoriadne ocenenie BREEAM (Building Research Establishment Enviromental Assessment Method) na úrovni ,,outstanding“. Toto ocenenie sa dovtedy udelilo len dvom budovám v rámci celej Veľkej Británie. Takáto úroveň akreditácie je znakom prvotriedneho objektu, ktorý spĺňa najvyššie ekologické požiadavky.
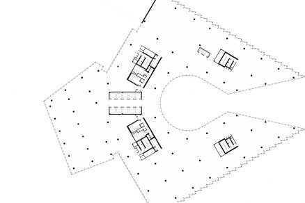
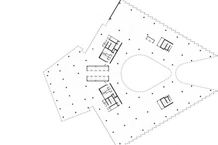
Centrála firmy PrincewaterhouseCoopers LLP sa nachádza priamo na brehu rieky a je poslednou realizáciou z komplexu budov More London. Budova v sebe zahŕňa celú škálu stratégií na úsporu energie – od využitia najnovšej technológie cez efektívny tvar až po recyklovaný stavebný materiál. Miesto výstavby v širšom kontexte mesta nie je náhodné. Skupina objektov The More London pomohla pri rozvoji oblasti brownfieldu, ktorý si vyžadoval revitalizáciu z hľadiska ekológie, turizmu i obchodu. Okrem výsadby rastlín sa strechy pokryli špeciálnou vrstvou na princípe ,,brown roofs“, čo je konštrukcia podobná ,,zeleným strechám“, ale navyše má za cieľ podporiť biodiverzitu živočíchov, ktoré sú pre daný brownfield typické.
Tvar a orientácia budovy reagujú na klimatické podmienky i bezprostredné okolie. Okrem tienenia južného slnka poskytuje fasáda maximálny výhľad na londýnsky Tower, a to aj z bočných strán prostredníctvom zalomeného povrchu s pravidelnými odskokmi. Symetrické krídla budovy sa otvárajú smerom k rieke a umožňujú tým pohľad z vnútorného átria na mesto za riekou. Obe krídla sú zároveň spojené mostíkmi na druhom, piatom a ôsmom podlaží. Plne klimatizovaná budova využíva energeticky efektívny systém HVAC na vykurovanie, ventiláciu a chladenie. Vnútornú klímu je vďaka zónovaniu možné nastavovať v jednotlivých kancelárskych častiach osobitne podľa potreby. Všetko osvetlenie je riadené centrálne – kontrolným systémom – a svetlá sú priebežne nastavované na základe intenzity svetla počas dňa. Použitím recyklovaných prvkov v betóne, prefabrikovaných komponentov a podlahového systému z recyklovanej lepenky sa zasa znížilo množstvo celkovej vstupnej energie potrebnej na spracovanie surovín na stavebný materiál.
Spaľovanie biomasy produkuje elektrickú energiu na vykurovanie a chladenie. Biomasa je dopestovaná priamo na mieste. Spaľovanie redukuje emisie CO2 až o 55 % oproti množstvu, ktoré povoľujú aktuálne platné predpisy. Dažďová voda sa zachytáva a ďalej využíva ako voda úžitková, pričom lapače vody sú rozmiestnené po celej budove. Hlavným dôvodom udelenia mimoriadneho ocenenia bolo práve využitie spaľovania biomasy na výrobu elektrickej energie pre trojgeneračný systém CCHP (Combined Cooling Heating & Power) a z toho vyplývajúca nižšia miera emisií. 7 More London Riverside je prvou kancelárskou budovou ocenenou mimoriadnym certifikátom BREEAM, a preto môže byť odpoveďou na otázku, kam by sa mala v budúcnosti uberať trvalo udržateľná výstavba.
TEXT: Katarína Vankušová, Foster + Partners
FOTO: Nigel Young, Foster & Partners
VÝKRESY: Foster + Partners
















