Kancelárie Voestalpine
Najnovšia budova v priemyselnom areáli, oblúková finančná centrála, obopína priestranné nádvorie. Hoci svojou mierkou reprezentuje veľkosť koncernu, ladnou krivkou pozýva návštevníkov dovnútra. Je symbolom otvorenosti – ľuďom aj inováciám.
Brány nového firemného zázemia v rakúskom Linzi sprístupnila spoločnosť Voestalpine prvýkrát pred tromi rokmi. Umožnila verejnosti bližšie nahliadnuť do širokého spektra prác a služieb koncernu. Vo svojom areáli spoločnosť otvorila aj expozíciu nazvanú Svet ocele, ktorá návštevníkov sprevádza výrobným procesom a možnosťami použitia ocele v súčasnom svete. Autorom koncepcie výstavy je mníchovská agentúra KMS Team a na realizácii interiéru spolupracovali dizajnéri zo štúdia Jangled Nerves zo Stuttgartu.
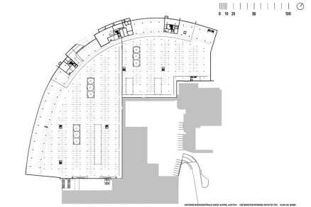
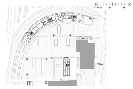
Oproti múzeu vyrástla grandiózna budova centrály koncernu podľa projektu architektonickej kancelárie Dietmar Feichtinger Architectes. Oblúkom urbanisticky dotvorila firemný areál s rozlohou 36-tisíc štvorcových metrov. Aj urbanistickú koncepciu vypracovala nadnárodná kancelária Dietmar Feichtinger Architectes.
Investor poveril skupinu Delta riadením oboch týchto projektov. Konateľ českej pobočky Delta Projektconsult Erik Štefanovič k tejto zákazke uviedol: „Spoločnosť Voestalpine bola jedným z tých investorov, ktorí trvali na profesionálnej kontrole a riadení nákladov. Preto celý projektový tím veľmi starostlivo sledoval, ako sa príslušné aktuálne náklady vyvíjajú. Počas realizácie dbal na ich dodržiavanie a dozeral na prípadné možnosti, ako náklady ešte znížiť tak, aby neutrpela kvalita projektu.“
–>–>
Oblúk ako náruč
Obidve budovy spája platforma, ktorá je zároveň strechou parkoviska a rozľahlého nádvoria. Je vyhradená len na komunikácie pre peších a na jej povrchu sa striedajú zatrávnené plochy s priehľadmi do garáže.
Nad ňou sa na konzolách dvíha hlavná hmota budovy centrály. Prízemie je venované službám pre všetkých zamestnancov firmy (obchody, cestovné kancelárie, knižnice a archívy). Rozmiestnené sú pozdĺž chodby, ktorá vedie po vnútornom oblúku budovy.
Prístup na horné podlažia je vyhradený zamestnancom jednotlivých sekcií. Priečne je objekt rozdelený na tri zóny. Prvú tvoria jednotlivé kancelárie, ktoré sa nachádzajú vo dvoch líniách pozdĺž okien. Druhá, centrálna zóna slúži na stretnutia a rozhovory zamestnancov. Sú tu umiestnené aj kopírovacie zariadenia, kútiky s kávovarmi a priestory na odpočinok a relax. Túto zónu prirodzene presvetľujú vnútorné átriá. Prechádzajú všetkými podlažiami a sú uzatvorené sklenenou strechou. Integrované otváravé strešné okná slúžia aj na prirodzené vetranie kancelárskych priestorov. Zvyšok tvoria konferenčné priestory. Nachádzajú sa na veľmi prominentnom mieste na vrchom podlaží. Sú prístupné samostatným výťahom priamo z loby. Zasadačky sú koncipované tak, že sa dajú nakombinovať rôzne konfigurácie a veľkosti miestností.
Konštrukcia budovy je z ocele a betónu. V strednej časti budovy nesú betónovú dosku oceľové stĺpy, krajné plochy nesú konzolové nosníky. Vďaka tomuto riešeniu sú kancelárske priestory veľmi flexibilné.
| KANCELÁRIE VOESTALPINE Miesto: Linz, Rakúsko Autor: Dietmar Feichtinger Architectes Investor: Voestalpine Stahl GmbH Manažment projektu: Delta Projektconsult Sútaž: 2006 Realizácia: 2006 – 2009 Plocha pozemku: 36 700 m2 Plocha projektu: 23 160 m2 Náklady: 46,1 mil. € |
TEXT: KATEŘINA KOTALOVÁ
FOTO A DOKUMENTÁCIA: DELTA PROJEKTCONSULT
Článok bol uverejnený v časopise ASB.



















