Hrdzavá administratívna budova v Jesenici
Mesto Jesenice v slovinskom pohorí Karavanky má dlhú oceliarsku históriu. Tento priemysel je tu prítomný všade, mnohé domy ho pripomínajú svojou červenou – hrdzavou – farbou. Asi ťažko by tu mohla nová budova štátnej správy vzniknúť z niečoho iného ako práve z ocele. Navyše, keď priamo pred ňou stojí socha oceliara.
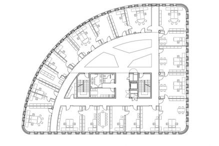
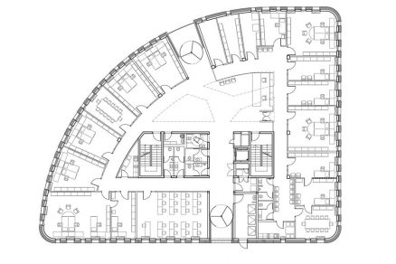
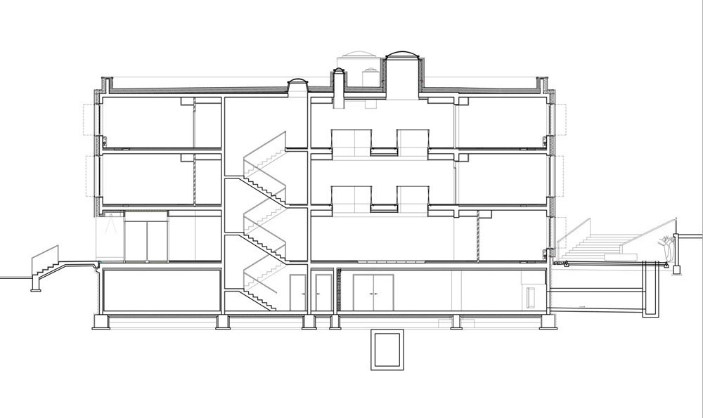
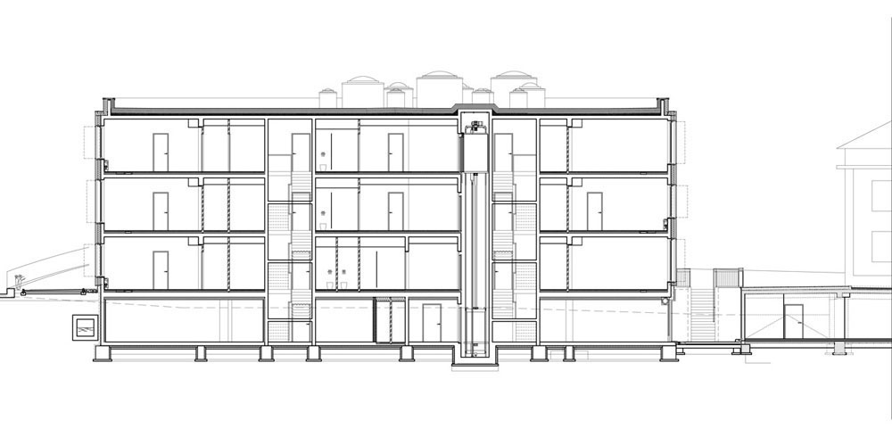
Priamo pred administratívnym centrom stojí pamätník – socha oceliara.Ministerstvo vnútra dalo v Jesenici postaviť budovu, kde teraz obyvatelia nájdu všetky úrady a úradníkov. Nájdu ich presne v centre Jesenice, hneď vedľa bývalého obecného úradu. Štvorpodlažný objekt navrhla architektonická kancelária Kalamar, ktorá pôsobí v Ľubľane už viac ako 20 rokov. Všetky kancelárie sa nachádzajú okolo vnútorného átria, do ktorého cez strešné okná preniká prirodzené svetlo. Dostatkom svetla a originálnou kompozíciou spájacích mostíkov v átriu chceli architekti zbaviť budovu ťaživej atmosféry, ktorá obyčajne úrady sprevádza.
Vonkajší plášť budovy jasne odkazuje na oceliarsku históriu mesta. Je vyrobený z Cortenu, ktorý patinuje nízkolegovanú oceľ valcovanú za studena. Obsahuje menej uhlíka ako bežná uhlíková oceľ a je obohatená meďou a fosforom. Na začiatku, v období, keď je konštrukcia vystavená bežným poveternostným podmienkam, sa na jej povrchu vytvorí tvrdá ochranná vrstva, ktorá výrazne spomaľuje proces ďalšej korózie. Vzhľadom na to, že ďalšie povrchové úpravy už nie sú potrebné, je takáto oceľ považovaná za ekologickejšiu, pretože je stopercentne recyklovateľná. Z cortenových panelov sú vytvorené aj okenice. Chránia exponovanú administratívnu budovu pred prehriatím a poskytujú príjemný tieň.
Administratívne centrum Jesenice
Architekt: Andrej Kalamar, Studio Kalamar (www.kalamar.si)
Klient: Ministerstvo vnútra
Dokončené: 2012, Slovinsko
Mesto Jesenice je zovreté pohorím Karavanky.
Cortenová fasáda nadväzuje na oceliarsku tradíciu v meste.
Pravidelné horizontálne usporiadanie okien.
Z juhozápadnej strany budova susedí iba s vlastným parkoviskom.
Úlohou okenice je rozptýliť svetlo prichádzajúce do kancelárie.
![]() |
![]() |
| Na oceli sa vytvorila ochranná vrstva. | Nie sú potrebné žiadne povrchové úpravy. |
![]() |
![]() |
| Sídlo všetkých jesenických úradov susedí s bývalým obecným úradom. | Jednotlivé kancelárie sú rozmiestnené po obvode átria. |
![]() |
|
| Spájacie mostíky v átriu budovy. | |
![]() |
![]() |
| Prirodzené svetlo sa do átria dostáva cez kruhové svetlíky. | Vstupná hala |
![]() |
![]() |
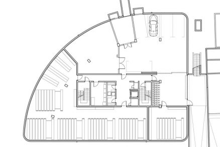
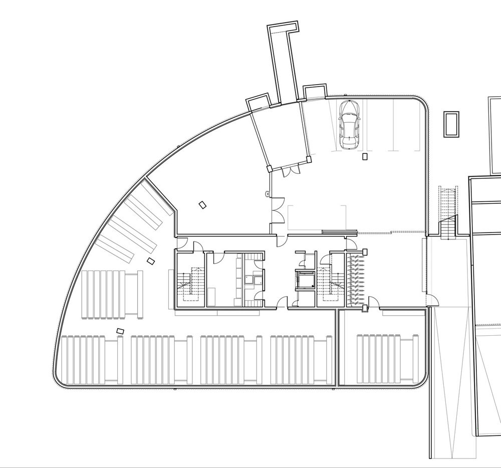
| Situácia | Pôdorys 1. PP |
![]() |
![]() |
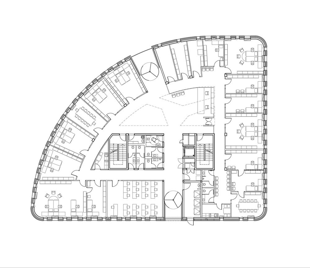
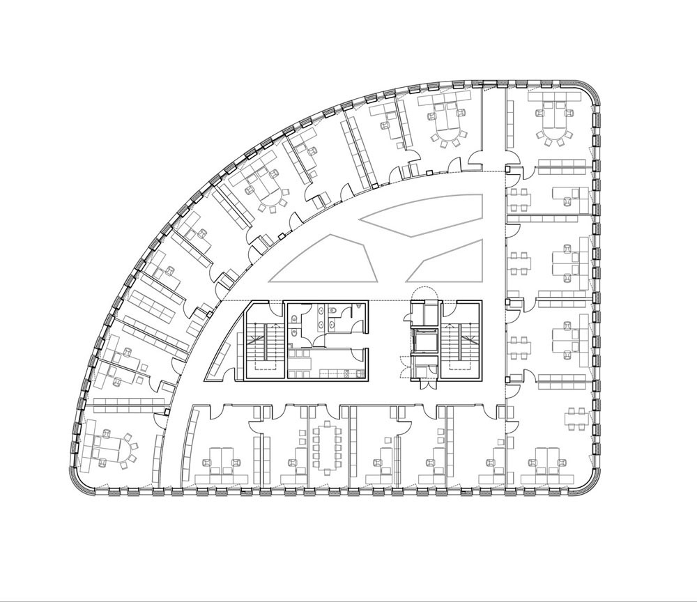
| Pôdorys 1. NP | Pôdorys 2. NP |
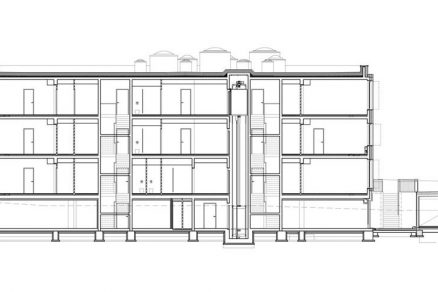
Rez
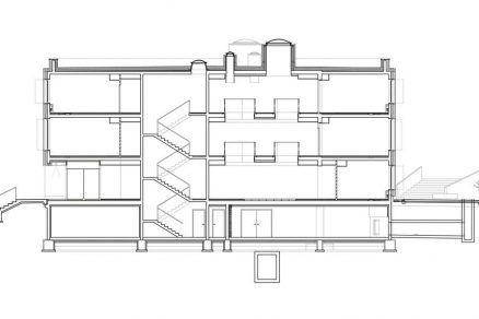
Rez
-vb-
foto: Miran Kambič, Studio Kalamar
zdroj: Studio Kalamar





























