Google kancelárie na Pancras Square
Londýnski architekti sa pokúsili otočiť zaužívanú paradigmu „fit-outov“ kancelárskych priestorov. Uvedomovali si, že zariadenie firemných priestorov znamená obvykle veľké materiálne plytvanie, keďže nábytok sa často obmieňa, časť mobiliára ostáva nepotrebná, firmy sa po niekoľkých rokoch opäť sťahujú a celý proces začína odznova.
Koncept ako trojnožka
Koncept interiéru postavili na analógii priestoru k trojnožke. Prvú jej nohu nazvali Divadlo – tým je samotná existujúca budova, ktorú architekti do svojho návrhu zdedili. Jej životnosť je v tomto prípade asi 50 rokov. Pri realizácii firemných priestorov ju „vykuchali“ takmer na skelet, aby mohli do vnútra vložiť požadovaný lokalitný program.
Relaxačné bloky sú umiestnené pod “hviezdnou oblohou”.
Druhú nohu tvorí Javisko – veľké interiérové celky –, ktoré si vyžadovali aj náročnejšiu stavebnú úpravu, napríklad ako reštaurácie, miestnosti na spoločenské akcie či telocvičňa. Ich životnosť autori odhadujú na 5 až 10 rokov.
A napokon poslednou nohou sú Kulisy, ktorými sú samotné pracovné miesta či zasadačky so životnosťou nižšou ako 5 rokov. Úlohou architektov teda bolo na základe novej paradigmy navrhnúť vitálne kancelárske priestory, pričom sa snažili čo najviac materiálov recyklovať a adaptovať na nové využitie.
Preglejkový Jack
Do prázdnej obnaženej budovy architekti vložili rôznorodé funkčné celky, ktoré svojou komplexnosťou vytvárajú malé mesto. Dominantným prvkom, ktorý bolo treba vziať do úvahy, boli firemné zasadačky. Volajú ich Jack. Ako modulový systém sú vyrobené na mieru z preglejky, možno ich premiestniť podľa aktuálnych potrieb, odpad pri remodelácii musí byť minimálny.
Priestory určené na stretnutia majú rôzne podoby, sú však najmä neformálne.
Google priestory sú veľmi živým a tvorivým organizmom, v budove je hneď niekoľko reštaurácií, relaxačných zón a kútikov. Vnútorné átrium zdobí schodisko, ktoré sa ako hladká hodvábna stuha vinie cez niekoľko podlaží. Okrem toho, že umožňuje rýchle prepojenie medzi podlažiami, funguje v otvorenom priestore aj ako veľkorozmerný artefakt.
![]() |
| Z vestibulu je dobrý výhľad na všetky podlažia. |
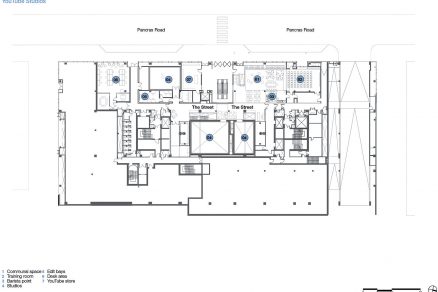
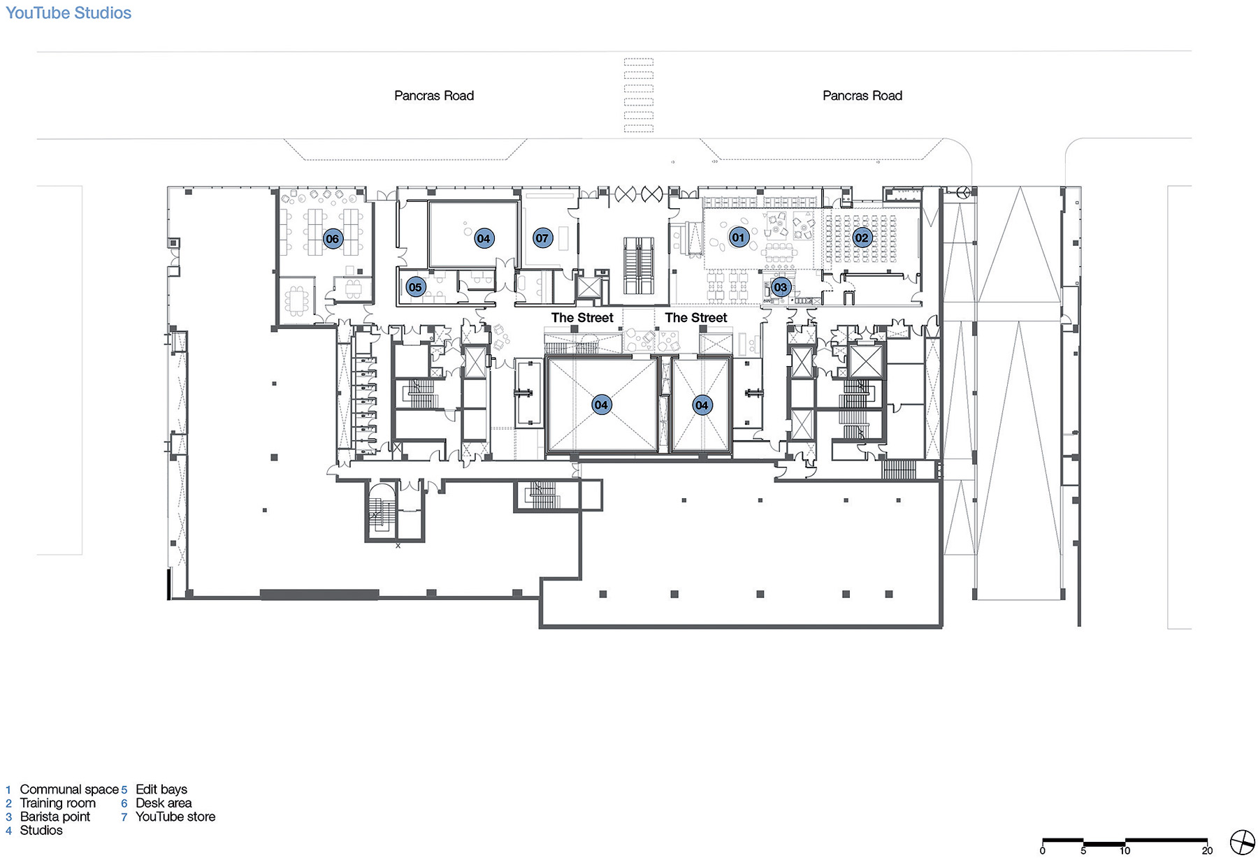
Otvorené štúdiá Youtube
Nové kancelárske priestory zaberajú plochu takmer 35 000 m2. Zamestnanci aj návštevníci sa do nich dostanú cez priestrannú recepciu. Pod úrovňou terénu sa skrýva ešte jedno zaujímavé podlažie: štúdiá Youtube. Sú otvorené aj pre londýnskych fanúšikov, pre ktorých architekti vytvorili celú sériu flexibilných priestorov vrátane kaviarne, školiacej miestnosti pre 70 ľudí a spoločenskej sály.
Podlažia spája atraktívne zvlnené schodisko.
Kancelárske priestory firmy Google na Pancras Square sú príkladom zodpovedného dizajnu. Kládol sa dôraz na maximálnu efektivitu: v rozmiestnení pracovných blokov, v osvetlení, ktoré reaguje na prítomnosť pracovníkov, vo vetraní a chladení priestorov. Počas realizácie interiérov dočasné fotovoltické panely pokrývali časť spotreby elektrickej energie. Nové Google kancelárie boli dokončené v októbri minulého roku.
Pôdorys 1. nadzemného podlažia so štúdiami YouTube
1 Relaxačný priestor 2 Školiaca miestnosť 3 Káva – barista 4 Štúdiá 5 Editovacie miestnosti 6 Kancelária 7 YouTube obchod
Google Pancras Square
Miesto: Londýn
Investor: Google UK
Architekti: Allford Hall Monaghan Morris
Užívateľ priestorov: Google UK a YouTube Studios
Projektový manažment: CBRE
Rozloha: cca 35 000 m2
Počet zamestnancov: 2 500
Ukončenie realizácie: október 2016
Londýn
Text: Mária Nováková
Foto: Timothy Soar
Dokumentácia: ALLFORD HALL MONAGHAN MORRIS
Článok bol uverejnený v časopise ASB 3/2017.



















