Dostavba areálu MZV
Kompaktný tvar, vertikálny raster, pravidelný rytmus fasády akcentovaný zaskleným portálom vstupnej haly s nástupným schodiskom a markízou – a to celé v tmavej farebnosti. Nový administratívny objekt nedávno vyplnil prieluku na Pražskej ulici.
Nie náhodou začíname architektonickým výrazom. Na prvý pohľad jednoduchá budova, ktorá však už na druhý pohľad povie, že podobná v Bratislave nie je. Nepotrebuje teatrálne gestá, aby sebavedome hovorila o svojej funkcii. Je to administratívny objekt, ktorý má svoju vážnosť aj moderný šmrnc. „Chceli sme vytvoriť objekt, ktorý by už na prvý pohľad vyzeral dominantne a rastrovaním umožnil variabilitu a flexibilitu aj vo vnútornom usporiadaní priestoru. V pôvodnej štúdii bolo členenie alucobondových častí symetrické, v realizačnom stupni projektu sme sa rozhodli poňať ich asymetricky, čím získali ešte výtvarnejší výraz,“ hovorí Ing. arch. Ján Pavúk, ktorý priznáva aj svoje inšpirácie.
Čelný pohľad z Pražskej ulice. Raster na fasáde nemá len výtvarný rozmer, ale má aj tieniacu a protihlukovú funkciu.
Foyer – pohľad smerom na hlavný vchod na Pražskej ulici
„Sledujem súčasné trendy v architektúre a som ovplyvnený najmä Nemeckom. Sám som štyri roky pôsobil v berlínskom ateliéri architekta Meinharda von Gerkana, pričom sme projekt s podobným rastrom pripravovali pred desiatimi rokmi v rámci rekonštrukcie Kráľovskej manufaktúry porcelánu v Berlíne. Samozrejme, tu je raster použitý v iných súvislostiach, výraze a materiáloch. Raster však nemá len výtvarný rozmer, ale má aj tienaciu a protihlukovú funkciu.“
Detail hlavného vstupu do budovy s foyer
Terasa a skupinová kancelária – veľká zasadačka – na 6. nadzemnom podlaží
Za výsledkom je aj spôsob, ako by mal štandardne vyzerať výber návrhu, čo však ani pri ani pri štátnych zákazkach nie je vôbec bežným postupom. Na začiatku bola vypísaná architektonická súťaž formou verejného obstarávania. Bola to regulérna súťaž v spolupráci so Slovenskou komorou architektov a s jej zástupcami v porote, s investičným oddelením Ministerstva zahraničných vecí SR (MZV), ako aj ďalšími architektmi a odborníkmi zo stavebnej praxe. V konkurencii ôsmich renomovaných kolektívov zvíťazil návrh architekta Jána Pavúka, ku ktorému sa pridal v rámci druhého kola architektonickej súťaže Ing. arch. Ilja Skoček ml.
Južný pohľad – dvorný trakt so zeleným nádvorím
Vystúpenie z radu
Objekt je súčasťou celého areálu MZV, má päť nadzemných (+ jedno ustúpené) podlažie a dve podzemné podlažia prepojené schodiskom a panoramatickým výťahom. Súčasťou uskočeného podlažia je pochôdzna terasa, ktorá môže slúžiť na krátkodobý relax zamestnancov, ale aj ako priestor na neformálne stretnutia. Terasa totiž susedí so zasadacou sálou, ktorá bude jednou z pracovných centrál počas predsedníctva SR v Európskej únii od 1. 7. do 31. 12. tohto roka. „Z hľadiska vnútorných priestorov je dôraz kladený na veľkorysé riešenie dvojpodlažnej vstupnej haly s galériou, keďže ostatné administratívne podlažia sú prísne utilitárne,“ približuje koncept Ján Pavúk. „Otvorená, transparentná, so zeleným nádvorím prepojená vstupná hala kontrastuje s prísnym pravidelným rastrom fasády a tvorí dôstojný vstupný priestor pre návštevníkov.“
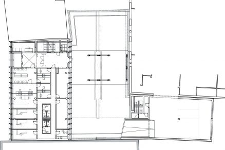
Pôdorys 1. nadzemného podlažia
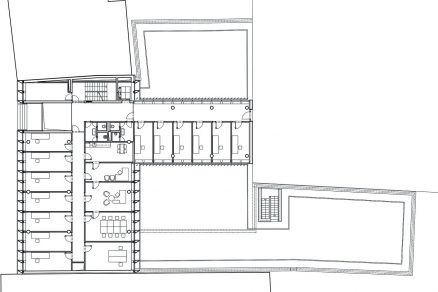
Pôdorys 2. nadzemného podlažia
Vstup do budovy z Pražskej ulice je riešený vyrovnávajúcim schodiskom, ktoré umocňuje dojem reprezentačnej budovy. Zo vstupnej dvojpodlažnej haly je prístupné konzulárne oddelenie so vstupom pre verejnosť a bezpečnostnými turniketmi na kontrolovaný vstup zamestnancov. V priestore pri vrátnici je bezpečnostná kontrola osôb a batožín tak, aby tieto neprekážali vo vstupnej hale. Za turniketmi sa vchádza do výťahu a na schodisko, je tu aj vstup pre zamestnancov konzulárneho oddelenia. Na nadzemných podlažiach sú rozmiestnené jednotlivé oddelenia, ktoré boli ušité na mieru potrebám investora. Niekde sú sólo-, dvoj-, štvor- alebo skupinové kancelárie a nechýbajú ani zasadacie priestory. Na dvoch podlažiach suterénu sú garáže (35 stojísk), sklady, serverovne a nová strojovňa vzduchotechniky garáží. Do garáží sa vchádza cez podzemné garáže kongresovej haly, cez jednosmernú rampu pod nádvorím objektu. Podlažia podzemných garáží sú prepojené polrampami a vyrovnávajúcimi schodmi pre peších.
Priečny rez – ustúpené 6. nadzemné podlažie vo dvorovej časti
Priečny rez komunikačným traktom
Problémy pri výstavbe? „Nič mimoriadne, až na zakladanie stavby,“ odpovedá Ján Pavúk. „Počiatočný výskum nepreukázal podzemný prameň, no neskôr sme naň pri platane narazili. Najprv sme sa s ním nevedeli vyrovnať a asi pol roka sme riešili sanovanie podzemných stien chémiou, aby sme zabezpečili stavebnú jamu. Dnes by to už malo byť v poriadku.“ V Bratislave teda pribudol dom, ktorý vyplnil prieluku a zarovnal uličnú čiaru na frekventovanej ulici. Je to dom, ktorý na seba arogantne neupozorňuje, ale napriek tomu vystupuje z radu – svojou prirodzenou kvalitou.
Východný pohľad z Pražskej ulice
Dostavba areálu MZV a EZ SR
Miesto: Pražská 7, Bratislava
Architekti: Ing. arch. Ján Pavúk, PhD. (hlavný projektant), Ing. arch. Ilja Skoček ml.
Spolupráca: Irenej Šereš, Danica Jurkovičová
Investor: MZVaEZ SR
Začiatok výstavby: 2014
Ukončenie výstavby: február 2016
Úžitková plocha: 4 025,5 m2
Zastavaná plocha: 368 m2
Obstavaný priestor: 9 632 m3
Celkové investície: 5,2 mil. €
Generálny dodávateľ: OHL ŽS SK, spol. s r. o.
BRATISLAVA TEXT: ĽUDOVÍT PETRÁNSKY,
FOTO: MIRO POCHYBA,
PROJEKTOVÁ DOKUMENTÁCIA: JÁN PAVÚK
Článok bol uverejnený v časopise ASB.






















