Citlivý, ale zároveň moderný zásah do historickej štruktúry mesta: UNIQ Staromestská offices
V centre hlavného meste pribudla ďalšia administratíva, ktorá má aj doplnkové služby pre verejnosť. Jej výraz je odlišný od tých predchádzajúcich.
Už na prvý pohľad sa tento objekt odlišuje od ostatných administratívnych stavieb – žiadne mamutie rozmery pre desaťtisíce štvorcových metrov ani ostré hrany v architektúre, ktorá by sa arogantne vymedzovala voči okoliu. Naopak, má skôr subtílne objemy a zaoblené tvary.
Parcela mala svoje prísne limity – je umiestnená na exponovanom nároží ohraničenom Veternou ulicou, objektom Najvyššieho súdu SR, budovou SNR a jednou z najdôležitejších dopravných tepien – Staromestskou ulicou. Investor a ani architekti však túto výzvu nezneužili a kultivovane sa snažili vybalansovať medzi snahou o maximalizáciu podlažnej plochy, o vysokú efektívnosť vnútorných dispozícií a vytvorením originálnej budovy.
Výhľad na hrad z terasy najvyššieho podlažia
„Snažili sme sa priniesť novú kvalitu architektúry a stavania moderných budov v kontexte rôznorodej urbanistickej štruktúry Starého Mesta,“ dodáva výkonný riaditeľ developerskej spoločnosti Cresco Group Ján Krnáč. „Centrum Bratislavy sme obohatili o prémiový kancelársky priestor s nadštandardným zariadením spoločných priestorov či tzv. concierge službami pre klientov.“
S oblými tvarmi
Efektívny pôdorys objektu v tvare písmena U má od budovy Slovenskej národnej rady terasovité usporiadanie ustupujúcich podlaží, ktoré je tvarované okolo dvorany so zelenou strechou. „Pri návrhu projektu sme vedeli, že pôjde o citlivý, ale zároveň moderný zásah do historickej štruktúry mesta,“ hovorí architektka Barbora Markechová z Bogle Architects.
„Jej charakteristická zástavba nám vnukla myšlienku navrhnúť objekt oblých, takmer ženských tvarov ako protipól bohatej štruktúry mesta. Vonkajšie nárožia sú vďaka zaobleniu zjemnené a dodávajú budove ikonický charakter. Objekt tým zároveň v danom území pôsobí kompaktne a bezkonfliktne.“
Zaujímavý rytmus fasády s vertikálnymi lamelami rôznej hĺbky
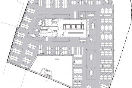
Polyfunkčný objekt má tri podzemné a sedem nadzemných podlaží, pričom kancelárske priestory sú umiestnené na 2. až 7. NP. Flexibilné priestory obchodných jednotiek sú umiestnené na prízemí v nadväznosti na exteriér a na hlavný vstup do budovy. Dispozičné riešenie kancelárií triedy A je navrhnuté s možnosťou delenia na menšie celky a ponúka rôzne usporiadania vnútornej dispozície od tzv. open space až po bunkové kancelárie na modulovú šírku 2,5 m.
„Výška objektu rešpektuje výškovú hladinu okolitej zástavby objektu Najvyššieho súdu a budovy bývalej Slovenskej sporiteľne a dopĺňa chýbajúce nárožie mestského bloku,“ dodáva Barbora Markechová. „Vrchné podlažie je ustúpené, čím hmota budovy vizuálne nadväzuje na líniu susedných objektov. Vzniká priestor na strešné terasy a atraktívne výhľady na centrum mesta, Hrad, Prezidentský palác a Slavín. Ustúpenie hmoty zároveň zlepšuje svetelné pomery v protiľahlých budovách.“
Otvorená náruč
Zasunutie prízemia a umiestnenie vstupu do budovy na najexponovanejšie severné nárožie vytvára náruč, ktorá víta návštevníkov objektu. Tým vzniká prirodzená nadväznosť hmoty na susedný objekt Najvyššieho súdu a riešenie zároveň umožňuje integráciu ďalších prevádzkových vstupov, akým je aj vjazd do garáží. V centre dispozície je umiestnené kompaktné jadro s vertikálnymi komunikáciami a sociálnym i technickým zázemím pre kancelárske priestory.
Vizualizácia hlavného nárožia so vstupom do objektu
V rámci vertikálnych komunikácií sú navrhnuté „nožnicové“ schodiská s tromi výťahmi. Statická doprava je zabezpečená parkovaním v suterénoch a v exteriéri, v suterénoch sú navrhnuté aj státia pre bicykle a taktiež zázemie pre cyklistov.
Špeciálna pozornosť bola venovaná interiérom spoločných priestorov, ktorých návrh prešiel niekoľkými variáciami, kým sa vybrala tá správna kombinácia materiálov. Priestory recepcie, typického lobby a hygienických zázemí sú navrhnuté v tmavých tónoch s bronzovými detailami a jemným podsvietením tak, aby pôsobili teplo a komorne.
Fasáda
Objekt je navrhnutý s celozasklenenou fasádou s dominantným vertikálnym členením, ktoré umocňujú pevné vertikálne slnolamy s premenlivou šírkou. V rámci fasády je navrhnutý nízky parapet, ktorý plní protipožiarnu funkciu a zároveň poskytuje miesto na inštaláciu nízkych vykurovacích telies zabezpečujúcich lepší komfort užívateľov. Vo fasáde sú vsadené v každom module výklopné okná a manuálne ovládané interiérové tieniace rolety.
Na fasáde do vnútrobloku, ktorá bude vystavená slnku skoro počas celého dňa, sú navrhnuté aj exteriérové žalúzie. „Vertikálne členenie fasády medzi podlažiami je posunuté o štvrť modulu, čím objekt nadobúda špecifický výraz,“ dodáva Barbora Markechová. „Efektivita vnútorných dispozícií administratívnych priestorov však zostáva zachovaná a základný modul 2,5 m je priebežný po celej výške objektu.“
Realizátorom fasády bola spoločnosť INGSTEEL, ktorá hľadala rafinované konštrukčné riešenia s cieľom zachovania originálneho autorského dizajnu v synergii s finančnými limitmi slovenského developerského trhu. „Originálne objektové riešenie polygonálne usporiadaných oblúkových nároží a fasádnych zakrivených plôch vyžadovalo zvýšenú pozornosť,“ približuje Ing. Milan Lavrinčík, výrobno-technický riaditeľ spoločnosti INGSTEEL.
Interiér hlavného vstupného lobby
„Nielen v štádiu výrobnej dokumentácie, ktorú sme vypracovali pomocou 3D softvéru Solid Edge, ale aj pri zameraní stavby a následne pri výrobe jednotlivých elementov fasády, ktoré boli realizované automatizovanými CNC strojmi. Samotnej realizácii predchádzala vzorka jedného elementu v mierke 1 : 1, tzv. Mock up, na ktorej boli vyladené jednotlivé konštrukčné detaily.
Konštrukcia fasády je navrhnutá na báze systémového zaveseného roštu z líniových prvkov – stĺpikov a priečnikov s rôznou drenážnou úrovňou prevetrania a odvedenia kondenzátu. Originalita technického riešenia spočíva v plošnej oblúkovej integrácii zakrivených fasádnych nároží budovy, ktoré sú tvorené v jednotlivých podlažiach vzájomne poposúvanými fasádnymi pôdorysnými polygónmi. Montáž takto geometricky modifikovanej fasády si vyžadovala zvýšenú presnosť, koordinovanú postupnosť a priebežnú geodetickú kontrolu počas celej realizácie.“
Interiér hlavného vstupného lobby
Čo je to shadow gap?
Barbora Markechová je absolventkou Fakulty architektúry FA STU v Bratislave a momentálne s kolegyňou vedie pražskú pobočku britskej kancelárie Bogle Architects, ale má za sebou aj čas strávený v ateliéri slávneho architekta Normana Fostera. Aj preto má výraz architektúry Bogle Architects trochu medzinárodný „look“. „U Normana som pracovala aj na fasáde najvyššej budovy v Bombaji,“ hovorí architektka Markechová.
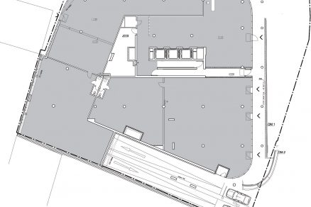
Pôdorys prízemia s komerčnými jednotkami
„Keď sa rieši fasáda, je to najmä o kvalitnom detaile a každý, kto prejde školou Normana Fostera, pozná tzv. shadow gap. Ide o negatívnu škáru používanú hlavne tam, kde sa spájajú rôzne materiály. Vytvorí sa medzera, ktorá skryje možné nerovnosti a vzniká čistý domyslený detail. Sme radi, že sa s týmto princípom nakoniec stotožnil aj generálny dodávateľ a v niektorých prípadoch si negatívnu škáru aj sám domyslel.“
Vetranie a chladenie
Vetranie priestorov budovy na 2. – 7. NP zabezpečuje rekuperačná vzduchotechnická jednotka so vzduchovým výkonom 41 000 m3/h, ktorá okrem dohrevu a chladenia vzduchu zabezpečuje aj jeho zvlhčovanie. Na vetranie komerčných a spoločných priestorov na 1. NP sú navrhnuté tri kompaktné podstropné rekuperačné jednotky.
„Chladenie administratívnych priestorov na 2. NP – 7. NP je zabezpečené fancoilami v 2-rúrkovom vyhotovení,“ približuje Ing. Branislav Pauk, obchodný manažér projektu zo spoločnosti KLIMAK, ktorá je realizátorom vzduchotechniky a chladenia. „Fancoily nasávajú vzduch cez mriežky osadené v podhľade a do priestoru ho vyfukujú cez nadstavec a prívodné vyústenie osadené v čele zníženého podhľadu.
Pôdorys typického podlažia kancelárií
Do výfukového nadstavca je ústi prívod čerstvého vzduchu z centrálnej VZT. Zdrojom chladu sú dva kompaktné vzduchom chladené vodné chladiče umiestnené na streche objektu.“
Projekt UNIQ Staromestská offices teda vstúpil do organizmu Starého Mesta a blízka budúcnosť potvrdí naplnenie jeho ambícií. Medzi ne patrí aj zisk certifikácie LEED na úrovni Gold.
Schematický rez nožnicovým schodiskom
UNIQ STAROMESTSKÁ OFFICES
Miesto: Staromestská ulica, Veterná ulica, Bratislava
Investor: Cresco Group, a. s.
Architekt: Bogle Architects, s. r. o.
Začiatok výstavby: 05/2015
Ukončenie výstavby: 03/2017
Kancelárska plocha: 7 565 m2
Obchodná plocha: 917 m2
Zastavaná plocha: 1 624,3 m2
Obstavaný priestor: 20 362 m3 (podzemná časť), 37 542 m3 (nadzemná časť)
Počet parkovacích miest: 138
Generálny dodávateľ: Chemkostav, a. s.
Fasáda: INGSTEEL, spol. s r. o.
Realizácia chladenia/vzduchotechniky: KLIMAK, s. r. o.
Meranie a regulácia: Siemens s. r. o.
BRATISLAVA
TEXT: ĽUDOVÍT PETRÁNSKY,
FOTO: CRESCO GROUP,
DOKUMENTÁCIA: BOGLE ARCHITECTS
Článok bol uverejnený v časopise ASB 3/2017.



















