Business Centre Košice II – Tri veže v Košiciach
Aj Košice už majú tri veže. A hoci tvarovo, funkčným využitím a umiestnením v kontexte mesta sa od tých bratislavských značne odlišujú, rovnako patria k architektonickej dominante územia. Tri veže vo východoslovenskej metropole vytvárajú administratívny komplex Business Centra nachádzajúceho sa neďaleko historického centra. I keď pochádzajú z rôznych časových období, ich spoločný autor im dal spoločný výraz.
Príbeh jedného centraNa začiatku bola urbanistická štúdia Jána Šprláka-Uličného zo začiatku 70. rokov minulého storočia, ktorá definovala aj areál súdov na Štúrovej ulici. V ich blízkosti vyrástla v polovici 90. rokov výšková budova Priemyselnej banky, na ktorej sa autorsky podieľal ateliér KOPA – Ing. arch. Karol Gregor a Ing. arch. Marián Pitka. Objekt kúpil nový majiteľ, ktorý naštartoval sériu zmien. Ich výsledkom malo byť vytvorenie administratívneho komplexu budúceho Business Centra.

Jednotný výraz
Autori sa pôvodne snažili dostať do projektu jednoduchý pravouhlý systém, ktorý sledoval pôvodný koncept, no postupne im z toho vznikol iný motív – krivky hmoty, ktoré naznačili už na budove bývalej Priemyselnej banky (Business Centre Košice I). Celosklenená fasáda s kamenným olemovaním, organicky tvarovaná veža so schodiskom, výťahom a sklenenou nadstavbou – to všetko sa stalo inšpiračným zdrojom pre druhú etapu, počas ktorej vznikli dve veže. Výsledkom je súčasná podoba Business Centra s tromi vežami, ktoré sú na strešnej úrovni hmotovo modifikované.
Najnižší objekt z trojičiek (napravo od hlavného vstupu) dominuje ulici a nárožiu. Preteká z uličnej čiary Kuzmányho ulice do dotvorenej uličnej čiary Štúrovej ulice s naznačením zmeny smeru v jej východnejšej časti, pričom sa čiastočne inšpiruje aj v pôvodnej zástavbe. Je zároveň kompozičným uzáverom západnej strany Kuzmányho ulice s prelamovanou uličnou čiarou vzniknutou dostavbami bytových domov, ako aj bývalej Priemyselnej banky. Tretí objekt (naľavo od hlavného vstupu) je kompozične naviazaný na hmotovú kompozíciu objektov súdov a objektu dostavby areálu polície. Spojenie tejto hmoty preskočením Kuzmányho ulice vrcholí v rytmickom kroku hmoty s komplexom jednoduchých geometrických kvádrov súdov.
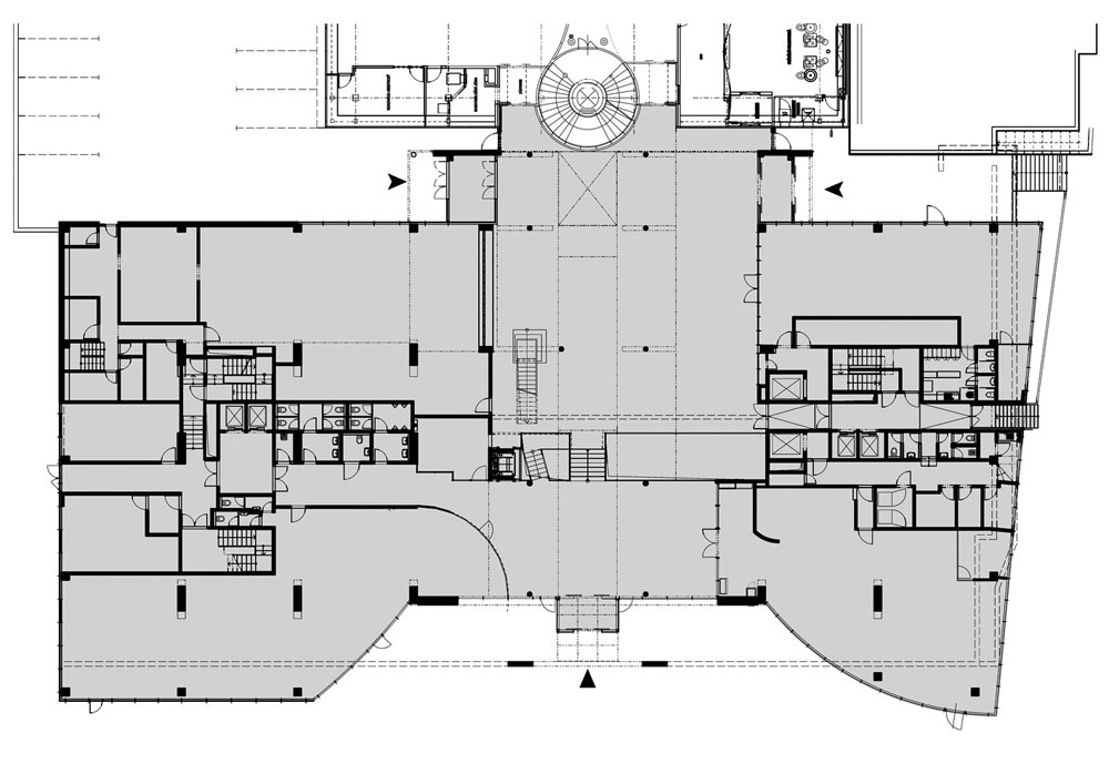
Kompozícia Business Centra II má v strednej časti transparentný vstupný kváder, ktorý stúpa až do výšky 2. NP. Podnožie jasne artikuluje tri objekty administratívy a vstupnú halu.
Materiály a konštrukcie
„Pri výstavbe sa sledovala maximálna úspornosť – pri materiáloch, technologickom vybavení i zariaďovaní interiérov,“ hovorí Štefan Pacák. Jeho slová sa premietajú do geometricky strohej reality administratívnych budov. Obvodový plášť je tvorený predsadeným zaveseným hliníkovým stĺpikovo-priečnikovým zaskleným systémovým riešením. Murované obvodové konštrukcie sú z pálených tehál so zateplením z minerálnej vlny a obložené prírodným kameňom, resp. omietkou. V parteri sú prepojené uskakovanou dvojpodlažnou hmotou s motívom „do zeme padajúcich“ troch kamenných rámov so zasklením, ktorý výtvarne spája novú stavbu s existujúcou stavbou bývalej Priemyselnej banky (BCK1). Strechy sú realizované ako jednoplášťové, ploché s opačným poradím vrstiev a hydroizoláciou z PVC, pričom hydroizoláciu ešte zvrchu chráni tenšia vrstva tepelnej izolácie. Strechy sa v maximálnej možnej miere realizovali ako zazelenené.
Interiéry
Úspornosť sa prejavila v interiéroch, ktorých zariadenie sa ponechalo na potreby budúcich klientov. Podlahové konštrukcie v riešených priestoroch sa navrhli v závislosti od účelu jednotlivých miestností. V komunikačných priestoroch sú realizované keramické dlažby, v kancelárskych priestoroch povlakové krytiny na báze prírodných materiálov. Exteriérové zasklené steny a okná sú v hliníkovom ráme s prerušeným tepelným mostom, s výplňou izolačným dvojsklom so súčiniteľom prechodu tepla U = 1,1 W/(m2 . K). Interiérové zasklené steny sú v hliníkovom ráme s jednoduchým zasklením.
Prevádzka Business Centra Košice II potvrdila správny výber funkčnej náplne. Možno súhlasiť s architektom Štefanom Pacákom, že architektúra je predovšetkým službou, ktorá musí sledovať kontext miesta. Ak sa to naplní, tak ako pri tejto administratíve, v porovnaní s ostatnými výsledkami súčasnej architektúry na Slovensku to nie je málo.
| Funkčné riešenie 3. PP – 1. PP – parkoviská, technologické miestnosti, podzemné priestory novej banky 1. NP – recepcia, bufet, reštaurácia, kuchyňa, prenajímateľné priestory (obchod), vstupné priestory novej banky 2. NP – bar/kaviareň + terasy, prenajímateľné kancelárske priestory 3. NP – 11. NP – prenajímateľné kancelárske priestory Strechy – terasy/technologické zariadenia |
| Business Centre Košice II Miesto: Štúrova ul. 27, Košice Druh stavby: novostavba Autori: doc. Ing. arch. Juraj Koban, Ing. arch. Štefan Pacák Projektant architektonickej časti: KOPA, s. r. o. Projektant prevládajúcej stavebnej častit: Ing. Maroš Motýľ Hlavný zhotovovateľ: HS HSV s. r. o. Developer: VSH development, s. r. o. Dozorná činnosť, technický dozor: Ing. Juraj Kuča Stavebné náklady bez DPH: 11 286 362,67 eur Začiatok výstavby: 11/2008 Ukončenie výstavby: 12/2010 Zastavaná plocha objektu: 1 652 m2 Obstavaný priestor: 43 510 m3 Celková podlažná plocha objektu: 16 610 m2 Počet podlaží: 14, z toho 3 podzemné, 11 nadzemných Plocha prenajímaných kancelárskych priestorov: 6 424 m2 Plocha prenajímaných predajných priestorov, sklady: 266 m2 Reštaurácia, bar, kuchyňa, zázemia: 638 m2 Plocha terás: 517 m2 Počet parkovacích miest: 156 Počet miest v reštaurácii (1. NP): 108 Počet miest v bare/kaviarni (2. NP): 68 |
Ľudo Petránsky
Foto: KOPA
Článok bol uverejnený v časopise ASB.

















