Astoria Palace sa včlenila do organizmu mesta
Polyfunkčná administratívna budova zvaná tiež Astoria Palace nedávno ukončila svoju stavebnú anabázu a dotvorila západný front Hodžovho námestia v bratislavskom Starom Meste. Architektonické riešenie rozvíja myšlienky víťazného návrhu súťaže, na ktorej sa zúčastnilo úctyhodných 34 autorských kolektívov. Táto súťaž z roku 1999 bola zároveň prvou, ktorú vypísal súkromný investor. „Snažili sme sa o primeranú mierku a proporcie hmoty s dôrazom na formovanie fasády do námestia,“ hovorí spoluautor objektu akad. arch. Eduard Šutek. „Tá má výraz primeranej monumentality, vo vyváženom pomere plných kamenných a zasklených plôch.“
Dom v centre a jeho peripetie

Takmer hneď po naštartovaní projektu sa jeho rozvojový mechanizmus zadrhol. Autorov a realizátorov zdržali najmä preložky všetkých inžinierskych vedení, o ktorých neboli potrebné informácie. „Pozemok na výstavbu polyfunkčného objektu bol priestorovo mimoriadne obmedzený, najmä z hľadiska potrieb plôch na realizáciu stavby,“ spomína architekt Eduard Šutek. „Navyše, bol zaťažený existenciou podzemných vedení mestského a miestneho významu vo veľkom rozsahu, ktoré sme museli preložiť v zložitých limitných podmienkach územia.“
Konkrétne išlo o trafostanicu, káblovú a technickú chodbu (vodovod), kanalizačný zberač, plynovod, trolejové vedenie, ale aj premiestnenie zastávky MHD. Treba spomenúť, že preložky sú podstatnou časťou stavby, ktorá je vyvolanou a podmieňujúcou investíciou pre vlastnú stavbu polyfunkčného domu.
Zbrzdenie vyvolala aj samotná stavba, ktorá sa nachádza na veľmi frekventovanom mieste. Vo svojej architektúre je veľmi členitá a netypická, čo si vyžiadalo svoj čas. Krokom do neznáma bolo podľa tvorcov aj jej priame napojenie na podchod Astoriu Passage, z čoho vyplývali inžiniersko-stavebné nadväznosti. Nakoniec však vznikol viacúčelový mestský dom, ktorý sa vyrovnal so špecifikami svojej lokality na hranici historickej zástavby a novej urbanistickej štruktúry. Dôležité limitujúce podmienky na pôdorysný aj pohľadový „plán“ objektu stanovila dopravná funkcia, ktorú plní parter budovy. Rešpektovala tiež väzby navrhovaných funkcií na existujúce lokálne i celomestské danosti.
Prevádzkové a dispozičné usporiadanie
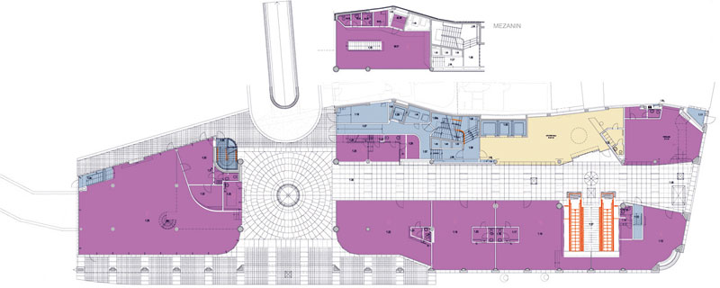
Z hľadiska rozsahu je prevažujúcou funkciou objektu administratíva, ktorá sa nachádza od 2. NP vyššie, a statická doprava prostredníctvom parkovania v troch podzemných podlažiach. Z hľadiska mestotvorby je najdôležitejšie 1. NP – čiže spomenutý parter, kde je rozhodujúcou funkciou mestská pešia komunikácia. Tá je vo forme krytej pasáže s väzbou na existujúci podzemný podchod Hodžovým námestím a verejné pešie trasy – chodníky ulíc Palisády, Panenská a Suché Mýto. Tu sa vytvoril aj priestor na autobusovú zastávku MHD.
Povedľa vstupu do administratívnej časti objektu na tento komunikačný priestor nadväzujú priestory mestskej vybavenosti predajní a nevyhnutné priestory servisných funkcií: miesto na odpadky, únikové schodiská parkoviska a pod. Podstatnú časť parteru tvoria prenajímateľné priestory mestskej vybavenosti. V troch podzemných podlažiach sa nachádza podzemná parkovacia garáž s vjazdom z Panenskej ulice, na 1. PP s prepojením na administratívnu prevádzku.
V garáži je 89 parkovacích miest, z toho 6 pre osoby so zníženou schopnosťou pohybu, ktoré majú bezbariérový prístup výťahom do 1. NP. V budúcnosti bude garáž v úrovni 2. a 3. PP prepojená s podzemnou garážou v pripravovanom objekte Astoria Palace II, s výhodným výjazdom automobilov priamo na Staromestskú ulicu. Druhé podzemné podlažie je riešené s možnosťou dvojúčelového využitia priestoru, ako úkryt budovaný svojpomocne v zmysle zákona o civilnej ochrane obyvateľstva. V 1. PP je technická centrála objektu. Administratívna prevádzka sa rozkladá na 2. až 7. NP, pričom 6. a 7. NP sú ustupujúce. Administratívne priestory sú navrhnuté na uvoľnenom pôdoryse umožňujúcom veľkopriestorové aj bunkové usporiadanie kancelárií.
Konštrukcia a fasáda
Konštrukčne je stavba koncipovaná ako monolitický železobetónový skelet s použitím časti prefabrikovaných prvkov. Spodnú stavbu tvorí železobetónová uzatvorená krabica pozostávajúca zo základovej dosky, stien, vnútorných stĺpov a stropných dosiek. Základové železobetónové konštrukcie sú realizované z vodotesného betónu. Horná stavba pozostáva zo sústavy obvodových a vnútorných železobetónových stĺpov, železobetónovej výťahovej šachty, energošachiet, výplňového muriva, obvodových a vnútorných prievlakov.
Fasáda je architektonicky charakterizovaná kombináciou transparentných zasklených plôch a plných plôch s obkladom z prírodného kameňa a so zatepľovacím fasádnym omietkovým systémom – ten sa nachádza najmä v zadných štítových stenách. Kamenný obklad je vytvorený ako odvetraný fasádny zateplený systém a fasádne zasklené plochy ako hliníková systémová konštrukcia so zasklením tepelnoizolačným dvojsklom. Časť fasády orientovaná do najviac oslneného a akusticky namáhaného priestoru námestia má dvojplášťové zasklenie s vetranou prístupnou medzerou.
Ploché časti striech slúžia ako pochôdzne terasy s betónovou dlažbou s vymývaným povrchom. Na plochých strechách má byť inštalovaná zeleň, ktorá z budovy vytvorí oázu mestskej záhrady.
Funkcionalizmus s emóciami
„Nemali sme dôvod meniť košeľu domu ani vlastný názorový kabát,“ hodnotí architekt Eduard Šutek výsledok niekoľkoročnej anabázy. „Z nášho pohľadu je to presne to, čo sme chceli – pravda, niektoré detaily boli medzičasom prerobené, ale to už je asi osud stavieb.“
Pohľadový charakter Astorie Palace vychádza z inej budovy architekta Šuteka – zo Slovenskej poisťovne na Dostojevského rade. Astoria Palace sa však posunula k čistej hmote, ktorá vytvorila kompaktnú štruktúru architektúry. Autori však nechceli strohý funkcionalizmus. Akýmsi emocionálnym kontrastom je aj farebnosť skiel a ďalších detailov konštrukčných nuáns, ktorým architekti venovali zvýšenú pozornosť.
![]() |
![]() |
Už sme spomínali mestotvorný činiteľ – tým však nie je len samotný objekt. Vytvorením Astorie Passage, čiže mestského interiéru, autori ponúkli priestor na 300-metrovú pasáž, ktorá oživuje niekdajšiu slávu bratislavských pasáží. Ide o akúsi pridanú hodnotu, ktorej význam zhodnotí až budúcnosť.
Vytrvalosť investora i autorov nakoniec priniesla svoje ovocie. Okrem iného aj v podobe ceny od realitného časopisu CiJ Journal. Medzinárodná porota ocenila budovu najmä za výbornú polohu, príťažlivú architektúru, komerčný úspech a prekonanie mnohých prekážok. Zvyšok si musí Astoria Palace vybojovať sama. Získanie genia loci bude ešte behom na dlhšiu trať. O svoje miesto v organizme mesta sa však prihlásila veľmi naliehavo.
Pôdorys 1. NP
Astoria Palace
Miesto: Hodžovo námestie v Bratislave
Architekti: akad. arch. Eduard Šutek, Ing. arch. Andrej Šutek
Generálny projektant: ARCHITEKTI B.K.P.Š., s. r. o.
Investor: I.P.R. Slovakia, s. r. o.
Generálny dodávateľ: INTERMONT, a. s.
Začatie stavby: jar 2004
Ukončenie stavby: október 2007
Náklady na stavbu: 450 mil. Sk
Zastavaná plocha nadzemných podlaží: 8 088 m2
Zastavaná plocha podzemných podlaží: 3 327 m2
Úžitková plocha celková – nadzemné podlažia: 6 250 m2
Úžitková plocha celková – podzemné podlažia: 2 993 m2
Úžitková plocha (kancelárie, predajne): 5 043 m2
Ľudo Petránsky
Foto: Andrej Šutek, Dano Veselský, I.P.R. Slovakia, s. r. o.
















