Architektúra ako zážitok: Sídlo spoločnosti Now 26
Úlohou architektov bolo vytvoriť nový imidž produkčnej spoločnosti sprostredkovaný novou architektúrou. Architektúrou v prvom rade otvorenou diváckej verejnosti, ktorá práve na tomto mieste môže vyjadriť svoj názor na vysielanie.
V júni minulého roku bolo otvorené nové pôsobisko spoločnosti Now 26 podľa projektu thajského ateliéru Architectkidd. Produkčná spoločnosť, ponúkajúca digitálnu TV stanicu, si hľadala nové priestory. V centrálnej časti Bangkoku si vyhliadla stavbu s potrebou revitalizácie a prestavby. Budova sa nachádza v uličnej zástavbe zhruba 4- až 5-podlažných objektov. Cez ulicu sa priamo pred ňou otvára voľné priestranstvo s viacerými stromami. Priestor s potenciálom námestia sa dnes využíva ako parkovisko a plocha na konanie trhov či zhromaždení s programom. Architekti zo štúdia Architectkidd sa na tomto mieste už raz realizovali. Ich rekonštrukcia kaviarne Hard rock café priamo na spomínanom „námestí“ zrejme oslovila aj produkčnú spoločnosť.
Oceľové rúrky ako primárny materiál sú ekonomicky výhodným riešením.
Inšpirácia in situ
Prvé impulzy a inšpirácia prišli spolu so začatím prác na odstraňovaní opláštenia pôvodnej stavby. Obvykle cielene zneviditeľnené sústavy elektrických inštalácií, rúr a káblov boli zrazu odhalené spolu s oceľovým skeletom. Logicky trasované, ohýbané, s množstvom rozličných detailov, prechádzajúce viacerými materiálmi, povrchmi, dierami či priestormi. No vždy čo najlepšie skryté v útrobách stavby. Architekti si zo staveniska odniesli do kancelárie nápad na experiment. Pokus vytvoriť charakter novej stavby sústavou oceľových rúrok s vlastným trasovaním. Na rozdiel od inštalácií však nechať systém viditeľný, na povrchu. Spraviť z neho tému celej novej architektúry. Ponúknuť novú korporátnu identitu spoločnosti s odkazom na pôvod v predošlej stavbe.
Materiálová komplexnosť je podčiarknutá všadeprítomnou bielou, ktorá podporuje želaný imidž otvorenej spoločnosti.
Oceľová kontinuita
V projekte vymysleli Architectkidd systém oceľových rúrok ako predsadenú fasádu. Ohraničuje vonkajší poloverejný medzipriestor včlenený medzi ulicu a interiér produkčného štúdia. Oceľová sieť je však nástrojom rôznorodého využitia. Okrem toho, že má funkciu fasády, stvárňuje tiež identitu firmy. Plní aj úlohu zábradlia. Je nositeľom názvu spoločnosti, pričom zostala celistvosť fasádneho závoja neporušená. Rúrky z ocele sú duté a tie exteriérové majú prierez 19 mm. Každá jedna je zakotvená do pôvodnej oceľovej konštrukcie a po celej svojej dĺžke viackrát aj do prídavnej podkonštrukcie. Okrem niektorých výnimiek rúrky medzi sebou navzájom kotvené nie sú. Na fasáde podliehajú prísnemu rádu v podobe vzoru, vytvoreného rovnakým vzájomným rozstupom a jednotným uhlom sklonu. Optický dôsledok týchto nárokov spôsobuje, že budova pôsobí z diaľky jednoliato a nepriehľadne, no zblízka je cez transparentný drôtený plášť výborný výhľad dovnútra. Téma rúrok prechádza aj tam, no v transformovanej podobe. Ich priemer už je iba 16 mm. V interiéri slúžia ako súčasť prvkov mobiliáru. Od konštrukcie sedacieho nábytku a pultov až po priestorovú štruktúru v nahrávacom štúdiu.
Snahou architektov z Architectkidd je sprostredkovať z architektúry rukolapný zážitok.
Handmade architekti
Návrh oceľového systému bol z digitálnej podoby trojdimenzionálneho modelu spracovaný do 2D údajov a smeroval k stavebným technikom. Ich remeselná zručnosť a dostupnosť potrebných nástrojov tu hrali podstatnú rolu. Vďaka nevyhnutnej vzájomnej spolupráci s dôsledkami úprav do návrhu oceľovej siete dostal projekt nakoniec reálne kontúry. Priamo na stavbe si thajskí architekti s pomocou majstrov vlastnoručne overovali nakreslené a ohýbali oceľové rúrky na prístrojoch na úpravu elektrických vedení. Začali s elementárnymi ohybmi na jednoduchú hornú časť fasády, kde rúrky zostávajú v jednej rovine. S náznakmi fortieľa a stúpajúcej časovej efektivity výroby pokračovali k zložitejšiemu ohýbaniu. Práca sa presunula do stredovej časti fasády, k schodisku. Architekti tu využívajú tvárnosť ocele v medziach troch dimenzií. Po tejto skúške zostávalo zvládnuť najvyššiu úroveň náročnosti: časť fasády s názvom spoločnosti a vytvorenie skulptúry pomyselného stromu, kde sa jednotlivé rúrky na prízemí spoja na jednom mieste.
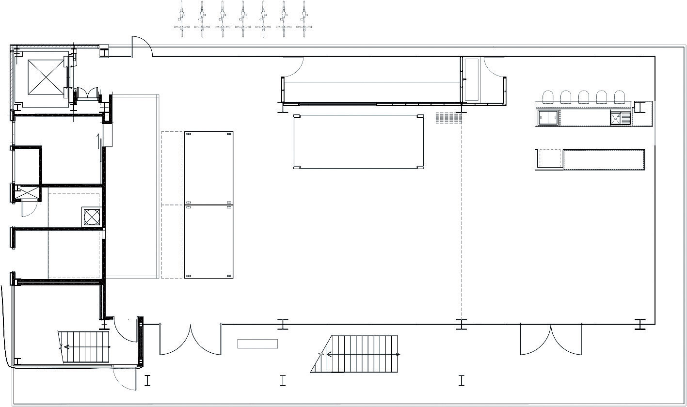
Pôdorys 1. nadzemného podlažia
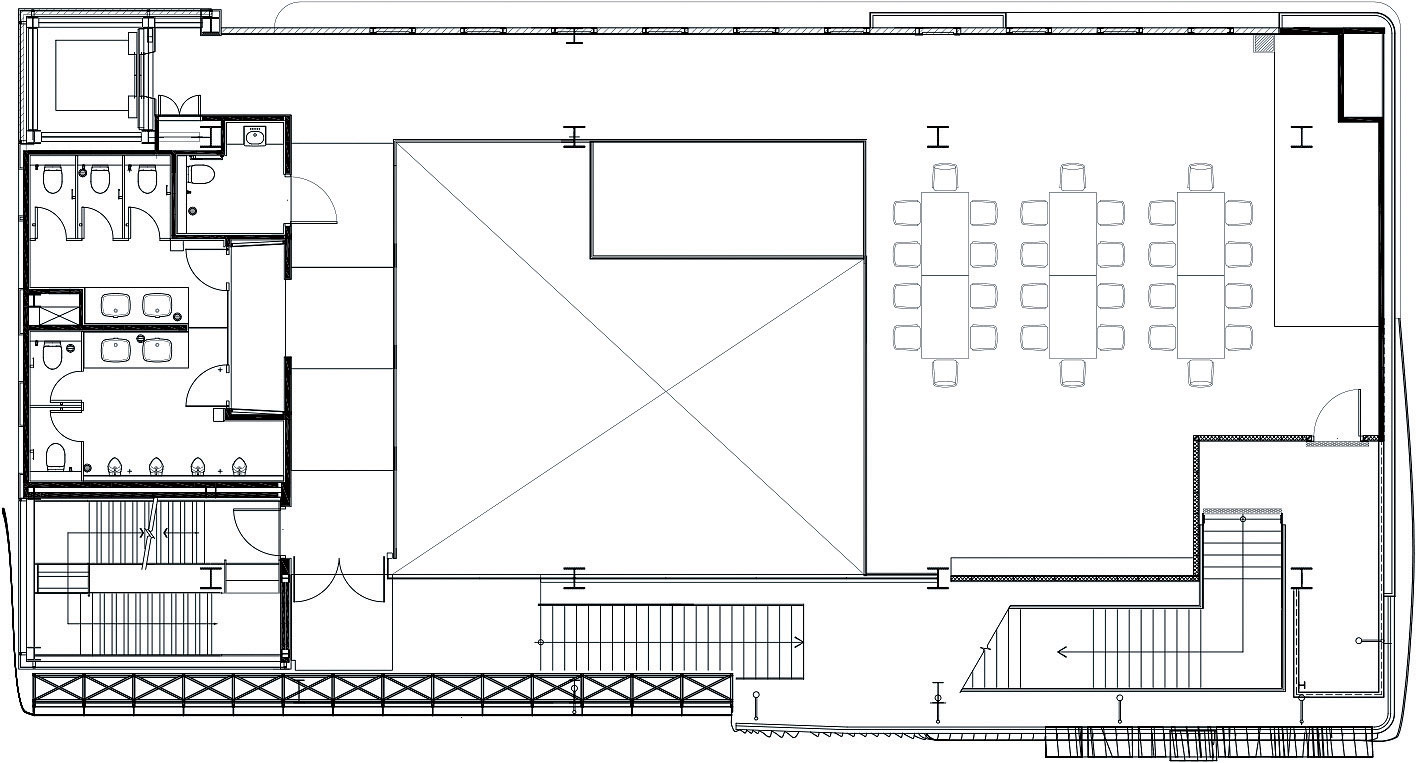
Pôdorys 2. nadzemného podlažia
Biela ako podklad aj prezentácia
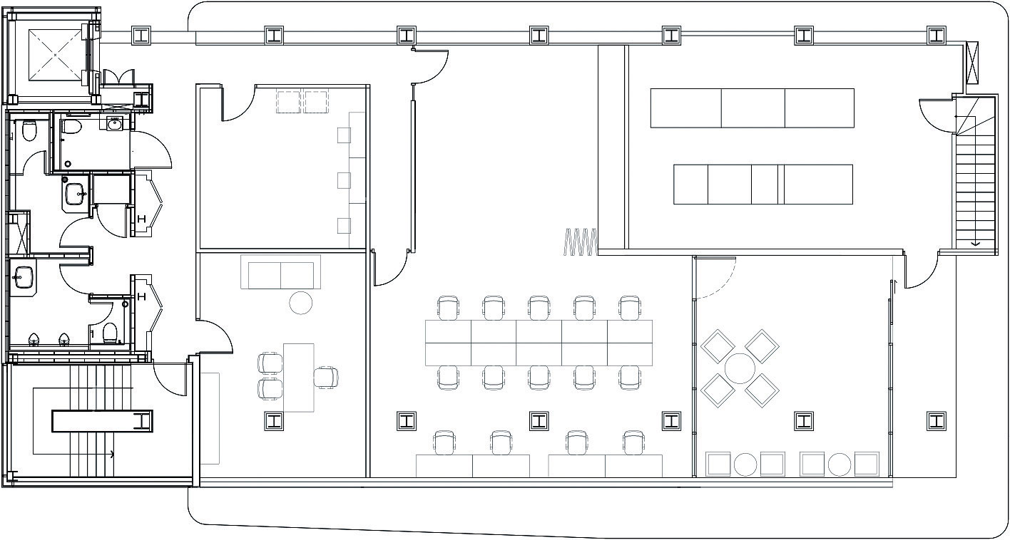
V pretlaku všadeprítomných veľkoplošných pútačov a reklamných plôch nemohol priestor na sebaprezentáciu na budove Now 26 chýbať. Produkčná spoločnosť sa výsledkami svojej práce môže priamo pochváliť na rozmernom monitore umiestnenom na čelnej fasáde. Zvolená biela koncepcia budovy umožňuje vysielaniu na obrazovke ešte viac vyznieť. Biela farba robí počas dňa zo stavby nenápadného suseda, no v noci rozžiari osvetlením interiéru celé svoje okolie a láka pohľady. Chladná monochrómia interiéru ožíva farbami s príchodom ľudí a ich každodenných osobných materiálnych potrieb, ako aj zvukmi pracovného ruchu. Štvorpodlažná stavba poskytuje na najvyššom poschodí kancelárske priestory produkcie, nasleduje podlažie s nahrávacím štúdiom, prenajímateľný dvojpodlažný priestor s galériou na konanie eventov alebo využiteľný ako showroom a nárožná kaviareň na prízemí.
Pôdorys 3. nadzemného podlažia
Pôdorys 4. nadzemného podlažia
Architectkidd
Ako už bolo naznačené, thajskí architekti sa často podieľajú na realizácii svojich projektov aj vlastnoručne. Napriek rôznym technickým vymoženostiam zastávajú ako ateliér názor, že netreba zabúdať na podstatný aspekt vybudovania každej jednej stavby a to je práca ľudskej ruky. Väčšinu stavebných prác má na starosti práve ľudský faktor. Vo svojich projektoch vždy iným spôsobom vzdávajú práci rúk hold. Veria vo vzájomne sa obohacujúci vzťah medzi počítačom a remeslom. Architekti projektujúci z Bangkoku sa veľa dívajú a pozorujú. Zaujímajú ich najmä materiály a možnosti ich použitia. Inšpiruje ich sledovanie stavebných strojov na staveniskách, schopných formovať materiály do želaných podôb. Videné potom pretavujú do experimentov s vlastnými ideami a akoby spätne z už vyvinutého vytvárajú nové začiatky. Architektonické štúdio troch partnerov sa do povedomia širšej verejnosti dostalo výhrou v regionálnej súťaži Holcim Award for Asia Pacific v roku 2014, kde bodovalo s projektom útočiska pre vzácne vtáctvo zachránené z pašovania na čiernom trhu.
Princíp jednotného sklonu a rozostupu
Výnimky zo základného vzoru fasády
NOW 26
Miesto: Bangkok, Thajsko
Investor: Nation Multimedia Group
Architekt: Architectkidd
Partneri: Luke Yeung, Jariyawadee Lekawatana, Udomsak Komonvillas
Projektový tím: Luke Yeung, Sorawut Kittibanthorn, Mana Nampanwiwat, Korpong Sanaha, Tamfun Vatayanon, Tammarat Rodpul
Stavebník: Thai Obayashi
Generálny dodávateľ stavby: Thai Obayashi
Dizajn svetla: Gooodlux Design Consultancy
Celková podlahová plocha: 1 000 m2
Realizácia: 2015
Detail oceľovej siete pri nástupnom schodisku
Detail spojenia rúrok do abstrahovaného stromu
Bangkok Text: Beáta Paňáková
Článok bol uverejnený v časopise ASB.
























