Ani výrobná hala nemusí z pohľadu architektúry nudiť
Časy sa menia, investori pochopili. O výrobných halách z pohľadu architektonického riešenia už možno písať aj odborných časopisoch.
Výrobné haly už dnes nie sú otázkou utilitárnej konštrukcie s minimalizáciou všetkého, čo by mohlo pripomínať architektúru, estetiku, reprezentatívnosť. Zveriť návrh výrobnej haly do rúk architekta neznamená automaticky zbytočne vynaložené náklady. Navyše, ak je súčasťou takejto stavby aj administratívna časť. Vedenie spoločnosti spolu so svojím kancelárskym zázemím nemusí sídliť v niečom, čo pripomína len stavebný prílepok k samotnej výrobnej hale.
„Administratíva má byť akcent, najzaujímavejší bod budovy, to, čo firmu reprezentuje,“ hovorí Adam Cifra, architekt spoločnosti Delta Projektconsult, ktorá v prípade výrobnej haly s administratívnym zázemím pre firmu Witte v Ostrove nad Ohří v západných Čechách, zastrešila projektovú fázu aj manažment výstavby haly. Ide o rozsiahly komplex piatich hál spojených do jedného celku s kancelárskym blokom s celkovou rozlohou zastavanej plochy 22-tisíc m2.
Administratívny blok s reprezentatívnym vstupom je akcentom celej stavby.
Dynamické priečelie
Svoje tvrdenie architekt podopiera jednoduchým riešením hlavného vstupu do budovy. „Recepciu sme posunuli nabok, hneď oproti vstupu sme umiestnili showroom, ktorý reprezentuje to, čomu sa firma venuje,“ vysvetľuje Adam Cifra. Zákazník takúto dispozíciu ocenil hneď pri slávnostnom otvorení, kde sa priamo overila jej funkčnosť. Všetky návštevy vstupujú do jednoduchých, ale elegantných priestorov s vystavenými produktmi firmy a odtiaľ ďalej do reprezentatívnych zasadacích miestností.
Z foyer je svetlíkom presvetlený priamy vstup na horné poschodia, kde sídli administratíva a vedenie spoločnosti. Logo firmy má v sebe krivky v podobe písmena S. Hlavné priečelie odkazuje na logo aj na to, že sa v objekte vyrábajú komponenty pre automotive priemysel. Jeho charakteristickým znakom je dynamika, pohyb, zmena a práve tieto atribúty sa objavujú na dominantnej západnej fasáde.
Vertikálne lamely majú primárne tieniacu funkciu, pri príjazde z hlavnej cesty sa však ich farebnosť v dynamickej vlne mení z červenej na sivú. „Pre klienta sme pripravili animáciu, ako bude zaoblenie fasády pôsobiť. Nápad bol pozitívne prijatý,“ spomína architekt a dodáva, „korporátne farby, modrú a červenú, sme použili na sklenených tabuliach na zábradlí interiérového schodiska v administratíve. Odtiene oddeľujú poschodia a oživujú inak veľmi stroho monochromaticky svetlý interiér.“
Pohľadový betón a farebné akcenty v korporátnych farbách interiéru svedčia.
Pohľadový betón a prefabrikované betónové prvky, také samozrejmé v priemyselných priestoroch, nechali projektanti vyznieť v administratíve ako moderné povrchové úpravy. Surový vzhľad betónu sa do mnohých interiérov vkladá dodatočne a na efekt, bez skutočných súvislostí s konštrukciou stavby. V tomto prípade je priame prepojenie bez diskusie a nezakapotované betónové stĺpy v reprezentatívnych zasadacích miestnostiach pôsobia veľmi oslobodzujúco a nenútene.
Vlna na fasáde odkazuje na logo firmy.
Priemyselná architektúra nemusí nudiť
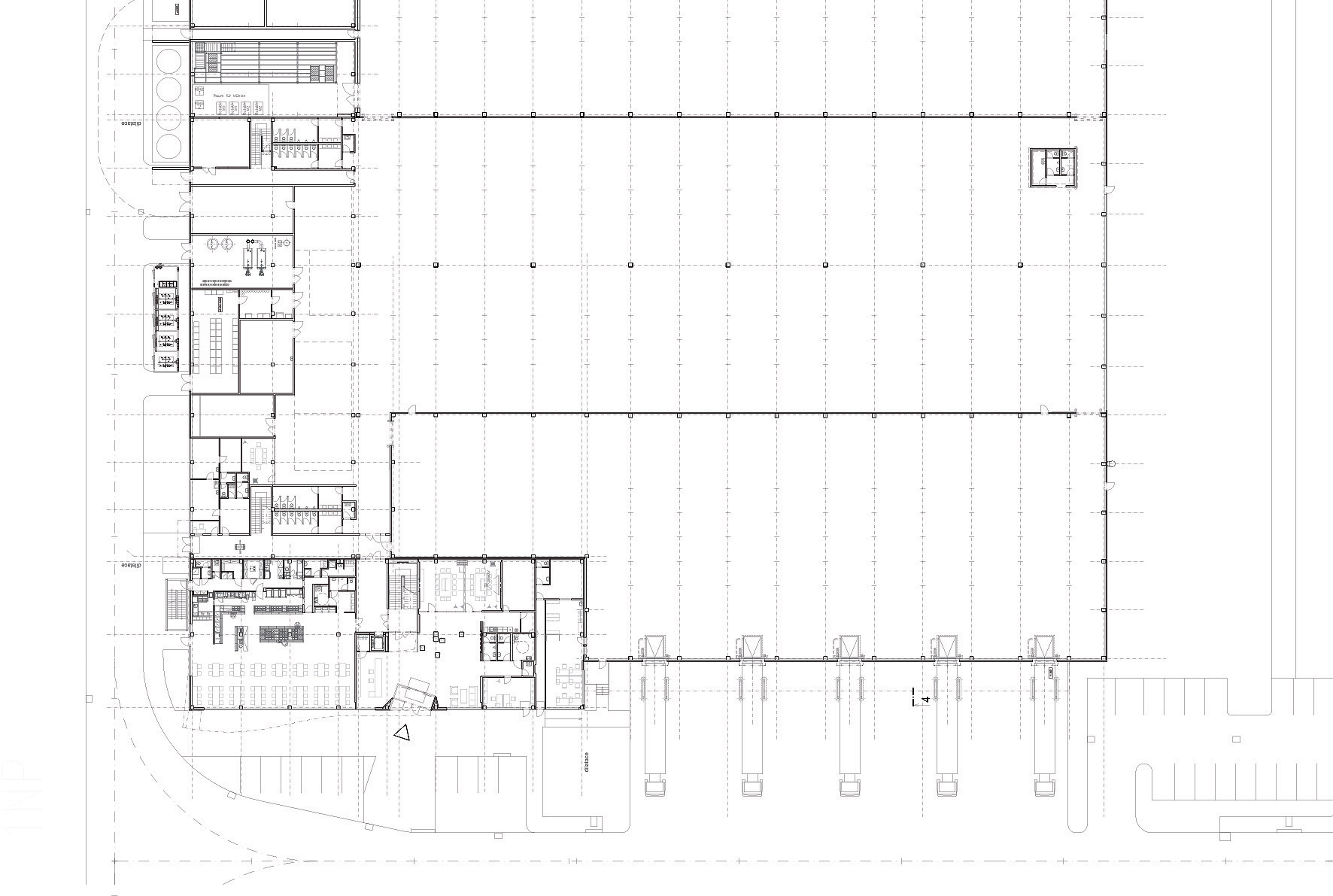
Okrem architektonického a konštrukčného aspektu sa tím projektantov musel popasovať najmä s funkčno-prevádzkovým usporiadaním objektu. „Jedáleň pre zamestnancov sme napríklad logicky umiestnili na prízemie. Srdcom firmy je lakovňa so špičkovou technológiou výroby, čo si vyžadovalo opatrenia z pohľadu požiarnej ochrany.
Pôdorys administratívnej časti
Celou halovou časťou sa vo výške 2. nadzemného podlažia tiahne dlhá lávka, z ktorej sú prístupne všetky haly aj hygienické zázemie pre zamestnancov,“ opisuje architekt detaily projektu. A hoci si klient aj v tomto prípade strážil náklady a výstavba prebiehala v rýchlom tempe, môžeme skonštatovať, že ani výrobný komplex nemusí byť z pohľadu architektúry nuda.
Čelný pohľad
Výrobná hala s administratívnym zázemím Witte
Miesto: Ostrov nad Ohří, Česká republika
Investor: WITTE Automotive
Architektúra: Ing. arch. Adam Cifra, Delta Projektconsult
Manažment stavby: Delta Projektconsult
Začiatok výstavby: jar 2015
Ukončenie výstavby: máj 2016
Ostrov nad Ohří, Česká republika
Text: Mária Nováková
Podklady, foto, dokumentácia: Delta Projektconsult
Článok bol uverejnený v časopise ASB 11-12/2016.


















