Administratívna budova v Trnave v nízkoenergetickom štandarde
Administratívne budovy pri súčasnej potrebe trhu rastú ako huby po daždi. V malých i veľkých mestách majú zvyčajne ľahko čitateľný vzhľad presklenej fasády bez výraznejšieho architektonického podpisu. V mnohých prípadoch pri týchto stavbách stále absentuje efektívne znižovanie energetickej náročnosti budovy. Nový projekt architektov Ing. arch. Kristíny Riečičiarovej a Ing. arch. Rastislava Bocána na Modranskej ulici v Trnave spája prvky úspory s moderným architektonickým stvárnením.
Jednoduchú pozdĺžnu hmotu tmavej fasády (Fundermax) vhodne dopĺňa bielaštrukturovaná omietka (Caparo)l.Administratívna budova je navrhnutá v pôvodnom areáli JRD, s určením pre špedičnú firmu. Ide o menšiu spoločnosť, ktorá nepotrebuje rozľahlé plochy, preto má dvojpodlažný projekt v menšom meradle prehľadnú dispozíciu s komfortným riešením priestorov. Okrem samotnej stavby administratívy komplex dopĺňajú aj skladový priestor a spevnené plochy s parkoviskom.
Z hľadiska energetickej efektívnosti sa v projekte ráta s nízkoenergetickým štandardom.
Steny s integrovanou izoláciou
Pre zvislé nosné konštrukcie objektu boli na vyššiu tepelnú úsporu navrhnuté tvárnice Evoton 365 P+D TI . Ide o tvárnice s integrovanou tepelnou izoláciou. Pôvodné budovy sú tiež tehlové. 
| Rozmery | Lambda ΛR | Prestup tepla U2 | Tepelný odpor R2 | Objemová hmotnosť | 
| mm | W/mK | W/m2K | m2K/W | kg/dm3 | 
| 247/365/249 | 0,07 | 0,18 | 5,32 | 0,50 | 
Využitie plochej strechy
Plochý tvar strešného plášťa umožnuje umiestnenie fotovoltických panelov, ktoré sa podieľajú  na zlepšení energetickej bilancie budovy.
Podlahové vykurovanie
Vykurovanie objektu zabezpečuje sálavé podlahové vykurovanie. V miestach, kde tento systém nemôže zabezpečiť pokrytie tepelných strát, sú umiestnené radiátory.
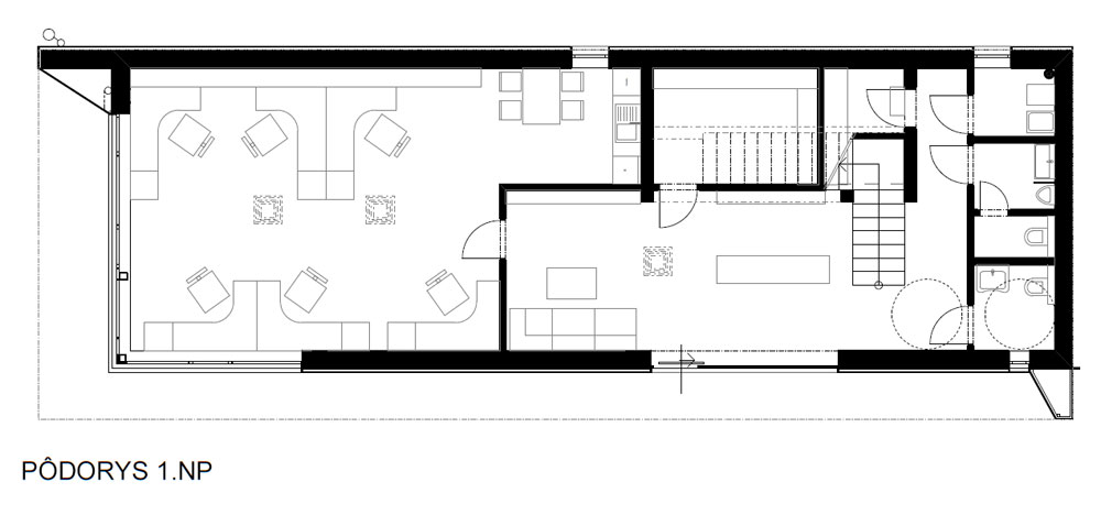
Nový administratívny objekt plynulo nadväzuje na existujúcu výstavbu v areáli bývalého družstva obdĺžnikovým pôdorysom.
Prvé nadzemné podlažie otvára vstupná hala s recepciou, do ktorej sa vstupuje zo západnej strany. Odtiaľto je aj priame napojenie na skladovú časť. Severnú časť dispozície vypĺňa otvorený priestor kancelárie pre šesť osôb. K tomuto prináleží i pohodlné zázemie pre zamestnancov. Dolné podlažie tvoria aj samostatný archív, serverovňa a hygienický blok.
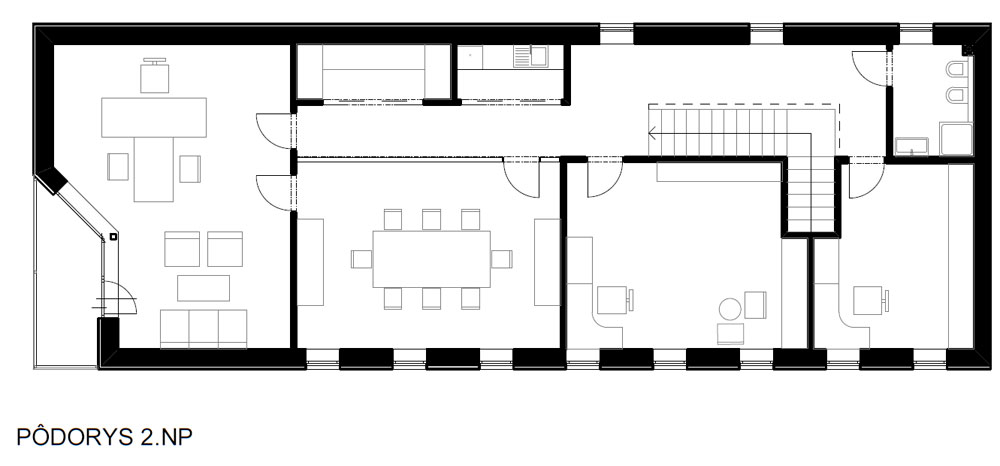
Druhé nadzemné podlažie je prístupné schodiskom zo vstupnej haly. Hlavné funkcie poschodia tvoria kancelária riaditeľa, zasadačka a dve nadväzujúce kancelárie pre zamestnancov. Ostatné priestory sú navrhnuté ako obslužné – zázemie a hygienický uzol.
Napojenie novej hmoty administratívnej budovy na existujúcu štruktúru. 
Umiestnenie fotovoltických panelov na streche budovy zlepšuje energetickú samostatnosť objektu.
Pohľady na fasádu zo severnej a západnej časti 
Autorka článku: Ing. arch. Paulína Oravcová
Autorka projektu: Ing. arch. Kristína Riečičiarová
Zodpovedný projektant: Ing. arch. Rastislav Bocán
Realizátor projektu: CS, s. r. o.
Investor projektu: ALPE EUROSERVICE, s. r. o.
 
													


















 
					 
					 
					 
					 
					 
					 
					 
					 
					 
					 
					 
					 
					 
					 
					 
					 
					 
					 
					 
								 
								 
								 
								 
								