Administratívna budova Rosum chce získať Gold Level v certifikácii LEED
Projekt Rosum je realizovaný na princípoch trvalej udržateľnosti a má ambíciu získať Gold Level v certifikácii LEED. Rosum potvrdzuje trend, ktorý je čoraz zreteľnejší aj na Slovensku. Aj veľkí developeri už projektujú udržateľné budovy. Prečo? Odpoveď je jednoduchá – certifikácia zvyšuje hodnotu budovy.
„Na celosvetových príkladoch bolo dokázané, že keď ľudia pracujú v udržateľných budovách, tak sú produktívnejší,“ upozorňuje Ing. Ladislav Piršel, PhD., výkonný riaditeľ Slovenskej rady pre zelené budovy.
„Dokonca tam bol uvedený zaujímavý pomer, že 90 % všetkých nákladov počas celej životnosti budovy, resp. počas fungovania firmy, sú náklady spojené s ľuďmi. Preto je dôležité, aby ľudia robili efektívnejšie – tzn. každé jedno percento efektívnosti z 90 je oveľa vyšší prínos ako desiatky percent zníženia nákladov na prevádzku budovy. A to je jednoznačná výhoda pre užívateľov daných priestorov.“ V čom teda Rosum tento trend podporuje?
Základy konceptu
Rosum je ďalším administratívnym projektom investičnej spoločnosti Penta v Bratislave a dalo by sa povedať, že voľne nadväzuje na úspešný koncept Digital Park II a III. Základom je výhodná lokalita širšieho centra mesta, dobrá dopravná dostupnosť, slušný architektonický štandard, energetická úspornosť a princíp trvalej udržateľnosti pri plánovaní aj výstavbe.
A čo sa týka ekonomickej stránky, možno súhlasiť s vedúcim oddelenia lízingu v Penta Investments Jánom Bryndzom, že „rovnako ako pri všetkých našich projektoch sme popri nadpriemernej kvalite a dôraze na architektúru, hľadali súlad medzi finančnou stránkou projektu a prostredím. Tak aby Rosum prispel k zvyšovaniu hodnoty celej lokality v prospech jej obyvateľov a mesta.
Základnú výtvarnú kompozíciu tvorí kontrast plných objemov kancelárskych veží s „poloprázdnym“ priestorom medzi nimi.
Rosumom zároveň reagujeme na dnešný trh, kde je vysoký dopyt po dostupných a funkčných priestoroch.“ Inými slovami, v hlavnom meste je stále miesto na ďalšie tisícky metrov štvorcových kancelárií. To však v praxi neznamená, že Rosum bude mať hneď od začiatku stopercentnú obsadenosť. „S Rosumom sme začínali ako so špekulatívnou výstavbou, pričom pri otvorení máme už polovičnú obsadenosť,“ dodáva Ján Bryndza. „Dokončenie rokovaní o rezervovaných a voľných priestoroch predpokladáme v priebehu roka 2017.“
![]() |
![]() |
| Západný pohľad | Rez |
Dve veže
Dve veže. To nie je druhý diel Tolkienovho Pána prsteňov, ale základné vizuálne členenie 11-poschodového projektu Rosum. Severná v tmavšej antracitovej a južná v svetlejšej sivej farbe. Je zrejmé, že Rosum sa zrieka formálneho dekoratívneho architektonického jazyka. Základnú výtvarnú kompozíciu tvorí kontrast plných objemov kancelárskych veží s „poloprázdnym“ priestorom medzi nimi –parkovacím domoma terasovou zónou nad jeho strechou.
„Vizuálne architektonické rozlíšenie fasád pomáha užívateľovi a návštevníkovi jednotlivé funkcie budovy ľahko ,prečítať‛, dekódovať, teda sa v nej aj lepšie orientovať,“ hovorí Zdenek Pelinka vedúci ateliéru Obermeyer Helika, ktorý bol generálnym projektanom.
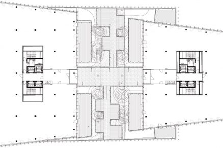
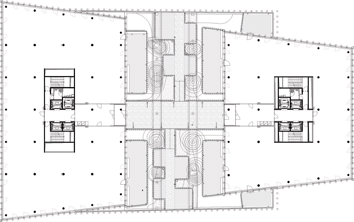
Terasová zóna nad strechou parkovacieho domu
Vstupná lobby zóna, obchodné prevádzky a jedáleň sú v znamení transparetného skla a peší parter charakterizuje minimalizácia hranice medzi interiérom a exteriérom budovy. Po celej výške podlažia zvýšeného prízemia je zasklená plocha s výrazným vertikálnym členením. Jednotlivé podlažia kancelárskych plôch od 2. NP sú tvorené obvodovými pásmi okien a sústavou zvislých a vodorovných prvkov – pilastrov a ríms, ktoré vystupujú pred rovinu okien.
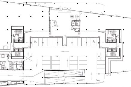
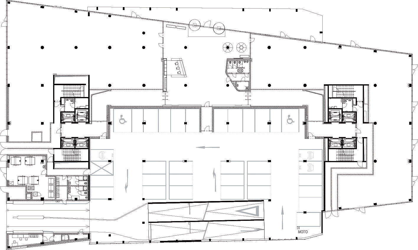
Pridanou hodnotou objektu je zelená pobytová strecha nad krytým parkoviskom. Parkovací dom má betónovú konštrukciu s pravouhlým rastrom stĺpov a horizontálnych dosiek jednotlivých poschodí s viditeľnými šikmými rampami umiestnenými za predsadenou konštrukciou rastra kovovej „fasády“.
![]() |
![]() |
| Pôdorys 1. nadzemného podlažia | Pôdorys 5. nadzemného podlažia |
Konštrukcia fasády
Pri takto navrhnutej fasáde bolo potrebné navrhnúť priebežnú konštrukciu predsadenú pred rovinu nosnej betónovej konštrukcie a pred ňu ešte predsunúť nosný rošt na obklad kompozitnými panelmi. Vonkajšia línia okien je 240 mm vzdialená od vonkajšej hrany betónu a hrana obkladu je vzdialená ešte o ďalších 210 mm. „Navrhnuté kotvenie sa musí vyrovnať s excentricitou uloženia okien a plášťa,“ hovorí Ing. Igor Kormuth, vedúci projekcie zo spoločnosti Ingsteel, ktorá realizovala fasádu.
„Detaily osadenia okien, ich vzájomné spoje, musia umožňovať pohyby výrobkov v dôsledku tepelného zaťaženia, zároveň musia byť z interiérovej strany parotesne uzavreté, z exteriérovej strany ochránené pred vniknutím zrážkovej vody, musia zabezpečiť tepelnú, ale aj akustickú pohodu, keďže sa budova nachádza v blízkosti frekventovaných dopravných ťahov.“
Lichobežníkový pôdorysný tvar budovy, s každou stranou jedinečnou, určil aj rôznorodosť výrobkov – výkresy kladenia okien obsahovali 85 typov okien a celkovo je medzi 2. a 11. nadzemným podlažím osadených 1 854 okien a dverí (na terase) so šiestimi typmi zasklenia. Ďalšie výrobky sa nachádzajú na 1. nadzemnom podlaží.
Aj pri tomto objekte spolupracoval Ingsteel so spoločnosťou Sapa Building Systems, ktorá je dodávateľom fasádneho a okenného systému Wicona. Ingsteel vyrobil zo systémového materiálu Wicona pásové okná, fasády a ďalšie protipožiarne konštrukcie, ktoré boli následne zabudované do stavebných otvorov. „Ide o veľkoformátové okná Wicline 75 EVO so skrytým krídlom a skrytým kovaním,“ upresňuje Albert Lapka, country manažér spoločnosti Sapa Building Systems.
„Na projekte Rosum boli použité aj fasády Wictec 50, 50 FP a 50 SLIM, pri ktorých išlo najmä o predsadené pásové okná Wicona. Pri veľkoformátových oknách bolo treba prijať špeciálne opatrenie umožňujúce realizáciu, montáž a následne používanie okenných krídel.
„Vybrali sme si ich aj preto, že požiadavky projektu boli náročné z tepelnotechnického hľadiska a z pohľadu akustiky – jednotlivé fasády mali rôzne požiadavky na Rw,“ dopĺňa Igor Kormúth „Taktiež bolo potrebné staticky spoľahlivo a efektívne navrhnúť systém kotvenia predsadeného okna opakujúceho sa na 2,7 km dĺžky obvodového plášťa budovy.“
![]() |
![]() |
| Horizontálny rez pásovým oknom so skrytým krídlom v kombinácii s alucobondovým obkladom | Vertikálny rez typickým poschodím |
Chladiace trámy
Z pohľadu vzduchotechniky je budova vetraná pomocou desiatich vzduchotechnických jednotiek s celkovým výkonom 150 000 m3/h. Pre kancelárske priestory sú určené dve samostatné prívodné a dve odvodné jednotky. „Naša spoločnosť nainštalovala a sfunkčnila tzv. chladiace trámy, prostredníctvom ktorých je privádzaný čerstvý vzduch,“ hovorí Ing. Magdaléna Švolíková Grolmusová, obchodná manažérka projektu zo spoločnosti KLIMAK.
„Okrem výmeny vzduchu tieto trámy zabezpečujú aj vykurovanie a chladenie priestorov. Chladiace trámy sa využívajú pri výstavbe administratívnych budov, pretože sú tiché (neobsahujú ventilátor), energetický účinné a rýchlosť prúdenia vzduchu je veľmi nízka, pričom nevzniká pocit prievanu.
Tepelná záťaž z technologických zariadení rozvodní, rackov, IT technológie a exponovaných priestorov sme vyriešili prostredníctvom cirkulačného priameho chladenia typu VRF. Systém je rozdelený do deviatich samostatných okruhov, ktoré je možné ovládať lokálne pomocou nástenných ovládačov a centrálne cez nadradený riadiaci systém.“
Rosum je skolaudovaný a pripravený prijať od začiatku budúceho roka nových nájomníkov. Investor tvrdí, že záujem zo strany nájomníkov je vysoký, teda existuje reálny predpoklad, že administratíva bude obsadená do konca roka 2017.
Vizualizácia budúcej podoby terasovej zóny slúžiacej na oddych.
ROSUM
Miesto: Ružinovská ulica, Bratislava-Ružinov
Investor: Penta Investments (ROSUM s. r. o.)
Generálny projektant: OBERMEYER HELIKA a. s.
Manažér a koordinátor výstavby: K4 a. s.
Začiatok a ukončenie výstavby: 6/2015 – 11/2016
Plocha nadzemných podlaží: 26 864 m2
Prenajímateľná plocha: 22 434 m2
Zastavaná plocha na 1.NP: 3 843 m2
Obstavaný priestor: 159 714 m3
Počet parkovacích miest: 484
Stavebné náklady: 32 mil. €
Realizátor fasády: INGSTEEL, s. r. o.
Dodávateľ systémového hliníkového materiálu: SAPA BUILDING SYSTEMS, SPOL. S R. O. – WICONA
Vzduchotechnika, chladenie: KLIMAK, s. r. o.
Železobetónový skelet: VÁHOSTAV SK
Zdvojené podlahy Prosystem (všetky nájomné jednotky): ProInterier s. r. o.
Kobercové štvorce Interface Composure, kaučuková podlaha Noraplan Sentica (najväčší nájomca): ProInterier s. r. o.
Zasklené hliníkové fasády, zasklené hliníkové protipožiarne dvere a steny: FTM trade, s. r. o.
BRATISLAVA
TEXT: ĽUDOVÍT PETRÁNSKY,
DOKUMENTÁCIA: OBERMEYER HELIKA,
VIZUALIZÁCIE: PENTA,
FOTO: MIRO POCHYBA
Článok bol uverejnený v časopise ASB 11-12/2016.




















