Administratívna budova, ktorá šetrí energiu
Administratívna budova LTD_1 v Hamburgu z dielne architektonickej kancelárie Pysall Ruge Architekten vyrástla na základe plánovania, ktoré sa zameriavalo najmä na trvalo udržateľný rozvoj, ekológiu a šetrenie zdrojmi – ekologické kritériá určovali urbanistickú koncepciu, spôsob výstavby, ako aj výber použitých materiálov. Preto sa niet čo čudovať, že budova bola ocenená zlatým certifikátom kvality Nemeckej spoločnosti pre trvalo udržateľné stavebníctvo.
 V procese revitalizácie mestskej štvrti sa na pozemku nemocnice svätého Georga v Hamburgu vybudovalo 120 bytových jednotiek a sedemposchodová administratívna budova pre nájomcov zariadenia poskytujúceho tradičnú východoázijskú zdravotnícku starostlivosť s približne 2 000 m2 úžitkovej plochy (obr. 1).
V procese revitalizácie mestskej štvrti sa na pozemku nemocnice svätého Georga v Hamburgu vybudovalo 120 bytových jednotiek a sedemposchodová administratívna budova pre nájomcov zariadenia poskytujúceho tradičnú východoázijskú zdravotnícku starostlivosť s približne 2 000 m2 úžitkovej plochy (obr. 1).
Zatiaľ čo štyri obytné bloky na zadnej severozápadnej strane areálu svojou hmotou odpovedajú presnej pravouhlej línii nemocničných krídiel a ďalej ju rozvíjajú, administratívna budova z dielne architektonickej kancelárie Pysall Ruge Architekten z Berlína orientovaná do ulice reaguje na existujúcu urbanistickú situáciu a výraznú geometriu budov samostatnou, organicky zvlnenou formou – ako hlava celého súboru. Hmota budovy tvorí spoločne s novovybudovanou výškovou budovou na východe mestský priestor a zároveň vyvýšené námestie – reprezentatívny vstup smerom ku križovatke na západe.
| Objekt: administratívna budova LTD_1 pre nájomcov zdravotnej starostlivosti Lokalita: Lübeckertordamm 1 až 3, Hamburg, Nemecko Stavebník: L. T. D. Lübeckertordamm Entwicklungs-GmbH c/o Versicherungskammer Bayer, Mníchov, Nemecko Architekti: Pysall Ruge Architekten, Berlín, Nemecko Vedenie projektu: Justus Pysall Spolupracovníci: Nicole Kubath, Jan-Michael Strauch, George Bradburn, Tobias Ahlers, Matthias Matschewski, Bartlomiej Kisielewski, Philipp von Matt Čas výstavby: rok 2007 až 2008 Návrh nosnej konštrukcie: Lichtenau Himburg Tebarth Bauingenieure GmbH, Berlín, Nemecko Interiér: Interior Design Návrh TZB: Reese Beratende Ingenieure VDI, Hamburg, Nemecko Fasáda: Sommer Fassadensysteme, Döhlau, Nemecko Certifikát: zlatý certifikát Nemeckej spoločnosti pre trvalo udržateľné stavebníctvo Audítori Nemeckej spoločnosti pre trvalo udržateľné stavebníctvo: Intep, Integrale Planung GmbH, Mníchov, Nemecko | 

Jednoduchá a zároveň rafinovaná priestorová koncepcia umožňuje nielen priame osvetlenie všetkých administratívnych priestorov, ale aj nerušený výhľad z každého stanoviska. Fasáda polygonálne vyskladaná z hliníkových a sklenených prvkov kopíruje oblé tvary vnútorných stien. Z otvoreného a priechodného vonkajšieho priestoru profitujú všetci – zamestnanci aj obyvatelia susediacich obytných blokov.
Veľké otáčavé zasklené brány chránia proti vetru a hluku z ulice nielen byty, ale aj budovu so sídlom správy a umožňujú upravovať, organizovať a usporadúvať vonkajší priestor podľa aktuálnych požiadaviek. Ďalšou výhodou je, že vonkajší priestor dokáže pre celý areál zabezpečiť vysokú kvalitu obytnej funkcie, príjemné prostredie a atmosféru a výbornú mikroklímu.
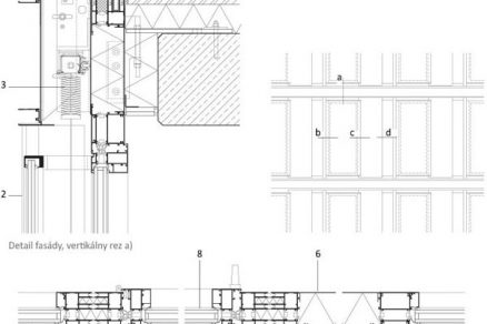
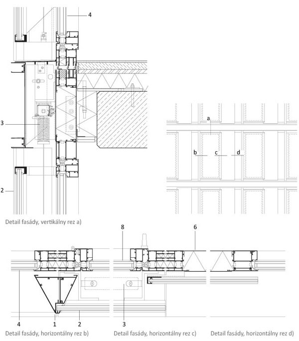
Aj keď na nosnú konštrukciu budovy LTD_1 boli vyčlenené financie iba ako na štandardné a bežné riešenie administratívnej budovy určenej na prenájom, architektonická kancelária Pysall Ruge Architekten plánovala a realizovala celý projekt v zmysle trvalo udržateľnej a ekologickej výstavby šetriacej zdrojmi energie. Ekologické kritériá určovali tak urbanistickú koncepciu, stavebnú konštrukciu, výber stavebných materiálov označených certifikátom Modrý anjel, prevádzku, ako aj spôsob demolácie a zaobchádzania s použitým stavebným materiálom po „dožití“ budovy. Z rovnakého princípu vychádzajú aj forma a tvar budovy. Preto sa realizovala kompaktná stavebná hmota s výhodným pomerom zastavaného objemu a úžitkovej plochy k zastavanej ploche. Primárnu energetickú spotrebu sa vďaka kvalitne zateplenému vonkajšiemu obvodovému plášťu, prirodzene odvetrávanej dvojitej fasáde (obr. 3 a 4), vykurovaniu s nízkou spotrebou energie, vysoko efektívnym technickým zariadeniam budovy a energeticky optimalizovanému systému osvetlenia podarilo udržať na minimálnej úrovni, aby sa zmestila do existujúceho rozpočtu. Dispozícia jednotlivých podlaží je okrem dvoch nosných sanitárnych jadier otvorená a dá sa flexibilne prispôsobiť zmenám v užívaní. Podiel transparentných dielov na fasáde je 60 percent, čím sa zabezpečil vyrovnaný pomer medzi požadovanými solárnymi ziskami v zime a optimálnym využitím denného svetla na jednej strane a obmedzením nežiaducich tepelných ziskov v letných mesiacoch na strane druhej. Okenné otvory na výšku poschodia s otváravo-výklopnými oknami sú proti poveternostným vplyvom a hluku chránené panelmi (obr. 5). Úlohou okien je zabezpečiť dobré presvetlenie až do hĺbky dispozície a umožniť individuálne riadené vetranie a odvetrávanie priestorov. Zavetrený systém ochrany proti slnečnému žiareniu je namontovaný za vonkajším panelom.
Do klimatizačných zariadení, ktoré sú inštalované na betónových stropoch bez povrchovej úpravy, privádzajú chladný vzduch chladiace rekuperačné zariadenia umiestnené na streche. S ohľadom na nočný pokoj pracujú v noci bez použitia kompresorov. Stropná konštrukcia zabezpečuje akumuláciu a tepelnú vodivosť, ktorá sa využíva pri udržiavaní vyvážených interiérových teplôt. Aj dodávka potrebnej energie na vykurovanie sa realizuje aktiváciou betónového jadra. Cieľom kompletnej technickej koncepcie budovy bolo využiť všetky ekonomicky realizovateľné možnosti energetických úspor, a pritom v maximálnej možnej miere minimalizovať využívanie technických zariadení, ako aj ich zložitú prevádzku.

TEXT: spracované z podkladov Schüco International KG, organizačná zložka Slovensko
OBRÁZKY a FOTO: Schüco
Článok bol uverejnený v časopise Správa budov.
–>–>
 
													





 
						 
						 
						 
						 
						



 
					 
					 
					 
					 
					 
					 
					 
					 
					 
					 
					 
					 
					 
					 
					 
					 
					 
					 
					 
								 
								 
								 
								 
								