Administratíva v platinovej edícii
Vo Varšave sa v chaotickom kontexte bujného rozvoja novej administratívnej štvrte s priemyselnou minulosťou objavil komplex kancelárskych budov, ktorý do fragmentarizovaného prostredia vnáša pocit jednoliatosti a súzvuku. Vďaka princípu zomknutej a introvertnej urbanistickej mikroštruktúry vytvára ideálnu pracovnú atmosféru, ktorú nenaštrbuje okolitý svet a na ktorú, naopak, pozitívne vplýva interiér vnútornej zelenej záhrady. Navonok nenápadný súbor objektov odhaľuje v samom srdci svoju skrytú komunikatívnu povahu.
Rovnaký investor – odlišný konceptAdministratívny komplex sa nachádza v bývalej priemyselnej štvrti Varšavy, ktorá bola v povojnových rokoch predmetom intenzívnej industrializácie. Po spoločensko-ekonomických zmenách v roku 1989 sa niekdajšia priemyselná zóna začala radikálne meniť. Na mieste výrobných hál už niekoľko rokov prebieha výstavba administratívnych budov, ktoré predstavujú najväčšiu koncentráciu kancelárskych priestorov vo Varšave a formujú novú povahu mestskej časti Służewiec. Nevýhodou však je, že rozsiahla konverzia sa neriadi žiadnou vopred stanovenou stratégiou územného rozvoja. V dôsledku toho sa funkčné a formálne stvárnenie budov odvíja iba od veľkosti a tvaru pozemkov či susedných budov.

Cieľ projektu bol jasný – komplex budov, ktorý bude konzistentný tak z hľadiska svojho urbanistického, architektonického aj materiálového riešenia, ako aj po stránke uplatnenia detailov. V súťaži nakoniec uspel koncept varšavského architektonického ateliéru JEMS Architekci.
Dve tváre
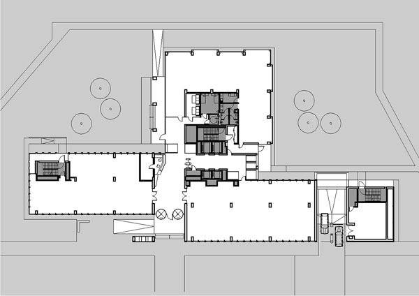
Obdĺžnikový pozemok je zasadený do pomerne nesúrodého prostredia – z dvoch strán susedí s rušnými ulicami, z ďalších dvoch s objektmi neustále meniacimi svoju tvár. Práve preto sa architekti rozhodli riešiť komplex ako samostatný areál, ktorý sa uzatvára zvonku a otvára dovnútra bloku. Zmyslom základnej autorskej kompozície je definovať charakter okrajových a centrálnych administratívnych zón.
Komplex tvorí spolu päť budov, pričom každá sa navrhla podľa identického princípu. Všetky objekty rovnako pozostávajú z dvoch formálne odlišných častí. Uličné línie lemujú úzke predĺžené dvojkrídlové trakty, ktoré vytvárajú oddeľovaciu vrstvu medzi vnútorným parkom a okolitým prostredím. Druhú časť, orientovanú do uzavretej zóny komplexu, predstavujú objekty, ktoré svojim tvarom pripomínajú neúplné kocky. Tieto trakty sa napájajú na pozdĺžne útvary, ale pôsobia akoby voľne pohodené v zelenom srdci areálu s umelým jazierkom.
Odlišné štruktúry aj ich úlohy v urbanizovanom priestore sa odzrkadľujú vo vonkajšom stvárnení objektov. Zatiaľ čo trakty otočené do ulice pokrýva jednoliata fasáda z hustej oceľovej mriežky a so sklenou výplňou, fasáda vnútorných častí budov je celá sklenená.
![]() |
![]() |
![]() |
Opláštenie má zo strany verejných komunikácií výrazný vertikálny charakter, v intímnejšom prostredí vnútorného dvora sa zasa zdôrazňuje horizontálne vrstvenie. Z perspektívneho pohľadu teda vonkajšia tvár komplexu pôsobí uniformne a za svojím nepreniknuteľným plášťom chráni pracovné prostredie, kým časti smerujúce do pokojnej centrálnej zóny sú jej extrovertným protipólom.

Priečeliam ako celku to z perspektívneho pohľadu dodáva dynamizujúci výraz nepatrného vlnenia. Vďaka sklu v kombinácii s antikorovou oceľou sa fasáda pod dotykom slnečných lúčov leskne ako platina. Vďaka tomu dostal komplex pomenovanie podľa tohto vzácneho striebrosivého kovu. Sklenené tabule sa zrkadlia aj na hladine centrálneho jazierka so systémom drobných vodopádov a lávok. Voda je spolu so zeleňou dôležitým prvkom, ktorý dotvára celkovú atmosféru komplexu.
![]() |
![]() |
![]() |
Platinum Business Park, etapa I a II
Miesto: Domaniewska ulica, Varšava
Architekti: JEMS Architekci, Sp. z. o. o.
Autori: Andrzej Sidorowicz, Marcin Sadowski
Spolupracujúci architekti: Tomasz Napieralski, Marcin Zadrożny, Jan Damięcki
Konštrukčné riešenie: RYBCENT, Witold Rybiński
Generálny dodávateľ: WARBUD
Investor: GTC Satellite, Sp. z o. o.
Plocha pozemku: 27 176 m2
Zastavaná plocha: 7 853 m2
Úžitková plocha: 45 535 m2
Obstavaný priestor: 195 058 m3
Návrh: 2004 – 2006
Výstavba I. etapy: 2006 – 2007
Výstavba II. etapy: 2007 – 2008
![]() |
![]() |
| Pôdorys parteru |
Pôdorys typického podlažia |
Anna Salvová
Foto: Juliusz Sokołowski
Článok bol uverejnený v časopise ASB.



















