Rybia reštaurácia
Spoločnosť Vihiluodon Kala Oy bola založená v roku 1989 vo fínskom meste Olunsalo. Jej produkty z rýb sú známe po celom svete. Spoločnosť si zakladá na trvalo udržateľnom rybolove.
Vyjadrením diania vo vnútri je grafika nakreslená na štítovom konci.V roku 2011 sa rozhodla vybudovať novú továreň. Okrem rybej reštaurácie sa v novej budove nachádza predajňa čerstvých produktov a reštaurácia Vihiluodon Kalakauppa ja Keittiö. Svojim hosťom ponúka aj konferenčné priestory a nechýba ani pre Fínsko typická sauna.
Budova sa nachádza v oblasti Ankkurilahti v Tupos, 20 kilometrov južne od OuluIde. Ide o rozvinutý obchodný uzol, ktorí obsluhuje cestujúcich idúcich po diaľnici 4 vo Fínsku. Základnou ideou rybej reštaurácie a firemnej predajne je podávať miestne jedlá vyrobené z čerstvých ingrediencií.
Hlavnou architektonickou myšlienkou bolo vytvoriť budovu, ktorá zabezpečí všetky služby pre okoloidúcich a zároveň zapadne nerušene do okolitého prostredia. Namiesto reklamnej budovy sa architektom podarilo vytvoriť stavbu, ktorá svojim tvarom evokuje rybu vo vode. Ryba a voda sa stali hlavným architektonickým prvkom. Vyjadrením diania vo vnútri je grafika nakreslená na štítovom konci. Po realizácii budova získala množstvo prezývok ako napríklad Poľná veľryba alebo Skokanský mostík.
Ako základný konštrukčný materiál sa z ekologických a ekonomických dôvodov zvolilo drevo. Primárnu nosnú konštrukciu tvoria lepené podpery, sekundárnu krokvový systém tvorený laminovanou stavebnou dyhou. Rám je vystužený prefabrikovanou oceľovou kostrou a železobetónovými stenami. Tepelná izolácia sa vynechala na prízemí v časti s chladiarenskými miestnosťami, čo prispieva k prirodzenému ochladzovaniu týchto priestorov v zime.
Okrem pozlátených oceľových profilovaných plôch a vzorovaných hliníkových perforovaných dosiek sa na fasáde uplatnili aj jemne opracované smrekové dosky a latovanie impregnované bezfarebnou ochrannou vrstvou na drevo. Organicky tvarované okná a vstupné dvere do reštaurácie sú vyrobené čisto z dreva, ktoré je obalené smrekovým hraneným rezivom a brezovou preglejkou.
V interiéri a aj na poschodí, kde sa nachádza výrobná prevádzka sa stĺpy z lepeného dreva priznali. V priestore reštaurácie okrem stĺpov dominujú veľké grafické prvky a farebné borovicové hranené rezivo zaveseného stropu. Zavesený strop prispôsobený svojim tvarom stene hlavnej obslužnej zóny spája konferenčné a kancelárske priestory na vrchnom poschodí. Steny a stropy, ako aj lavice sauny na hornom poschodí sú vyrobené z tepelne spracovanej osiky.
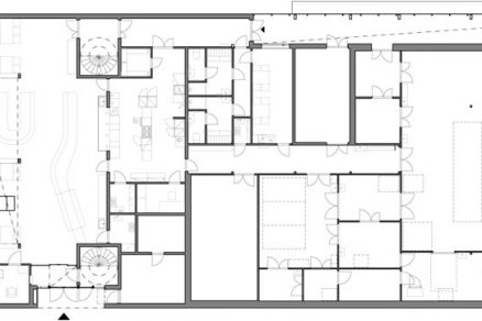
Pôdorys prízemia
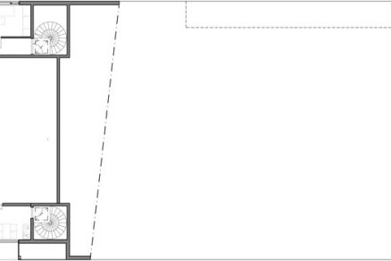
Pôdorys poschodia
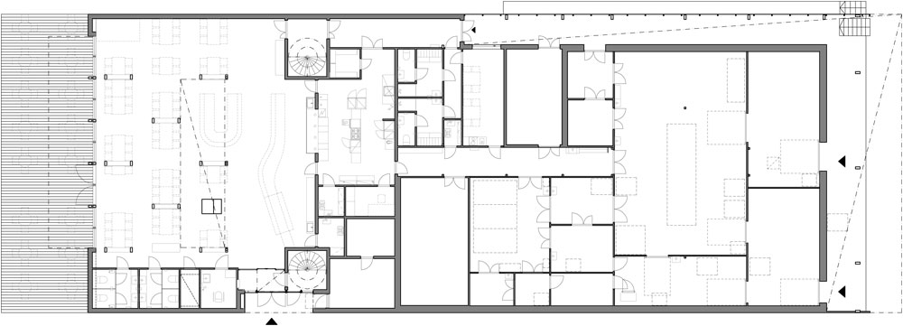
Rez
Princíp ekologického chladenia a vykurovania prízemia
Namiesto reklamnej budovy sa architektom podarilo vytvoriť stavbu, ktorá svojim tvarom evokuje rybu vo vode.
Okrem pozlátených oceľových profilovaných plôch a vzorovaných hliníkových perforovaných dosiek sa na fasáde uplatnili aj jemne opracované smrekové dosky a latovanie impregnované bezfarebnou ochrannou vrstvou na drevo.
Organicky tvarované okná a vstupné dvere do reštaurácie sú vyrobené čisto z dreva, ktoré je obalené smrekovým hraneným rezivom a brezovou preglejkou.
V interiéri a na poschodí, kde sa nachádza výrobná prevádzka sa stĺpy z lepeného dreva priznali.
V priestore reštaurácie okrem stĺpov dominujú veľké grafické prvky…
… a farebné borovicové hranené rezivo zaveseného stropu
Klient: Vihiluodon Kala Oy
Architektonický návrh: M3 Architects, Fínsko
Architekt: Janne Pihlajaniemi
Hlavný dizajnér, dizajnérsky tím: Heikki Muntola, Henrika Pihlajaniemi, Kari Nykänen, Alli Perttunen a Jaana Keränen
TEXT: M3 Architects, Fínsko, wad
FOTO: Jussi Tiainen (exteriér), Jaakko Kallio-Koski (interiéri)





















