Obchodno-zábavné centrum Laugaricio
Retailové projekty sa ešte v čase hospodárskeho a stavebného rastu začali ambiciózne rozširovať aj do menších centier Slovenska. Opúšťali hranice atraktívneho hlavného mesta, aby svojou širokou ponukou tovarov a značiek, či možnosťami na stretnutia a trávenie voľného času oslovili širokú verejnosť mimo Bratislavy. V súčasnosti, keď sa sľubný vývoj spomalil, podarilo sa niektoré projekty napriek vzrastajúcim problémom dotiahnuť do konca. Obchodnú galériu, ktorú vám predstavujeme, však nemožno považovať iba za obyčajnú nákupnú „krabicu“, rozdelenú na množstvo zásuviek s príťažlivými nápismi. Laugaricio nemá ulice, ktoré si pre výkladné skrine nevšimnete. Spôsob, akým človeka vťahuje dovnútra, hovorí o tom, že kupujúci nemusí byť iba ľahkou trofejou komerčných lákadiel.
V malej mierke
Shopping parky sa až na niekoľko výnimiek výrazne ponášajú na seba. Dlhé línie trás s obchodíkmi či veľkoplošnými predajnými plochami, pretínané otvorenými galériami s dostatkom miesta na farbisté transparenty, nečujné eskalátory v stálom pohybe, hlučné kaviarenské a stravovacie pasáže – to sú bežné atribúty krajiny otvorených peňaženiek.

„V tomto prípade mi investor vytvoril priestor. Snažil som sa prispôsobiť veľkosť obchodného centra mierke okolia farebnosťou fasády, členením strešnej roviny a vyslobodením tohto objektu z čisto utilitárneho pomedzia. Zdá sa, že sa to celkom podarilo a aj napriek rozsahu budovy je jej mierka skutočne pomerne malá, hlavne, ak sa vníma z väčšej vzdialenosti,“ konštatuje Jiří Střítecký.
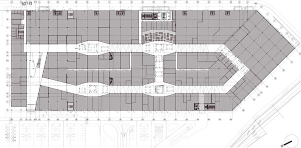
Hmota objektu skutočne pôsobí oveľa subtílnejšie, než býva pri nákupných strediskách zvykom. Centrum sa rozkladá do plochy, z veľkej časti je jednopodlažné a do výšky sa dvíha iba v priestoroch vstupu. Vznikla tu dvojpodlažná galéria s lomenou strešnou konštrukciou, cez ktorú vďaka zaskleniu vstupuje do priestranného interiéru množstvo denného svetla. Motív lomeníc sa opakuje aj v uličných pasážach obchodného centra.

Hra s denným osvetlením je myšlienkou celého vnútorného konceptu. „Svetlo sa vo viacerých dôležitých bodoch vpúšťa dovnútra tak, aby sa prejavilo na miestach, kde sa hustota vzťahov zväčšuje – v námestíčkach, kaviarňach či zónach rýchleho občerstvenia,“ opisuje architekt. Vzhľadom na to, že pozemok sa nachádza v urbanisticky málo rozvinutej zóne mesta, jediným meradlom komunikácie objektu s prostredím je okolitá krajina.
Vnútorná prevádzka objektu sa do hmoty premieta v strešných rovinách prostredníctvom tzv. svetelných studní. Konštrukcia, ktorá prekrýva zúžené komunikačné trasy, vnáša do interiéru intenzívnejšiu dávku denného svetla v striedavom rytme z opačných svetových strán.
Efekt spôsobujú strešné lomenice. V týchto priestoroch sa strop zvyšuje nad prvé nadzemné podlažie a rozptylu prirodzeného slnečného jasu napomáha aj dominujúca biela farba. Svetelné studne naproti tomu vytvárajú odlišnú náladu, pretože svetlo prepúšťajú vo vertikálnych sústredených stĺpoch. Tieto prvky prestupujú dovnútra cez nízke tmavé stropy a pôsobia ako veľké reflektory scén, ktoré sa pod nimi otvárajú.
Rozličným farebným riešením ich vnútorných stien sa dosiahli rozličné nálady interiéru. Pri prechode pasážami sa z tmavej zóny vynárajú svetelné studne jedna za druhou, pričom každá svojím odtieňom vyvoláva v človeku iné emócie. Trasovanie naprieč nákupným mólom sa riešilo v jednoduchom okruhu, ktorý pretína krátka pasáž. Popri ostatnej ortogonálnej konštrukcii sa uplatnila aj organická forma. Ide o solitérny objekt kaviarne v centrálnom priestore strediska. Sieťovaná konštrukcia je zavesená na úrovni druhého nadzemného podlažia a horizontálne sa tiahne pozdĺž galérie ako živočích na „vratkých“ nohách – pilieroch, ktoré spájajú strešnú konštrukciu s podlahou.
Fasáda dvojpodlažnej časti objektu komunikuje s okolím prostredníctvom figurálnych motívov v dynamickej polohe, ktoré sa opakujú aj v interiéri, napr. na toaletách, a ktoré majú evokovať ľudskú aktivitu. Dôležitým dotvárajúcim prvkom objektu sa má stať zeleň. Keď sa rozrastie, prispeje k postupnému rozčleneniu fasády. Na vonkajšej tvári centra sa objavujú farebné kombinácie, a to tak, aby sa docielila požadovaná mierka a nenásilné zapojenie do riečnej nivy.
![]() |
![]() |
Odlišný koncept
Projekt Laugaricio ponúka okrem nákupných plôch aj možnosti na trávenie voľného času a spoločenské vyžitie. „Trenčiansky kraj, ktorý má vyše 600-tisíc obyvateľov, predstavoval pre nás vysoký potenciál. Navyše, podobné centrum regiónu chýbalo. Jeho jedinečnosť spočíva v tom, že je architektonickým unikátom a po dokončení druhej fázy výstavby bude aj druhým najväčším nákupným centrom na Slovensku,“ tvrdí Michal Kubišta, asset manažér CSIA (Czech and Slovak Investment Advisors). S Atelierom 8000 spolupracuje majiteľ Laugaricia – fond nehnuteľností CSPF B. V. – na viacerých realitných projektoch v Českej republike. Architekti sa podieľajú aj na projektovaní druhej fázy trenčianskej nákupnej galérie.

Investor si predsavzal vytvoriť zónu, ktorá bude obľúbenou nákupnou destináciou. Architektom sa však navyše podarilo vytvoriť modernú napodobeninu obchodných štvrtí formovanú do mestských pasáží, v ktorých pestré zážitky nemusia plynúť iba z nakupovania.
Laugaricio
Miesto: Trenčín
Využitie: Obchodno-zábavné centrum
Architekt a generálny projektant: ATELIER 8000, spol. s r. o.
Investor: Czech and Slovak Property Fund B. V. (90 %), Pan Kuk (10 %)
Developer: CZECH BUSINESS EXPLORERS, s. r. o.
Prevádzkovateľ: EMCM
Stavebné povolenie: 6/2007
Začiatok výstavby: 6/2007
Ukončenie výstavby: 3/2009
Etapa: 1
Úžitková plocha: 31 000 m2
Počet nadzemných podlaží: 2
Počet parkovacích miest: 789
Generálny dodávateľ: Metrostav, a. s. (Česká Republika), Doprastav, a. s.
Organizácia výstavby: Gleeds (Česká Republika)
Pôdorys 1. NP
Anna Salvová
Foto: Dano Veselský
Grafická časť: Atelier 8000
Článok bol uverejnený v časopise ASB.














