Nákupné centrum Forum Poprad
Z mapy Slovenska zmizol ďalší Prior. Obchodný dom pripomínajúci dávne časy skončil aj v Poprade a vystriedalo ho moderné nákupné centrum Forum Poprad. Jeho ambície sú v regióne pod Tatrami vysoké.
“Forum Poprad chce vrátiť tomuto miestu v centre mesta obchodného ducha a život,” konkretizuje investičný zámer Ing. Ľuboš Kočí, riaditeľ developerskej skupiny Multi pre Českú a Slovenskú republiku, ktorá centrum vlastní a aj v budúcnosti bude zodpovedať za jeho prevádzku. Skupina uskutočnila akvizíciu starého OD Prior už pred desiatimi rokmi, ale z dôvodu finančnej a realitnej krízy bol projekt na päť rokov prerušený. “Nie je tajomstvom, že so zahájením výstavby sa čakalo pre zaistenie vysokého percenta prenajatia vrátane dohôd s významnými medzinárodnými značkami,” dodáva Ľuboš Kočí. A tak sa obyvatelia i návštevníci Popradu smutno pozerali na chátrajúci Prior až do konca roka 2013, keď sa začalo s jeho demoláciou. Následne sa začala výstavba nového nákupného centra Forum Poprad, ktorý otvoril svoje brány koncom októbra minulého roku.
Aj keď je objem Forumu pomerne veľký, ani z jednej strany arogantne nevyčnieva, ale sleduje charakter okolitej zástavby.
V úvodnej nábehovej krivke prvých troch mesiacov dosiahol Forum veľmi dobré čísla v návštevnosti i v obrate, čo v súvislosti s vysokou mierou prenajatosti (98 %) vyvoláva spokojnosť u investora. “Development nie je v súčasnom ekonomickom prostredí jednoduchou záležitosťou,” hovorí Luboš Kočí. “Sme presvedčení, že Forum Poprad má potrebné vlastnosti na to, aby sa stal solídnym projektom a zároveň i kvalitnou súčasťou mestského centra. Okrem toho sme cítili veľmi silný záväzok k mestu a jeho obyvateľom, ktorí nám v uplynulých rokoch preukázali veľkú dávku tolerancie.”
Pohľad do rozsiahleho foodcourtu
S vylúčením arogancie
Objekt stojí na mieste bývalého obchodného domu Prior, čiže je medzi Námestím sv. Egídia zo severu a Francisciho ulicou z juhu. Pôvodný tvar obdĺžnika sa však rozšíril na tvar písmena L, a to pridaním krídla pozdĺž Francisciho ulice. Kratšia časť písmena L je na pôvodnom mieste bývalého Prioru. Forum Poprad je vnútromestským nákupným centrom a na ploche vyše 22 000 m2 sa nachádza viac ako 100 obchodov. Má tri poschodia využívajúce sklon terénu k prirodzenému napojeniu každého poschodia na okolitý terén. Aj keď je objem Forumu pomerne veľký, dojem z objektu je až prekvapujúco skromný a ani z jednej strany arogantne nevyčnieva, ale sleduje charakter okolitej zástavby.
Parkové dotvorenie okolia nákupného centra Forum
“Na úrovni konceptu bola pre nás dôležitá otázka, ako postaviť väčší objekt a zároveň nepostaviť bariéru pre chodcov,” hovorí Ing. arch. Oskar Mészár z projekčnej kancelárie Atrios architects, ktorá na projekte spolupracovala s kanceláriou Arch.Design. “Pritom sme sa museli vysporiadať aj s veľkým prevýšením pozemku v smere sever – juh, ako aj správne určiť mierku a materiálový koncept fasád vzhľadom na blízkosť historického centra. Popri jasných predstavách investora o funkčnosti a kapacite objektu sa strmý pozemok, vzácna lokalita v historickom centre na Námestí sv. Egídia a prirodzené pešie ťahy stali rozhodujúcimi prvkami nášho návrhu.”
Foodcourt pokračuje v exteriéri veľkou terasou, odkiaľ je výhľad na Vysoké Tatry.
Nákupná ulica v interiéri
Logickým vyústením týchto podmienok sa stala koncepcia trojpodlažného objektu s tromi vstupmi, pričom na každom podlaží je jeden. Hlavný vstup (do 1. NP) je prirodzene umiestnený na severnej strane, kde vyúsťuje nielen Námestie sv. Egídia, ale aj dôležitá komunikačná os – pešia zóna vedúca k železničnej stanici. Dôležitý je aj vstup z južnej Francisciho ulice, kde je v blízkosti vstupu umiestnená zastávka MHD.
V interiéri architekti pokračujú v tvarosloví nákupnej ulice.
Tento tvar zároveň umožnil vytvoriť pekné parkové priestranstvo vo vnútornej časti spomenutého L-ka, kde vzniklo veľmi príjemné posedenie so zeleňou a ktoré tak vytvára prirodzenú komunikáciu medzi okolím a vlastným centrom. Podľa architekta Mészára bolo samostatnou kapitolou v návrhu objektu vyriešenie parkovania. Po prekonaní niekoľkých vývojových štádií sa architekti nakoniec rozhodli pre redukciu parkovania priamo v objekte a presunutie väčšej kapacity na strechu objektu. Vo vnútornom členení objektu ide o klasický funkčný trojtrakt, ktorého stredom je nákupná pasáž. V interiéri sa architekti rozhodli pokračovať v tvarosloví nákupnej ulice s rytmom šambrán, orámovaní jednotlivých obchodných výkladov. Túto ideu podporujú vnútorné bosáže a kamenný sokel, ktorý prechádza z vonkajšieho obkladu stien.
V strede klasického trojtraktu je nákupná pasáž.
“Množstvo času sme venovali diskusiám o materiálovom koncepte fasád,” hovorí Oskar Mészár. “Vzhľadom na dotyk s historickým centrom nám bolo od začiatku jasné, že tu nemôžeme postaviť hypermoderný sklenený objekt a zároveň nestaviame na zelenej lúke. Chceli sme vytvoriť klasický vzhľad s rešpektovaním lokálnych materiálov, a preto sme využili drevo, kameň a omietky. Drevený a kamenný obklad použitý v okolí vstupov ich prirodzene akcentujú. Najväčší estetický dôraz bol kladený na severnú fasádu, ktorá tvorí prirodzený vstup vo vzťahu k hlavným peším ťahom a zvnútra poskytuje pôsobivý výhľad na Vysoké Tatry. Preto je táto fasáda logicky najviac zasklená a esteticky dotvorená kamenným a dreveným obkladom. Tu sa nachádza aj rozsiahly foodcourt s veľkorysou terasou orientovanou na prírodnú dominantu Slovenska.
Ako sme už spomenuli, investor chcel projektom Forum Poprad navrátiť pulzujúci život a emócie do centra mesta. Po troch mesiacoch prevádzky sa už dá konštatovať minimálne fakt, že Forum bolo prirodzene prijaté obyvateľmi, o čom svedčí vysoká priemerná návštevnosť, plné kaviarničky a zatiaľ prevažne spokojní obchodníci. Či sa naplnia jeho ambície, ukáže čas, ale nákupné centrum rozhodne prispieva k revitalizácii centra Popradu a zároveň môže synergicky pôsobiť s ostatnými zaujímavými miestami mesta.
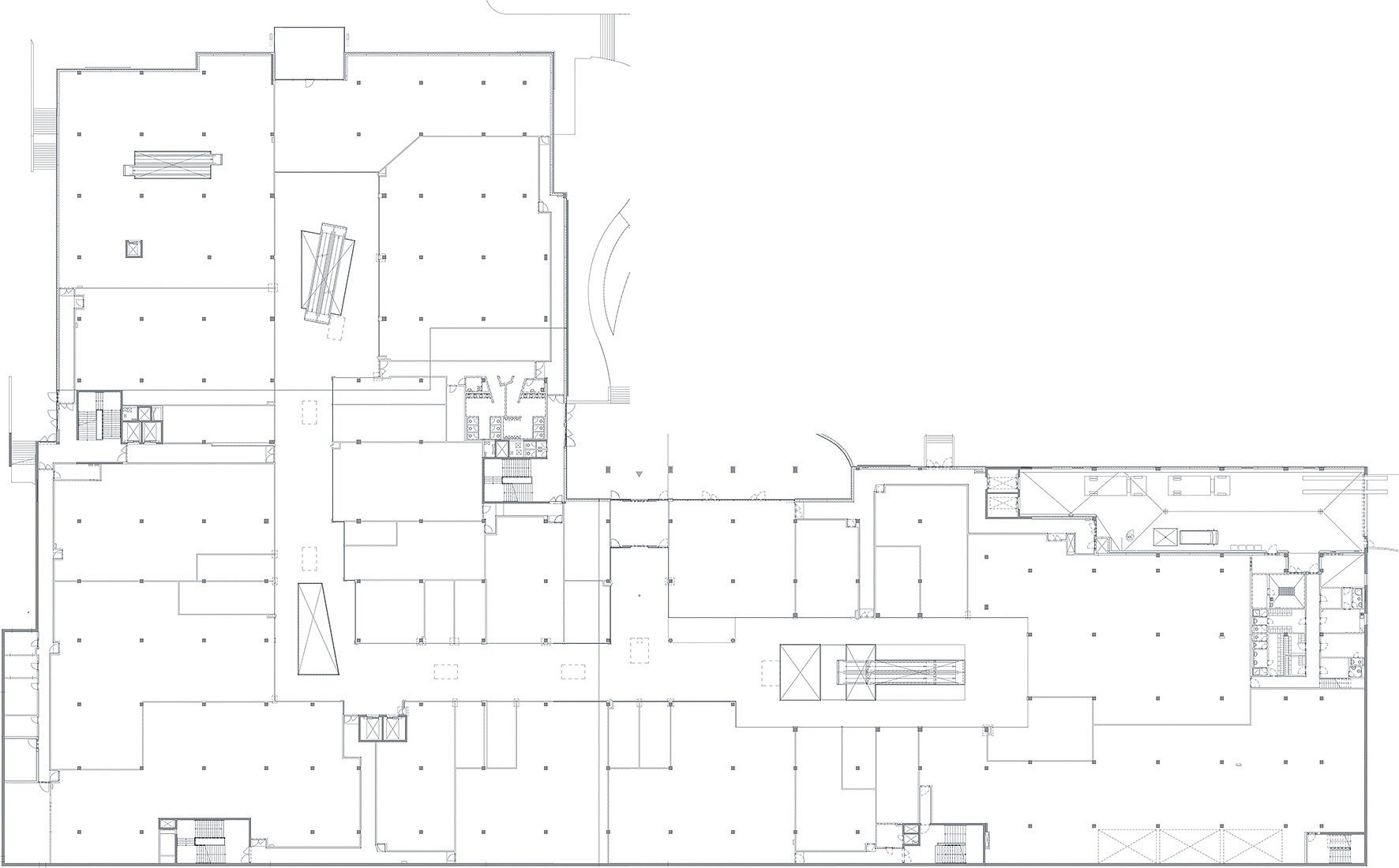
Pôdorys 2. nadzemného podlažia
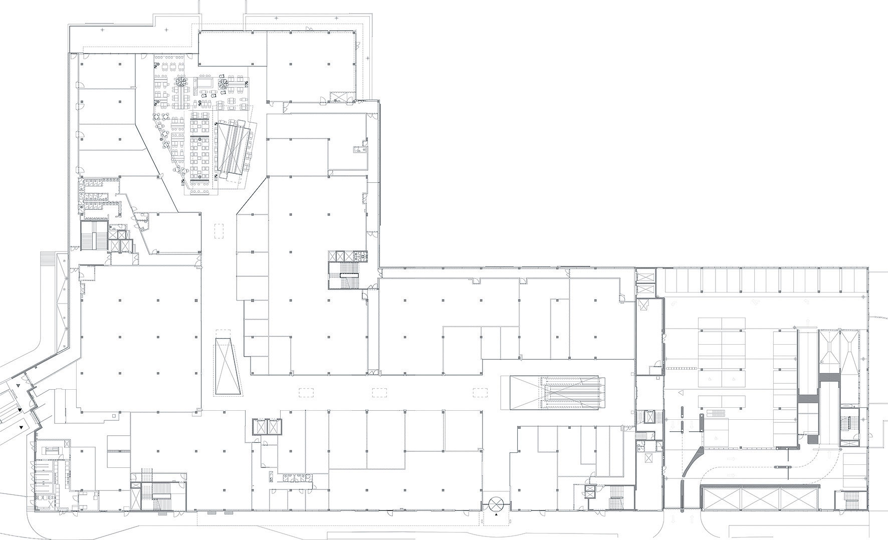
Pôdorys 3. nadzemného podlažia
Forum Poprad
Miesto: Námestie sv. Egídia, Francisciho ulica, Poprad
Investor: Multi Veste Slovakia 2, s. r. o.
Developer: Multi Czech Republic a. s. / Multi Development ČR
Architekt: Atrios architects, Arch.Design, ČR
Začiatok výstavby: máj 2014
Ukončenie výstavby: október 2015
Počet obchodných jednotiek: 110
Úžitková plocha: 45 500 m2
Prenajímateľná plocha: 22 200 m2
Celkové investície: 48 mil. eur
Generálny dodávateľ: GEMO Slovensko
Prenájom retailových priestorov: Cushman & Wakefield
TEXT: ĽUDOVÍT PETRÁNSKY
FOTO: MIXMAN STUDIO
PROJEKTOVÁ DOKUMENTÁCIA: ARCH. DESIGN
Článok bol uverejnený v časopise ASB.





















