Magdas hotel pre hostí aj utečencov
Známa rakúska kancelária navrhla a zrealizovala vo Viedni hotel, ktorý nanovo definuje charitu a skvalitňuje oblasť, ktorý sa nazýva “sociálny biznis”.
Ateliér to urobil s takým nasadením, že za svoj počin získal niekoľko cien, pričom tá najprestížnejšia sa volá The Great Indoor Award. Má bienálový charakter, udeľuje ju časopis Frame Magazine a hotel ju získal v kategórii Služby a technické vybavenie. Celý projekt bol iniciovaný organizáciou Caritas Austria, ktorá financovala rekonštrukciu a prístavbu tohto hotela. Magdas hotel sa nachádza vo štvrti Prater neďaleko zábavného parku a ako hovorí manažér Caritas Social Business Clemens Foschi: „Tento dom je pre turistov, ktorí prišli navštíviť Viedeň, ale aj pre utečencov. Magdas Hotel má sociálny charakter, ktorý spája ľudí rôznych kultúr a vytvára príležitosti žiť plnohodnotný život.”
Hotel má 78 nových elegantných izieb.
Turisti aj utečenci
Hotel má 78 nových elegantných izieb, pričom z každej vidieť rozsiahly park Práter. Zvonku možno nie je ničím výnimočný, pravda, ak nerátame kultivovanú záhradu s príjemným terasovým sedením, ale to je pri projektoch kancelárie AllesWirdGut obvyklý štandard. V tomto prípade je zaujímavejšie, čo sa deje vo vnútri. Vedľa seba tu žijú bežní hoteloví hostia, ale aj mladí ľudia, ktorí nemôžu cestovať podľa vlastnej vôle. Sú to migranti, ktorí nemali inú voľbu, ako utiecť pred hladom, vojnou, perzekúciami a mučením v ich krajine. V hoteli žije 25 migrantov, korí prišli do Rakúska bez rodičov a ako utečenci tu žijú od novembra 2014. Pre niektorých z nich sa hotel stal prechodným domovom a pre iných zase pracovným miestom – stali sa členmi hotelového personálu, čím sa z hotela vytvoril naozaj aktívny sociálny biznis.
Interiér v štýle vintage
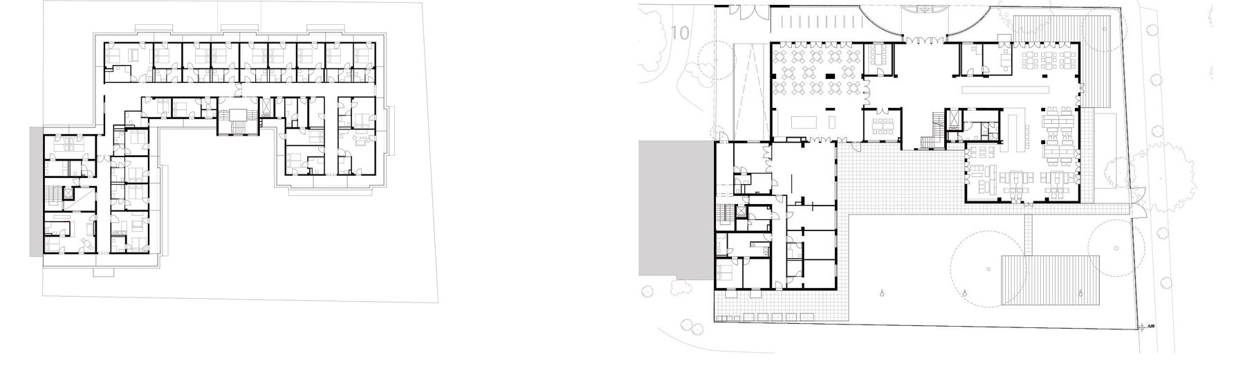
Prirodzeným spoločenským centrom je prízemie s veľkým vstupom a lobby, ktoré sa často mení na veľkú “obývačku”.
Konverzia v štýle vintage
Podstatná časť rekonštruovaného hotela siaha až do 60. rokov minulého storočia, pričom autori zvolili ústretovejší prístup k histórii. Existujúce budovy boli iba jemne renovované a adaptované na moderné bezpečnostné štandardy a dizajn, ktorý je v štýle vintage. “Nechceli sme prvoplánové retro, ale pri ponechaní pôvodných vecí sme chceli hlbší ponor do minulosti,” hovorí architektka Johanna Aufnerová, ktorá viedla autorský tím z kancelárie AllesWirdGut.
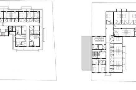
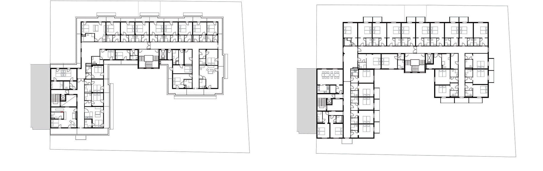
Pôdorysy 2. a 3. nadzemného podlažia
“Interiérový dizajn je reakciou na existujúce budovy, je prejavom architektonického konceptu a tvorivého využitia obmedzených zdrojov. Mali sme k dispozícii rozpočet okolo 1,5 milióna eur, do ktorého sme sa museli zmestiť. Aj preto je dôležitý celkový prístup pri architektonickej tvorbe tohto hotela, ktorý má výrazne sociálnu dimenziu. Do jeho výstavby sa zapájali rôzni dodávatelia, nadácie a sponzori, ktorí sa veľmi obetavo vyskladali na naše nápady.”
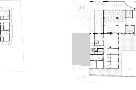
Pôdorys 2. nadzemného podlažia / Pôdorys 1. nadzemného podlažia
Nový život starým veciam
V dizajne interiéru – reštaurácie, baru, lobby, hotelových izieb a apartmánov – využil AllesWirdGut existujúce časti, nájdené objekty a ich dômyselný mix. Decentne zvolená farebnosť celého konceptu je zdôraznená individuálnym nábytkom a časťami mobiliáru, ktorý pochádza z minulosti a buď ho tam nechali predchádzajúci rezidenti, alebo ho hotelu venovali miestni obyvatelia. Následne boli remodelované do nových podôb stolov, nočných stolíkov a zabudovaných skríň v stene. Mobiliár v lobby a reštaurácii vznikol ako zadanie pre študentov na Univerzite dizajnu v St. Pöltene, kde niektorí členovia Alles WirdGut prednášajú ako hosťujúci profesori.
V dizajne interiéru – reštaurácie, baru, lobby, hotelových izieb a apartmánov – využil AllesWirdGut existujúce časti, nájdené objekty a ich dômyselný mix v decentnej farebnosti.
Prirodzeným spoločenským centrom je prízemie s veľkým vstupom a lobby, ktoré sa často mení na veľkú “obývačku”. Tu sa schádzajú hoteloví hostia, mladí ľudia z domu, ako aj návštevníci baru a reštaurácie. Je to akési miesto integrácie “cudzincov”, pričom je jedno, či ide o hostí, zákazníkov alebo utečencov. Aj hotelový biznis môže mať svoju ľudskú tvár, ktorá sa nemení striedaním jednotlivých turnusov.
MAGDAS HOTEL CARITAS
| Miesto | Laufbergergasse 12, Viedeň |
| Klient | Caritas Erzdiözese Wien |
| Začiatok a koniec výstavby | 8/2014 – 2/2015 |
| Podlažná plocha | 6 460 m2 |
| Počet izieb v hoteli | 78 |
| Počet bytových jednotiek | 2 |
| Generálny projektant | AllesWirdGut |
| Architekti | Johanna Aufner, Andrea Zuniga Espinoza, Simon Höbel, Gerhard Höllmüller |
| Krajinný architekt | 3:0 Landschaftsarchitektur |
| Celkové náklady | 1,5 mil. eur |
Text: ĽUDOVÍT PETRÁNSKY
FOTO: ALLESWIRDGUT ARCHITEKTUR/GUILHERME SILVA DA ROSA
Článok bol uverejnený v časopise ASB.

















