kongresove centrum a hotel paasitorni v helsinkach
Galéria(17)

Kongresové centrum a hotel Paasitorni v Helsinkách

Zrekonštruovaný hotelový a kongresový komplex Paasitorni v Helsinkách patrí do siete Scandic Hotels. V porovnaní s ostatnými hotelmi v sieti je tento 25. v poradí výnimočný. Návštevníkom a hosťom rozpráva svoj storočný príbeh, ktorého jednotlivé časti pospájala do jednoliateho celku kompletná obnova a dostavba ukončená v auguste minulého roka.

1920 luvun spectacular huone 1 big image
auditoruim big image
sauna terrace big image
detail1 big image
paasitorni section c c big image
paasitorni floor 6 big image
paasitorni floor 1 big image
paasitorni floor 0 big image
Súbor objektov v srdci Helsínk neďaleko centrálnej železničnej stanice vlastní Helsinské robotnícke združenie (HTY). Najstarší objekt postavil architekt Karl Lindahl v štýle art nouveau v roku 1908. Pozdĺž ulice Paasivuorenkatu budovu v roku 1925 rozšírili o prístavbu v klasickom štýle. Dvorovú časť uzavrela v roku 1955 dostavba administratívneho krídla.

V polovici 90. rokov minulého storočia padol prvý návrh na celkovú obnovu s dôrazom na kultúrnu hodnotu objektov. Pribudla myšlienka vytvoriť rozsiahle kongresové centrum a napokon sa v roku 2003 projekty rozšírili ešte o hotel, ktorý by logicky doplnil funkčnú náplň developerského zámeru. Na tento účel sa najviac hodilo práve administratívne krídlo. Po desiatkach rokov užívania táto časť potrebovala urgentnú renováciu.

Dnes hotel zaberá staršie prístavby z rokov 1925 a 1955, ktoré doplnila novostavba na ostatnej nezastavanej časti dvora. Investor vo svojom zadaní žiadal podčiarknuť osobitú atmosféru objektov z jednotlivých období a zároveň vymyslieť originálny jednotiaci a poznávací prvok komplexu. Projekt plný priestorových obmedzení dostali za úlohu vyriešiť architekti Kimmo Lintula, Niko Sirola a Mikko Summanen z ateliéru K2S Architects. 

Projekčné práce trvali od septembra 2008 do januára 2010. Hneď sa začalo s výstavbou, ktorá trvala dva a pol roka. Hotel má 170 izieb. Kongresové centrum poskytuje 30 flexibilných miestností s rôznou veľkosťou, ktoré majú kapacitu od 8 do 800 ľudí. Rekonštrukcia hotelového a kongresového centra Paasitorni je dosiaľ najväčším investičným projektom HTY v hodnote takmer 30 miliónov eur.

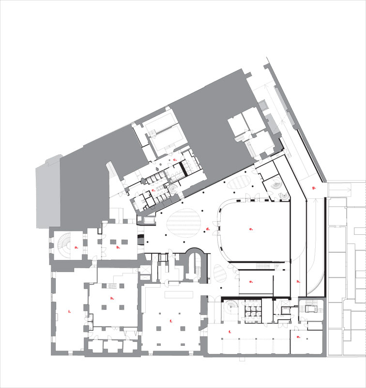
V podzemí boli vybudované dve nové podlažia. Na prvej úrovni sú nové kongresové sály Sirkus, Tivoli a Karuselli, Sirkus foyer a reštaurácia Paasin Kellari a na druhej podzemnej úrovni sa nachádzajú obslužné prevádzky a údržba.

Funkčným srdcom celého bloku je práve zastrešené átrium. Návštevníkom sa otvára na úrovni ulice a o úroveň nižšie cez foyer. Interiér je vizuálne predelený svetlíkmi a sklenenými stenami konferenčných miestností.

Ateliéru K2S sa architektúrou 21. storočia podarilo bez rušivých prechodov zjednotiť všetky ostatné štýly. Nový objekt hotela sa vinie popri starších budovách vo voľných krivkách. Geometria nie je náhodná, pozorne sleduje svetelné podmienky a vzájomné pôsobenie objemov. Fasáda je obložená bielymi tehlami. Tým sa vytvorilo vzájomné materiálové a farebné prepojenie. Na dvoch stranách budovy obklad pokračuje akousi tehlovou čipkou. Plní funkciu filtra medzi hotelovými izbami a vnútorným dvorom. Navyše, v noci nové krídlo žiari ako lampáš v snehu.
–>–>

 
 Moderná prístavba vo vnútrobloku zjednotila rôznorodé časti do kompaktného celku.   Nové časti sú v minimalistickom duchu.


Terasa patriaca k saune je dobre ukrytá na streche.


Interiér izieb rešpektoval obdobia vzniku jednotlivých častí hotela.


Rezopohľad

Architekti z K2S navrhli aj dizajn interiérov rozšíreného kongresového centra. Pracovali s monochromatickým základom bez prílišnej ozdobnosti. Drevený interiérový obklad priestory zútulňuje a plní aj akustickú funkciu. Oživujúcim prvkom sú pastelové farby mobiláru, a najmä záplava svetla z oválneho otvoru átria.

Naopak, reštaurácia a hotelové izby majú oveľa dynamickejší interiér plný geometrických vzorov, vtipných detailov a niekedy až dekadentných riešení. Pohrali sa s nimi dizajnéri zo štúdií Stylt Trampoli a Sisusto.


Situácia

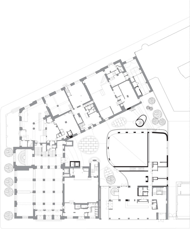
Pôdorys 1. podzemného podlažia
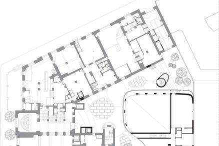
Pôdorys 1. nadzemného podlažia
 
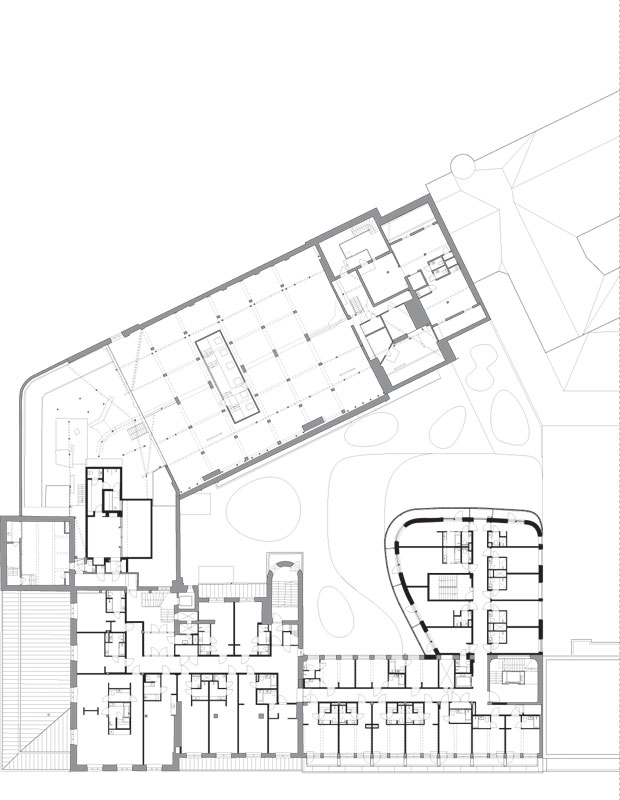
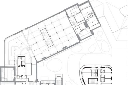
Pôdorys 6. nadzemného podlažia  

Kongresové centrum a hotel Paasitorni, Helsinki
Architektúra:  K2S Architects
Investor:  Helsinki Workers Association
Prevádzkovatelia: Helsinki Congress Paasitorni, Scandic Hotels, Graniittiravintolat Restaurants
Projekčné práce: 09/2008 – 01/2010
Výstavba: 02/2010 – 06/2012
Celková plocha: 20 536 m2
Hotelová plocha: 11 400 m2

TEXT: Mária Nováková
Dokumentácia: K2S Architects
FOTO: K2S a Scandic Hotels

Článok bol uverejnený v časopise ASB.