Hotel Zochova chata – tradícia so súčasnou atmosférou
Horská krajina a fenomén lesa, lokalita ako nositeľ tradície – to boli ústredné inšpiratívne prvky pri revitalizácii Hotela Zochova chata (Hotel Zochova chata****) neďaleko Modry, v ktorej sa prejavil kontrast zažitej podoby objektu Zochovej chaty s novostavbou. Prístavba Hotela Zochova chata v sebe skĺbila architektonický štýl pôvodného objektu a prostredie, v ktorom sa nachádza. Tvar celého objektu rešpektuje charakter miesta, prírody, ako aj tvar pozemku. Mnohé časti nového objektu sú obložené dreveným materiálom, ktorý zdôrazňuje spätosť zariadenia s prírodou a vytvára s ňou harmonický celok.
Cesty revitalizácieHistória Zochovej chaty sa začala v roku 1932, keď jej výstavbu podnietili členovia Klubu slovenských turistov. Chata dostala meno po evanjelickom kňazovi, verejnom činiteľovi a politikovi Samuelovi Zochovi, ktorý sem chodieval s priateľmi. Zochova chata začala ešte v Československu poskytovať služby návštevníkom 30. apríla 1933.
Pôvodná časť Hotela Zochova chata prešla mnohými prestavbami, naposledy v polovici 60. rokov minulého storočia. Po roku 1990 sa do Zochovej chaty takmer neinvestovalo. Až po zmene majiteľa v roku 2007 došlo k podstatnému obratu. Jej nový vlastník rozhodol o zásadnej rekonštrukcii objektu a jeho premene na moderné ubytovacie zariadenie zodpovedajúce potrebám tradičnej i novej klientely. Podľa pôvodných plánov dal vo Fínsku vyrobiť kópiu autentickej chaty v pôvodnom objeme a architektonickom výraze. Tým sa zachovala chata v pôvodnej podobe aj pre budúce generácie. Zásadná rekonštrukcia umožnila v chate vymeniť zastaranú infraštruktúru a nahradiť ju kvalitnejším vybavením a zariadením. Prístavba rozšírila sortiment poskytovaných služieb.
![]() |
![]() |
Okamih a atmosféra
„Pri návrhu hotela ma viedli dve hlavné myšlienky: prvá sa týkala miesta a najstaršej časti stavby, jej histórie a pamäti,“ približuje svoj architektonický prístup autor projektu Ing. arch. Albert Mikovíny.
„Počas svojej histórie bola útočiskom a východiskovým bodom pre víkendovú turistiku rodín a priateľov. Bola miestom rodinných osláv, svadieb, ale zažila aj tajné striptízové večierky počas socializmu či bujaré oslavy s opekaním volov. Počas svojej histórie prešla niekoľkými zásadnými aj menej výraznými prestavbami a dostavbami.“
Skutočnosť, že stará časť Zochovej chaty bola vzhľadom na biedny stav jej stavebných konštrukcií prakticky zbúraná a postavená nanovo v pôvodnej podobe, uvoľnila architektom ruky pri návrhu jej nového interiéru. Dnes je táto časť prepojená s novou hmotou hotela a slúži na prízemí ako odbytový priestor reštaurácie a na poschodiach ako hotelové izby.
Kto by chcel hľadať vo vnútri stopy pôvodných prvkov, nenájde ich. V nových vzdušných priestoroch reštaurácie sú tradičné drevené konštrukcie s miernym závanom východného vetra. Pri návrhu nových priestorov v tejto časti chceli autori zdôrazniť prítomnosť okamihu a atmosféry, ktorá je ďalším krokom v dejovej línii miesta.
–>–>
| Hotel Zochova chata, rekonštrukcia, prestavba a dostavba Miesto: Modra, Piesok Investor: Grapent, a. s., Zochova chata Autor: Ing. arch. Albert Mikovíny Spoluautori riešenia interiéru: Ing. arch. Katka Valušková, Mgr. art. Igor Valuška Generálny projektant: AFM, s. r. o. Hlavný inžinier: Ing. Eugen Kmeť Predpokladané investičné náklady: 10 mil. eur Začiatok výstavby / Beginning of construction: 8/2009 Ukončenie výstavby: 3/2011 Otvorenie: 4. 4. 2011 Úžitková plocha: 7 652 m2 Počet lôžok v hotelis: 134 – z toho 53 dvojlôžkových izieb, 2 trojlôžkové izby, 7 dvojlôžkových apartmánov a 2 štvorlôžkové apartmány Počet miest v garáž: 35 Počet parkovacích miest pred budovou: 30 Generálny dodávateľ: Steelmont Construction, a. s., Holíč |
| Odborným okom
Obnova nehnuteľností, ktoré majú nádych nostalgie alebo histórie, je v slovenských podmienkach často problematická – z pohľadu administratívneho, stavebného a samozrejme (často na prvom mieste) z pohľadu finančnej návratnosti investície. Oživenie zašlej slávy Zochovej chaty je na dobrej ceste, investorovi prajeme, aby termín ziskovosti projektu nebol otázkou dekád. Proces obnovy významnou mierou zväčšil obstavaný priestor pôvodnej turistickej chaty. Tú sa snažil investor zreštaurovať čo najvernejšie podľa dobových fotografií. Prístavba je riešená modernejšie, i keď stále zapadá do horského prostredia. Zatiaľ nezvládnutou časťou je opláštenie fasády bazéna, ktorá výrazne kazí výsledný architektonický dojem a výhľad z viacerých izieb. Plochým strechám by pristala vegetačná úprava. Dominantným úsilím pri obnove bolo použitie prírodných materiálov, najmä dreva, kameňa a skla. Práca sklárov je na veľmi vysokej úrovni. Boli použité viaceré techniky spracovania – pieskované, líhané, maľované, vo vstupnej hale nájdeme sklárske umelecké dielo (fontána), ako aj noblesné sklenené kryštáliky vo visiacich lampách. Sklenené ornamenty sa vyskytujú aj na jedálenských stoloch a stenách viacerých miestností. Atmosféru dotvára patinovaná meď v kombinácii s tmavou kamennou podlahou (bridlica). Pozitívne hodnotíme myšlienku a snahu o nápaditosť a originálny interiérový dizajn, ktorý vychádza z podnetov okolitej prírody. Hotelové izby sú riešené v primeranom hviezdičkovom štandarde. Z hľadiska remeselnej precíznosti sme postrehli niekoľko nedokonalostí, napríklad nerovnú podkládku gresovej dlažby v bazénovej hale alebo lepenie niektorých špecifických obkladov v saunovom svete. Inak možno konštatovať veľmi slušnú prácu remeselníkov. Zochova chata je obnovená s akcentom na prírodné materiály na úrovni **** hotelového zariadenia. Po doriešení niektorých stavebných prvkov a častí, najmä fasády budovy bazéna, bude výsledok poctivou referenciou tímu ľudí, ktorý sa na procese obnovy podieľal. Ing. Jozef Ilčík |
Interiér je súčasťou prírody
„Druhý smer pri úvahách o novej forme a priestoroch najmä v novej časti hotelovej prístavby ovplyvnila samotná lokalita na rozhraní lúky a lesa,“ pokračuje Albert Mikovíny. „Išlo nám skôr o nadväzovanie kontaktov s okolím a pohrávanie sa s prívetivým významom slova chata v názve hotela, než o vyvolávanie atmosféry hotelového luxusu.“
„Prítomnosť lesa formuje novú hmotu prístavby, ktorá sa akoby plazí medzi stromami okolitého lesa. Stromy a ich konáre vstupujú aj do hotelovej haly, transformované do mohutných drevených pilierov a spleti trámov stropných kaziet a drevených mostíkov prepletajúcich sa vo výškach. Možno aj človek v tejto atmosfére vzájomných prelínaní pocíti, že je súčasťou okolia. Majú asociovať vstup lesa do stavby,“ poznamenáva Albert Mikovíny. „Vo vstupnej hale je dominantný aj podhľad z drevených prvkov. Symbolicky navodzuje dojem spleti konárov.“
Služby a technické vybavenie
„Aby ste boli v hotelierstve úspešný, musíte poznať svoju cieľovú skupinu a pozvať ju do svojho hotela,“ hovorí riaditeľ hotela Ing. Ján Bokroš. „Zochova chata je definovaná ako komfortný štvorhviezdičkový hotel umiestnený v srdci prírody. Takéto zariadenie doteraz v tejto lokalite chýbalo. Z tohto sa profiluje aj jeho klientela.“
Štvorhviezdičkový Hotel Zochova chata s bezbariérovým vstupom poskytuje služby vysokého štandardu. Môže sa v ňom ubytovať 134 hostí. Ubytovacie kapacity pozostávajú z 53 dvojlôžkových izieb, 2 trojlôžkových izieb, 7 dvojlôžkových apartmánov a 2 štvorlôžkových apartmánov.
V hoteli je kongresové centrum s kapacitou 150 hostí, ktoré je vybavené najmodernejšou audiovizuálnou a výpočtovou technikou umožňujúcou multimediálne prezentácie prednášajúcich. Okrem kongresového centra sú v Hoteli Zochova chata štyri salóniky, pričom každý z nich má kapacitu 64 hostí.
Nechýba reštaurácia a bar s celkovou kapacitou 142 návštevníkov, špeciálna časť reštaurácie na podávanie raňajok s kapacitou 60 hostí, lobby s barom s kapacitou 50 návštevníkov. V podzemných priestoroch hotela je 35 miest na parkovanie osobných automobilov. V priestoroch hotela je ďalších 30 parkovacích miest. Hotel okrem tradičných ubytovacích a stravovacích služieb poskytuje aj wellness služby. V areáli Hotela Zochova chata je bazén, niekoľko sáun, vírivá vaňa a posilňovňa.
Objekt Zochova chata nie je napojený na plyn, podlahové vykurovanie zabezpečuje tepelné čerpadlo vzduch-voda, ktoré je umiestnené na streche, a kotol na peletky (drevené štiepky a prírodný materiál). Doplnkovým vykurovaním zabezpečujúcim najmä komfort v apartmánoch sú štýlové kozuby so vzduchovými prieduchmi. K optimalizácii nastavenia teploty prispieva aj vhodná orientácia stavby na svetové strany. „K osobitostiam patrí aj fakt, že hotel má vlastný generátor, ktorý vie zabezpečiť elektrinu pre hotel počas 16 hodín,“ hovorí Ján Bokroš. „K úsporným prejavom patrí aj LED osvetlenie, ktoré je nastavené na šetriaci režim.“
Zochova chata má za sebou niekoľko týždňov prevádzky, ktoré overujú správnosť konceptu. Každodenný chod naznačí, čo treba vylepšiť, upraviť či zmeniť. V každom prípade Zochovej chate nemožno uprieť Genius loci. Toto slovné spojenie v rímskej mytológii označovalo ducha, ktorý ochraňoval isté miesto. Dnes sa tento termín často používa na označenie určitej charakteristickej atmosféry. A tú „Zoška“ má…
Pôdorys 1. NP
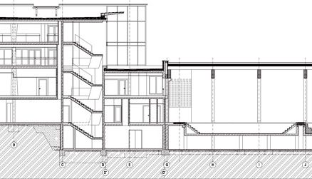
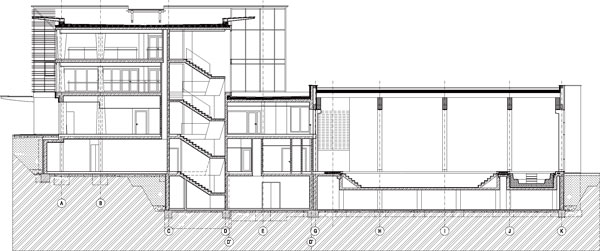
Rez
Situácia
Ľudo Petránsky
Foto: Dano Veselský
Článok bol uverejnený v časopise ASB.



















