Hotel Ring
Hotel Ring má na Slovensku výnimočné postavenie, lebo je svojho druhu jediný. Poskytuje komplexné služby v rámci prvého motoristického okruhu Slovakia Ring, čím sa malá obec na Žitnom ostrove – Orechová Potôň – dostáva aj na mapu Európy. Ani na tomto kontinente totiž nie je obvyklé, aby pri autodróme stál objekt, v ktorom sa nachádzajú ubytovacie priestory, reštaurácia s lobby barom, priestory na konferencie a wellness centrum. Hotelové služby sú nastavené na úroveň troch hviezdičiek, ale svojou kvalitou atakujú aj vyššie stupne.
Dynamický motív šachovniceTvar Hotela Ring vychádza z pôvodného zámeru a architektonickej štúdie od skúseného rakúskeho architekta Hansa Rotha (nar. 1947), ktorý je aj autorom projektu pretekárskej dráhy. Tá patrí s dĺžkou 5 922 m, šírkou 12 m a s možnosťami pre profesionálov aj laických nadšencov medzi najdlhšie cestné okruhy v Európe.
Je len prirodzené, že väzba hotela na pretekársku trať sa odrazila aj v jeho dynamicky pôsobiacom vonkajšom výraze. Ten spolu s prelomenou strechou vstupnej markízy a výtvarnou úpravou fasády v podobe šachovnice silne evokuje motív cieľovej vlajky na motoristických pretekoch. Hotel nemá široko-ďaleko okolo seba partnera v podobe iného objektu, a tak je solitérom, ktorý na seba púta pozornosť, ale predovšetkým napĺňa areál prvého slovenského motoristického okruhu ďalším obsahom.
„Hotel svojou funkciou dopĺňa doteraz chýbajúce ubytovacie a relaxačné kapacity v danom motoristickom komplexe,“ hovorí riaditeľ hotela Ring Marián Polák. „Svojou polohou a štandardom je vhodným riešením pre ubytovanie aktívnych pretekárov, testovacích jazdcov, motoristických fanúšikov a návštevníkov výcvikového zariadenia pre vodičov – Centrum bezpečnej jazdy „Driving Academy“.
| Hotel Ring Miesto: Orechová Potôň, okres Dunajská Streda Investor: Thorin, a. s., Bratislava Autor architektonickej štúdie: Hans Roth Zodpovedný projektant: Ing. František Kis – Linear Projekt Autor interiérov: Ing. Štefan Hojstrič Začiatok výstavby: marec 2010 Ukončenie výstavby: máj 2011 Zastavaná plocha: 1 874,58 m2 Obostavaný priestor: 19 308,17 m3 Celková kapacita: 94 pevných lôžok + 12 prísteliek Generálny dodávateľ: HT, s. r. o., Dunajská Streda Dodávatelia: Zdravotno-technické inštalácie:Ervin Mészáros, TZB PROFI, Lúč na Ostrove-Veľká Lúč Ústredné kúrenie, vzduchotechnika: G-Therm, s. r. o, Martin Elektroinštalácia: ELIS plus, s. r. o., Banská Bystrica HI-TECH ELEKTRO, s. r. o, Dunajská Streda Plastové a hliníkové konštrukcie: Alkon Košice, a. s., Košice Dodávateľ bazénovej technológie: Wellness systém, s. r. o., Spišská Nová Ves Tieniaca technika: K-system, spol. s r. o. Dodávateľ interiéru: Drevona Slovakia, s. r. o., Bratislava, Glamour Living, s. r. o, Nitra, JUTEX, s. r. o., Hlohovec, VETEX, Int., Bratislava Dodávateľ a projektant technológie kuchyne: TEDOSS, s. r. o., Liptovský Mikuláš Dodávka materiálu na metalické opláštenie: RHEINZINK |
![]() |
![]() |

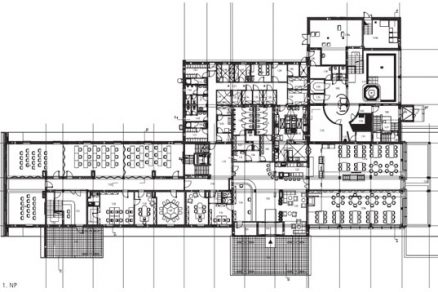
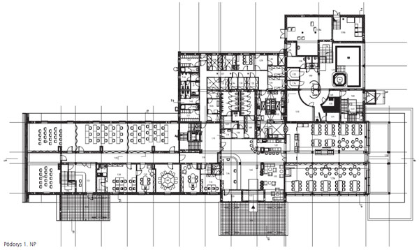
V hoteli so 4-mi nadzemnými podlažiami sú k dispozícii 3 jednoposteľové izby, 39 dvojposteľových izieb Standard, 4 dvojposteľové izby De luxe, 3 apartmány Classic a 1 apartmán Superior. Celková kapacita je 94 pevných lôžok + 12 prísteliek. Samozrejmosťou je aj apartmán s bezbariérovým prístupom.
Súčasťou je reštaurácia s kapacitou 80 miest a v letných mesiacoch aj terasa pre 40 hostí. K dispozícii je lobby bar, wellness centrum, ktoré má bazén s protiprúdom, vírivku pre 6 osôb, parnú, bylinkovú, fínsku a infrasaunu, ochladzovaciu miestnosť a tepidárium (oddychová miestnosť).
„Treba si uvedomiť, že ide o špecifický hotel, ktorého klientela pochádza z deväťdesiatich percent z okruhu nadšencov motoristického športu,“ upozorňuje Marián Polák. „Počas prevádzky si však hotel našiel svojich zákazníkov aj v širokej verejnosti. Aj preto sme v našej ponuke kládli veľký dôraz na gastronómiu a prívetivý vzhľad interiéru, ktorý by pritiahol ľudí.“
Inšpirované prírodou
Situovanie hotela na Žitný ostrov vplývalo aj na jeho interiérový dizajn, ktorý sa možno trochu prekvapujúco vyhol zdôrazňovaniu motoristických motívov. „Chceli sme, aby obsahoval prírodné inšpirácie a reagoval tak na širšie prostredie regiónu,“ hovorí autor interiéru Štefan Hojstrič. „Tie sa najviac premietli do vytvorenia atmosféry s príchuťou „tepla domova“ na základe použitia prírodných materiálov, ich organického tvarovania v priestore a citlivej väzbe na ostatné prvky architektúry a prevádzku hotela.“
Transparentným príkladom je v tomto smere riešenie vzdušne pôsobiacej recepcie s priľahlým lobby barom, v ktorom dominuje čitateľná orientácia a bezkonfliktnosť v pohybe po priestore. Prírodný kameň, drevené obklady, kultivované textílie, bambusová dekorácia, vizuálne pútavé kozubové teleso, farebné tónovanie v prírodných farbách – to všetko vytvára v hosťovi pocit dôverne známeho miesta.
Nechýba ani zmysel pre zaujímavý detail, ktorý je viditeľný napríklad v tvarovaní priečelia recepčného a barového pultu. Horizontálne ukladané drevené dosky svojou nepravidelnou plasticitou vytvárajú atraktívnu optickú hru s výtvarným rozmerom. A podobných detailov, z ktorých pozostáva mozaika celku, by sa našlo viac.
![]() |
![]() |
Technická výbava
Objekt je úrovňou svojho technického vybavenia zaradený do energetickej triedy A, čo je v našich zemepisných šírkach viac než solídne hodnotenie. A to najmä vzhľadom na jeho situovanie. „Vykurovanie je zabezpečené dvomi tepelnými čerpadlami systému voda/voda, pričom príprava teplej vody sa uskutočňuje kombináciou tepelného čerpadla a slnečného kolektora,“ upresňuje Štefan Hojstrič, ktorý mal na objekte aj technický dozor. „Hotel je pomerne ďaleko od inžinierskych sietí, takže sa pri jeho prevádzke sledovala sebestačnosť. Tú podporujú aj dve vlastné studne. Pri výstavbe hotela boli dodržané všetky parametre, aby sa mohol postaviť na Žitnom ostrove s vysokou spodnou vodou a pod úrovňou terénu je len strojovňa.“
Nosnou časťou obvodového plášťa zaisťujúcou požadované statické a akustické vlastnosti je železobetónová stena s hrúbkou 200 mm. Na nosnú stenu sa montoval drevený rošt z hranolov 2 × 110 × 100 mm, ktorý sa vyplnil tepelnou izoláciou z minerálnej vlny. Metalické opláštenie bolo navrhnuté ako zozadu odvetraná zavesená fasáda, pričom sa myslelo aj na dostatočne navrhnutú a priebežnú vzduchovú medzeru. Metalické opláštenie je použité aj na ďalších vizuálne vnímateľných konštrukciách, ktoré objektu pridávajú spomínanú dynamiku a atraktivitu.
Zákazníkova dôvera
Hotel Ring je ďalším špecifickým príspevkom cestovnému ruchu na Slovensku, ktorý len pomaly napreduje na ceste k zákazníkovej dôvere.
„Počas uplynulých piatich rokov sa na Slovensku vybudovalo veľa pekných a kvalitných zariadení, ale v porovnaní s Rakúskom či Nemeckom je tu stále vypuklý problém s personálom,“ hovorí Marián Polák, ktorý je riaditeľom aj hotela Jánošík v Liptovskom Mikuláši. „Samozrejme, aj v týchto krajinách sú zariadenia, ktoré neposkytujú najkvalitnejšie služby, ale rozdiel medzi nimi a Slovenskom je stále veľmi veľký. Práca s ľuďmi v oblasti cestovného ruchu je najnáročnejšou položkou a pred nami je ešte veľký kus práce. Navyše, cestovný ruch výrazne ovplyvňuje aj stav hospodárstva a ešte nejaký čas potrvá, pokiaľ sa na Slovensku zreálnia ceny ubytovania a poskytovaných služieb. Je príznačné, že aj v našich zariadeniach stále prevažuje zahraničná klientela, ktorá nám umožňuje existovať. Ak by som mal teda hodnotiť súčasnú situáciu v cestovnom ruchu na Slovensku, tak v nej panuje stagnácia…“
Hotel Ring v Orechovej Potôni patrí k najnovším príspevkom, ktoré by do tejto stagnácie chceli vniesť dynamiku a nasmerovať ju k pozitívnym číslam. Či sa táto ambícia podarí naplniť, ukáže už blízka budúcnosť.
Priečne rezy
Ľudo Petránsky
Foto: Dano Veselský
Článok bol uverejnený v časopise ASB.
–>–>

















