Hotel Preuge – rekonštrukcia nefunkčného objektu
Názov hotela Preuge je tak trochu jazykolam. Ale len dovtedy, kým sa človek nedozvie, že je to vlastne prvý latinský názov dnešnej Prievidze z roku 1276. Okrem historického názvu je budova prepojená aj s nedávnejšou minulosťou. Hotel je vydareným výsledkom rekonštrukcie a adaptácie starého nefunkčného objektu.
Výsledok oslovilChátrajúca stavba v strede Prievidze slúžila ako reštaurácia a jedáleň. Jej ideálna poloha oslovila investora a pôvodne uvažoval o polyfunkčnom využití. Umiestnenie neďaleko autobusovej a železničnej stanice však pomohli ku konečnému rozhodnutiu prebudovať objekt na biznis hotel.
„Vďaka rozhľadenému investorovi nám bola poskytnutá sloboda v snahe priniesť stavbe pridanú hodnotu v podobe sčasti provokatívneho, no tvarovo čistého minimalistického architektonického výrazu,“ uviedol jeden z autorov projektu rekonštrukcie a adaptácie Ing. arch. Marian Hlinka a dodal: „Išlo nám o vytvorenie akéhosi štartovacieho, nultého bodu pre návštevníkov mesta a regiónu Hornej Nitry.“
Napriek radikálnej zmene oproti pôvodnému stavu výsledok obyvateľov mesta oslovil. Ako hovorí Marian Hlinka, svedčia o tom reakcie miestnych aj návštevníkov. Klientelu tvoria najmä športové kluby, interpreti koncertujúci v meste a rôzne firmy, ktoré využívajú spoločenské priestory na konferencie, prednášky a semináre.
Komfortne v centre mesta
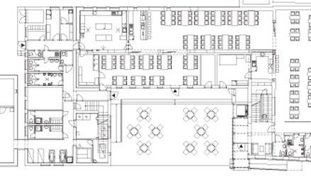
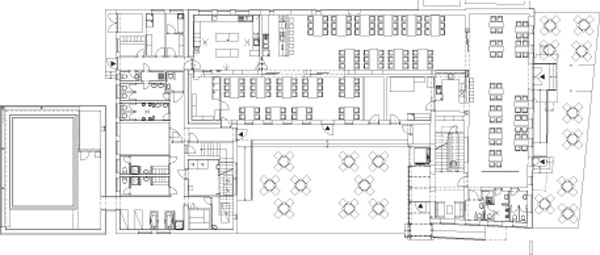
Z pôvodnej stavby boli odstránené nestabilné a narušené časti murív. Polorozpadnuté základy sa museli spevňovať pod celým obvodom, pretože v projekte sa rátalo s nadstavbou tretieho podlažia. Okrem nadstavby je nová aj prístavba zadného krídla. Tým sa vytvoril pôdorys v tvare U s átriom, ktoré sa využíva ako letná terasa. V ďalšej fáze bude dokončený objekt s bazénom prepojený zaskleným hrdlom s hotelom. Na prízemí hotela, v prednej časti od hlavnej ulice, sa nachádza hlavný vstup s recepciou a kaviarňou s kapacitou 60 miest, ktorá sa dá oddeliť zasklenými posuvnými dverami. V strednej časti je reštaurácia s kapacitou 110 miest a smerom do átria pokračuje ďalší oddeliteľný priestor reštaurácie.
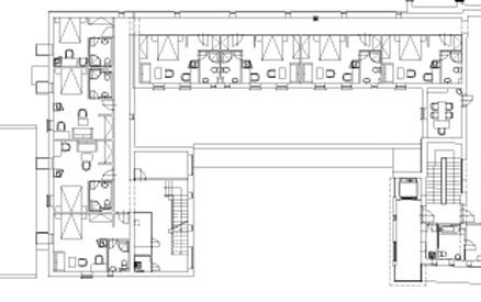
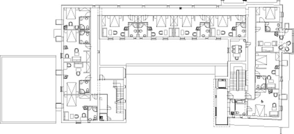
V zadnom krídle sa nachádza kuchyňa, zázemie a smerom k zadnému parkovisku vstup pre zamestnancov a zásobovanie. Nachádza sa tu aj práčovňa s možnosťou priameho zhodenia použitej bielizne z obytných podlaží, ďalej šatne, masér a wellness prepojená s bazénom a napokon zadné schodisko do vyšších podlaží pre ubytovaných hostí. Sú tu situované aj zadné toalety, slúžiace v lete aj pre hostí v átriu. Z átria sa do prednej časti k recepcii a výťahu dostaneme zaskleným vstupom vo výraznej zadnej veži tienenej lamelami. Na druhom až štvrtom nadzemnom podlaží je spolu 22 izieb, vrátane jednej rodinnej, dvoch bezbariérových a dvoch apartmánov.
![]() |
![]() |
–>–>
Pôdorys 1. NP
Pôdorys 2. a 3. NP

Objekt je navrhnutý v minimalistickom štýle. Akékoľvek výrazové prostriedky autori používajú veľmi triezvo a úsporne. Začína sa to základnou farebnosťou, kde do kombinácie bielej a sivej omietky vložili len malé akcenty v podobe červených obdĺžnikov. Materiálové riešenie exteriéru dopĺňa biela prístavba zozadu uličného traktu ako kombinácia veľkoplošných sklenených tabúľ s lamelovou tieniacou clonou a zdanlivo náhodne rozmiestnených úzkych okien. Tento obrazec sa nachádza aj na zadnej čiernej veži, kde okná presvetľujú zadné schodisko. Sú pomyselnou odozvou na rovnakú grafickú hru na arkieri z uličnej strany. Ten je na dvoch podlažiach atraktívnou súčasťou hotelových apartmánov.
Dizajn interiéru štýlovo dopovedal architektonický zámer načrtnutý v exteriéri. Strohá farebnosť a grafické skratky vložených farebne výrazných plôch sa opakujú aj na zariadení v reštauračnej a kaviarenskej časti. Aby priestory nepôsobili príliš chladne a neosobne, autori siahli po pocitovo teplej keramickej podlahe s drevenou kresbou, ktorá túto časť príjemne zútulňuje. Zariadenie hotelových izieb má rovnaký rukopis. Pri prechodnom ubytovaní to nemusí byť na škodu, čistota tvarov a jednoduché zariadenie oslovia široké spektrum klientely. Plusom je oživenie snehobielych stien medenou dizajnovou omietkou, ktorá je vhodným kontrastom k sivým podlahám.
Prievidza, Bojnice a ich okolie sú obľúbenou turistickou lokalitou. Nový hotel Preuge nie je typickým dovolenkovým hotelom a oslovuje skôr iný druh hostí. Jeho súčasný vzhľad však nesie ako celok veľmi jasný architektonický rukopis, ktorý sa v meste rozhodne nestratí.
Článok bol uverejnený v časopise ASB.

















