Hotel Impiq: Čisté tvary, svetlé farby, prehľadná dispozícia
Legendárny trnavský hotel Imperial má od mája tohto roku svojho symbolického nasledovníka. Je ním IMPIQ Hotel, ktorý chce nielen podľa svojho názvu (vychádzajúceho z Trnavčanmi zaužívaného familiárneho pomenovania) nadviazať na svojho predchodcu. Nachádza sa neďaleko starobylého centra slovenského Ríma a s ambíciou troch hviezdičiek chce uspokojovať nároky narastajúcej podnikateľskej klientely prichádzajúcej do mesta a jeho blízkeho okolia. „Tento zámer sme sledovali aj pri koncipovaní interiérov a rozložení jednotlivých prevádzkových priestorov v projekte,“ hovorí Ing. Marián Janov z investorskej spoločnosti Q 100. Výsledok? IMPIQ Hotel kultivovanou architektonickou rečou prináša svoj kvalitný príspevok do súčasnej ponuky slovenských hotelov.
Čistá a svetlá fasáda

Jej rukopis sa preniesol aj do dispozície hotelovej haly či interiérov hotelových izieb. „Naším zámerom bolo, aby fasáda hotela pôsobila čisto a svetlo, známy to sukcesívny kontrast,“ povedala Dagmar Janova. „Priala som si, aby rozmermi neveľký objekt hovoril k svetu istou radosťou a plnosťou. Veď už starí Egypťania vedeli, prečo používali fantastické polychrómie na chrámy či skulptúry.“
Materiálovým i výrazovým kontrastom tohto vrchného kubusu je spodná časť stavby, akýsi podstavec obrazu, ktorý veľkými sklenými tabuľami a tvarovými nuansami zároveň dynamizuje fasádu a otvára náruč pre potenciálneho hotelového klienta. Čisté línie z horných častí sa nestrácajú, ale voľne prechádzajú do rafinovanejších podôb. Pomáha im aj drevený obklad a oblé tvary architektonického detailu, ktoré zmäkčujú hrany z vrchnej časti hotela.
Zaujímavým príkladom je aj predsunuté zábradlie na priečelí, ktoré ukrýva pohľad na suterén. Podľa Mariána Janova sa tam bude v blízkom období odohrávať ďalší, najmä nočný život hotela v podobe pripravovanej medzinárodnej vinotéky a wellness. Samozrejmosťou je bezbariérový vstup, pričom druhý, zadný vstup je navrhnutý v nadväznosti na parkovisko hotela.
Prehľadná dispozícia
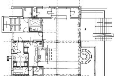
Pretlmočené do architektonického jazyka, objekt sa dispozične rozdeľuje na dve podlažia prevádzkovo-technického charakteru (podstavec) a tri podlažia určené na ubytovanie hostí (geometrický obrazec). „Chceli sme oddeliť hotelovú časť od prevádzkovej a reštauračnej časti,“ hovorí spoluautor projektu architekt Jaroslav Janes, ktorý tak vytvoril dve relatívne samostatné časti, vnútorne na seba nadväzujúce komunikačným jadrom, ale aj plynulou a zrozumiteľnou prevádzkou.

Časť dispozície tvoria sociálne zariadenia pre hostí reštaurácie a baru v prvom nadzemnom podlaží, sprístupnené točitým schodiskom vo foyeri, a samostatný blok určený na relaxáciu hostí – wellness centrum a vinotéka.
V prvom nadzemnom podlaží sa v nadväznosti na hlavný vstup do objektu nachádza hotelová hala s recepciou, súčasťou ktorej je aj miestnosť úschovne batožín, denný bar a reštaurácia. Na podlaží sa nachádza toaleta pre osoby so zníženou schopnosťou pohybu. Ostatnú časť podlažia tvorí kuchyňa so zázemím – office, sklad potravín, príručný sklad, umyváreň bieleho a čierneho riadu, príprava zeleniny, šatňa so sociálnym zariadením pre zamestnancov kuchyne a miestnosť pre upratovačku.
Druhé nadzemné podlažie plní tak funkciu ubytovaciu – nachádza sa tu apartmán a šesť dvojlôžkových izieb –, ako aj funkciu konferenčnú. Tú zaisťuje variabilne členiteľná, všetkými modernými audiovizuálnymi zariadeniami vybavená sála s celkovou kapacitou 60 osôb, doplnená vlastnými sociálnymi zariadeniami na podlaží.
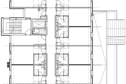
Tretie a štvrté nadzemné podlažie sú identické a v celom rozsahu sú určené na ubytovanie hostí. Nachádza sa tu 28 dvojlôžkových izieb s predsieňou a samostatnou kúpeľňou s WC. Na každom podlaží je aj miestnosť pre chyžné. Súčasťou dispozície tretieho nadzemného podlažia je izba upravená na pobyt osôb so zníženou schopnosťou pohybu.
|  |  | 
| Lobby bar | Variabilita konferenčnej sály | 
Dvere sú otvorené
„V úvodnej fáze mal architekt okrem obmedzenia územným plánom a rámcového zadania pomerne voľnú ruku,“ hovorí Ing. Marián Janov, ktorý hodnotí spoluprácu s architektmi ako veľmi tvorivú. „Samozrejme, koncepcia dispozície zaznamenala počas svojho zrodu niekoľko korektúr,“ dopĺňa architekt Janes. „Spočiatku sme napr. mali predstavu, že konferenčná miestnosť bude v najvyššom podlaží nad ubytovaním. Počas projektovania sme to však skorigovali a variabilnú konferenčnú miestnosť sme priblížili obslužným prevádzkam – teda reštaurácii, aby sme ubytovaciu časť čo najviac oddelili od rušnej časti hotela.“

Názov: IMPIQ Hotel
Miesto: B. S. Timravy 2, Trnava
Investor: Q 100, s. r. o.
Autori: Ing. arch. Jaroslav Janes, Ing. arch. Radovan Vranka, Ing. arch. Tomáš Matlák
Výtvarný poradca a dizajnér: akad. mal. Dagmar Janova
Generálny projektant: ARCH IN, spol. s r. o.
Generálny dodávateľ: Chladiace veže Bohunice, spol. s r. o.
Začiatok výstavby: marec 2006
Ukončenie výstavby: apríl 2007
Zastavaná plocha objektu: 578,67 m2
Obstavaný priestor: 8 794,5 m3
Ubytovacia kapacita: dvojlôžkové izby: 34  z toho 1 izba upravená pre osoby so zníženou schopnosťou pohybu; apartmány: 1
Subdodávatelia:
Fasádny systém: BAUMIT, spol. s r. o.
Tepelné izolácie: ISOVER Saint-Gobain Construction Products, s. r. o.
Montovaný fasádny obklad: JAF HOLZ Slovakia, s. r. o. 
Vykurovanie, zdravotná technika, plynoinštalácia: TERMOMONT Dolná Krupá, s. r. o. 
Elektroinštalácia: TECHNEX-MONT, spol. s r. o. 
Vzduchotechnika, klimatizácia: KLIMATECH, s. r. o. 
Meranie a regulácia: SIEMENS, s. r. o.
Požiarny rozhlas, štruktúrovaná kabeláž: K. I. T., spol. s r. o. 
Hliníkové výplne otvorov: PROWIN, s. r. o. 
Plastové výplne otvorov: STETSON, spol. s r. o. 
Zámočnícke antikorové výrobky: ORZAN, s. r. o. 
Nábytok: BRIK, a. s.
Ľudo Petránsky
Foto: Dano Miština, Jaroslav Janes
 
													







 
						 
						 
						 
						



 
					 
					 
					 
					 
					 
					 
					 
					 
					 
					 
					 
					 
					 
					 
					 
					 
					 
					 
					 
								 
								 
								 
								 
								