Hotel Dubná skala v Žiline
V Žiline minulý rok otvorili prvý štvorhviezdičkový hotel. Mesto pod Dubňom množstvom novopostavených budov, rekonštrukcií a pripravovaných projektov v poslednom čase potvrdzuje, že sa nielen vďaka mohutným investíciám do žilinského regiónu stáva mestom stredoeurópskeho štandardu. Budova, pre Žilinčanov známa pod menom Dubná skala, ktorá dlhé roky stála v spustnutom stave priamo v centre mesta, tak začala opäť žiť.
Príbeh jednej budovy
Projekt bol spolufinancovaný z Európskeho fondu regionálneho rozvoja a zo štátneho rozpočtu SR v rámci programu Sektorový operačný program – Priemysel a služby pod záštitou Ministerstva hospodárstva SR a Slovenskej agentúry pre cestovný ruch.
Úcta k existujúcemu
 „Pri rekonštrukcii sa, samozrejme, musí vychádzať z existujúceho stavu a daností priestoru. K existujúcej budove sme pristupovali ako k hodnote, z ktorej bolo nie obmedzujúce, ale inšpirujúce pri svojom návrhu vychádzať,“ pokračuje Vladimír Krušinský. A to vidieť nielen na návrhu dispozično-prevádzkového riešenia, ktoré pôvodná konštrukcia pri niektorých priestoroch viac-menej predurčovala, ale aj na pohľadoch z exteriéru. Čelná fasáda zo strany Hurbanovej ulice sa do detailu zrenovovala, aj súčasný vstup v nároží je pôvodným miestom vstupu do budovy, ktorý bol však medzičasom zmenený. Architekti sa rozhodli zachovať aj vináreň v prvom podzemnom podlaží, ktorá má už na tomto mieste svoju tradíciu. Aj trakt kuchyne nadväzujúci na vináreň pôvodne slúžil na tento účel.
„Pri rekonštrukcii sa, samozrejme, musí vychádzať z existujúceho stavu a daností priestoru. K existujúcej budove sme pristupovali ako k hodnote, z ktorej bolo nie obmedzujúce, ale inšpirujúce pri svojom návrhu vychádzať,“ pokračuje Vladimír Krušinský. A to vidieť nielen na návrhu dispozično-prevádzkového riešenia, ktoré pôvodná konštrukcia pri niektorých priestoroch viac-menej predurčovala, ale aj na pohľadoch z exteriéru. Čelná fasáda zo strany Hurbanovej ulice sa do detailu zrenovovala, aj súčasný vstup v nároží je pôvodným miestom vstupu do budovy, ktorý bol však medzičasom zmenený. Architekti sa rozhodli zachovať aj vináreň v prvom podzemnom podlaží, ktorá má už na tomto mieste svoju tradíciu. Aj trakt kuchyne nadväzujúci na vináreň pôvodne slúžil na tento účel. 
Obnova pôvodnej časti budovy si vyžiadala väčšie statické zásahy najmä na úrovni prízemia, kde vznikli vybúraním viacerých konštrukcií otvorené a navzájom prepojené priestory vstupu, recepcie, komunikácie a kaviarne. Na nosnú funkciu a spevnenie pôvodných konštrukcií sa využili oceľové konštrukcie.

Budova hotela sa nachádza v ochrannom pásme Mestskej pamiatkovej rezervácie, samotný hotel nie je pamiatkovo chránený. Podľa podmienok vyplývajúcich z územnoplánovacích podkladov bolo treba zachovať len výškové zónovanie vzhľadom na kostol a bývalý kláštor v susedstve hotela, k obnove budovy sa však aj tak pristupovalo s rešpektovaním jej architektúry. Pri výstavbe vo vnútrobloku neboli žiadne obmedzenia, napriek tomu sa architekti rozhodli pre architektúru podobného rázu, ako je pôvodná budova, aby budova pôsobila harmonicky, ako jeden celok. Vladimír Krušinský spomína: „Od začiatku som cítil, že by nebolo vhodné vnášať do tohto objektu novotvary. Je možné, že by aj tadiaľto mohla viesť úspešná cesta… Ale mojím predsavzatím bolo dosiahnuť, aby novopostavené časti nepôsobili pri pôvodnej budove rušivo, a pritom vytvoriť ideálne priestorové podmienky pre moderný a komfortný hotel.“ A to sa podľa prvých ohlasov podarilo.
… a požiadavky dneška
 Podľa spoločnosti DOXX Restaurant, s. r. o., ktorá je investorom tejto adaptácie a prístavby, sa hotel svojou výbavou snaží vyhovieť predovšetkým obchodníkom, firemným hosťom a medzinárodnej klientele, ale aj súkromným hosťom, ktorí sa rozhodli pre vyšší komfort. Zahŕňa kaviareň aj reštauráciu s ponukou jedál s prvkami francúzskej a talianskej kuchyne pod vedením známeho šéfkuchára Romana Remiša. Na obchodné rokovania a spoločenské akcie slúži banketová plocha a dva salóniky s kapacitou 18 a 44 osôb.
Podľa spoločnosti DOXX Restaurant, s. r. o., ktorá je investorom tejto adaptácie a prístavby, sa hotel svojou výbavou snaží vyhovieť predovšetkým obchodníkom, firemným hosťom a medzinárodnej klientele, ale aj súkromným hosťom, ktorí sa rozhodli pre vyšší komfort. Zahŕňa kaviareň aj reštauráciu s ponukou jedál s prvkami francúzskej a talianskej kuchyne pod vedením známeho šéfkuchára Romana Remiša. Na obchodné rokovania a spoločenské akcie slúži banketová plocha a dva salóniky s kapacitou 18 a 44 osôb. 

Hotel má v zadnej pristavanej časti na prízemí hotelový klub slúžiaci na zábavu hostí a v priestoroch pod ním je fitnescentrum s bazénom s vírivkou, priestory na masáž, saunu, masážne sprchy a oddychový priestor. Administratívne centrum so správou hotela sa tiež nachádza v zadnom trakte budovy na prvom nadzemnom podlaží, takže je v priamom kontakte s recepciou a vstupnými priestormi hotela, ale aj technicko-hospodárskymi priestormi v podzemnom podlaží.

Aj keď k budove patrí pomerne veľká parcela, investor sa rozhodol nezastavať ju na maximum. V jej zadnej časti tak vzniklo dvojpodlažné strážené parkovisko s kapacitou 35 miest pre ubytovaných hostí, ale aj pre hostí reštaurácie či kaviarne.
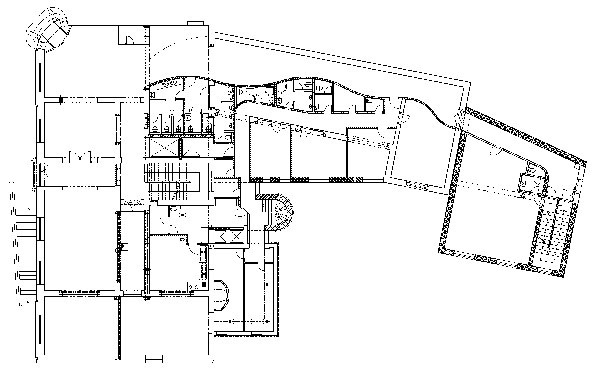
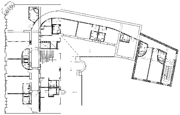
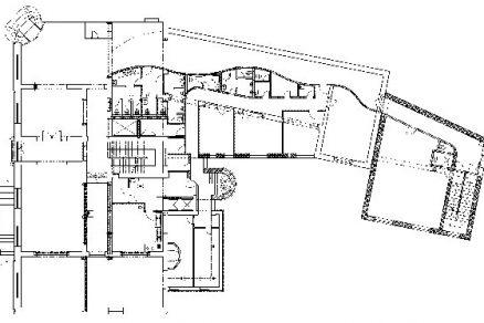
|  |  | 
| Pôdorys 1. NP | Pôdorys 2. NP | 
Názov stavby: Hotel Dubná skala
Typ stavby: obnova a dostavba
Miesto stavby: Hurbanova 345/8, Žilina
Investor: DOXX RESTAURANT, a. s., Žilina
Architekti: Ing. arch. Vladimír Krušinský, Ing. arch. Ivan Jarina (interiéry)
Začiatok výstavby: január 2005
Ukončenie výstavby: august 2006
Generálny dodávateľ: PeHaeS, s. r. o., Žilina
Subdodávatelia: 
Exteriérové povrchy: PeHaeS, s. r. o., Žilina 
Čelná fasáda: RYFTO, spol. s r. o., Žilina
TZB – voda, plyn: MPM, s. r. o., Žilina
Elektroinštaláce: Johnson Controls
Vzduchotechnika, klimatizácia: HORVÁT klimatizácia a vetranie, s. r. o., Žilina
Interiéry:
Vináreň, reštaurácia: Klin, Poprad
Izbová časť: VITAL, a. s., Žilina
Dvere: EKO INTERIÉR, Žilina
Osvetlenie: Unilight
Výťahy: Schindler
Kuchynské vybavenie: UNI-JAS, Žilina
Sanita: Best
Počet izieb: 37
Počet lôžok: 70
Počet parkovacích miest: 70 
Reštaurácia Dubná skala: 114 miest
Hotelová reštaurácia: 50 miest
Kaviareň: 38 miest
Banketová miestnosť: 18 miest
Salónik: 8 miest
Martina Jakušová
Foto: DOXX Restaurant, s. r. o., Martina Jakušová
 
													







 
						 
						 
						 
						



 
					 
					 
					 
					 
					 
					 
					 
					 
					 
					 
					 
					 
					 
					 
					 
					 
					 
					 
					 
								 
								 
								 
								 
								