Hotel ako obývačka
„Keď som uvidel pôvodný objekt, neveril som, že sa nám z neho podarí urobiť hotel,“ začína svoje rozprávanie Ing. arch. Štefan Pacák, ktorý mal pred dvomi rokmi zrekonštruovať zanedbanú administratívnu budovu na stavebnom dvore. Navyše, na tesnom pozemku a s úzkymi traktmi. „Zložitosť zadania bola však výzvou pre náš ateliér,“ dodáva architekt, ktorý za krátky čas zrealizoval hotel s nezvyčajnou dispozíciou izieb.
Autori mali k dispozícii naozaj neatraktívny materiál, z ktorého vytvoriť hotel si vyžadovalo riadnu dávku nielen fantázie, ale aj projekčnej odvahy. Izby v objekte nespĺňali požiadavky na plošné štandardy ubytovacích zariadení, navyše, investor dal jasnú podmienku – šetriť, kde sa dá!
Keď sa architekti pokúsili vyskladať izbu klasickým spôsobom – teda vpredu umiestnili kúpeľňu so štandardným zariadením na ploche 4 m2 – okolo nábytku v izbe im zostávala 30-centimetrová ulička. Preto architekti zvolili iný systém, pri ktorom sa inšpirovali podobne riešenými hotelmi v zahraničí. Využili trojdielne okno, pričom v jednom diele je sklo už súčasťou kúpeľne, ktorá je vďaka tomu presvetlená a prevetrávaná. V niektorých užších izbách zasunuli posteľ do steny, takže sa izba opticky výrazne zväčšila.
Hotel s charakterom
Neveľký, ale efektívny hotel Roca je typický mestský hotel, ktorého charakter sa začína už od fasády. Predsadené veľkoformátové čiernobiele fotografie zo sieťoviny s motívmi mestského života evokujú biznisový imidž hotela. Sú natiahnuté na rámových konštrukciách, ktoré spolu s omietkou a hliníkovými rámami okenných otvorov vytvárajú vonkajší výraz objektu.
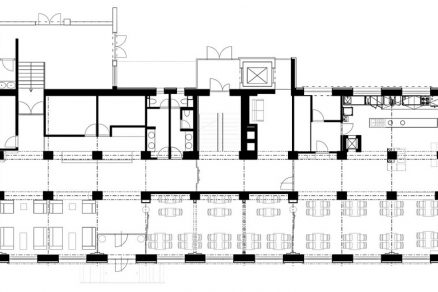
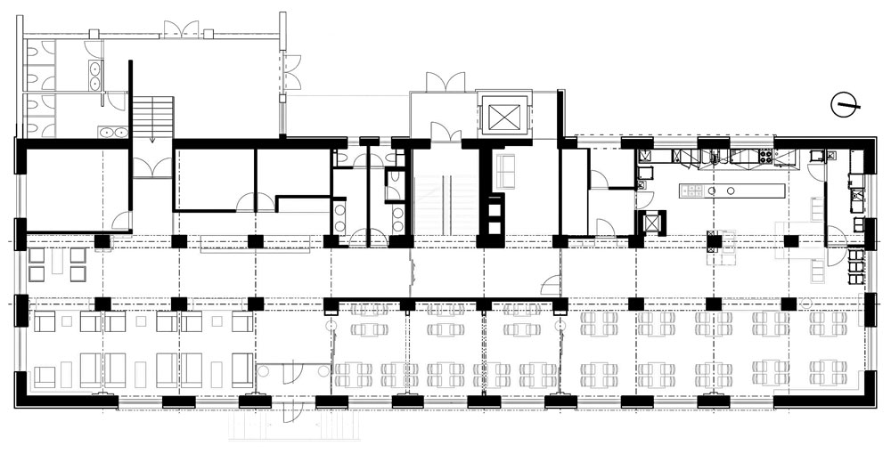
„Nechceli sme celý objekt celkom meniť, preto sme zachovali vstup do objektu z Južnej triedy,“ približuje Štefan Pacák. „Vstup je prepojený s novovytvorenou recepciou a lobby barom. Širokú chodbu bývalej administratívnej budovy sme zúžili a pred stĺpmi smerom dovnútra urobili novú priečku. Na prvom nadzemnom podlaží sa nachádzajú aj reštaurácia a kaviareň, ktoré sme spestrili knižničnými policami s knihami o umení, drobnými plastikami a obrazmi. Snažili sme sa vytvoriť príjemné prostredie, ktoré by evokovalo obývačku.“
Na druhom, treťom a štvrtom nadzemnom podlaží je ubytovacia časť so 114 lôžkami, z toho dva dvojlôžkové apartmány, jeden bezbariérový dvojlôžkový apartmán a 54 dvojlôžkových izieb. Celková podlažná plocha hotela je takmer 2 250 m2 a zastavaná plocha hotela 536 m2.
–>–>
Nosné konštrukcie
Existujúci nosný systém v objekte zachovali v plnom rozsahu. Tvorí ho nosné obvodové tehlové murivo s hrúbkou 450 mm a železobetónové monolitické stĺpy. Osová vzdialenosť stĺpov je 3 600 mm. Zvislé nosné konštrukcie prístavby tvoria oceľové stĺpy. Existujúce horizontálne konštrukcie pozostávajú z monolitických železobetónových prievlakov a montovaných stropných konštrukcií, tvorených železobetónovými nosnými profilmi v tvare I a výplňovými dutinovými tvarovkami.
Biznis s perspektívou
Súčasťou ďalšieho rozširovania hotela je aj kongresová sála pre 200 osôb, ktorá by mala slúžiť aj na kultúrne a spoločenské akcie. Na prednášky zatiaľ slúži zasadačka pre približne 40 osôb, ktorú autori vytvorili prehradením dvoch zasúvacích sklenených priečok.
„Samozrejme, s košickými hotelovými gigantmi – Doubletree by Hilton a Yasmin – sa to nedá porovnať, ale Roca má jednu veľkú výhodu, lebo zapĺňa miesto v ponuke menších biznis hotelov na krátke pobyty. Aj preto sme za rampu areálu navrhli strážene parkovisko, ktoré je nevyhnutnou súčasťou takéhoto typu hotela.“
Prevádzka a obsadenosť hotela za uplynulý rok architektove slová potvrdila. V súčasnosti pripravuje ateliér KOPA projekt na prestavbu celého industriálneho areálu, kde sa nachádza aj hotel Roca. Bude sa volať Buildings City a pôjde o obchodno-stavebné centrum, kde by si mali firmy prenajímať priestory na predaj rôzneho stavebného materiálu.
| HOTEL ROCA Miesto: Južná trieda 117, Košice Druh stavby: rekonštrukcia Autor architektonického riešenia: doc. Ing. arch. Juraj Koban, Ing. arch. Štefan Pacák Projektant architektonickej časti: KOPA, s. r. o. Developer: BUILDINGS CITY, s. r. o. Hlavný zhotovovateľ: SOLIDSTAV Technický dozor: Ing. Slavomír Šulkovský Stavebné náklady bez DPH: 2,1 mil. € Začiatok výstavby: jún 2011 Koniec výstavby: november 2011 Zastavaná plocha: 536 m2 Základné kapacitné ukazovatele |
TEXT: ĽUDOVÍT PETRÁNSKY
FOTO: DANO VESELSKÝ
Článok bol uverejnený v časopise ASB.



















