Aupark v Košiciach
Príbeh Auparku na Slovensku pokračuje v Košiciach. Ústredný koncept projektu – nákupné centrum v centre mesta – sa vo východoslovenskej metropole najviac priblížil k svojmu zadaniu. S istou mierou zveličenia sa dá povedať, že lepšiu adresu má v meste už len gotický chrám sv. Alžbety. Aupark v Košiciach sa však najďalej dostal aj v urbanistickom začlenení do organizmu mesta a v architektonickom výraze.
Overený koncept, nové momentyJedenásť rokov po vzniku pilotného Auparku v Bratislave tento nákupno-zábavný fenomén zakotvil aj v druhom najväčšom slovenskom meste, čo sa adekvátne odráža aj v jeho objemoch. Košický Aupark mal však horšiu štartovú pozíciu, lebo prelom rokov 2009/2010 bol v znamení útlmu veľkých developerských projektov na Slovensku.
„Aupark v Košiciach však nebolo treba pre krízu upravovať alebo inak redukovať, ba dokonca ani mu predlžovať termín,“ hovorí zástupca investora Roman Karabelli. „Začínali sme ho stavať začiatkom roka 2010, v období, keď na Slovensku takmer nikto nestaval – a na východe už vôbec nie – a dokončili sme ho podľa plánu, na jeseň minulého roka.“
Aj v Košiciach sa aplikoval overený koncept mixu nájomcov a značiek produktov, čo mu prináša žiaducu ekonomickú rentabilitu. Spokojnosť developera potvrdzuje aj Roman Karabelli: „Sme v čiernych číslach, pretože Aupark v Košiciach denne navštívi vyše 23 tisíc ľudí.“
Aj košický Aupark pochádza z architektonickej kancelárie Jančina Architekti, ktorá mu oproti predchádzajúcim „auparkom“ dodala niekoľko nových momentov. „Tento Aupark si to zaslúži svojou polohou, a, samozrejme, aj preto, že sme sa poučili na jeho predchádzajúcich verziách,“ hovorí šéf kancelárie Ing. arch. Juraj Jančina.
Urbanizmus
Z hľadiska urbanistického a priestorového členenia sa komplex budovy NZC Aupark Košice zapája do širších kompozícií lokality a plnohodnotne dotvára a funkčne dopĺňa územie centra mesta. V mestskej panoráme v nadväznosti na okolitú zástavbu vypĺňa otvorený priestor na lokalite Stred ohraničený ulicami Senný trh, Južná trieda, Štúrova, Palackého a Protifašistických bojovníkov.
Pri hľadaní správneho riešenia umiestnenia objektu do danej lokality museli tvorcovia urobiť aj zmenu územného plánu, ktorá sa zrealizovala v spolupráci s oddelením hlavného architekta mesta Košíc. Výsledok spolupráce je viditeľný aj na konkrétnom diele, pri ktorom sa uplatnili najdôležitejšie územno-plánovacie kritériá. Súčasťou projektu bolo aj riešenie dopravnej situácie, ktoré si vyžiadalo náklady vo výške približne 11 miliónov eur.
„Mierku Auparku sme sa snažili odvíjať od neďalekej historickej zástavby,“ hovorí Juraj Jančina. „Objekt by mal nadväzovať na mestskú štruktúru, nie je introvertný, ale približuje sa k čítaniu okolia ako takého.“
| Nákupno-zábavné centrum Aupark Košice Miesto: Námestie osloboditeľov, Staré Mesto, Košice Investor: Aupark Košice, spol. s r. o. Generálny projektant: Ing. arch. Juraj Jančina Autori: Jančina Architekti Ing. arch. Juraj Jančina Ing. arch. Igor Mazúch Začiatok výstavby: 1/2010 Ukončenie výstavby: 11/2011 Celkové investície: 95 mil. eur Celková rozloha územia: 20 164 m2 Celková zastavaná plocha: 19 970 m2 Celkový obstavaný priestor: 508 229 m3 Celková úžitková plocha (Mall + Tower): 102 937 m2 Počet parkovacích miest: 1 075 Generálny dodávateľ:HB Reavis Management spol. s r. o. Železobetón:SkyBau, s. r. o. Vonkajšie komunikácie: Skanska, a. s. Elektro – silnoprúd: ER&P elektro, s. r.o. Elektro – slaboprúd: Nectel spol. s r. o. Zakladanie stavby: Keller špeciálne zakladanie, spol. s r. o. Zemné práce: Eiffage construction Slovenská republika, s. r. o. Fasáda: H&O construction, s. r. o. Strecha: IZOLA Košice, s. r. o. Dlažby: Eurokameň Spišské Podhradie, s. r. o. Výťahy a eskalátory: Schindler výťahy a eskalátory a. s. Sadrokartóny (+omietky, zateplenie): Scarpi s. r. o. Kúrenie, voda, odpad: Domotherm, s r. o. Interiérové sklenené fasády: Glasmax s. r. o. a OGA, spol. s r. o. Preložky plynovodov: Konštrukta Košice, spol. s r. o. |
–>–>

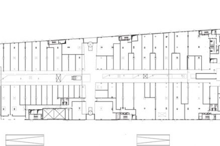
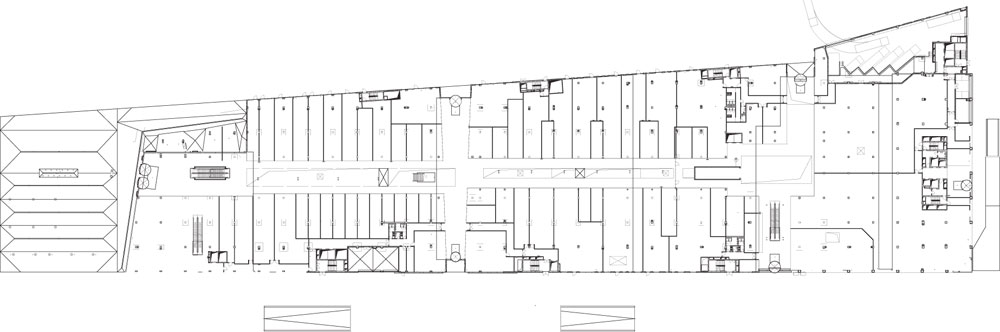
Aupark je kompozične rozdelený na dva stavebné objekty a tri kompaktné prevádzkové celky. Z hľadiska priestorovej optiky a prevádzky ho tvoria tri samostatné hmoty, ktoré sú od seba oddelené pasážou s galériou zastrešenou svetlíkom.
MALL – obchodná pasáž – štvorpodlažná budova, ktorá sa skladá z prvého bloku situovaného do západnej časti, smerom k starému mestu. Druhý blok je orientovaný na južnú stranu a je členitý, do výšky štvorpodlažný. Tretí blok tvorí trojpodlažný jednoduchý kubus, obložený obkladom vo vysokom štandarde.
TOWER – administratívna budova – výškový kubus členitej fasády, ktorý je do hmoty podnože zasadený z východnej strany. Objekt je týmto spôsobom odľahčený a vo svojej mierke prispôsobený bezprostrednej protiľahlej okolitej zástavbe.
Krídlo v podobe obrovskej markízy zakrývajúce ulicu sa stalo zapamätateľným leitmotívom konceptu vnútornej ulice. Priečne osi oddeľujú architektonické výrazy a zároveň odrážajú blokovú zástavbu, ktorej harmonizácia bola potrebná z hľadiska územno-plánovacieho hľadiska.
Každý blok je architektonicky zvýraznený svojou farebnosťou, transparentnosťou a členitosťou fasády. Zámerom autora bolo urobiť prepojenie interiéru s exteriérom v jednoduchých tvaroch a kubusoch. Plastická forma objektu odľahčuje hmotu, presvetľuje priestory a odhlučňuje prevádzky vo vzťahu k okolitej zástavbe. Súčasne napĺňa regulatívy dané pre mestský priestor.

Hlavný vstup je orientovaný do otvoreného priestoru lokality Stred, na ktorej je pešia rozptylová plocha – bulvár. Cez vstupné turnikety sa zákazník dostáva do obchodnej pasáže, ktorá horizontálne spája východnú stranu výškovej administratívy so západnou stranou objektu. Obchodná pasáž je otvorená do vnútorného priestoru cez galériu zastrešenú svetlíkom.
Dispozícia objektu je zadefinovaná hlavnými komunikačnými trasami a jeho funkčným a prevádzkovým využitím. Hlavnou funkciou obchodnej pasáže je zastrešenie nákupno-zábavných aktivít s prepojením na obchodné priestory určené na prenájom s doplnkovými funkciami gastronómie, bowlingu, fitnes, kasína, medicínskeho centra, ako aj na prevádzkové priestory určené pre administratívu.
Administratíve je vyčlenená výšková budova, kde sú priestory sústredené po obvode pri zasklenej fasáde. Technické priestory sú sústredené v jadre a technologické zázemie v podzemných podlažiach, čiastočne aj na streche. Dispozičné riešenie hlavných stavebných objektov je navrhnuté tak, aby ich bolo možné prevádzkovať samostatným technologickým režimom.
Materiály a konštrukcie – „Využili sme tie, čo sme považovali za najsprávnejšie a najefektívnejšie pre tento typ stavby. Z hľadiska materiálových riešení sa v Košiciach aplikovali tie, ktoré sme si overili na Auparku v Piešťanoch,“ hovorí architekt Juraj Jančina. Celkovo sa zachoval vnútorný štandard dizajnu a aktualizovali sa len niektoré detaily (napr. farebnosť), ktoré prinášajú oživenie.
Archeológia
Aupark v Košiciach je prvým, ktorý obsahuje historickú stopu. Takmer hneď po začiatku výstavby sa našli pozostatky historickej citadely – protitureckého opevnenia v tvare kruhu. V spolupráci s pamiatkarmi investor zdokumentoval a zachoval fragmenty v podobe in situ (teda na tom mieste, kde sa našli – v priestoroch garáží) a časť prezentuje na námestí pred hlavným vstupom s kovovo-skleneným prístreškom. Všetky sú verejne prístupné a vystavené.
Príbeh sa neskončil
Koncept vnútromestského nákupného centra aj v Košiciach vrátil funkciu obchodu a služieb tam, kde z urbanistického hľadiska historicky patrí – do centra mesta. Developer i architekt si uvedomujú, že slovenský trh má svoje limity, a aj preto nie je typológia Auparku v našich podmienkach nekonečná. „Aupark môže mať však svoje modifikácie v menších mestách,“ hovorí Juraj Jančina. „Ďalším možným pokračovaním je aj jeho expanzia do zahraničia, pričom projekty existujú aj pre okolité krajiny. Po jedenástich rokoch sa však trochu cítim, akoby som sa nachádzal na začiatku. Skúsenosti otvárajú nové možnosti, pričom každý objekt je korálikom na niti, ktorá ich spája.“
Ľudo Petránsky
Foto: Dano Veselský
Článok bol uverejnený v časopise ASB.
















