Atraktívna mozaika polyfunkčného domu
Bytové jednotky rozohraté do pestrofarebnej variability, občianska vybavenosť, kde nechýba nič, čo civilizovaný človek zo začiatku tretieho tisícročia potrebuje, a nadštandardný penzión pre dôchodcov – to je v krátkosti mozaika polyfunkčného súboru na Hrachovej ulici v Bratislave. Nechýbajú mu netradičné architektonické riešenia, estetické fajnovosti, pri ktorých však vždy cítiť dôraz na funkčné požiadavky. Predpokladaný výsledok? Oživenie a zatraktívnenie danej lokality.
Kompaktný súbor
Pozdĺž navrhnutej obslužnej komunikácie s priľahlými parkoviskami je prístupný po celej dĺžke zvýšený parter s vybavenosťou (obchody, služby) a sú tu vstupy do jednotlivých obytných častí. Táto časť je opticky oddelená od obytných častí hliníkovou fasádou so zasklením v tmavosivej farbe, vďaka čomu vyniká kontrast v horizontálnej rovine a jasná čitateľnosť rozdielnych funkcií. Sklenená fasáda parteru oživí Hrachovú ulicu a obslužnú komunikáciu, čím vtiahne život do celej zástavby – niektoré časti vybavenosti sú orientované aj do vnútrobloku.
Ten je koncipovaný ako trojica vzájomne prepojených dvorov s nástupmi do komunikačných jadier, nad ktorými sú obytné časti. Plocha vnútrobloku je navrhnutá ako kombinácia spevnených plôch – chodníkov a trávnatých plôch s nízkou zeleňou. Tá je ohraničená systémom vyvýšených betónových obrúb s kamenným obkladom a s drevenými sedadlami (doplnenými osvetľovacími telesami a odpadkovými nádobami).

Nad vnútornými dvormi sú navrhnuté obytné časti ako kombinácia schodiskových a pavlačových obytných domov. Pri tomto rozdelení bolo možné situovať väčšinu obytných miestností jednotlivých bytov do vnútornej časti blokov, a tak vytvoriť optimálne podmienky na bývanie. Obytné časti predstavujú plné hmoty s perforáciami – francúzskymi oknami, balkónmi a lodžiami. Balkóny sú v niektorých častiach čiastočne zapustené do hmoty budovy, čím fasáda pôsobí plasticky a spolu s balkónmi na konzolách vzniká príťažlivá tektonika jednotlivých fasád. Zábradlia sú vo všetkých častiach oceľové a v kombinácii s bielou fasádou, s tmavými časťami okenných rámov a vzájomne prepojených častí obkladov tvoria harmonický celok. Hmoty domov sú v strešnej rovine ukončené ustúpenými podlažiami, čím tu vznikli pri bytoch väčšie plochy terás. Tieto časti sú opäť navrhnuté ako kombinácia zasklenej fasády a tmavého obkladu. Terasy v týchto podlažiach sú prekryté systémom hliníkových lamiel – slnolamov v sivej farbe. Niektoré byty majú terasy a lodžie orientované na západnú stranu s výhľadom na mesto a tvoria terasovú západnú fasádu jednotlivých objektov.
Sklenená fasáda
Pod šesťpodlažnými časťami je umiestnená jednopodlažná hmota – byty s krytým vnútorným vstupom z úrovne vnútrobloku a s vlastnou záhradkou v zadnej časti. Celý pôdorys objektov spočíva na jednopodlažnom suteréne s podzemným parkoviskom a pomocnými priestormi. Vjazd do suterénu je situovaný medzi objektmi B a C.
Hmotovo samostatnou časťou je penzión pre dôchodcov, ktorý celú kompozíciu ukončuje. Ten sa štruktúrou fasády mierne líši od obytnej časti, čím je priznaná jeho odlišná funkcia. Parter hotela je obložený obkladom v kombinácii so sklenenou fasádou. Vstup z obslužnej komunikácie je prekrytý vysunutou pergolou, ktorá vytvára nástup do penziónu. Ten má samostatné parkovisko a zásobovaciu komunikáciu.
Už sme spomenuli, že polyfunkčný súbor na Hrachovej ulici je oživením lokality. Treba dodať, že je aj kvalitným príspevkom na tému bytové domy.
Názov: Polyfunkčný súbor Hrachová
Miesto: Bratislava-Ružinov, Hrachová ulica
Architekti:
SPDe s. r. o. – Ing. arch. Štefan Lichvár, Ing. arch. Mária Lichvárová, Ing. arch. Michal Petráš, Ing. arch. Alexander Schleicher, PhD.

Začatie stavby: 04/2006
Predpokladané ukončenie: 10/2007
Odhadované náklady: 620 miliónov Sk
Podlažná plocha: 26 086,20 m2
Zastavaná plocha: 5 009,16 m2
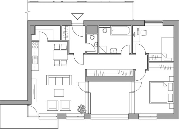
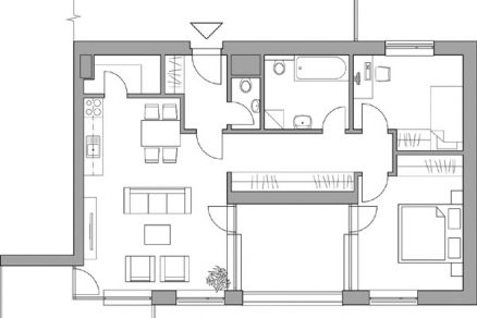
Plochy bytov (vybraté varianty):
– variant č. 06 – 37,94 m2
– variant č. 12 – 83,87 m2
– variant č. 38 – 108,02 m2
– variant č. 47 – 69,88 m2
– variant č. 48 – 95,88 m2
– variant č. 49 – 80,22 m2
(pet)
Vizualizácie: SPDe s. r. o.







