Južné mesto začína s výstavbou bytov
Galéria(4)

Južné mesto začína s výstavbou bytov

Najväčší slovenský developerský projekt Južné mesto, ktorý južne od Petržalky vybuduje slovenská spoločnosť Cresco Group v spolupráci s írskym developerom Quinlain Private Golub, vstupuje do úvodnej fázy výstavby. Zámerom investorov je vniesť do Bratislavy po mnohých rokoch typickú urbanistickú štruktúru s jej charakteristickými zložkami – parterom, ulicou, námestím či parkom.

Bývanie v susedstve lesa
Južné mesto sa bude rozkladať na ploche asi 100 hektárov a dokáže ponúknuť bývanie približne 15 000 obyvateľom. Jadro novej mestskej časti bude predstavovať momentálne konečná stanica systému mestskej koľajovej dopravy, a to v nadväznosti na ostatné zariadenia občianskej vybavenosti.

Dôležitou zložkou bude oddychová časť s rozlohou asi 3 000 m2, ktorá poskytne vodné plochy, množstvo zelene či multifunkčné ihriská. Na komunikačné srdce sa prostredníctvom centrálneho lineárneho parku napoja samostatné zóny A, B a C, pričom časť C, ktorú má na starosti slovenská strana, sa má nachádzať v najjužnejšej časti rozvojového územia v susedstve lužného lesa. Realizačný proces sa otvorí etapou C1, ktorá bude mať primárne obytný charakter a v prvej fáze ponúkne spolu takmer 200 bytov. Charakteristické pre ňu je aj dobré napojenie na blízku rekreačnú oblasť derivačného kanála, hrádze a centra vodných športov.

Práve preto túto zónu predurčili na obytnú funkciu s malopodlažnou výstavbou. Predstavuje relatívne samostatný satelit prímestského typu bývania s nízkou hustotou zástavby. Prvú fázu zóny C1 budú tvoriť štyri vilové a jeden blokový dom, ktorý by mal ponúknuť približne 800 m2 občianskej vybavenosti v parteri. Ponuka bytov sa pohybuje od garsónok s plochou 20 m2 až po veľkoplošné jednotky do 150 m2.

„Vzhľadom na súčasný dopyt predstavujú väčšiu časť ponuky menšie byty. Dispozičné riešenia však umožňujú reagovať na zmeny trhu, vďaka čomu možno bytové jednotky spájať, prípadne rozdeľovať,“ hovorí Ján Krnáč, obchodný riaditeľ a zástupca predsedu spoločnosti Cresco Group.

Nová typológia bytových domov
Celá štruktúra fázy C1 sa prirodzeným spôsobom orientuje na juh smerom k lesu. „Tichú lokalitu negatívne ovplyvňuje iba priľahlá cesta 1/2 smerujúca do Rusoviec, preto sme zónu od hlavnej komunikácie oddelili doskovým domom. Na tento objekt voľne nadväzuje voľná štruktúra mestských víl.

Vytvorili sme novú typológiu bytových domov, ktoré charakterizuje plató samostatných bytových jednotiek v parteri s veľkými predzáhradkami a bodovými bytmi na ďalších podlažiach. Tie budú z dôvodu zachovania intimity prízemných záhradiek ustupovať na sever,“ približuje projektové riešenie architekt Juraj Benetin z ateliéru Compass.

Architekt spoločnosti Cresco Group Alexander Hollý dopĺňa, že stavebnou kombináciou radového a vilového domu sa tvorcovia vyhli problematicky využiteľnému prízemiu, ktoré je charakteristické pre bežné bytové domy. Zároveň sa otvorili šance na morfologické členenie terénu a väčšie uplatnenie zelene. Medzi predzáhradkami jednotlivých objektov sa vytvorila poloverejná zóna v podobe menšieho lineárneho parku. Toto riešenie, ktorým sa celá skupina objektov uzatvára zo severnej strany a otvára smerom na juh, by malo v budúcnosti pomôcť eliminovať rušivé elementy pokračujúcej stavebnej aktivity ďalších fáz Južného mesta.

„Chceli sme sa vyhnúť problémom pri etapizácii výstavby. Prví obyvatelia novej mestskej časti by nemali mať pocit, že bývajú na stavenisku. Aj preto sme sa rozhodli pre výstavbu, ktorá bude postupovať od lesa smerom na sever,“ vysvetľuje Alexander Hollý.

Architektonické riešenie objektov etapy C1 ponúkne jednotný vzdušný moderný výraz, ktorému budú dominovať paravánové steny na predsadených balkónoch. Prostredníctvom ľahkej dvoj­vrstvovej fasády a tieniacich prvkov vznikne na rozhraní exteriéru a interiéru bytových domov plynulý medzistupeň intímnej a verejnej zóny.

Podľa slov Juraja Benetina sa vzhľadom na prostredie uplatnia v jednotlivých objektoch v čo najväčšej miere prírodné materiály a materiály v ich prirodzenej podobe, napríklad pohľadový betón, tehla alebo drevo. Na výstavbu ­prvej časti etapy C1 plynulo nadviažu ďalšie zóny. „Južné mesto chce byť jednoducho humánnejšou a viac do prírody zasadenou časťou Petržalky,“ dodáva Alexander Hollý.

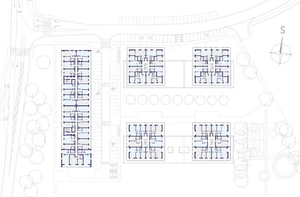
Situácia

Južné mesto, zóna C1, I. etapa
Miesto: Petržalka – Juh, Bratislava
Generálny projektant: Compass, s. r. o.
Urbanistické riešenie: Compass, s. r. o.
Autori: Ing. arch. J. Benetin, Ing. P. Cibulka, Ing. arch. M. Čatloš, Ing. arch. J. Česelský, Ing. arch. J. Droždiak, Ing. arch. M. Gašparová, Ing. arch. M. Grébert
Hlavný inžinier projektu: Ing. M. Čatloš
Investor: Cresco Popper Investment, a. s.
Počet objektov: sekciový dom s dvomi schodiskami, 4 vilové objekty a 6 rodinných domov
Počet bytov: 186 bytov a 6 rodinných domov
Počet nadzemných podlaží: 5
Počet podzemných podlaží: 1
Počet parkovacích miest na povrchu: 90
Počet podzemných parkovacích miest: 150
Predpokladaný počet obyvateľov:    345
Plocha pozemkov zóny C1: 37 287 m2
Celková zastavaná plocha stavebných objektov I. etapy zóny C1: 4 411 m2
Celková úžitková plocha stavebných objektov I. etapy zóny C1: 22 278 m2
Celkový obstavaný priestor stavebných objektov I. etapy zóny C1: 69 894 m3
Chodníky a spevnené plochy: 11 200 m2
Plocha zelene: 9 028 m2

Anna Salvová
Vizualizácie: Compass

Článok bol uverejnený v časopise ASB.