Zelená stena a bicykel namiesto obrazu. Aj tak sa môže skončiť rekonštrukcia bytu
V architektonickom štúdiu ti architekti o sebe hovoria, že sú voľným združením architektov, inžinierov a umelcov. Jadro štúdia tvoria Ing. arch. Martin Machů a Ing. arch. Anna Holešovská. Vo svojej práci prezentujú vlastný názor na architektúru a dizajn, i preto sú ich diela originálnymi a zaujímavými. Jedným z nich je nedávna premena staršieho bytu zo 60. rokov minulého storočia na moderný byt, ktorého špecialitou je zelená stena.
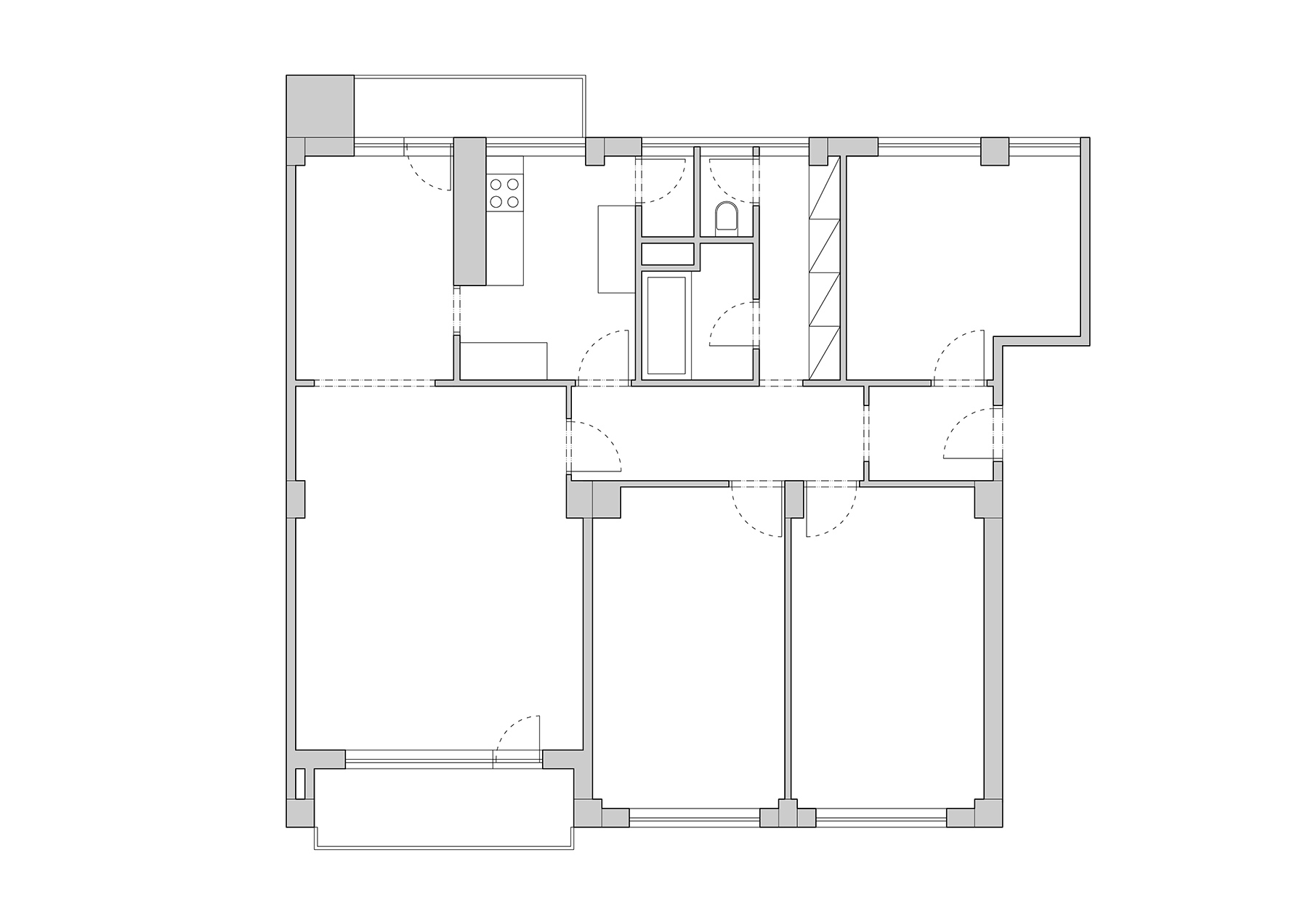
Bez búrania to nešlo
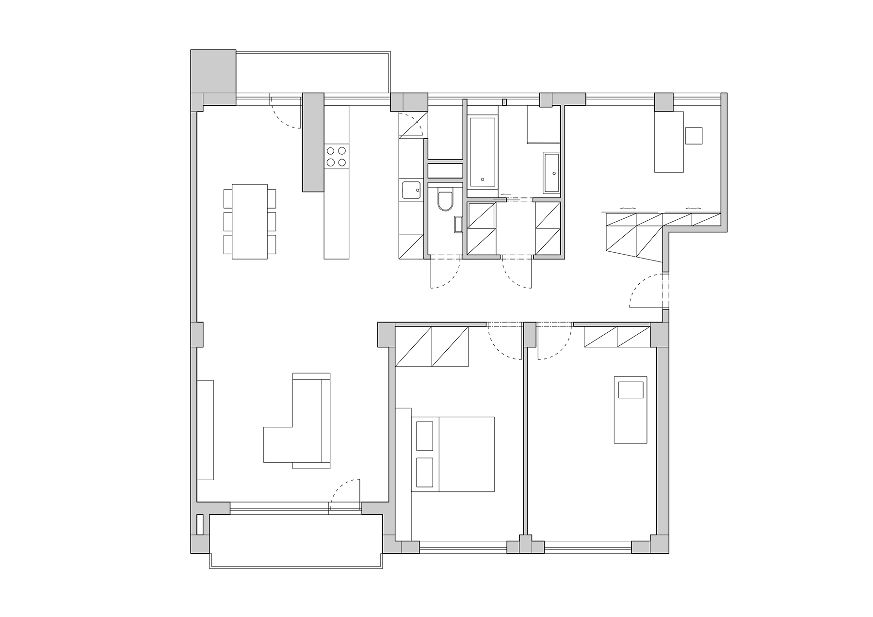
Byt s pôvodnou dispozíciou 5 + 1 premenili na 4 + kk. Hlavným spoločenským priestorom je spojená kuchyňa s jedálňou a obývacou izbou. Architekti zmenili dispozíciu jadra, ktoré je umiestnené v strede bytu. Zbúraním priečky rozšírili zádverie, ktoré dnes od pracovne oddeľuje iba nábytková stena. Bez zmeny zostali dispozície spálne a detskej izby.
![]() |
![]() |
| pred | po |
Nové so starým, banálne s nečakaným
Samotní autori projektu tvrdia, že takýto vnútorný priestor by pri pohľade na bytový dom zo 60. rokov čakal asi málokto. „Za zateplenou fasádou s plastovými oknami však nie je taký úplne bežný byt. Jeho prednosťou je veľkorysá podlahová plocha a stropné vykurovanie. Vytvorili sme priehľady celým bytom v oboch jeho osiach. Už od vstupných dverí uvidíte celkovú dĺžku bytu. Obývacia izba s jedálňou a kuchyňou sa rozprestierajú cez celú šírku bytu – respektíve poschodia – a je odtiaľ prístup na oba balkóny. Kombinovali sme nové so starým, banálne s nečakaným,“ vysvetľujú architekti.
Zelená stena a bicykel namiesto obrazu
Najzaujímavejším riešením, ktoré nás špeciálne upútalo, je vertikálna záhradka, respektíve zelená stena, ktorá dodáva bytu špeciálnu atmosféru. „Na zavesenie rastlín sme použili kari sieť. Namiesto obrazu alebo autorského prvku sme na stenu zavesili bicykel (autentický dopravný prostriedok, ktorý sme používali na kontrolné dni) ako symbolickú parafu za dokončeným projektom,“ opisuje nezvyčajný nápad Martin Machů.
V pozavesovaných kvetináčikoch pri jedálenskom stole môžu domáci pestovať nielen bylinky, ale aj rôzne iné druhy izbových kvetín a vytvoriť si tak príjemnú atmosféru. Pôsobivý je i nabielo natretý tehlový múr, čiastočne deliaci kuchynskú časť od jedálne. Cez tento múr vedú komíny.
Kolíky v stene a obrazec z káblov
Ďalšou fascinujúcou funkčnou dekoráciou sú kolíky v stene v záhlaví manželskej postele. Môžu slúžiť ako police, ale najmä sú na nich do tvaru obrazca uchytené nočné svetlá s dlhým čiernym káblom. Ak tento obrazec omrzí, dá sa jednoducho zmeniť na iný. Bielo béžová kombinácia pôsobí osviežujúco a zosvetľujúco, na pár miestach je použitá výraznejšia farba.
Prirodzene svojskí
Obaja autori projektu si zakladajú na komplexnom prístupe od návrhu až po realizáciu a neraz presvedčia klienta o tom, čo vopred odmietal. Sami o sebe hovoria: „Sme prirodzene svojskí, dostatočne skúsení, príjemne neformálni a nebojíme sa pri práci ušpiniť.” Pochybujete o tom?
Byt so zelenou stenou v kocke
Architektonické štúdio: ti architekti
Autor: Ing. arch. Martin Machů, Ing. arch. Anna Holešovská
Lokalita: Praha-Vršovice
Úžitková plocha: 112 m2+ 8 m2 balkóny
Realizácia: 2017
Sabína Zavarská
Foto: ti architekti, Zdeněk Buchlák


















