Vyzývavý červený dom ukrýva pohodlný interiér
Neďaleko bavorského Mníchova, v nemeckej obci Unterfoehring, vyrástol netradičný červený dom. Extravagantná stavba pochádza z dielne architektonického štúdia Architekturbureau Jakob Bader a nesie názov House V.
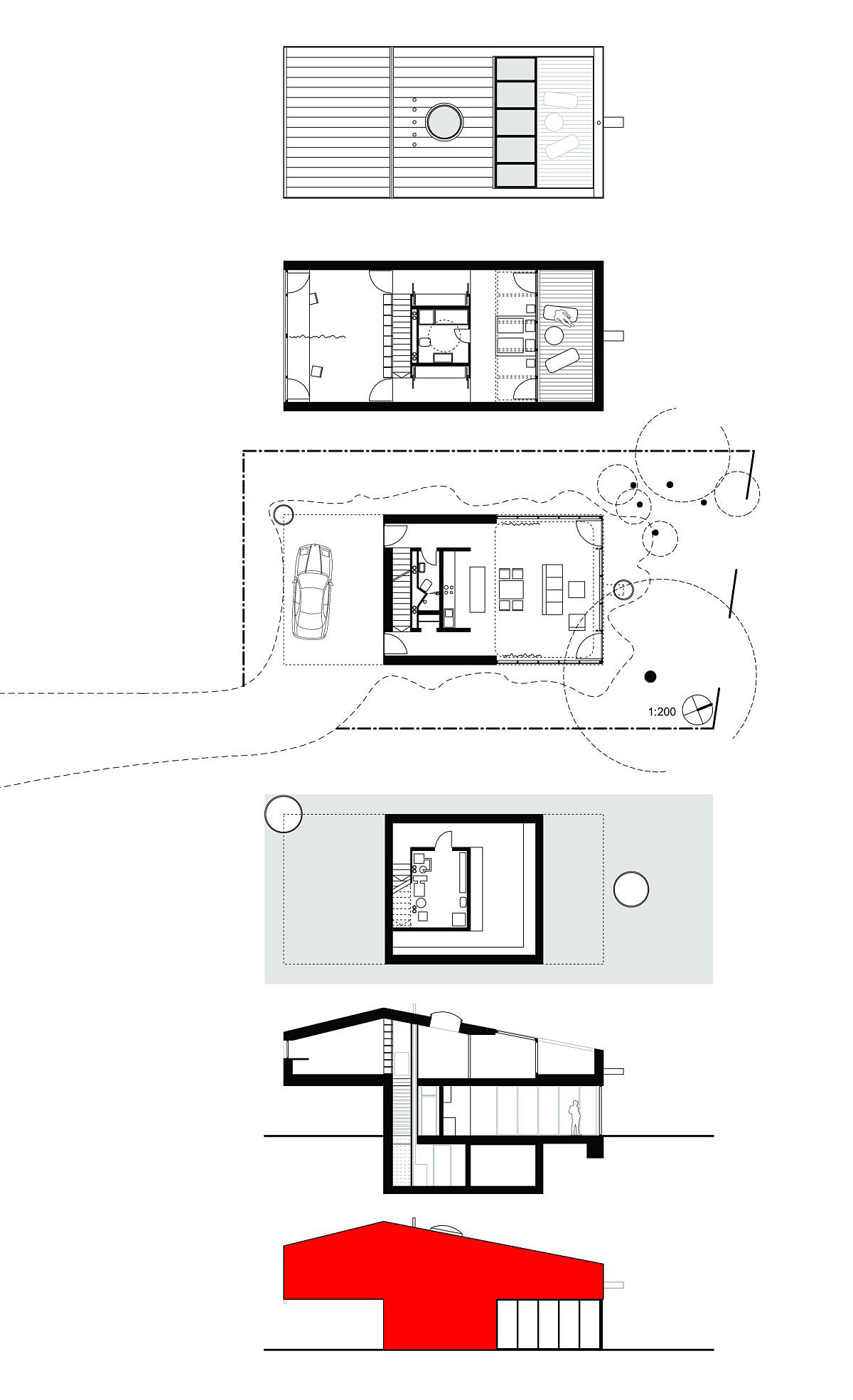
Podľa autorov je to „veľký dom postavený na malom pozemku a pri ešte menšom rozpočte“. Plášť budovy je výrazne viditeľný už z diaľky – tvorí ho totiž súvislá vrstva krvavočervenej farby, ktorá je prerušená iba presklenými časťami s čiernym rámom. K domu vedie štrková cestička, pričom štrková vrstva tvorí aj chodníček okolo domu a zároveň podklad pre parkovacie miesto, ktoré je nadstrešené samotnou stavbou.
Parkovacie miesto môže zároveň šikovne slúžiť v letných mesiacoch ako nadkrytá prízemná terasa. Výbežok domu, ktorý toto miesto chráni, ponúka ďalšiu priestrannú, tentokrát nadzemnú terasu, ktorá je priamo prepojená s loftovým priestorom. Stena, ktorá oddeľuje a zároveň spája terasu s loftom, je tvorená sklenými panelmi v čiernych kovových rámoch. Aj istá časť strechy v tomto priestore je zasklená. Vďaka tomu je možné pozorovať hviezdnaté nebo či uspávajúci dážď priamo z postele, ktorá sa nachádza práve v tejto časti domu.
Keďže nadzemná časť slúži ako intímno-pracovná zóna, okrem priestrannej pohodlnej spálne tu nájdeme ešte kúpeľňu s toaletou. Kúpeľňa je zariadená minimalisticky, čisto a účelne. Prevláda v nej biela farba, ktorá je podporená priamym denným svetlom zo strešného svetlíka v kruhovom tvare. Spálňa je takisto zariadená prevažne v bielych a bledosivých odtieňoch s kontrastnými červenými akcentmi – napríklad v podobe dizajnových stoličiek.
Z priestrannej terasy, na ktorej je možné vychutnávať obed, večeru či rannú alebo popoludňajšiu kávu, vidí majiteľ priamo do korún stromov. Na opačnom konci nadzemného podlažia sa nachádza veľká študovňa (pracovňa), z ktorej je prostredníctvom veľkých okien výhľad na južnú stranu pozemku. Do nadzemného podlažia sa dá dostať buď cez hlavný vchod, alebo cez osobitný vchod, ktorý je skratkou vedúcou priamo hore.
Dom s dĺžkou 16 metrov sa rozpína v orientácii sever – juh. Pod spálňovou časťou s terasou a pracovňou nájdeme na prízemí spoločenský priestor, ktorý tvorí obývacia izba, jedáleň a kuchyňa. Okrem toho sa tu nachádza schodisko, kúpeľňa a vstup do pivnice. Priestor je v rámci obývacej časti z troch strán zasklený s výhľadom na stromami zaplnenú severnú časť pozemku (rovnaký výhľad ako z terasy). V Nemecku veľmi netradičná orientácia hlavných výhľadov z domu na sever bola populárna medzi anglickými aristokratmi 19. storočia.
Hlavným dôvodom pre takto orientované stavby bola možnosť pozorovať severné časti pozemkov príjemne zaliate južným svetlom. Obrovskou výhodou tohto konkrétneho pozemku je fakt, že jeho výhľad je smerovaný do oblasti, v ktorej ďalšia výstavba je zakázaná štátom z dôvodu ochrany územia. Narušenie spektakulárnych výhľadov teda nehrozí ani v blízkej budúcnosti.
Dom je vybavený geotermálnou pumpou, kvalitnou izoláciou a vetracím systémom. Tieto vymoženosti zabezpečujú plynulý a lacný chod celej domácnosti. „Mozog domu“, čiže celé technologické zázemie je ukryté v pivnici, v ktorej okrem toho nájdeme aj množstvo úložného priestoru. Inteligentné ovládanie je sprostredkované pomocou dotykových obrazoviek a na diaľku prostredníctvom zariadení s internetovým pripojením.
House V predstavuje ležérne prevedenie moderného, inteligentného domu, ktorý jeho majiteľovi poskytuje príjemný a dostatočne veľký priestor pre každodenný život, relax aj prácu. Napriek extravagantnému zovňajšku nepôsobí rušivo a prináša nový uhol pohľadu na tradičnú bavorskú výstavbu.
Text: Anna Martausová
Foto: Kai Arndt
Zdroj: homedsgn.com




















