Rybacie bistro s príbehom
Už rok funguje v Košiciach bistro s pozoruhodným konceptom. V bývalej predajni rýb vznikla prevádzka, ktorá sa snaží prepojiť tradíciu miesta, rybársku históriu mesta, s fiktívnym príbehom o ostrove, na ktorom ležia Košice. Uvedomelý investor umožnil poňať celý priestor v zjednocujúcom duchu kvalitného dizajnu a umenia.
Metropola východu prekvapuje mnohými novými nápaditými gastronomickými prevádzkami. Jednou z nich je aj bistro Pán Ryba, nachádzajúce sa na Mlynskej ulici, hlavnej pešej tepne spájajúcej košickú hlavnú stanicu s Dómom svätej Alžbety a Hlavnou ulicou. Už na prvý pohľad zaujme odvážnou modrou fasádou v kontraste s bielym sedením. Bielo-modrá námornícka kombinácia sa však nesie celým konceptom.
„Nápad na otvorenie jedinej reštaurácie so zameraním na rybaciu kuchyňu v Košiciach vznikol v zime 2015. Investor, v tej dobe majiteľ firmy Ryba Košice, sa rozhodol prerobiť výdajňu rýchleho občerstvenia na Mlynskej ulici na nový moderný „fish grill“ a obchod s rybími produktmi“, uvádza Viktor Fehér, autor konceptu reštaurácie. Projekt bol jedinečný tým, že šlo o tzv. „Gesamtkunstwerk“, teda totálny dizajn od vizitky po priestor. Ako dopĺňa Martin Kossuth, architekt priestoru, „za tento fakt vďačíme otvorenosti investora, ktorý zveril všetko hmatateľné a viditeľné jednej kreatívnej dielni, pričom stále dohliadal najmä na ekonomický balans a účelovosť našich návrhov.“
Nočný exteriér reštaurácie.
Legenda o fiktívnom ostrove Košíc
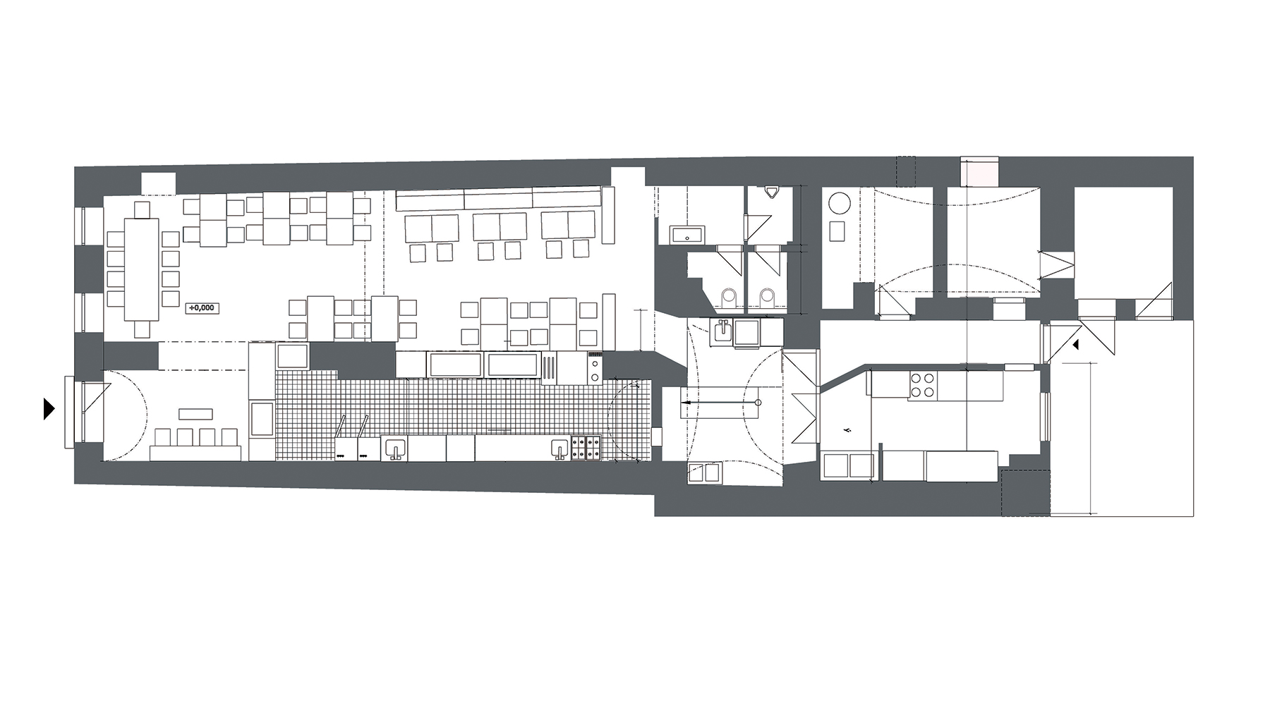
Nosný príbeh je založený na „cimermanovskej“ legende Pána Rybu, ktorý bol najlepším rybárom na ostrove Košice a stále prinášal najlepšie a najčerstvejšie ryby. Tento obraz je zároveň satirou na súčasné podmienky a ponuku kvalitných rýb v meste. To predurčilo silnú orientáciu na námornícku estetiku doplnenú osobnými predmetmi a trofejami pána Rybu. Súčasťou zadania bola aj požiadavka zachovať odkaz na desaťročia fungujúcu stravovňu, čo sa prejavilo v multifunkčnom členení priestoru. Je postavený na troch zónach, a to otvorenej kuchyni, sedení v reštauračnom štandarde a „takeaway“ obchodnom pulte s chladenými rybacími produktmi. Veľkou výzvou bolo zachovať čitateľnosť a prevádzkovú plynulosť priestoru pri komponovaní troch odlišných funkcií na takej malej ploche. „V tom nám pomohla hra kontrastov materiálov či teploty osvetlenia, ktoré slúžia ako podprahová navigácia priestorom“, uvádza architekt.
Mapa fiktívneho ostrova Košíc.
Prispôsobivý dizajn interiéru
V otvorenej kuchynskej časti dominuje raster bieleho keramického obkladu a antikorová technika. Čisté solídne materiály podporujú dojem kvalitného spracovávania čerstvých rýb a kontrastujú s mäkkosťou odbytovej časti plnej prírodných materiálov v zemitých farbách. Nosný prvok tejto časti je masívna drevená podlaha z dubového dreva, ktorá svojimi akustickými a senzorickými vlastnosťami vnáša do priestoru zážitok chôdze po palube starej rybárskej karavely. Nábytok v tmavých tónoch dreva s čiernymi kovovými detailmi komunikuje s masívnou vínotékou, ktorá ukončuje priestor a nenápadne zakrýva ďalšie funkcie prevádzky. Zákazníci si môžu vybrať zo štyroch druhov sedenia podľa štandardu a času, ktorý tu chcú stráviť. Tieto hybridné kombinácie ponúkajú rozmanitosť na veľmi malom priestore. Neraz sa stane, že sa tu koná rodinná oslava, rozhovor s klientom cez Skype a večeranie tresky „na stojáka“ zároveň.
Pohľad na sedenie s výdajňou jedla.
Prímorský nádych naprieč celou koncepciou
Nemalú účasť na celom dojme má vizuálna reprezentácia témy nástennými maľbami či detailným spracovaním menu, informačných tabúľ a celkovej vizuálnej identity, ktorá sa objavuje aj v online priestore. Grafický dizajnér Roman Juhás ešte pripomína: „Navrhli sme aj vzhľad oblečenia kuchárov a čašníkov s detailom námorníckeho lana, z ktorého sme vytvorili aj vešiaky na kabáty. Sme príjemne prekvapení, ako si celý vizuálny systém osvojil aj investor a manažéri reštaurácie, keďže z času na čas pribudne nejaká polica či stojan, ktorý úplne zapadá do nami navrhovanej koncepcie.“
Pohľad na zadnú časť prevádzky s vínotékou a maľovaným nápisom.
Reštaurácia Pán Ryba
Miesto: Mlynská 13, Košice
Investor a developer: Taxane, s. r. o.
Autor návrhu: Ing. arch. Martin Kossuth – 436, s. r. o.
Autor dizajnu: Mgr. Roman Juhás – 436, s. r. o.
Autor malieb a projektový manažér: Mgr. Viktor Fehér
Výstavba: 09/2016 – 03/2017
Úžitková plocha: 150 m2
Generálny dodávateľ: Mon-Drev, s. r. o.
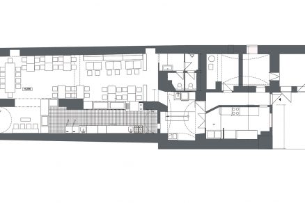
Pôdorys prevádzky Pán Ryba.
TEXT: Ivor Švihran
DOKUMENTÁCIA: Martin Kossuth
FOTO: Pavol Matia
Článok bol uverejnený v časopise ASB 5/2018.














