Rodinná rezidencia vyhrala cenu za nadčasový dizajn
Málokedy natrafíme na rekonštrukciu novostavby, ktorá má sotva 5 rokov. Stáva sa však, že rodina počas užívania nového domu zistí, že nespĺňa jej predstavy, a rozhodne sa pre redizajn. Tak to bolo aj v prípade domu v Buckinghamshire, ktorý obýva mladý pár s 2 deťmi.
Požiadavka bola jasná – moderný, no nie chladný a strohý interiér, ktorý bude zároveň maximálne funkčný. To, že sa dizajnérom zo štúdia LLI Design podarilo dotiahnuť dielo do dokonalosti, potvrdzuje aj ocenenie, ktoré im za návrh interiéru bolo udelené – Highly Commended Award za interiérový dizajn privátnej rezidencie, cena International Property Awards v spolupráci s Gaggenau & Rolls Royce Motor Cars.
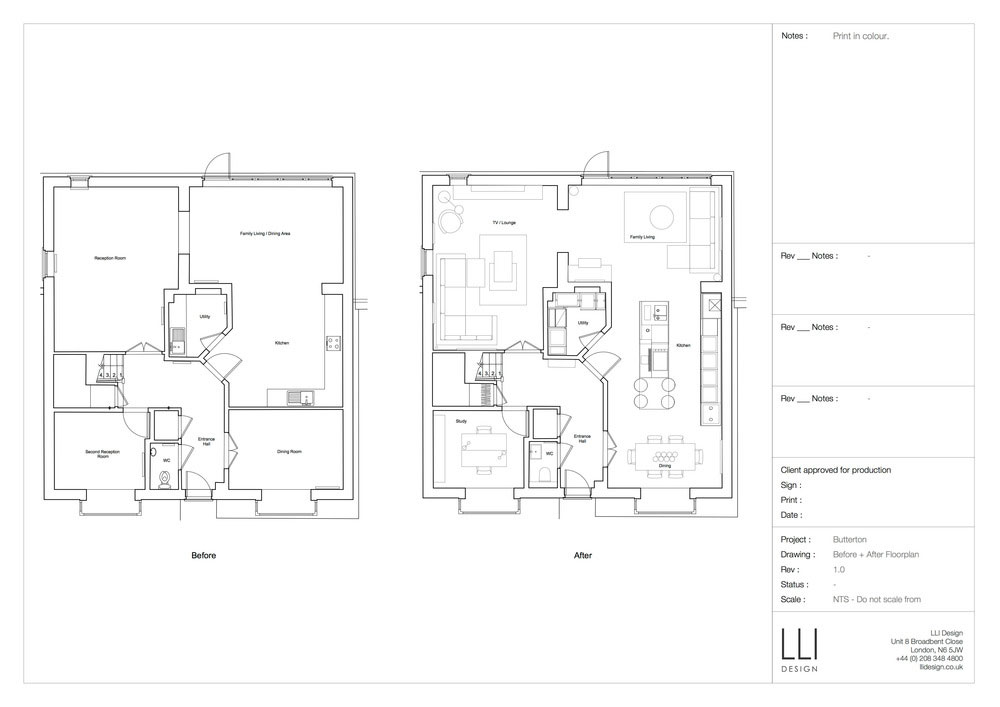
Pôvodný pôdorys bol tradičný britský, so spojenou kuchyňou a obývačkou v zadnej časti domu, s výhľadom do záhrady, s oddelenou jedálňou v prednej časti, ktorá však bola málo využívaná vzhľadom na jej ťažšiu dostupnosť z kuchyne. Jeden z dvoch salónikov, ktorý bol pomerne veľký, bol takisto využitý len zriedka a navyše, vzhľadom na osvetlenie a dekorovanie sa rodine nepáčil.
Zistilo sa, že takmer 40 % z celkového priestoru je využívaných iba sporadicky a tento poznatok bol jedným zo stavebných kameňov celého redizajnu. Dizajnéri z renomovaného štúdia LLI Design sa rozhodli, že rodinné potreby najviac uspokojí bývanie v otvorenejšom priestore.
Steny v priestore medzi kuchyňou a jedálňou boli odstránené na účely vytvorenia nového obývateľného celku, v ktorom sa spája kuchyňa, obývačka a jedáleň. Táto zmena priniesla celkom novú dynamiku priestoru a z kuchyne spravila srdce domácnosti. Vedľajším bonusom je príjemná záplava svetla v priestore. Jeden zo salónikov sa premenil na relaxačnú miestnosť s TV a druhý na študovňu.
Cieľom dizajnérov bolo spraviť z kuchyne priestor, ktorý vám pri vstupe vyrazí dych. Monumentálny kuchynský ostrov meria 3,7 m a je obložený dramatickým sivým brúseným sklom, podsvietený sústavou LED pásov. Kuchynský ostrov poskytuje komplexnú funkcionalitu – nájdeme tu dvojité umývadlo s drvičom odpadu, zmäkčovač vody, flexibilné zásuvky a mnoho iného. Kuchynská linka pôsobí grandiózne a prináša 2 rúry, mikrovlnku, parnú rúru či veľkú a štýlovú vinotéku. Za prednými panelmi sú elegantne ukryté bežné kuchynské spotrebiče ako toaster, mixér a podobne. Dizajnéri ich šikovne skryli do linky, aby vtedy, keď ich majitelia nepoužívajú, kuchyňa pôsobila celistvo a čisto.
Jestvujúca technická miestnosť bola prestavaná s cieľom vytvoriť práčovňu a zväčšiť úložné priestory.
V obývacích priestoroch prišla na rad výzva zladiť moderné s tradičným a vytvoriť tak útulný a živý rodinný príbytok. Podarilo sa to pomocou žiarivočervenej sedačky, neutrálneho sivého koberca so zladenými červenými líniami a doplnkov, ktoré vhodne oživujú limitovanú paletu odtieňov sivej a krémovej spolu s čiernou a červenou farbou. Čerešničkou na torte je dizajnová lampa Flos Spun.
V jedálni nachádzame opäť dizajnovú chuťovku Flos spun, ktorá nádherne rozžiarila decentný interiér, ktorý vytvorila kombinácia granitového jedálenského stola a čalúnených stoličiek neutrálnych sivých odtieňov.
Väčší salónik bol pretvorený do oddychovej TV izby aj preto, lebo mu chýbal dostatok denného svetla. Dôležitou úlohou bolo urobiť priestor teplým, prívetivým a útulným, aby sa doň vrátil život, ktorý tam v posledných rokoch tak chýbal. Paleta farieb sa pohybuje na úrovni oranžových tónov, tmavosivej, sivej v súznení s orechovým dekorom podlahy.
Veľká a pohodlná sedačka v tvare L spolu s dizajnovým oranžovým kreslom od Arneho Jacobsena vytvárajú pohodovú atmosféru, ktorú dotvára koberec a umelecké diela. Na objednávku zhotovený lakovaný závesný panel vytvára priestor na 65″ TV, ktorá však napriek veľkosti nedominuje priestoru.
Všetky pôvodné kazetové dvere boli odstránené a nové moderné dyhované dvere s dekorom orecha ich nahradili. Niektoré dvere sú upravené zasklenými panelmi na maximalizáciu úrovne osvetlenia. Orechová American Black Walnut podlaha je prítomná v relax TV izbe, pracovni a chodbe a veľkoplošné porcelánové dlaždice pokrývajú otvorené obývacie priestranstvá. Pribudlo podlahové kúrenie a inteligentný systém ovládania osvetlenia určený na reguláciu náladového osvetlenia, ktorý je možné časovať a ovládať externe aj z iPadov a iPhonov.
Nový interiér do bodky spĺňa predstavy mladej rodiny a ponúka im priestor na radostný a dynamický rodinný život. Zároveň je pýchou a ocenia ho nielen členovia rodiny, ale aj návštevy, pre ktoré bude vizuálnym zážitkom.
![]() |
![]() |
O dizajnéroch:
LLI Design ponúka nadštandardné služby v oblasti interiérového dizajnu pre náročných klientov. Sídlia v Highgate, Londýn, a kreatívny tím je vedený dizajnovou riaditeľkou Lindou Levene, ktorá pretavila svoje skúsenosti z módneho a textilného návrhárstva do nádherných návrhov, do ktorých premieta svoju lásku k forme, textúre a farbe. Návrhy štúdia LLI Design sú bezchybne prevedené do reality ich partnerskou spoločnosťou Pegasus Property, ktorej zamestnanci sa vždy uistia, že každý jeden prvok interiéru spĺňa prísne štandardy LLI Design štúdia.
Text: Anna Martausová
Foto: Alex Maguire Photography, LLI Design, International Property Awards
Zdroj: llidesign.co.uk,v2com-newswire.com

























