Rezidencia pre dizajnéra
Rezidencia s ateliérom pre interiérového architekta a jeho manželku je ako kus dreveného nábytku, ktorý je veľkou vášňou tohto páru.
Projekt Ateliér Heikkilä predstavuje drevenú rezidenciu a ateliér navrhnutý a realizovaný pre dizajnérsky pár situovaný v Centrálnom Fínsku. Parcela, na ktorej rezidencia leží ponúka nádherný výhľad na jazero Päijänne. Pozemok sa zvažuje od cesty smerom na jazero a v najnižšej časti pozemku je umiestnená záhrada.
Drevenú rezidenciu s ateliérom navrhli architekti pre interiérového architekta a jeho manželku umeleckú historičku.
Ateliér je prístupný zo zadnej časti domu s tmavým obkladom, kde návštevníkov víta veľký dub.
Jemne sfarbené priečelie domu je otočená na juh, smerom k slnku a jazeru Päijänne.
Ateliér architekti navrhli pre interiérového architekta, profesora Simona Keikkilä a jeho manželku, umeleckú historičku. Hlavným cieľom projektu bolo vybudovať priestor na uskladnenie ich prác, ktorý by bol zároveň vhodným miestom na život. Budova je ako kus nábytku – ide o funkcionalistickú a minimalistickú trojdimenzionálnu stavbu. Drevo ako stavebný materiál bola prirodzená voľba, pretože aj veľká časť dizajnérskej tvorby majiteľov je z dreva.
Tento priestor sa otvára smerom na jazero, zatiaľ čo zadná časť je uzavretejšia.
Majitelia si želali priestor maximálne otvoriť, aby získal postupne svoj účel a neskôr ho bolo možné podľa potreby príslušne rozdeliť.
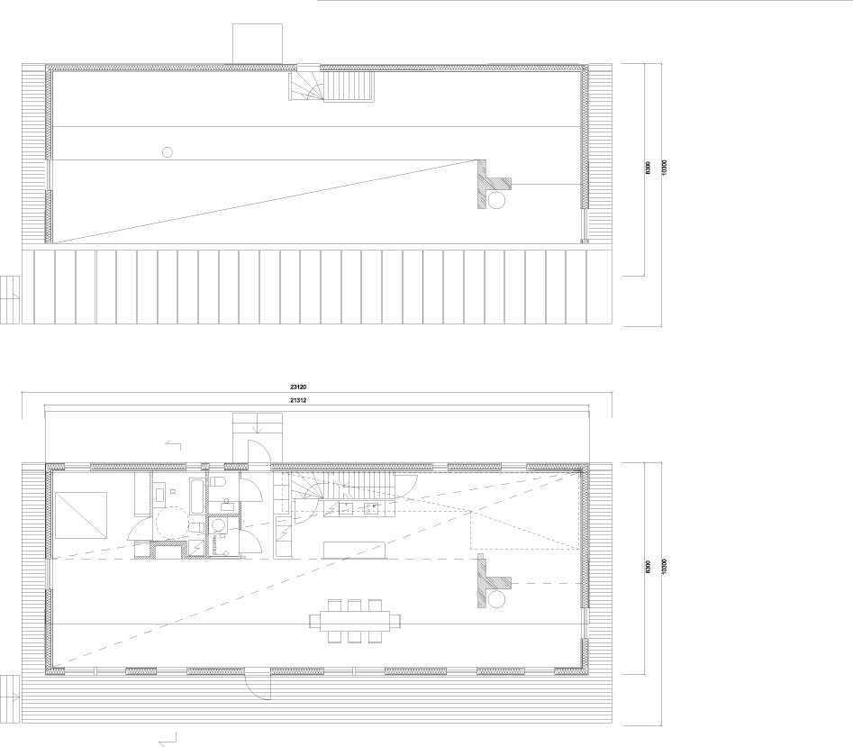
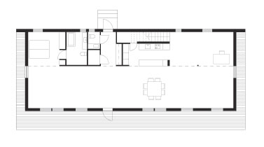
Denná a pracovná zóna sa nachádzajú na jednej úrovni.
Ateliér je prístupný zo zadnej časti domu s tmavým obkladom, kde návštevníkov víta veľký dub. Stavba kopíruje pôdorys bývalého domu pričom sa zachoval pôvodný účel a duša starého priestoru. Jemne sfarbené priečelie domu je otočená na juh, smerom k slnku a jazeru Päijänne. Tento priestor sa otvára smerom na jazero, zatiaľ čo zadná časť je uzavretejšia.
Časť orientovaná na jazero je úplne otvorená.
Podmienkou projektu bolo vytvoriť veľký skladovací priestor na prototypy nábytku.
Riešením bolo vybudovanie mezanínovej galérie nad dennou zónou.
Ďalšou podmienkou projektu bolo zároveň vytvoriť veľký skladovací priestor na prototypy nábytku, ktorý dizajnér nahromadil počas mnohých rokov. Na tento účel manželský pár potreboval polovične otvorený priestor vo vnútri domu. Riešením bolo vybudovanie mezanínovej galérie nad dennou zónou.
Pôdorys
Zjednodušené pôdorysné riešenie
Rez
Denná a pracovná zóna sa nachádzajú na jednej úrovni. Uzavreté izby sú situovaných vo vstupnej časti pod galériou, zatiaľ čo časť orientovaná na jazero je úplne otvorená. Majitelia si želali priestor maximálne otvoriť, aby získal postupne svoj účel a neskôr ho bolo možné podľa potreby príslušne rozdeliť. Dom je vykurovaný geotermálnou energiou a vzhľadom na tepelnoizolačné vlastnosti ide o nízkoenergetický dom.
Pohľady
Architektonický návrh: ateliér Architects Rudanko + Kankkunen
Interiériový dizajn: Simo Heikkilä
Konštrukčné riešenie: Kalervo Kakko
Miesto realizácie: Korpilahti, Fínsko
Realizácia: 2013
Pôdorysná plocha: 220 m2
TEXT: Architects Rudanko + Kankkunen, wad
FOTO: Maija Holma
























