Reštaurácia NOMA od 3XN: Architektonická kuchárka severskej kuchyne
Interiér kodanskej reštaurácie NOMA a jej kuchyne, alebo skôr potravinárskeho laboratória, spája tvorivý svet gastronómie a architektúry vo výraze severskej estetiky. Za jeho návrhom stojí dánska kancelária 3XN, respektíve jej inovačné oddelenie GXN, v ktorom sa dizajnéri zaoberajú experimentálnym dizajnom.
Nová inšpiráciaJedna z najlepšie hodnotených reštaurácií na svete prešla premenou. Predstavou investora aj architektov a dizajnérov bolo premeniť interiér na tvorivé laboratórium, ktoré by inšpirovalo šéfkuchára vo vylepšovaní a uchovávaní tradičnej severskej kuchyne. „Výsledkom premeny nie je len krásny priestor, ale aj inšpiratívne prostredie,“ potvrdzuje zakladateľ a kuchár reštaurácie NOMA René Redzepi.
Vedúci GXN, Kasper Guldager Jørgenson vidí projekt ako architektonickú kuchárku a vysvetľuje paralelný svet architektúry a kuchárskeho umenia: „Podobne ako sa šéfkuchári NOMA kreatívne a oddane angažujú na poli gastronómie, aj dizajnéri a architekti experimentujú s novými materiálmi a ingredienciami architektonického sveta.“
Téma mesiaca marec: Interiéry
Severský, surový a hravý
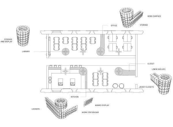
Tvorivé laboratórium a reštaurácia NOMA sa nachádza v bývalom sklade, ktorý bol zapísaný do národného registra chránených budov. To znamenalo, že architekti museli navrhnúť interiér bez použitia jediného klinca do steny či podlahy. Cieľom bolo navrhnúť štyri centrálne multifunkčné skladovacie jednotky, každú zloženú z vyše päťsto drevených kociek. Ich zakrivenie hravo rozdelilo priestor do menších častí, kde sa nachádza napríklad malá bylinková záhrada, priestory pre personál a kancelárie.
Celý interiér bol vytvorený z miestneho dreva, ponechaného v surovej podobe. Táto minimalistická a prírodná estetika je odrazom Škandinávie. Organické formy na nábytku dodávajú interiéru pocit ľahkosti. Ďalšie osvetlenie je zaistené špeciálne vyvinutými lampami, ktorých svetlo vrhá dramatické geometrické tiene do okolia.
–>–>
Trojrozmerné puzzle
Lab Noma bola pre GXN príležitosťou experimentovať s digitálnou návrhovou metódou. „Na projekt sme vyvinuli softvér, ktorý umožnil posielať kresby z počítača priamo na výrobu. Je to trochu podobné ako tlač textu, ale namiesto toho sme tlačili kusy nábytku,“ vysvetľuje Kasper Guldager Jørgenson. V praxi to znamenalo, že interiér sa dodával ako trojrozmerné puzzle z viac než päť tisíc kusov, ktoré sa zostavilo bez pomoci akýchkoľvek stolárov.
Kateřina Kotalová
Foto: 3XN



















