Rekonštrukciu bytu začali zmenou dispozície – oplatilo sa
Vlastniť nehnuteľnosť s nevhodnou dispozíciou je pre jej obyvateľov často veľmi obmedzujúce. Neproporčné miestnosti, nesprávne presvetlenie či zlá orientácia bytu vedia sťažiť vytvorenie domova, kam sa vždy radi vrátime, a pocitu harmónie. Takýmto prípadom bol aj trojizbový byt v centre hlavného mesta. Na pomerne malej obytnej ploche (70 m2) sa nachádzalo príliš veľa prekážok a nedostatkov. Štúdio Deep Design v spolupráci s ateliérom DM Interier však svojím návrhom dokázalo, že správnym zásahom je možné premeniť i škaredé káčatko na krásnu labuť.
Návrh interiéru vychádza z neutrálnej farebnosti, ktorá zároveň prináša harmóniu celému bytu. Pohľad do obývacej izby budí dojem útulnosti vďaka mäkkým materiálom použitým na sedačke a koberci. Tlmená piesková farba omietky pohlcuje ostré svetlo a povrch steny tak znásobuje tento príjemný dojem.
Pôdorys pôvodného stavu
Jedným z problémov pôvodnej dispozície bola samotná orientácia bytu. Oddychová časť (obývačka, spálňa) bola situovaná do rušnejšej ulice, naopak, priestory kuchyne a pracovne poskytovali výhľad do dvora pri obytnom dome.
Nevhodne bola riešená i vstupná hala, ktorá pre veľký počet dverí ani na pomerne veľkej ploche, neposkytovala takmer žiadny úložný priestor. Medzi ďalšie mínusy patrila malá stiesňujúca kúpeľňa.
Nevhodne navrhnutý interiér, ktorý nesprávne využíval plochu bytu, vytváral priestor na chaos.
Nový návrh rekonštrukcie nenecháva nič na náhodu. Medzi veľké zásahy patrí výmena miestností. Spálňa mala byť tichá, preto ju situovali do časti bytu orientovanej do dvora a kuchyňu presunuli k obývacej izbe.
Nová kuchyňa s jedálňou je plynule prepojená s obývacou izbou a tvoria spolu veľkorysú plochu. Na mieste pôvodnej kúpeľne bol navrhnutý príručný šatník so vstupom zo spálne.
Priestor na hygienu sa teraz nachádza na mieste pôvodnej pracovne. Vstupná hala je tiež upravená, šesť dverí sa minimalizovalo na tri, čím vznikol i priestor na odkladanie šatstva a obuvi pri vstupe. Hoci je zásah do dispozície pomerne radikálny, rovnako veľký je i nárast komfortu bývania.
Priebeh rekonštrukcie
Veľké zásahy do dispozície prebiehali ako rozsiahla prestavba.
Priečka, ktorá oddeľuje kuchyňu od obývacej izby, obsahuje okrem mediálnej sústavy aj podsvietené úložné priestory s čiernym leskom. Atmosféru domova podporuje situovanie kozuba v centrálnom priestore. Povrch stien je je upravený svetlosivou benátskou štukou.
V celom byte je použitá morená palubová dubová podlaha v tmavom odtieni wenge s dymovou úpravou.
Kuchyňu v elegantnom štýle charakterizuje farebný kontrast. K skrinkám so svetlosivým lakom patrí čierna pracovná doska Kronospan a obklad Lacobel.
Dominantou jedálenskej časti je svietidlo Artemide. Nábytok má podobne ako časti kuchynskej linky čierny lesk, ktorý dodáva priestoru eleganciu.
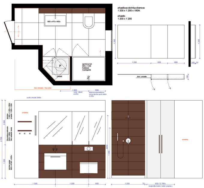
KÚPEĽŇA
Kúpeľňa na novom mieste dopriala obyvateľom viac priestoru na osobnú hygienu. Ako obklad na zvislé i vodorovné povrchy bol použitý veľkorozmerný gres pieskovcovej farby.
Kúpeľňová sanita od popredných výrobcov Duravit a Hansgrohe podčiarkuje luxusný vzhľad.

ŠATNÍK
Šatník na mieru využíva všetky voľné plochy v priestore maximálne účelne.
Realizačná firma: DEEP DESIGN – stavebná časť
Interiérový nábytok: DM Interier, Denisa Murtinová, Michal Šmihula
Výroba kuchyne a atypického nábytku: Intertop Praha
Podlahy: Proparket
Autorka článku: Ing. arch. Paulína Oravcová
Autori návrhu, dokumentácie, fotografií: DEEP DESIGN – Katarína Fialová, Michaela Farkašová
–>–>
























KÚPEĽŇA




