Rekonštrukcia bytu odkazuje na jeho minulosť
Nič nepoteší architektov viac ako uvedomelí klienti. Takými boli aj majitelia bytu v bratislavskej lokalite Staré Mesto. Vďaka tomu, že príliš nezväzovali architektom ruky, sa podarilo vytvoriť príjemný moderný interiér so zaujímavými historickými fragmentmi.
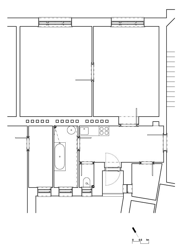
Nič nie je lepšie ako klient, ktorý vám zverí výber bytu a jeho prerobenie a pritom má konkrétnu predstavu o výške finančných prostriedkov, ktoré chce na takýto projekt vynaložiť. Ideálne. Vhodný byt s rozlohou 66,52 m2 (plus lodžia a pivnica) nakoniec našli architekti v kvalitnej lokalite Bratislavy a navrhli úpravu z nepodareného 2-izbového na usporiadaný priestranný 3-izbový byt.
Počas rekonštrukcie sa v miestach pôvodných priečok odhalil betónový trámový strop skrytý pod záklopom s omietkou. Sondy potvrdili možnosť zväčšiť svetlé výšky miestností odstránením záklopu až o 30 cm na 3,3 m.
Renovácia bytu bola radikálna, z pôvodnej dispozície veľa nezostalo. Architekti však postupovali s rešpektom k jeho 100-ročnej histórii. Rozhodli sa zachovať pôvodné drevené podlahy, rekonštruovať pôvodné dvere a okná aj s originálnymi kovaniami.
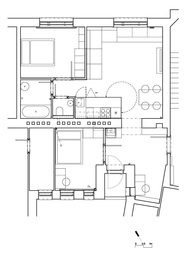
Architekti sa rozhodli pre variant s vyššími stropmi. Veľké miestnosti sa tak opticky ešte zväčšili.
Pri stavebných prácach sa objavili pôvodné maľby stien, ktoré sa rozhodli zachovať vo fragmentoch. Majú silný vizuálny charakter – či už v hlavnej spálni, alebo v obývacej izbe. Počas stavebných prác sa podarilo odhaliť skrytý betónový trámový strop. Toto odhalenie nakoniec predstavovalo 30 cm svetlej výšky miestnosti navyše.
Na stenách sa pod vrstvami starých náterov odkryli pôvodné maľovky. Architektom a našťastie aj klientovi sa páčili, a tak ich ošetrili bezfarebným penetračným náterom a vo fragmentoch ich aj zachovali. To pridalo stenám trochu nevšednosti, a to aj bez použitia tapety či farby. Na stene niekdajšej kuchyne sa zároveň pomocou vyrobenej šablóny podarilo obnoviť polmetrový pás maľovaných obkladačiek.
Okná a dvere vrátane originálnych mosadzných kovaní renovovali šikovní stolári. Dvere sa demontovali z pôvodných priečok a po oprave sa osadili už na nové miesta. Z kľučiek sa najskôr odstránili staré nátery a zašlá špina, následne sa vyleštili do starej krásy a lesku.
V kúpeľni sa experimentovalo s materiálmi. Namiesto štandardných obkladačiek je na stenách vodoodolný náter Tikurilla. Obkladom vane impregnovaným storočným drevom v kombinácii s betónovou podlahou sa podarilo vytvoriť netradičnú atmosféru.
V celom byte sú navrhnuté drevené deliace priečky zo smrekových hranolov, vyplnené minerálnou vlnou a priestorovo vystužené OSB doskami.
Vznikol moderný, priestranný, presvetlený byt – 90 % zariadenia tvorí nábytok vyrobený na mieru. Architekti nechali vyrobiť vstavané skrine, zariadenie kuchyne, sedačku, modulárne mobilné pódium, rozkladací jedálenský stôl, knižnicu a ďalšie. Mali šťastie, že mohli byť pri projekte od úplného začiatku až po kompletnú finalizáciu dizajnu interiéru. Do budúcna by si priali viac takýchto osvietených klientov, ktorí si uvedomujú, že architekt vie dať projektu viac, ako len nakresliť na papier klientove predstavy.
Tým sa dosiahla vysokonosná konštrukcia s veľkými svetlíkmi a „zavesenými“ skriňami.
Nielen kuchynská linka a vstavané skrine sú vyrobené na mieru.
Architekti navrhli a zabezpečili výrobu aj ostatných kusov nábytku – napríklad rozkladacieho dreveného stola, sedačky či modulárneho pódia.
Pôvodný pôdorys bytu pred jeho rekonštrukciou
Navrhovaný nový pôdorys bytu
Vizualizácia riešenia interiéru
Realizácia: 2012
Miesto realizácie: Bratislava-Staré Mesto
Autori: architektonický ateliér anarch, ondrej & tatiana horváth
TEXT: anarch, wad
FOTO: anarch




























