Originálna rekonštrukcia podkrovia bez stien
Adaptácia povalového priestoru na rekreačný byt vytvorila jednu z najväčších garsóniek v širokom okolí. So svojou rozlohou 140 m2 však vyniká nielen veľkým priestorom, ale aj tým, ako sa s takýmto priestorom dokázali tvorcovia návrhu zmysluplne a znamenito vysporiadať.
Samotný názov projektu adaptácie napovedá, že prestavba povaly bude spájať viac druhov umenia. Ich netradičná kombinácia sa však stala spúšťačom fascinujúceho procesu, ktorého výsledkom bol obytný priestor, kde je neustále čo objavovať. Stačí vstúpiť, hoc aj dverami bez steny, a už len vnímať súhru architektúry, tesárstva, dizajnu a filmu (inšpirácia imaginárnymi stenami je z filmu Jar, leto, jeseň, zima… a jar od režiséra KIm Ki-duk).
Pôvodný stav
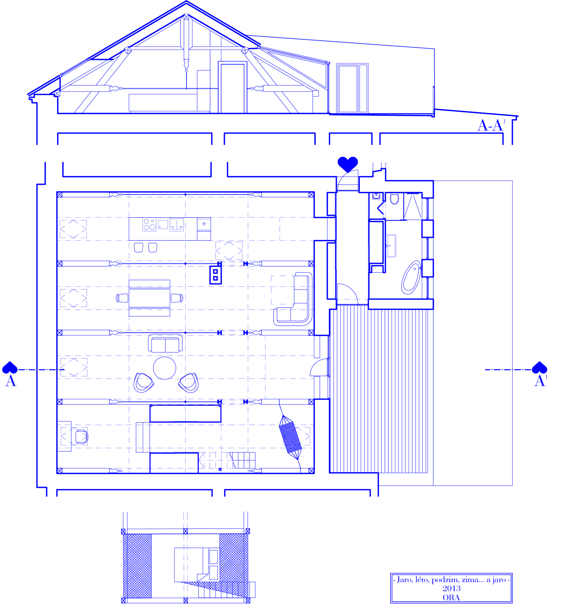
Povala vznikla prestropením školskej auly takým spôsobom, že sa nad aulou vytvorilo prostredie nevhodné na akékoľvek využitie. Dôvodom bolo rytmické rozmiestnenie oceľových tiahel vo výške 1,5 metra nad podlahou. Krov sa tak na dlhý čas dostal do zabudnutia a unikol aj neskoršej rekonštrukcii priestorov pod povalou. Práve touto rekonštrukciou sa definitívne zamedzila možnosť opätovného spojenia podkrovia s aulou. V tomto stave povalu objavili architekti ORA a rozhodli sa ponechať všetko pôvodné a nevyrezať tiahla v zmysle ich zásady ,,najdôležitejšie je rozpoznať, kedy nezasahovať.“
Kam sa podeli priečky
Hlavnou príčinou prestavby podkrovia býva úspornosť a jednoduchosť. Projekt ukázal, že byt dokáže fungovať aj bez priečok a celý čas pracuje len s tým, čo tu už bolo predtým – vzdušný loft a prírodné materiály. Zahraniční majitelia, ktorí sú priaznivci vecí s minulosťou, súhlasili s obmedzením súkromia a užívateľského pohodlia v záujme zachovania atmosféry a vzdušnosti povalového priestoru. Povala je tak funkčne rozdelená na jednotlivé miestnosti prostredníctvom tiahel, ale priestor ostáva celistvý a spojitý. Rektifikačné oká sa zväčšili do podoby priechodov.
Ako prežiť leto na povale
Najväčším problémom podkroví býva výkyv teplôt počas celého roku a jeho riešenie v tomto prípade poskytol dvojitý krov, v ktorom sa tepelná izolácia vošla do medzipriestoru. Pôvodná podlaha, resp. strop nad aulou, mala krivý povrch s veľkými výškovými rozdielmi. Na vyrovnanie podláh projektant navrhol vyskladať na seba niekoľko vrstiev: parotesná fólia, rošt z fošní, kamenivo Liapor, OSB dosky, penový polystyrén a MDF dosky. Jednoliata matná plocha z marmolea tvorí kontrast oproti hrubým tesárskym detailom. Protikladom bielej podlahy sa stáva tmavý strop a vzniká zvláštny jav, kedy prirodzené svetlo dopadá do miestnosti výlučne zhora a podlaha denné osvetlenie rozptyľuje po celom interiéry.
Predispozícia dispozície
Rovnako, ako je náročné spraviť garsónku z 21 m2, nie je jednoduché ani správne rozvrhnúť garsónku pri 140 m2. Dispozičná štúdia prešla viacerými fázami a dokonca zahŕňala aj rodinnú variantu – vstavané domčeky. Jeden so spálňou pre rodičov a druhý, preliezací, pre deti. V duchu flexibility bol v jedálni zabudovaný do podlahy roznášací prah pre možný budúci sklenený box pre hostí. Štyri polia drevenej strešnej konštrukcie dali vzniknúť štyrom funkčným jednotkám, a to kuchyni, jedálni, obývačke a boxu so spaním navrchu. Byt má vlastnú rozľahlú terasu, ktorá je priamo spojená s obývačkou nanovo prerazenými vikiermi.
Textúra materiálu ako konečná povrchová úprava
Drevo a kov sú hlavnými aktérmi v interiéry a nehrajú v ňom len svoje tradičné role. Typická obložková zárubňa je nahradená oceľovým rámom, kuchyňa je namiesto masívu z nerezových povrchov, a zaujímavé sú aj detaily, keď spolu napríklad koexistuje papierový luster a osvetlenie vyrobené z valcovaného I-profilu. Na potrápenie fantázie sa postačí zamyslieť nad tým, prečo autori umiestnili veľký gauč do jedálne a v obývačke stoja pred televízorom len dve osamotené kreslá.
Režisér Kim Ki-duk a znojemský ateliér ORA majú určite niečo spoločné: tvoria dielo osobitou technikou tak, že vyhľadajú zaujímavý vecný základ, ktorý rozpracujú do podmanivej kompozície a detailu.
Autor: ORA – Jan Hora, Barbora Zmeková
Spolupráca: Matěj Špaček
Lokalita: Mikulov, ČR
Projekt: 2011
Realizácia: 2013
Užitná plocha: 140 m2
ZDROJ: autorská správa
TEXT: Katarína Vankušová
FOTO: Jan Žaloudek
PLÁN PODLAŽIA: ORA
















