Netradičné čínske bistro: S rezancami nad hlavou
S dizajnom je to ako s dobrým jedlom. Čím viac zmyslov poteší, tým lepšie. A ak je priamo s jedlom spojený, najlepšie.
Christina Luk je mladá architektka, ktorá pôsobí v Šanghaji. Narodila sa v Hongkongu a od detstva vyrastala v tvorivom prostredí. Bakalárske štúdium architektúry ukončila na Univerzite v Toronte a čoskoro po nástupe do práce získala licenciu OAA (Ontario Association of Architects). V roku 2007 už tri roky pracovala pre veľké architektonické štúdio B+H v Toronte a vtedy sa rozhodla presťahovať zo Severnej Ameriky do Šanghaja a pracovať v tamojšej pobočke ateliéru B+H a potom aj pre ďalší veľký ateliér, NHDRO.
Interiér reštaurácie modeluje ľahká kovová konštrukcia.
O štyri roky neskôr si otvorila vlastné architektonické štúdio LUKSTUDIO. Počas posledných desiatich rokov nazbierala v projektoch rôznej veľkosti množstvo skúseností ako architektka aj projektová manažérka. Jej portfólio zahŕňa urbanistické návrhy, obnovu pamiatok, návrhy polyfunkčných komplexov a tiež rôzne interiéry a výstavné priestory. Pri každej zákazke skúma Christina starostlivo podstatu zadania a so svojím tímom dokáže dokonale vystihnúť jeho nosnú myšlienku, ktorú potom artikuluje v danom priestore. Jej práce odzrkadľujú výnimočný zmysel pre detail, cit pre výber správneho materiálu a navodenie žiadanej atmosféry. Aj zdanlivo jednoduché zadanie dokáže svojou tvorivosťou povýšiť na umelecké dielo.
Podhľad tvorí vrstva kovových laniek, ktoré pripomínajú čerstvo vyrobené ryžové rezance.
Okrem chuti aj dizajn
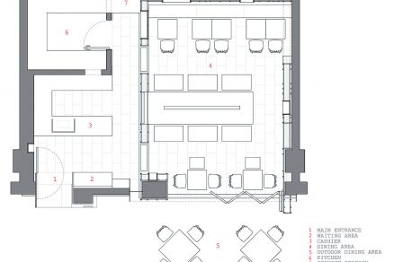
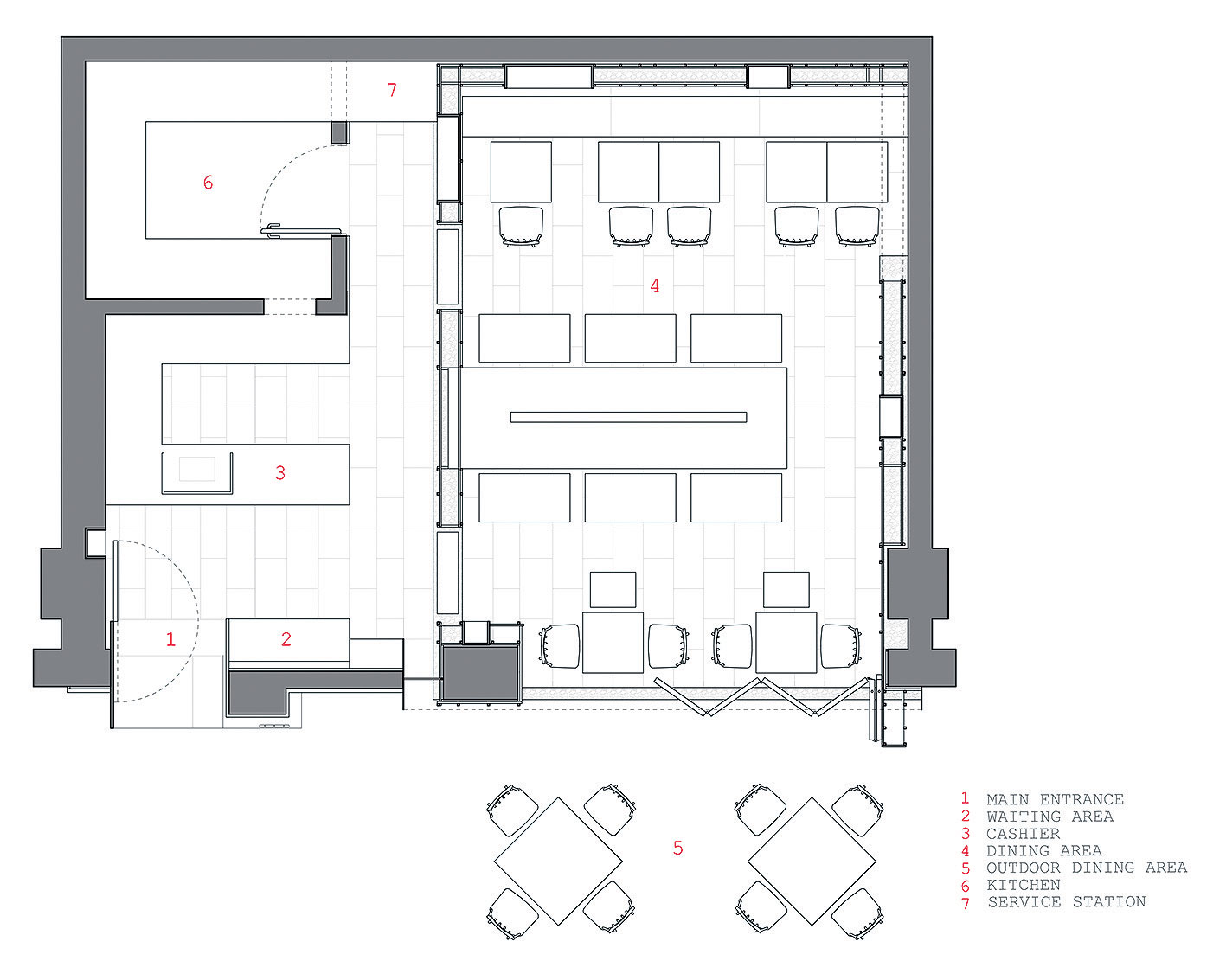
Tak to bolo aj v prípade malej reštaurácie Noodle Rack. Jej dizajn lahodí viacerým zmyslom, rovnako ako pravá čínska rezancová polievka. Je to vlastne úplne bežné čínske pouličné jedlo, na ktoré natrafíte v tejto časti sveta na každom kroku. Zatiaľ čo sa mnohí výrobcovia úporne snažia získať zákazníka hlavne cez jeho chuťové bunky, iní sa chopili novej stratégie a k výbornej a výdatnej polievke ponúkajú aj príjemné priestory. S týmto trendom drží krok aj sieť LongXiaoBao, ktorá otvorila prevádzku v mesta Čangša v provincii Hunan na juhovýchode Číny. Priestor s rozlohou 50 m2 je zaujímavý bez ohľadu na geografické súvislosti. Dôležité je, že aj bežná výdajňa, ako by sme u nás povedali, desiatových polievok môže mať šmrnc, eleganciu a vtip v jednom. Investorovi, ktorý plánuje expanziu aj do ostatných kútov krajiny, išlo o spojenie tradičného jedla s moderným dizajnom, ktorý bude reprezentovať značku.
Motív bambusových stebiel vytlačila architektka Christina Luk do betónového obkladu fasády.
Rezance ako podhľad
Architektka Christina Luk vyriešila zadanie veľmi jednoduchým, ale hravým spôsobom. Jednoduchú fasádu bistra ponúka cez betónový obklad s motívom bambusových stebiel v súvislosti s prírodou, vidiekom, niečím domácim a dôverne známym. Neveľký interiér zákazníka zase šikovne vtiahne takmer do kuchyne, akoby sa sám stával súčasťou rituálu prípravy tradičného jedla. Vychytený industriálny trend pustila architektka do interiéru len okrajovo, vlastne len v podobe pôvodných murovaných stien, ktoré návštevník vníma až v druhom pláne. Hlavnú zobytňovaciu funkciu má v priestore jednoduché kovové lešenie, ktoré modeluje výšku aj šírku jednotlivých zákutí, funguje ako paraván či ako nosná konštrukcia pre drevené panely a niky, v ktorých je vystavený porcelán. Teplá a príjemná textúra dreva, ktoré architektka použila aj na stoličkách a stoloch, vyvažuje pôsobenie neosobného chladného kovu či neomietnutého muriva.
Rez interiérom
Harmonicky vyladenej kombinácii materiálov vládne starostlivo uložená vrstva kovových laniek, ktoré spolu so zavesenými obnaženými žiarovkami vytvárajú sofistikované osvietenie interiéru. Okrem jasného odkazu na spôsob výroby tradičných čínskych ryžových rezancov plní tento lankový baldachýn aj funkciu ľahkej, takmer až surreálnej konštrukcie podhľadu. Christina Luk vniesla do jednoduchého čínskeho občerstvenia západnú eleganciu a noblesu tak, že bežného zákazníka nevyrušia a neodradia, skôr polichotia a upokoja, pretože architektka sofistikovane použila tie najobyčajnejšie materiály. Ľahkým a vtipným gestom povýšila konzumáciu tradičnej čínskej rezancovej polievky na kulinársky zážitok. A je pritom skvelé, že dobrý dizajn hrá v tomto kúsku práve druhé husle.
Pôdorys
The Noodle Rack
Dizajn: Lukstudio (lukstudiodesign.com)
Projektový tím: Christina Luk, Alba Beroiz Blazquez, Cai Jin Hong, Pao Yee Lim
Hlavný dodávateľ: Shanghai MaiChang Construction Project Co., Ltd.
Dizajn: február – apríl 2015
Realizácia: máj – júl 2015
Plocha: 50 m2
TEXT: Mária Nováková, Dokumentácia: LUKSTUDIO
Foto: Peter Dixie for LOTAN Architectural Photography
Článok bol uverejnený v časopise ASB.













