Nápadité riešenie jednoizbového bytu alebo spálňa v predsieni
Panelové sídliská sú na pohľad všetky rovnaké. „Systém škatule“ ukrýva drobné miesta na bývanie s vopred danou dispozíciou, ktorá sa pomerne často opakuje. Počítačová skratka Ctrl+c a Ctrl+v by našla v čase výstavby široké uplatnenie. Ako sa s tým však popasovať v roku 2013? Dnes máme ruky voľné a obyvatelia panelových domov chcú bývať moderne a osobito. Takýto sen mal o svojom prvom bývaní aj mladý pár z Nitry. S pomocou ateliéru TOITO ARCHITEKTI vznikol zaujímavý návrh rekonštrukcie jednoizbového bytu. Vnáša do bývania invenciu a zároveň poriadok. Inšpirujte sa...
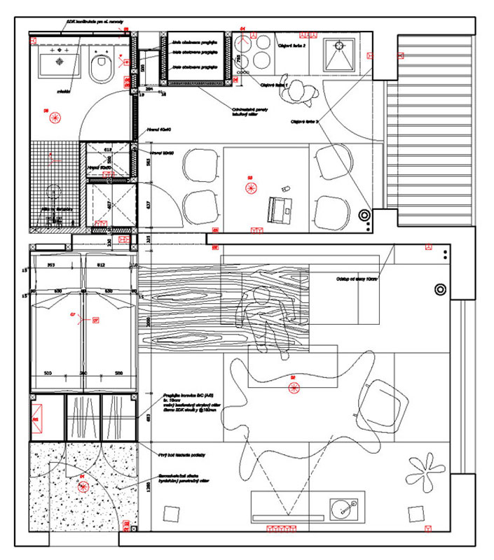
Pôvodnú dispozíciu jednoizobového bytu s rozlohou 40 m2 tvorila úzka predsieň, bytové jadro, malá kuchyňa s balkónom a spálňa. Nový návrh rieši dispozičné zmeny vstavbou. Priestor tak nadobúda osobitý charakter.
Vstavba, ktorá vznikla pri rekonštrukcii, ukrýva praktický šatník pri vstupe do bytu, manželskú posteľ, časť kuchyne a kompaktnú kúpeľňu. Zároveň vznikol priestor na komfortnú kuchyňu s jedálňou a obývaciu izbu.
![]() |
![]() |
![]() |
![]() |
Architekti pri návrhu namiesto vizualizácií použili ručne vyrobený model. Takáto forma prezentácie projektu predstavuje jednoduché riešenie komunikácie s klientom. Už v malej mierke tak možno overiť výsledok a očakávania.
Prvú časť vstavby tvorí šatníková skriňa, ktorá sa otvára smerom k vstupným dverám, a spálňová časť, ktorú tvorí manželská posteľ s odkladacími priestormi. Samotná konštrukcia je z drevených hranolov obložených preglejkou zo sibírskej borovice. Sú hrubé 15 mm. Povrch je ošetrený transparentným matným akrylátovým náterom.
V predsieni sa použila samonivelačná stierka a farba na betón, aby sa povrchy jednoducho udržiavali. Steny v celom byte sú biele, aby sa miestnosti presvetlili a priestor opticky zväčšil. Podlaha bytu je z rovnakého materiálu ako vstavba – z lakovanej preglejky hrubej 15 mm s transparentným matným akrylátovým náterom.
Pohľad do nočnej časti s nikou. Vstavba plynulo prechádza do kuchyne.
Kuchynskú časť vstavby tvorí miesto na chladničku, odkladací priestor a kúpeľňa so vstupom v pravej časti.
–>–>
![]() |
![]() |
Proces rekonštrukcie kúpeľne. Fotodokumentácia ukazuje, že kúpeľňa sa upravila ešte pred umiestnením samotnej drevenej konštrukcie.
![]() |
![]() |
Kúpeľňa pred a po rekonštrukcii. Obklad i dlažbu tvorí biela keramická dlažba – mozaika 50 × 50 mm. Priestor opticky zväčšuje zrkadlo. Pri rekonštrukcii sa spojila toaleta s kúpeľňou, ide však o jednoizbový byt, takže zo štandardu mu to neuberá.
![]() |
![]() |
Detail spojenia konštrukcie vstavby a vstupu kúpeľne. Pôvodnú vaňu nahradil praktický i ekonomický murovaný sprchovací kút.
![]() |
![]() |
Návrhu jedálenského stola v kuchyni s policovou dekoráciou predchádzala séria ručných skíc.
![]() |
![]() |
Materiálom na stôl i police bol odpad z vstavby – preglejka zo sibírskej borovice. Skladba samostatných políc dodáva jedálenskému stolu zaujímavý akcent. Je variabilná, dekorácie možno vymieňať.
Ateliér TOITO ARCHITEKTI funguje od roku 2010. Jeho prednosťou je originálne spracovanie menších foriem bývania, ktorým architekti dodávajú nápaditý, no zároveň funkčný charakter a zaujímavú ideu.
Autorky článku: Ing. arch. Paulína Oravcová, Ing. arch. Soňa Pohlová
Autori návrhu, projektu, modelu: TOITO ARCHITEKTI – Ing. arch. Katarína Beladičová, Ing. arch. Ivan Príkopský, Ing. arch. Tomáš Szőke
Autorka fotodokumentácie: Ing. arch. Katarína Beladičová
Realizátor: TOITO ARCHITEKTI


-big-image-438x292.jpg)





-big-image.jpg)




















