Music Bar KiloWatt
Iná hudba. Iní ľudia. Iná zábava – to je slogan azda najobľúbenejšieho Music baru v Trnave, ktorý zaujal aj porotu v súťaži Ceny za architektúru CE.ZA.AR 2012 a v kategórii Interiér získal cenu.
Svetlo s obrazom. Obraz s priestorom. Priestor s tvarom. Tvar so zvukom. Zvuk so svetlom. V historickej pivnici v centre Trnavy sa v klube KiloWatt stretla elektronická hudba s digitálnou architektúrou. Klub je jedným komplexným žiariacim displejom, často exponovaným, čiastočne integrovaným do hmoty a miestami skrytým.Kontinuálna forma svetelnej vlny sa skladá zo stovky samostatných unikátnych prvkov, z ktorých každý skrýva farebný displej. Svetlo sa tak stáva súčasťou architektúry a hmota súčasťou projekcie.
Music Bar KiloWatt
Miesto: Trojičné námestie 4, Trnava
Autori: Marek Rudohradský, Peter Chaban, Martina Rudohradská
Spolupráca: Mária Šebová, Juraj Deraj, Andrej Švec
Štúdia: 2010
Projekt: 2010
Realizácia: 2010
Vysokolesklý podhľad s rastrom LED bodov
Kontrast historickej tehly a svetelnej steny z Corianu
Priehľad do Lightroomu
Vstupná časť klubu
Bar a DJ place z translucentného (prepúšťajúceho svetlo) Corianu
VIP priestor v nadväznosti na barový pult
VIP priestor s najstaršou stenou v objekte
Stena vo VIP priestore zdola nasvetlená LED panelmi
Stenu Lightroomu tvorí stovka unikátnych zrezaných ihlanov – extrudov.
Priestor Lightroomu dopĺňa hudbu o vizuálny zážitok.
Vstupné schodisko do klubu KiloWatt
Svietiaci displej schodiska je prepojený s barovým pultom a Lightroomom
DJ place s barom z ručne kovaného plechu
LED steny sú ovládané centrálne z PC alebo iPadu umiestneného v DJ pulte
Vzájomné prepojenie všetkých svetelných LED stien umožňuje vytvárať v celom KiloWatte unikátnu atmosféru.
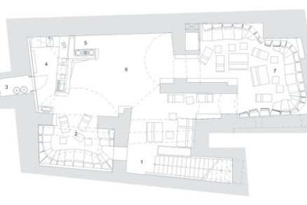
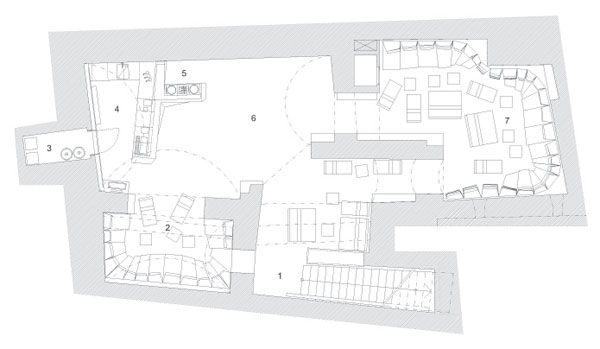
Pôdorys 1. pp: 1 – vstupné schodisko, 2 – vip sedenie, 3 – sklad, 4 – bar, 5 – dj place, 6 – tanečná plocha, 7 – lightroom
Extrudovaná stena
(pet)
Foto: Julo Nagy





























