Moderný interiér ambulancie na bratislavských Kramároch
Nemocnica akademika Ladislava Dérera v bratislavskej mestskej časti Nové Mesto je pomerne známa. Budova nemocnice bola postavená v rokoch 1958 až 1961 architektom Milanom Šavlíkom (spoluautormi boli Oldrich Černý, Štefan Imrich, Richard Pastor a Jaroslav Rajchl). Odvtedy prešlo už veľa času, k rekonštrukcii celého komplexu však zatiaľ nedošlo. Ten, kto túto nemocnicu navštívil, iste uzná, že jej stav je na hranici tolerancie návštevníka i architekta.
Pracovná činnosť lekárov a sestier sa však nezastaví a musia sa s týmto stavom budovy vyrovnať. Mladá lekárka z nemocničnej polikliniky sa s tým popasovala po svojom. Rozhodla sa zmeniť výzor ambulancie pripomínajúcej časy dávno minulé. Za pomoci architektov z ateliéru Nice Architects premenili malú ambulanciu všeobecného lekára na priestor, ktorý spríjemní prácu a pacientom návštevy.Pôvodný stav
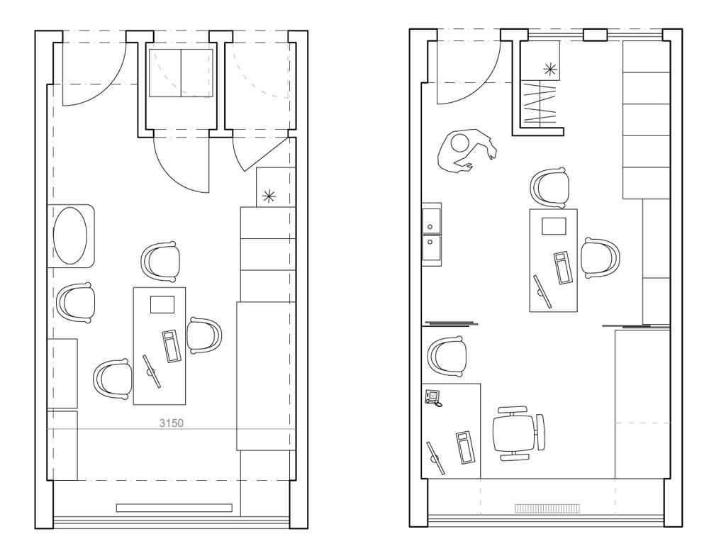
Ambulancia pre lekárku a sestru má veľkosť 3,15 × 6 m. Do priestoru bolo možné vojsť cez hlavný vstup a dve bočné prezliekacie kabíny. V pôvodnom interiéri slúžili prevažne na odkladanie. Okrem nich tu neboli nijaké priečky, ktoré by priestor členili priečkami. Na druhom konci miestnosti sa nachádza dvojkrídlové okno.
K zabudovanému zariadeniu patrilo umývadlo s pákovou batériou v stene a radiátor pod oknom. Povrch stien tvorila kombinácia vápenno-cementovej omietky so žltým náterom a biele polorozbité obklady s rozmermi 15 × 15 cm. Podlahu pokrývala vrstva starého linolea spájaná plastovými spojmi. Osvetlenie zabezpečovali dve závesné svietidlá napojené z jedného zdroja.
Pôvodnému nábytku dominovali kovové kartotékové skrine, ktoré sú neoddeliteľnou súčasťou ambulancií aj v súčasnosti. V strede miestnosti sa nachádzal stôl, ktorý slúžil lekárke a sestre súčasne. Toto riešenie bolo veľmi nepraktické z hľadiska tak organizácie práce, ako aj vytvorenia istého súkromia. Medzi ďalšie kusy nábytku patrili skrine na lieky, príručný stolík a lôžko pre pacientov.
Je zrejmé, že správne dispozičné riešenie, funkčné rozmiestnenie zariadenia a zatraktívnenie celého priestoru sa stali prioritou nového návrhu.
![]() |
![]() |
–>–>
Minimálne náklady
Architekti dostali pomerne náročnú úlohu. Okrem nutnosti nanovo usporiadať priestor ich obmedzoval aj minimálny rozpočet, čo si vyžiadalo omnoho väčšiu kreativitu. Prím preto hrala okrem prvkov na mieru aj „recyklácia“ pôvodného zariadenia.
Nový šat
Interiér ambulancie prešiel kompletnou zmenou. Vynovili ho doslova od podlahy po strop. Hlavný vstup do priestoru bol zachovaný, prezliekacie kabíny však zbúrali. Vznikol vzdušný kút, ktorého pevnú časť tvorí len zástena, za ktorou sa nachádza šatník a chladnička. Dvoje dvere nechali na prípadné ďalšie využitie. Okenný otvor bol zachovaný v pôvodnom stave, zmenilo sa však jeho prekrytie posuvnými vertikálnymi lamelami a pribudla aj širšia parapetná doska z drevotriesky s čiastočným predným prekrytím. Využíva sa aj ako bočný odkladací priestor s policami.
Povrchy a osvetlenie
Povrch stien sa výrazne zmenil. Žltú vápenno-cementovú omietku nahradila biela. Pôvodný obklad osekali a nahradili jemne krémovobielym olejovým náterom, ktorý si hygiena ambulancie vyžaduje. Podlaha je z linolea od firmy Tarkett s atraktívnou zelenou grafickou textúrou s bielym lištovaním. Krytina dodala interiéru svetlo a zaujímavý farebný akcent, ktorý sa opakuje aj pri ďalších doplnkoch. Osvetlenie vymenili za štyri hranaté svietidlá s matným pieskovaným povrchom, ktoré tvarovo ladia s novými doplnkami a grafickou textúrou podlahy.

Výmena nastala aj v prípade umývadla. Priveľmi široké a robustné umývadlo nahradili dve praktické príručné biele keramické umývadielka kubického tvaru zabudované do laminovanej skrinky. Batéria z ekonomických dôvodov ostala pôvodná, vyhovuje však jej praktické umiestnenie do steny, pretože ju možno nastaviť nad obidve umývadielka. Radiátor pod oknom prekryli a doplnili vetraciu mriežku, aby zlepšili estetický efekt.
Nábytok
Recyklovaným prvkom nábytkovej zostavy je práve pôvodná masívna kartotéková skriňa. Keďže jej stav bol vďaka odolnému materiálovému vyhotoveniu dobrý, stačilo ju len nastriekať nabielo a získala nový vzhľad. V interiéri boli použité znova aj skrine na lieky a príručný stolík. Vďaka novému náteru či doplneniu úložných priestorov z laminovanej drevotriesky sú však na nerozoznanie od nových prvkov. Lôžko pre pacientov bolo nahradené novým, pod ktorým je umiestnený úložný priestor – zatváracia skrinka. Matrac lôžka je potiahnutý umývateľným materiálom a miesto na nohy pacientov je dômyselne prekryté zvyškom podlahovej krytiny, aby ladilo s navrhnutým celkom.
Hlavnou dispozičnou zmenou prešla organizácia sedenia lekárky a sestry. Nový lekársky stôl umiestnili na pravú stranu pri okne, je tak odčlenený od hlavného priestoru. Vzniklo útulné prostredie na pokojnejšiu prácu. To bola zároveň aj jedna z hlavných požiadaviek klientky. Dvere ani stena neboli vzhľadom na malý priestor prípustné. Závesom na koľajniciach, ktorý korešponduje s nábytkom i podlahou, je možné priestor úplne oddeliť. Zároveň prepúšťa dostatok svetla aj na stôl v strednej časti miestnosti. Tento stôl je masívnejší s bočným sedením pre pacienta.
Nositeľ nápadu
Interiér ambulancie pôsobí v súčasnosti sviežo a čisto. Pri minimálnych nákladoch boli splnené všetky požiadavky na prácu i pohodlie. Priestor je atraktívny a zároveň slúži dvom samostatne fungujúcim pracovníčkam. Nech je teda tento príklad námetom na úpravu podobných priestorov, ktoré doposiaľ skrývajú svoj pôvab.
Autor článku: Ing. arch. Paulína Oravcová
Autor projektu: Nice Architects, s. r. o.
Autor fotografií: Ján Mazúr






















