Minimalistický interiér bytu v Karloveskom ramene II
Tvorba interiéru vzniká najčastejšie v dialógu architekta s investorom. Ako však vzniká interiér bytu samotného architekta? Veľmi podobne: je to o realizovaní vlastných snov a vzniká v dialógu so svojou partnerkou.
Po prekročení prahu bytu v novostavbe Karloveské rameno II v Bratislave sa predstavuje jeho charakter. Dá sa prečítať hneď vo vstupnej chodbe na stene – Less is more. Menej je viac, kultový výrok architekta Miesa van der Rohe, ktorým definoval prístup k architektonickej tvorbe.
V rôznych obmenách platí aj takmer po 100 rokoch, niekedy sa zdá, že má až inflačné rozmery, ale aj tento funkcionalistický výrok má svoje ľudské prejavy. Patrí k nim aj tento 3-izbový byt, pre ktorého minimalizmus je vyjadrenie očisty od balastu, ale aj zdôraznenie vecí, ktoré človek potrebuje k svojmu spokojnému životu.
Vtiahnutie vody dovnútra
„Snažil som sa o vtiahnutie krásneho prírodného exteriéru do bytu,“ hovorí o svojom základnom koncepte architekt Boris Schultz. Byt má preto všetky predpoklady, je na najvyššom poschodí s orientáciou na juhozápad a výhľadom na Dunaj a Karloveské rameno (v tomto prípade riečne rameno). Sám je náruživým vodným živlom – od potápania cez plávanie, kajak a wakeboarding obľubuje všetko, čo sa týka vody.
Aj preto je ústredným stanoviskom pri hlavnom výhľade na prírodnú scenériu s vodnými hladinami najväčší priestor v byte – obývačka so sedačkou, pri lepšom počasí pomerne rozľahlá terasa so sedením. Tradičný stredobod obývačiek – televízor – je odsunutý do úzadia, lebo na ten pri týchto „panorámach“ jednoducho nie je čas. Obývačka je zároveň najrozmaľovanejšia, bielu na stene a hnedú na prírodnej dubovej podlahe dopĺňa tyrkysová na sedačke a v doplnkoch.
Tristolitrové akvárium je odozvou na blízkosť vonkajšej vody, prírodný obraz z machu v mumifikovanej podobe zase prírodným prvkom, ktorý s akváriom spoluvytvára optimálnu vlhkosť v byte (okolo 50 %). Ako približuje architekt, nábytok je konštruovaný na mieru podľa potrieb užívateľov, čím originálne vytvára funkčný kolorit. Originalita však nemá „úlety“, sleduje potreby a celkový výraz bytu.
S obývačkou je vizuálne prepojená kuchyňa, ktorá má však čiastočne autonómny charakter, lebo je oddelená knižnicou. Všetky elektrospotrebiče sú neviditeľné, skrývajú sa pod kuchynskou linkou, ktorej priama línia s bielym nádychom sa vinie bez akéhokoľvek prerušenia. Aj tu sa nachádza zeleň, ktorá je všadeprítomná v rôznych podobách.
Stena z drevených lamiel s bylinkovou záhradou je akousi príručnou zásobarňou pre kulinárske výtvory, ale aj elegantným výtvarným prvkom. Pozerám sa von a moja otázka je pre toto miesto celkom tradičná – komáre? Odkedy sa prehĺbilo koryto ramena a sprietočnil sa jeho tok, je ich vraj výrazne menej.
Personalizácia priestoru
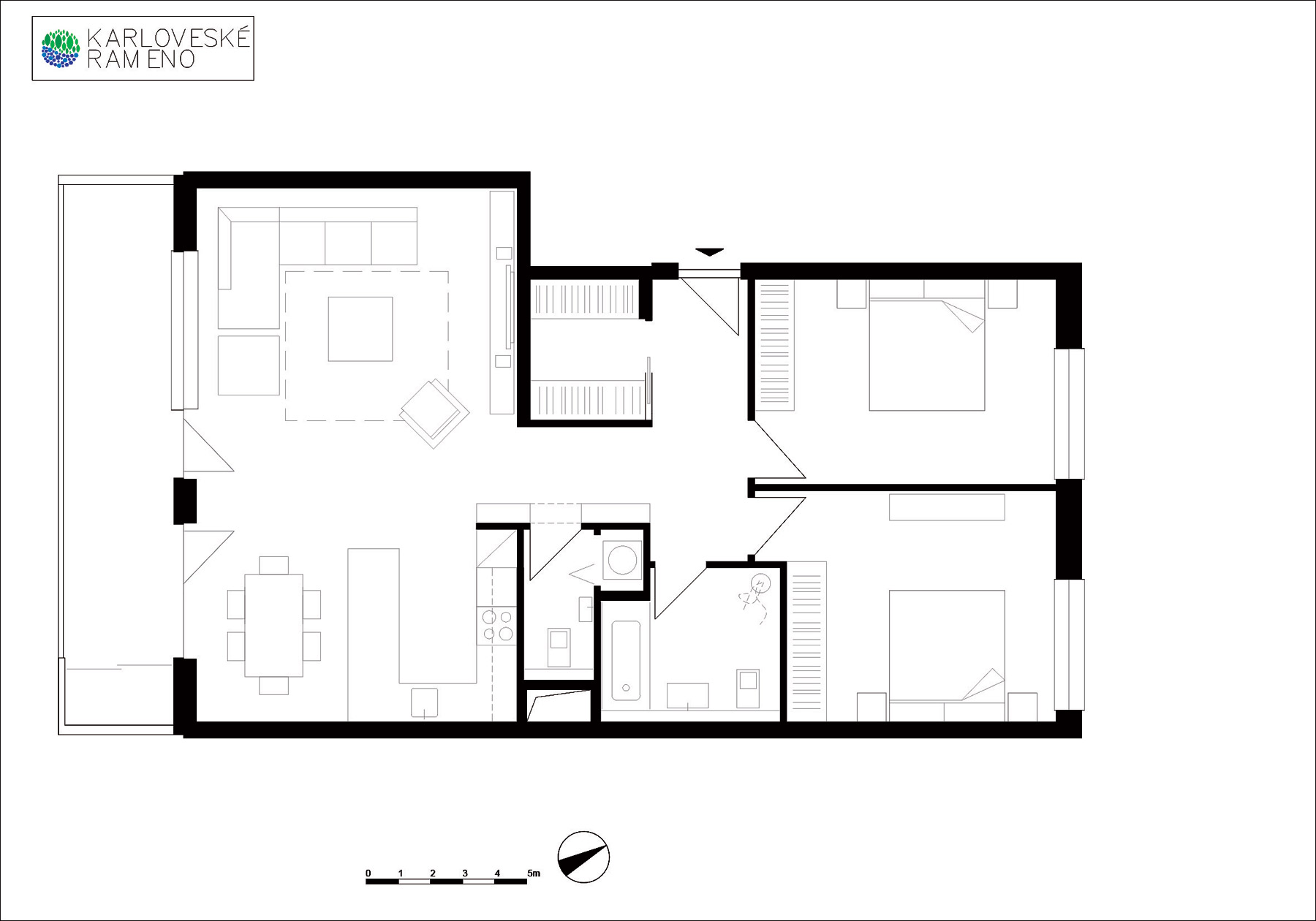
Byt má síce vzdušných 98 m2, ale je na ňom vidno, že sa zohľadňoval každý štvorcový meter. Pri tvorbe interiéru sa mierne menila aj dispozícia bytu, čo sa najviac prejavilo pri zväčšení kúpeľne ako relaxačného miesta. Aj preto sa odtiaľ vytiahla práčka do samostatného priestoru za zásuvnými dverami a z kúpeľne zostala oáza pokoja s veľkou trstinovou kyticou a snivou atmosférou.
„Keď nie sú peniaze, musí nastúpiť kreativita,“ vyhlasuje architekt a upozorňuje na ďalšiu pýchu novovytvoreného priestoru – akýsi obrovský šatník s odkladacou skriňou a útulným sedením. To všetko sa dá zaťahovať dverami, čím sa vytvára hravé vlakové „kupé“ pre najmenšieho člena domácnosti. Azda najvýstižnejším slovom pre tento prístup k interiéru je personalizácia, pri ktorej každý autor narába s priestorom inak. Podľa predstáv, ale aj pragmatizmu.
„Na jednej strane je úžasné, že do toho nikto nezasahuje, lebo aj s partnerkou sme rovnako naladení, ale na druhej strane je tu finančný limit,“ odpovedá architekt na otázku tvorivej slobody pri takomto type zákazky. „Architektúra v interiérovom dizajne nie je len o jednom správnom riešení a aj preto som mal pripravených viacero verzií. Nemá to byť len krásne, ale aj funkčné.
Nechcel som, aby v byte bolo veľa zbytočných predmetov – aj upratovanie je vtedy veľmi rýchle.“ Inými slovami, byt má jednoducho slúžiť. Less is more sa tak objavuje v ďalšom variante na dobrý interiér a vytvára princíp, ktorého dosah je nadčasový.
Byt v Karloveskom ramene II
Miesto: Karloveské rameno, Bratislava
Autor interiéru: Boris Schultz, Dipl Arch
Plocha: 98 m2
Začiatok a koniec realizácie interiéru: 2017
BRATISLAVA
TEXT: ĽUDOVÍT PETRÁNSKY,
FOTO, DOKUMENTÁCIA: BORIS SCHULTZ
Článok bol uverejnený v časopise ASB 6-7/2017.



















